Bosch HBL8444RUC - Notice

Four Bosch HBL8444RUC - Notice, à lire gratuitement en ligne au format PDF. Nous espérons que cela vous aidera à résoudre toutes les questions que vous pourriez avoir. Si vous avez encore des questions, contactez-nous via le formulaire de contact.
fr-ca
25
Table des matières
1 IMPORTANTES CONSIGNES DE SÉCURITÉ ......... 26
1.1 Définitions des termes de sécurité ........................... 26
1.2 Informations générales............................................. 26
1.3 Consignes générales de sécurité ............................. 26
1.4 Manipulation sécuritaire des appareils ..................... 27
1.5 Codes et normes de sécurité ................................... 27
1.6 Sécurité électrique ................................................... 27
1.7 Mises en garde conformément à la proposition 65
de l'État de Californie ............................................... 28
1.8 Transport ................................................................. 28
doubles intégrés....................................................... 29
3.2 Retrait de l'emballage des fours combinés
intégrés .................................................................... 30
30 po........................................................................ 31
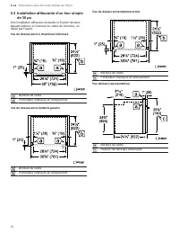
5.3 Installation affleurante d'un four simple de 30 po...... 32
5.4 Installation sous le comptoir d'un four simple de
30 po........................................................................ 33
6 Dimensions du four double de 30 po ..................... 33
6.1 Dimensions de l'appareil à four double de 30 po ...... 33
6.2 Installation traditionnelle d'un four double de
30 po........................................................................ 34
6.3 Installation affleurante d'un four double de 30 po ..... 34
7 Dimensions du four combiné de 30 po .................. 35
7.1 Dimensions de l'appareil à four combiné de 30 po ... 35
7.2 Installation traditionnelle d'un four combiné de
30 po........................................................................ 36
7.3 Installation affleurée dans un four combiné de
30 po........................................................................ 36
27 po........................................................................ 37
27 po........................................................................ 38
27 po........................................................................ 39
9.3 Installation affleurante d'un four double de 27 po ..... 40
10 Avant l'installation ................................................... 40
10.1 Soulever l'appareil ................................................... 40
10.2 Connexion du four rapide ou du conduit du four
à convection vapeur au four inférieur ....................... 41
10.3 Connexion du micro-ondes au four inférieur ............ 42
10.4 Assemblage des deux unités de four combinés ....... 42
10.5 Retrait de la porte du four des fours
conventionnels à charnière inférieure ...................... 44
11 Installation des fours dans l'armoire...................... 45
11.1 Réinstallation de la porte du four ............................. 46
11.2 Réglage de l'alignement des portes pour les
portes à charnières latérales .................................... 46
12 Raccordement électrique ........................................ 48
12.1 Exigences électriques .............................................. 48
12.2 Emplacement de la prise de courant ........................ 48
12.3 Acheminement du câble de conduit électrique ......... 48
12.4 Installation d'une connexion à quatre fils.................. 49
12.5 Installation d'une connexion à trois fils ..................... 49
13 Opération d’essai..................................................... 49
fabrication (FD) ........................................................ 50
14.2 Emplacement de la plaque signalétique................... 50
„Téléchargement du manuel“ signifie que vous devez attendre que le fichier soit complètement chargé avant de pouvoir le lire en ligne. Certains manuels sont très volumineux, et le temps de chargement dépend de la vitesse de votre connexion Internet.