Faber FLOX WH A45 - Manuel d'utilisation

Hotte de cuisine Faber FLOX WH A45 - Manuel d'utilisation, à lire gratuitement en ligne au format PDF. Nous espérons que cela vous aidera à résoudre toutes les questions que vous pourriez avoir. Si vous avez encore des questions, contactez-nous via le formulaire de contact.
Table des matières:
- Page 4 – FR; CONSEILS ET SUGGESTIONS; • La distance de sécurité minimum entre le plan de
- Page 5 – UTILISATION
- Page 6 – les parties accessibles peuvent devenir très chaudes durant; ENTRETIEN; débrancher l’appareil du secteur.
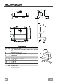
- Page 7 – CARACTERISTIQUES; Composants
- Page 8 – Perçage du Plan de support et Montage de la Hotte; Branchements
- Page 10 – Tableau de commande
- Page 11 – Filtres anti-graisse
- Page 12 – Eclairage
Instructions Manual
Manuel d’Instructions
Bedienungsanleitung
Manual de instrucciones
Εγχειρίδιο
οδηγιών
Руководство
по
эксплуатации
Príru
č
ka na obsluhu
Käyttöohje
„Téléchargement du manuel“ signifie que vous devez attendre que le fichier soit complètement chargé avant de pouvoir le lire en ligne. Certains manuels sont très volumineux, et le temps de chargement dépend de la vitesse de votre connexion Internet.
Résumé
FR 1 13 CONSEILS ET SUGGESTIONS Les instructions pour l’utilisation se réfèrent aux différents modèles de cet appareil. Par conséquent, certaines descriptions de caractéristiques particulières pourraient ne pas appartenir spécifiquement à cet appareil. INSTALLATION • En aucun cas le fabricant ne peu...
FR 1 14 • Si les instructions d’installation du plan de cuisson à gaz spécifient une distance supérieure à celle indiquée ci-dessus, veuillez impérativement en tenir compte. Toutes les normes concernant l’évacuation de l’air doivent être respectées. • Utiliser exclusivement des vis et des petites pi...
FR 1 15 • ATTENTION : les parties accessibles peuvent devenir très chaudes durant l’utilisation des appareils de cuisson. ENTRETIEN • Avant d’effectuer toute opération de nettoyage et d’entretien, éteindre ou débrancher l’appareil du secteur. • Nettoyer et/ou remplacer les filtres après le délai ind...