Page 1 - Options de régulateurs (vendus; technicien d’entretien qualifié et; Lista de verificación para; realizar un técnico de reparación; Installation Checklist; Options; performed by a qualified service
Liste de vérification pour l’installation Inclus dans cette boîte A1 unité TrueDRY™ DR90 (1) ou A2 unité TrueDRY™ DR120 (1) B Collet de conduite de 10 po [25,4 cm] (2) C Collet de conduite de 6 po [15,2 cm] (1) D Filtre MERV 11 (1) E Trappe du filtre (2) F Guide d’installation Options de régulateurs...
Page 2 - Lire et conserver ces instructions.; À PROPOS DU NOUVEAU DÉSHUMIDIFICATEUR
TrueDRY ™ DR90/DR120 BESOIN D’AIDE? Pour obtenir de l’aide sur ce produit, prière de visiter le site http://forwardthinking.honeywell.com ou d’appeler le service d’assistance à la clientèle de Honeywell au 1-800-468-1502. Lire et conserver ces instructions. ® Marque de commerce déposée aux États-uni...
Page 3 - À propos du déshumidificateur TrueDRYTM DR90/DR120; maison grâce à sa haute performance et son efficacité.; Avantages; d’eau par jour de l’air intérieur.; Maintien d’une humidité idéale; élevés causent une perception de chaleur accrue par rapport à la
À propos du déshumidificateur TrueDRY™ DR90/DR120 Le TrueDRY DR90/DR120 de Honeywell permet de maintenir les niveaux d’humidité adéquats dans toute la maison grâce à sa haute performance et son efficacité. Lorsque l’humidité intérieure dépasse 60 %, l’habitation est plus suscep- tible à la moisissur...
Page 4 - température sur 7 jours.; Régulateur numérique TrueIAQ (DG115EZIAQ); économique et l’arrêt en cas de condition extrême.; Déshumidistat manuel (H8908DSPST) et commandes de; conditions extérieures changeantes.; Options de régulateurs; Système de confort PrestigeTM IAQ 2.0
Système confort total VisionPRO IAQ (YTH9421C1010) • Régule le chauffage/refroidissement ainsi que la déshumidification.• Capteur inclus pour l’affichage de la température extérieure.• Interface utilisateur intuitive pour une programmation facile de la température sur 7 jours. • Afficheur numérique ...
Page 5 - DR90 Spécifications; raccordement à des conduits rigides ou flexibles avec vis à; Caractéristiques d’entrée; déshumidificateurs à conduit.; Humidité de l’air d’admission
DR90 Spécifications Installer le TrueDRY DR90 conformément au code électrique local en vigueur. Dimensions en pouces et (mm) : Poids du produit : 82 livres Poids d’expédition : 93 livres Dimensions d’expédition : 21,5 po (H) x 18,5 po (I) x 40,0 po (L) Filtre à fibres : MERV 11, 14 po (H) x 18 po (W...
Page 6 - Dimensions de
DR120 Spécifications Installer le TrueDRY DR120 conformément au code électrique local en vigueur. Dimensions en pouces et (mm) : Poids du produit : 90 livres (40,8 kg) Poids d’expédition : 101 livres (45,8 kg) Dimensions d’expédition : 23,5 po (H) x 18,5 po (I) x 40,0 po (L) Filtre à fibres : MERV 1...
Page 7 - Installation en fonction de l’application; Retour dédié vers alimentation principale; Exigences électriques :; Retour principal vers alimentation principale
Installation en fonction de l’application Idéal dans les cas suivants… • Un accès à un retour central dédié pour le TrueDRY est disponible. • Nécessite un registre de refoulement sur l’orifice d’échappement pour réduire le refoulement lorsque le TrueDRY n’est pas en marche mais que la climatisation ...
Page 8 - Retour dédié vers retour principal; Retour principal vers retour principal
C Idéal dans les cas suivants… • Le TrueDRY ne sera pas relié en conduit à un système de CVCA à air pulsé. Brancher un tube de vidange de 1/2 po à la sortie de vidange de connexion mâle. Attacher un tube de vidange au connecteur avec un collier de serrage. Acheminer la conduite de vidange en aval de...
Page 9 - Peut endommager l’équipement.
Description des bornes * REMARQUE : Les vis externes sur le bloc de connexion fixent le bloc au châssis. Elles ne sont pas destinées au câblage. un bloc de connexion est situé sur le panneau laté-ral de l’unité TrueDRY.Les six bornes pour le bloc de connexion (de gauche à droite sur l’illustration) ...
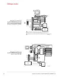
Page 11 - Respecter le schéma si le
Câblage (suite) Respecter ce schéma si le TrueDRY DR90/DR120 est utilisé avec un déshumidistat électrique tel que le TrueIAQ (DG115EZIQ). CVCA THERMOSTAT G Y W R Rc MF29842A SI UN THERMOSTAT AUTRE QU’UN TH5110, TH5220, TH5320, TH6110, TH6220, TH6320, TH8110, TH8320 OU TH8321 EST UTILISÉ, UN RELAIS P...
Page 12 - Nettoyage; vérification effectuée.; Vérification; la commande d’humidité à un
Nettoyage Mettre le TrueDRY DR90/DR120 sous tension. Mettre la commande d’humidité à un pourcentage d’HR faible pour lancer l’appel de déshumidification. Confirmer que le compresseur et le ventilateur du TrueDRY DR90/ DR120 sont en marche. La soufflante de l’appareil de chauffage tourne aussi pour f...
Page 13 - Conversion de la position horizontale à la position verticale; Retirer le collet de conduit.
Système d’humidification TrueDRY DR90/DR120 69-2690EFS—04 34 Conversion de la position horizontale à la position verticale 2 Retirer le collet de conduit. 3 Faire tourner le collet à la position illustrée dans la figure et le replacer sur l’armoire. 4 Attacher de nouveau le collet de conduit à l’aid...
Page 14 - Description technique; Le TrueDRY DR90/DR120 utilise un système de
Système d’humidification TrueDRY DR90/DR120 69-2690EFS—04 35 Description technique Le TrueDRY DR90/DR120 utilise un système de réfrigération similaire à celui d’un climatiseur pour retirer la chaleur et l’humidité de l’air d’arrivée et ajouter de la chaleur à l’air soufflé. Le gaz frigorigène haute ...
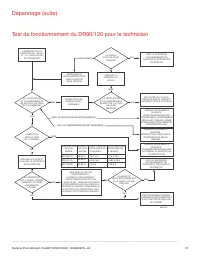
Page 16 - Test de fonctionnement du DR90/120 pour le technicien
Dépannage (suite) Test de fonctionnement du DR90/120 pour le technicien 80 F (26,7 C) HR 60 % 10 À 12,5 70 F (21,1 C) 8,5 À 10,5 60 F (15,6 C) 5 À 6,5 TEMPÉRATURE DE L'AIR ASPIRÉ HUMIDITÉ DE L'AIR ASPIRÉ DR90 : GALLONS RÉCUPÉRÉS EN 24 HEURES 13,5 À 16,5 10,25 À 12,5 7,25 À 9 DR120 : GALLONS RÉCUPÉRÉ...
Page 21 - Liste des pièces DR90; à la figure; Pieds de mise à niveau (1 paquet contient 4 pieds)
Liste des pièces DR90 Référence à la figure Pièces de base et accessoires Référence (dis- positif à code de date jusqu’au K12XXXXX) Référence (dispositif à code de date du L12XXXXX et ultérieur) 1 TrueDRY DR90A2000/u 2 Registre de ventilation motorisé EARD6 3 Registre de refoulement de 10 po (élimin...
Page 22 - Liste des pièces DR120
Liste des pièces DR120 Référence à la figure Pièces de base et accessoires Référence (dis- positif à code de date jusqu’au K12XXXXX) Référence (dispositif à code de date du L12XXXXX et ultérieur) 1 TrueDRY DR120A2000/u 2 Registre de ventilation motorisé EARD6 3 Registre de refoulement de 10 po (élim...
Page 23 - Solutions de régulation et d’automatisation; réparera le produit, à sa discrétion, dans un délai raisonnable.; Garantie limitée de 5 ans
Honeywell International Inc.1985 Douglas Drive NorthGolden Valley, MN 55422http://forwardthinking.honeywell.com Solutions de régulation et d’automatisation ® Marque de commerce déposée aux États-unis© 2013 Honeywell International Inc. 69-2690EFS—04 M.S. Rev. 01-13 Imprimé aux États-unis Honeywell ga...