Page 2 - TABLE OF CONTENTS/TABLE DES MATIÈRES
REFRIGERATOR SAFETY ............................................................. 3MODELS ......................................................................................... 4INSTALLATION REQUIREMENTS ................................................ 5 Tools and Parts .............................
Page 3 - SÉCURITÉ DU RÉFRIGÉRATEUR; Votre sécurité et celle des autres est très importante.; AVERTISSEMENT
27 SÉCURITÉ DU RÉFRIGÉRATEUR Risque possible de décès ou de blessure grave si vous ne suivez pas immédiatement les instructions. Risque possible de décès ou de blessure grave si vous ne suivez pas les instructions. Tous les messages de sécurité vous diront quel est le danger potentiel et vous disent...
Page 4 - MODÈLES
28 MODÈLES Série en acier inoxydable (modèles 36" [91,4 cm]) Se caractérise par un style enveloppant qui complète les poignées de porte galbées. Cette série procure un réfrigérateur encastré d’apparence commerciale.KBBL206ESS, KBBL306ESS, KBBR206ESS, KBBR306ESS Série Overlay (modèles 36" [91...
Page 5 - EXIGENCES D’INSTALLATION; Outils et pièces; Outils nécessaires
29 Série en acier inoxydable (modèles 42" [106.7 cm]) Se caractérise par un style enveloppant qui complète les poignées de porte galbées. Cette série procure un réfrigérateur encastré d’apparence commerciale.KBFN402ESS et KBFN502ESS Série en acier inoxydable noir (modèles 42" [106.7 cm]) KBF...
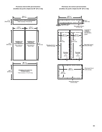
Page 6 - Exigences d’emplacement; Dimensions de l’ouverture
30 Exigences d’emplacement Le réfrigérateur peut être encastré dans une ouverture entre les armoires ou installé à l’extrémité d’une enfilade d’armoires en utilisant un panneau latéral pour encadrer le réfrigérateur. IMPORTANT : Cet appareil est destiné à un usage domestique et à d’autres usages sim...
Page 7 - Spécifications électriques; Méthode recommandée de liaison à la terre; Spécifications de l’alimentation en eau
31 Modèle Largeur A (telle qu’indiquée ci-dessus) Dimension B (telle qu’indiquée ci-dessus) 36" 35½" à 35¾" (90,2 cm à 90,8 cm) 4" (10,2 cm) 42" 41½" à 41¾" (105,4 cm à 106 cm) 7½" (19 cm) REMARQUE : Le revêtement de sol sous le réfrigérateur doit se trouver au même n...
Page 8 - Rayon de basculement; Vue latérale
32 6" (15,2 cm) 24" (60,96 cm) min. 1" (2,54 cm) ■ Le robinet d’arrêt d’eau doit être situé dans l’armoire inférieure d’un côté ou l’autre du réfrigérateur, ou à un autre endroit facilement accessible. Le côté droit est recommandé. Le trou d’accès à travers l’armoire doit se trouver à mo...
Page 10 - Dimensions pour l’ouverture des portes
34 Modèles de 42" (106,7 cm) *Lorsque les pieds de nivellement sont totalement déployés de 1¼" (3.2 cm) au-dessous des roulettes, ajouter 1¹⁄ 8 " (2,9 cm) à la hauteur totale. Dimensions pour l’ouverture des portes L’emplacement d’installation doit permettre l’ouverture de la porte à un ...
Page 11 - Dégagement des panneaux de porte de série Overlay et des armoires; Panneau décoratif
35 Dégagement des panneaux de porte de série Overlay et des armoires Les panneaux de porte personnalisés et les armoires adjacentes doivent être conçus de manière à laisser un espace suffisant pour permettre l’ouverture des portes. Si le réfrigérateur doit être installé près du mur, voir « Ouverture...
Page 13 - Panneaux personnalisés de série Overlay
37 Panneaux personnalisés de série Overlay Les panneaux personnalisés permettent d’harmoniser l’extérieur du réfrigérateur avec l’ensemble du décor de la cuisine et d’utiliser des poignées personnalisées pour une plus grande souplesse de design. Les panneaux personnalisés doivent être munis de panne...
Page 14 - Dimensions des panneaux personnalisés; Panneaux décoratifs personnalisés
38 7 1 / 4 " (18,42 cm) Dimensions des panneaux personnalisés Panneaux décoratifs personnalisés (modèles de porte simple de 36" [91,4 cm]) Panneaux de soutien personnalisés (Modèles de porte simple de 36" [91,4 cm]) 34 3 / 4 " (88,27 cm) 33 3 / 4 " (85,73 cm) 49 1 / 8 " (124,...
Page 17 - Ensembles de poignées de porte de série Overlay
41 Les modèles de série Overlay et en acier inoxydable de 36" et 42" sont dotés de la même garniture latérale de caisse Toutes les pièces d’origine sont disponibles par l’entremise de votre marchand KitchenAid ou en téléphonant à Pièces et accessoires KitchenAid au 1 800 442-9991. Au Canada,...
Page 18 - Déballage du réfrigérateur; Déplacement du réfrigérateur dans le
42 INSTRUCTIONS D’INSTALLATION Déballage du réfrigérateur IMPORTANT : ■ Ne pas ôter la pellicule de couverture avant que le réfrigérateur ne se trouve à son emplacement d’utilisation. ■ Les quatre roulettes doivent toucher le plancher pour supporter et stabiliser le poids total du réfrigérateur. ■ G...
Page 19 - Raccordement à la canalisation d’eau
43 Modèles de porte simple de 36" (91,4 cm) Modèles de porte à double battant de 36" (91,4 cm) et 42" (106,7 cm) 2. Placer des bouts du carton d’expédition sur le plancher lorsqu’on fait rouler le chariot et le réfrigérateur pour les faire entrer dans le domicile. Approcher le réfrigérat...
Page 23 - Installation du panneau de porte
47 REMARQUE : Si une planche antibasculement a été utilisée, ajuster les pieds de réglage de l’aplomb jusqu’à ce que la partie supérieure du réfrigérateur se situe à 1/4" (6,35 mm) du bas de la planche antibasculement (voir illustration). Ne pas écraser le couvercle du compresseur. IMPORTANT : A...
Page 24 - Panneau de la grille supérieure; Ajustement des portes; Alignement des portes
48 4. Réinstaller les garnitures et embouts de coin. 5. Enlever la pellicule des cache-vis. Enclencher les cache-vis dans la section de garniture de la poignée. Panneau de la grille supérieure 1. Saisir les deux extrémités de la grille supérieure. 2. Pousser la grille tout droit vers le haut, puis t...
Page 26 - Installation du panneau latéral
50 4. La butée de porte est située sur la charnière supérieure. 5. Ôter les 2 vis de butée de porte. ■ Pour ôter la vis extérieure (“A”) : Avec la porte fermée, appuyer fermement la bride en L contre la partie centrale du réfrigérateur jusqu’à ce que la vis soit exposée. ■ Pour ôter la vis intérieur...