Page 3 - Table des matières
Table des matières 3 Consignes de sécurité et mises en garde ....................................................... 5 Votre contribution à la protection de l'environnement .................................. 16 Description de l'appareil ..................................................................
Page 4 - Adaptation à un autre type de gaz
Table des matières 4 Instructions d'encastrement – standard.............................................................. 40Découpe du plan de travail – standard ............................................................... 42Barrettes de jonction – standard ..........................................
Page 5 - Consignes de sécurité et mises en garde
Consignes de sécurité et mises en garde 5 Cet appareil est conforme aux dispositions de sécurité en vigueur.Toute utilisation non conforme peut toutefois causer des dom-mages corporels et matériels. Lisez attentivement le mode d’emploi et les instructions de mon-tage avant de mettre la table de cuis...
Page 6 - Utilisation conforme; Cette table de cuisson est destinée à un usage domestique ou
Consignes de sécurité et mises en garde 6 Utilisation conforme Cette table de cuisson est destinée à un usage domestique ou dans des conditions d'utilisation semblables au cadre domestique. Cette table de cuisson ne convient pas à une utilisation en exté- rieur. Utilisez la table de cuisson ex...
Page 7 - Précautions à prendre avec les enfants
Consignes de sécurité et mises en garde 7 Précautions à prendre avec les enfants Tenez les enfants de moins de huit ans éloignés de la table de cuisson à moins qu'ils ne soient sous étroite surveillance. Les enfants âgés de huit ans et plus peuvent uniquement utiliser l'appareil sans surveillanc...
Page 8 - Sécurité technique; Une table de cuisson endommagée représente un danger poten-
Consignes de sécurité et mises en garde 8 Sécurité technique Des travaux d'installation, d'entretien ou de réparation non conformes peuvent entraîner de graves dangers pour l'utilisateur.Ces interventions doivent être exécutées exclusivement par des pro-fessionnels agréés par Miele. Une table de...
Page 10 - - le cas échéant, débrancher la prise murale sans tirer sur le cordon
Consignes de sécurité et mises en garde 10 Débranchez votre table de cuisson avant toute intervention (instal- lation, maintenance ou réparation). L'arrivée de gaz doit être fermée.Pour vous assurer que l'appareil est bien débranché, vous pouvez auchoix : - déclencher les fusibles, - dévisser comp...
Page 14 - L'utilisation d'une table de cuisson à gaz génère de la chaleur, de
Consignes de sécurité et mises en garde 14 L'utilisation d'une table de cuisson à gaz génère de la chaleur, de l'humidité et des résidus de combustion dans la cuisine. En particu-lier lorsque l'appareil fonctionne, la cuisine doit être bien aérée : lesouvertures d'aération naturelles doivent être ...
Page 15 - Nettoyage et entretien; La vapeur d'un nettoyeur vapeur pourrait parvenir sur des compo-
Consignes de sécurité et mises en garde 15 Nettoyage et entretien La vapeur d'un nettoyeur vapeur pourrait parvenir sur des compo- sants conducteurs et provoquer un court-circuit.N'utilisez surtout pas de nettoyeur vapeur pour nettoyer la table decuisson. Miele offre une garantie d'approvisionne...
Page 16 - Votre contribution à la protection de l'environnement; Nos emballages
Votre contribution à la protection de l'environnement 16 Nos emballages Nos emballages protègent votre appa-reil des dommages pouvant survenirpendant le transport. Nous les sélec-tionnons en fonction de critères écolo-giques permettant d'en faciliter le recy-clage. En participant au recyclage de vos...
Page 17 - Description de l'appareil; Table de cuisson
Description de l'appareil 17 Table de cuisson a Brûleur fort b Brûleur normal c Support de casseroles d Symboles pour l'affectation des boutons e Bouton de commande brûleur arrière f Bouton de commande brûleur avant
Page 20 - Accessoires fournis; FlameGuard
Description de l'appareil 20 Accessoires fournis Pour commander les accessoires desérie ou en option, veuillez vous repor-ter au chapitre « Accessoires en op-tion ». FlameGuard Pour installation entre le domino hotteet le domino au gaz SmartLine
Page 21 - Ustensiles de cuisson; Diamètre minimal du fond du réci-
Ustensiles de cuisson 21 Diamètre minimal du fond du réci- pient de cuisson [cm] Brûleur normal 12 Brûleur fort 14 Diamètre maximal haut du récipient de cuisson [cm] Brûleur normal 22 Brûleur fort 24 - Choisissez le récipient de cuisson de sorte qu'il soit adapté au brûleur :grand diamètre = grand b...
Page 22 - Première mise en service
Première mise en service 22 Veuillez coller la plaque signalétiquejointe aux documents accompagnantvotre appareil à l'emplacement prévuà cet effet sous « Service après-vente ». Enlevez les éventuels autocollants etfilms de protection. Nettoyer un domino SmartLinepour la première fois Nettoyez ...
Page 23 - Utilisation; Mise en marche; Risque d'incendie par suite de
Utilisation 23 Mise en marche Si vous utilisez le domino de cuissonà gaz à côté d'une hotte de table, lafonction du domino de cuisson gazest impactée.Placez le FlameGuard entre le domi-no de cuisson gaz et le dominohotte. Risque d'incendie par suite de surchauffe.Les aliments qui ne sont pas sur-v...
Page 24 - Régler le feu
Utilisation 24 Régler le feu L'intensité des flammes peut être régléeprogressivement entre feu fort et feudoux. Comme la partie extérieure de laflamme du gaz est plus chaude que lecœur de flamme, les pointes deflammes doivent rester sous le fondde la casserole. Des pointes deflammes qui dépassent tr...
Page 25 - - Après avoir démarré la cuisson de
Conseils d'économie d'énergie 25 - Si possible, couvrez toujours vos ali- ments pendant la cuisson. Vous évi-terez des déperditions de chaleur in-utiles. - Choisissez de préférence des casse- roles larges et planes, plutôtqu'étroites et hautes. Elles sont plusfaciles à chauffer. - Ajoutez très peu d...
Page 26 - Dispositifs de sécurité; pour continuer à utiliser la table
Dispositifs de sécurité 26 Sécurité d'allumage thermo-électrique Votre table de cuisson est équipéed'une sécurité d'allumage thermoélec-trique. Lorsque la flamme du gazs'éteint, par exemple en cas de sur-chauffe des aliments ou en cas de cou-rant d'air, l'arrivée de gaz est ver-rouillée, ce qui empê...
Page 27 - Risque de brûlure à cause de; Produits à ne pas utiliser; - de produit nettoyant à base de
Nettoyage et entretien 27 Risque de brûlure à cause de surfaces chaudes.Les surfaces, les supports de casse-role et les brûleurs restent trèschauds après la cuisson.Laissez refroidir la table de cuissonavant de la nettoyer. Dommages en cas de pénétra- tion d'humidité.N'utilisez jamais de nettoye...
Page 28 - taches
Nettoyage et entretien 28 Nettoyer la surface vitrocéra-mique Dommages causés par des ob- jets pointus.La bande d'étanchéité entre le domi-no SmartLine et le plan de travailpeut être endommagée.N'utilisez pas d'objets pointus pournettoyer votre appareil. Le liquide vaisselle n'élimine pastoutes le...
Page 29 - Retirez les supports de casseroles.
Nettoyage et entretien 29 Nettoyer les boutons de com-mande Nettoyez le/ les boutons de com-mande avec un chiffon, de l'eauchaude et un peu de liquide vaisselle.Ramollissez les salissures tenaces aupréalable. Séchez le/ les boutons de commandeavec un chiffon propre. Nettoyer les supports de cas-...
Page 30 - Nettoyer le brûleur
Nettoyage et entretien 30 Nettoyer le brûleur Ne lavez jamais les pièces des brû-leurs au lave-vaisselle ! La surface du couvercle de brûleur de-viendra plus mate au fil du temps.C'est tout à fait normal, et cela ne si-gnifie pas que le matériau est endom-magé. Retirez toutes les pièces amoviblesd...
Page 31 - Monter le brûleur
Nettoyage et entretien 31 Monter le brûleur Posez la tête du brûleur sur la base de sorte que le thermo- couple et l'électrode d'allumage se logent dans les trous de la tête. Latête du brûleur doit s'enclencher par-faitement. Posez le couvercle du brûleur à plat sur la tête . S...
Page 34 - Accessoires en option
Accessoires en option 34 Miele propose une large gamme d'ac-cessoires Miele parfaitement adaptés àl'entretien et au nettoyage de vos appa-reils. Pour les commander, il vous suffit devous rendre sur la boutique en ligneMiele. Ils sont également disponibles auprèsdu service après-vente Miele (voir la ...
Page 35 - Service après vente; Contact en cas d'anomalies
Service après vente 35 Contact en cas d'anomalies Vous n'arrivez pas à résoudre l'anomalie par vous-même ? Contactez le serviceaprès-vente Miele ou votre revendeur Miele. Vous pouvez prendre rendez-vous en ligne avec le service après-vente Mielesous www.miele.com/service. Les coordonnées du service ...
Page 36 - Installation; Consignes de sécurité pour le montage; Dommages liés à un montage incorrect.
Installation *INSTALLATION* 36 Consignes de sécurité pour le montage Dommages liés à un montage incorrect. Le domino SmartLine peut être endommagé en raison d'un montage incorrect.Faites installer le domino SmartLine uniquement par un technicien qualifié. Dommages liés à la chute d'objets. Le do...
Page 37 - Distances de sécurité
Installation *INSTALLATION* 37 Distances de sécurité Distance de sécurité au-dessus dudomino SmartLine La distance de sécurité prescrite par lefabricant de la hotte entre le dominoSmartLine et la hotte doit être respec-tée. Si des matériaux facilement inflam-mables (placards, par exemple) sontmontés...
Page 38 - Distance de sécurité latérale / arrière
Installation *INSTALLATION* 38 Distance de sécurité latérale / arrière Le domino SmartLine doit être installéde préférence en laissant un espace gé-néreux à droite et à gauche. À l'arrière du domino SmartLine, il fautrespecter la distance minimale indiquéeci-dessous par rapport à un meuble haut o...
Page 39 - Distance de sécurité avec la crédence
Installation *INSTALLATION* 39 Distance de sécurité avec la crédence Lorsqu'une crédence est posée, la distance minimale entre la découpe et la cré-dence doit être respectée, car les températures élevées peuvent abîmer ou dé-truire le matériau de la crédence. Pour une crédence en matériau inflammabl...
Page 40 - Plan de travail carrelé
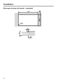
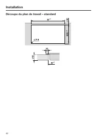
Installation *INSTALLATION* 40 Instructions d'encastrement – standard Joint entre le domino SmartLine et leplan de travail Si vous utilisez un produit d'étan-chéité pour joint entre le plan de tra-vail et le domino SmartLine, vous ris-quez d'endommager ce dernier encas de démontage éventuel.N'utilis...
Page 41 - Combinaison avec un domino hotte
Installation *INSTALLATION* 41 Encastrement de plusieurs dominosSmartLine Les joints entre les différents dominosSmartLine sont injectés avec un produitd'étanchéité à base de silicone thermo-résistant (minimum 160 °C). En casd'encastrement à fleur de plan, il fautde plus injecter les joints entre le...
Page 43 - Encastrement avec domino hotte
Installation *INSTALLATION* 43 Encastrement avec domino hotte Exemples de combinaison Nombre x largeur [mm] Dimen- sion B [mm] Éléments de cuisson Hotte de table 1 x 378 1 x 120 481 2 x 378 1 x 120 862 1 x 3781 x 620 2 x 120 1226 3 x 378 2 x 120 1365 2 x 3781 x 620 2 x 120 1607 4 x 378 2 x 120 1746 ...
Page 45 - Barrettes de jonction – standard; Encastrement de 3 dominos et 2 barrettes de jonction
Installation *INSTALLATION* 45 Barrettes de jonction – standard Si vous installez plusieurs appareils, vous devez placer des barrettes de jonctionentre eux. Vous n'avez besoin que des supports ci-joints pour l'installation d'un CS-DA 700x FL. Encastrement de 3 dominos et 2 barrettes de jonction
Page 46 - Cotes d'encastrement – standard; Toutes les dimensions sont indiquées en mm.
Installation *INSTALLATION* 46 Cotes d'encastrement – standard Toutes les dimensions sont indiquées en mm. a Avant b Boîtier de raccordement électrique avec câble de raccordementCâble de raccordement au réseau L = 2 000 mm c Raccordement gaz R ½ " ISO 7-1 (DIN EN 10226)
Page 47 - Installation – standard; Préparation du plan de travail
Installation *INSTALLATION* 47 Installation – standard Préparation du plan de travail Réalisez la découpe du plan de tra-vail. Respectez les distances desécurité (voir chapitre « Installation »,section « Distances de sécurité »). Pour éviter tout gonflement dû à l’hu-midité, scellez les bords de...
Page 48 - Encastrement du domino SmartLine
Installation *INSTALLATION* 48 Encastrement du domino SmartLine Collez le joint d'étanchéité fournisous le bord du domino SmartLine.Ne pas coller le joint d’étanchéitésous tension. Faites passer le câble d'alimentationélectrique vers le bas par la découpedu plan de travail. Posez le domino Sma...
Page 49 - Plans de travail en pierre naturelle
Installation *INSTALLATION* 49 Instructions d'encastrement – à fleur de plan L'encastrement à fleur de plan n'estpossible que dans un plan de travailen pierre naturelle (granit, marbre), enbois massif ou carrelé. Si votre plande travail est constitué d'un autre ma-tériau, demandez au fabricant si l'...
Page 51 - Découpe du plan de travail – à fleur de plan; Plan de travail en pierre naturelle
Installation *INSTALLATION* 51 Découpe du plan de travail – à fleur de plan B 0 50 A 524 50 0 + 1 + 1 ß R 4 B A 0 2 12 0 1 0 5,5 + 0,5 * / 7 + 0,5 0 2 12 0 1 0 5,5 + 0,5 * / 7 + 0,5 + 1 + 1 + 1 + 1 B A + 1 + 1 Plan de travail en pierre naturelle Plan de travail en bois * 7 + 0,5 mm pour CS 7611 FL
Page 54 - Barrettes de jonction – à fleur de plan
Installation *INSTALLATION* 54 Barrettes de jonction – à fleur de plan Si vous installez plusieurs appareils, vous devez placer des barrettes de jonctionentre eux. Vous n'avez besoin que des supports ci-joints pour l'installation d'un CS-DA 700x FL. Encastrement de 3 dominos et 2 barrettes de joncti...
Page 55 - Cotes d'encastrement – à fleur de plan
Installation *INSTALLATION* 55 Cotes d'encastrement – à fleur de plan Toutes les dimensions sont indiquées en mm. a Avant b Boîtier de raccordement électrique avec câble de raccordementCâble de raccordement au réseau L = 2 000 mm c Fraisage de gradins (voir les schémas détaillés au chapitre « Instal...
Page 56 - Installation – à fleur de plan
Installation *INSTALLATION* 56 Installation – à fleur de plan Préparation du plan de travail Réalisez la découpe du plan de tra-vail. Respectez les distances desécurité (voir chapitre « Installation »,section « Distances de sécurité »). Pour éviter tout gonflement dû à l’hu-midité, scellez les b...
Page 58 - Raccordement au gaz; Risque d'explosion en cas de
Installation *INSTALLATION* 58 Raccordement au gaz Risque d'explosion en cas de raccordement au gaz inapproprié.Si le raccordement au gaz n'est pascorrectement effectué, cela peut en-gendrer une fuite de gaz.Le raccordement au gaz doit être ef-fectué uniquement par un installateuragréé par le dist...
Page 59 - Risque d'explosion causé par
Installation *INSTALLATION* 59 Risque d'explosion causé par des câbles d'alimentation endomma-gés.Le gaz peut s'échapper en cas decâbles d'alimentation flexible en-dommagés.Placez les raccordements flexiblesde manière à ce qu'ils ne gênent pasles dominos mobiles de la cuisine(un tiroir, par exempl...
Page 60 - Puissance du brûleur
Installation *INSTALLATION* 60 Puissance du brûleur Puissance nominale Brûleur Type de gaz Réglage fort Réglage faible kW g/h kW Brûleur normal Gaz naturel H 1,7 – 0,3 Gaz liquide 1,7 124 0,25 Brûleur fort Gaz naturel H 2,7 – 0,5 Gaz liquide 2,6 189 0,6 Total Gaz naturel H 4,4 – – Gaz liquide 4,3 31...
Page 61 - Raccordement électrique
Installation *INSTALLATION* 61 Raccordement électrique Le domino SmartLine est équipé en sé-rie d'un raccordement prêt à l'emploi àune prise de sécurité. Installez le domino SmartLine de sorteque la prise soit facilement accessible.Si la prise n'est pas facilement acces-sible, vérifiez qu'un disposi...
Page 62 - Tableaux injecteurs
Adaptation à un autre type de gaz *INSTALLATION* 62 Risque d'explosion en cas de modification inappropriée.Si le passage à un autre type de gazn'est pas correctement effectué, legaz peut s'échapper.La modification à un autre type degaz doit être effectué uniquementpar un installateur agréé par le ...
Page 63 - Changer les injecteurs; Remplacer les injecteurs principaux
Adaptation à un autre type de gaz *INSTALLATION* 63 Changer les injecteurs Débranchez la table de cuisson du ré-seau électrique et fermez l'arrivée dugaz. Pour adapter l'appareil à un autre typede gaz, l'injecteur principal et le ou les injecteur(s) de réglage faible doiventêtre changés. Remplacer...
Page 64 - Vérifier le fonctionnement; Remontez la table de cuisson.
Adaptation à un autre type de gaz *INSTALLATION* 64 Assurez l'injecteur à l'aide d'un agentde scellage afin de prévenir tout des-serrage involontaire. Vérifier le fonctionnement Vérifiez l'étanchéité de toutes lespièces du circuit à gaz. Remontez la table de cuisson. Vérifiez le comportement...
Page 65 - Fiches de données de produits; Informations relatives aux tables de cuisson à gaz domestiques
Fiches de données de produits 65 Les fiches de données des modèles décrits dans le présent mode d'emploi et lesinstructions de montage figurent ci-après. Informations relatives aux tables de cuisson à gaz domestiques selon règlement (UE) N°66/2014 MIELE Identification du modèle CS 7102-1 Nombre de b...
Page 67 - Miele Experience Center Nice
9 avenue Albert Einstein - Z. I. du Coudray R.C.S. Bobigny B 708 203 088 55 Boulevard Malesherbes75008 Paris 30 rue du Bac75007 Paris Secteur Cap 3000285 avenue de Verdun06700 Saint-Laurent du Var MIELE FranceSiège social 93151 - Le Blanc-Mesnil CEDEX Miele Experience CenterParis Rive Gauche Miele E...