Page 3 - Table des matières
Table des matières 3 Consignes de sécurité et mises en garde ....................................................... 5 Votre contribution à la protection de l'environnement .................................. 16 Description de l'appareil ..................................................................
Page 5 - Consignes de sécurité et mises en garde
Consignes de sécurité et mises en garde 5 Cet appareil est conforme aux dispositions de sécurité en vigueur.Toute utilisation non conforme peut toutefois causer des dom-mages corporels et matériels. Lisez attentivement le mode d’emploi et les instructions de mon-tage avant de mettre la table de cuis...
Page 6 - Utilisation conforme; Cette table de cuisson est destinée à un usage domestique ou
Consignes de sécurité et mises en garde 6 Utilisation conforme Cette table de cuisson est destinée à un usage domestique ou dans des conditions d'utilisation semblables au cadre domestique. Cette table de cuisson ne convient pas à une utilisation en exté- rieur. Utilisez la table de cuisson ex...
Page 7 - Précautions à prendre avec les enfants
Consignes de sécurité et mises en garde 7 Précautions à prendre avec les enfants Tenez les enfants de moins de huit ans éloignés de la table de cuisson à moins qu'ils ne soient sous étroite surveillance. Les enfants âgés de huit ans et plus peuvent uniquement utiliser l'appareil sans surveillanc...
Page 8 - Sécurité technique; Une table de cuisson endommagée représente un danger poten-
Consignes de sécurité et mises en garde 8 Sécurité technique Des travaux d'installation, d'entretien ou de réparation non conformes peuvent entraîner de graves dangers pour l'utilisateur.Ces interventions doivent être exécutées exclusivement par des pro-fessionnels agréés par Miele. Une table de...
Page 10 - - le cas échéant, débranchez la prise de la fiche. Ne tirez pas sur le
Consignes de sécurité et mises en garde 10 - le cas échéant, débranchez la prise de la fiche. Ne tirez pas sur le câble mais sur la fiche. Risque d’électrocution ! N'allumez pas la table de cuisson si vous constatez que le plateau vitrocéramique est endommagé (craque-lures, fissures). Eteignez la ...
Page 14 - Le champ électromagnétique de la table de cuisson peut pertur-
Consignes de sécurité et mises en garde 14 Le champ électromagnétique de la table de cuisson peut pertur- ber le fonctionnement de certains objets, comme les cartes de cré-dit, les dispositifs de stockage de données ou les calculatrices parexemple. Tenez ces objets éloignés de la table de cuisson ...
Page 15 - Nettoyage et entretien; La vapeur d'un nettoyeur vapeur pourrait parvenir sur des compo-
Consignes de sécurité et mises en garde 15 Nettoyage et entretien La vapeur d'un nettoyeur vapeur pourrait parvenir sur des compo- sants conducteurs et provoquer un court-circuit.N'utilisez surtout pas de nettoyeur vapeur pour nettoyer la table decuisson. Si votre table de cuisson a été encastré...
Page 16 - Votre contribution à la protection de l'environnement; Nos emballages
Votre contribution à la protection de l'environnement 16 Nos emballages Nos emballages protègent votre appa-reil des dommages pouvant survenirpendant le transport. Nous les sélec-tionnons en fonction de critères écolo-giques permettant d'en faciliter le recy-clage. En participant au recyclage de vos...
Page 17 - Description de l'appareil; Table de cuisson; en grande zone de cuisson PowerFlex
Description de l'appareil 17 Table de cuisson a Zone de cuisson PowerFlex avec TwinBoosterCombinable avec zone PowerFlex en grande zone de cuisson PowerFlex b Zone de cuisson PowerFlex avec TwinBooster c Éléments de commande et d'affichage
Page 18 - Eléments de commande et d'affichage; Touches sensitives
Description de l'appareil 18 Eléments de commande et d'affichage Touches sensitives a Table de cuisson activée/désactivée b Stop&Gopour arrêter/ démarrer un processus de cuisson en cours c Protection nettoyagepour verrouiller les touches sensitives d Zones de cuisson PowerFlexpour connecter/déco...
Page 19 - Affichages/Diodes de contrôle; Caractéristiques de la zone de cuisson; son
Description de l'appareil 19 Affichages/Diodes de contrôle i Affectation des zones de cuisson Arrêt automatiqueL'arrêt automatique pour la zone de cuisson est activé j Chaleur résiduelle k BoosterLe Booster est activé l Affichage du minuteur : à : Durée Le verrouillage de la mise en marche...
Page 20 - Principe de fonctionnement; Bruits
Principe de fonctionnement 20 Une bobine à induction est placée souschaque zone de cuisson. Cette bobineproduit un champ magnétique qui agitdirectement sur le fond du récipient etle réchauffe. La chaleur dégagée par lefond du récipient réchauffe ensuite indi-rectement la zone de cuisson. L'induction...
Page 21 - Gestion de la puissance
Principe de fonctionnement 21 Gestion de la puissance La table de cuisson a une puissance to-tale maximale qui ne peut être dépas-sée pour des raisons de sécurité. Les 2 zones de cuisson sur la table decuisson sont reliées entre elles. Laconnexion permet de transférer unepuissance supplémentaire d'u...
Page 22 - Récipients de cuisson; Récipients de cuisson adaptés; - vous avez retiré l'ustensile de cuisson
Récipients de cuisson 22 Récipients de cuisson adaptés - inox à fond magnétique, - acier émaillé, - fonte. La qualité du fond de la casserole/poêlepeut influer sur l'homogénéité de lacuisson (lorsque vous souhaitez brunirune crêpe, par exemple). Le fond du ré-cipient doit répartir uniformément lacha...
Page 23 - Conseils
Récipients de cuisson 23 Conseils - Pour utiliser la zone de cuisson de manière optimale, choisissez un réci-pient dont le diamètre correspond(voir chapitre « Description de l'ap-pareil », section « Informations sur leszones de cuisson »). Si la casseroleest trop petite, celle-ci n'est pas dé-tectée...
Page 24 - Première mise en service
Première mise en service 24 Veuillez coller la plaque signalétiquejointe aux documents accompagnantvotre appareil à l'emplacement prévuà cet effet sous « Service après-vente ». Enlevez les éventuels autocollants etfilms de protection. Nettoyer un domino SmartLinepour la première fois Avant la ...
Page 25 - Utilisation; Principe de commande; que sur les autres
Utilisation 25 Principe de commande Votre domino SmartLine est équipé detouches sensitives électroniques qui ré-agissent au contact du doigt. Pour desraisons de sécurité, il faut appuyer pluslongtemps sur la touche sensitiveMarche / Arrêt que sur les autres touches, lors de la mise sous tension.L...
Page 26 - Risque d'incendie par suite de; Activer la table de cuisson; Effleurez la touche sensitive; Régler le niveau de puissance
Utilisation 26 Risque d'incendie par suite de surchauffe.Les aliments qui ne sont pas sur-veillés en cours de cuisson risquentde trop chauffer et de s'enflammer.Ne laissez pas l'appareil sans sur-veillance pendant qu'il fonctionne. Tenez compte du fait qu'une table decuisson à induction chauffe be...
Page 27 - Témoin de chaleur résiduelle; Risque de brûlure à cause de
Utilisation 27 Témoin de chaleur résiduelle Lorsqu'une zone de cuisson est brû-lante, l'affichage de la chaleur résiduelles'allume après désactivation. En fonc-tion de la température, un point apparaîtrespectivement sur les niveaux de puis-sance 1, 2 et 3. Les points de l'affichage de chaleur ré-sid...
Page 28 - Zone de cuisson PowerFlex
Utilisation 28 Zone de cuisson PowerFlex Les zones de cuisson PowerFlex sontautomatiquement réunies en un espacede cuisson PowerFlex, si vous position-nez un récipient assez grand (voir cha-pitre « Description de l'appareil », sec-tion « Table de cuisson »). Les réglagesde l'espace de cuisson sont c...
Page 29 - Début de cuisson automatique; ou
Utilisation 29 Début de cuisson automatique Quand la fonction « Début de cuissonautomatique » est activée, la zone decuisson atteint très vite sa puissancemaximale (phase de saisie) pour redes-cendre ensuite à la puissance sélection-née (phase de poursuite de cuisson). Letemps de saisie dépend de la...
Page 30 - Booster; Activer TwinBooster
Utilisation 30 Booster Les zones de cuisson sont équipéesd'un TwinBooster. Le Booster augmente la puissance decuisson pour chauffer rapidement lesgros volumes. Il permet par exemple defaire bouillir plus rapidement l'eau despâtes . Ce renforcement de puissancereste actif pendant 15 minutes au maxi-m...
Page 31 - Fonction maintien au chaud; - Mélangez régulièrement les aliments
Utilisation 31 Fonction maintien au chaud La fonction de maintien au chaud sertà maintenir la température des platschauds juste après leur préparation,mais pas pour réchauffer des platsfroids. La durée maximum de maintien auchaud est de 2 heures. - Pendant leur maintien au chaud, cou- vrez vos plats...
Page 34 - Timer; Fonction Minuterie; Régler la minuterie
Timer 34 Pour pouvoir utiliser le minuteur (Ti-mer), le domino doit être allumé. Le minuteur peut être utilisé pour2 fonctions : - régler la minuterie - régler l'arrêt automatique d'une zone de cuisson/résistance/zone du tep-pan. Vous pouvez utiliser les fonctions simul-tanément. Il est possible de ...
Page 35 - Arrêt automatique; Modifier l’heure d’arrêt
Timer 35 Arrêt automatique Il est possible de choisir au bout decombien de temps une zone de cuissondoit s’arrêter automatiquement. Cettefonction peut être utilisée simultané-ment pour toutes les zones de cuisson. Si la durée que vous avez sélection-née est supérieure au temps maximalde fonctionneme...
Page 37 - Fonctions supplémentaires
Fonctions supplémentaires 37 Stop&Go Pour l'activation du Stop&Go, le niveaude puissance de toutes les zones decuisson activées est réduite à 1.Vous ne pouvez plus modifier ni le ni-veau de puissance des zones de cuis-son ni le réglage du minuteur, la zonede cuisson peut uniquement être arrê...
Page 38 - Protection nettoyage; Activer; Mode démonstration; Description du modèle
Fonctions supplémentaires 38 Protection nettoyage Vous pouvez bloquer les touches sen-sitives du domino SmartLine pendant20 secondes, pour retirer les salis-sures par exemple. La touche sensi-tive n'est pas verrouillée. Activer Effleurez la touche sensitive . Dans l'affichage de la minuterie...
Page 39 - Dispositifs de sécurité
Dispositifs de sécurité 39 Verrouillage de la mise enmarche/Verrouillage Le verrouillage est désactivé en casde panne de courant. Votre domino SmartLine est équipéd'une sécurité enfants et d'une fonctionde verrouillage destinées à empêchertoute mise en marche intempestive dudomino, ainsi que toute m...
Page 40 - Sécurité oubli; Touches sensitives recouvertes
Dispositifs de sécurité 40 Sécurité oubli Touches sensitives recouvertes Dès que quelque chose recouvre unetouche sensitive pendant plus de 10 se-condes, par exemple un doigt, un ali-ment qui déborde ou un objet posé, ledomino SmartLine s'arrête instantané-ment. Le symbole clignote brièvement sur...
Page 41 - Sécurité anti-surchauffe; et
Dispositifs de sécurité 41 Sécurité anti-surchauffe Les bobines d'induction et les ventila-teurs du système électronique sontéquipés d'une protection anti-sur-chauffe. Cette dernière applique l'unedes mesures suivantes avant que ceséléments ne soient en surchauffe : Bobines d'induction - La fonction...
Page 42 - Programmation; Modifier la programmation
Programmation 42 Vous pouvez adapter la programmationdu domino SmartLine à vos besoins.Vous pouvez modifier les réglages lesuns après les autres. Une fois la programmation activée, lesymbole apparaît et dans l'affi- chage de la minuterie (Timer). Au boutde quelques secondes, clignotent alter-n...
Page 45 - Données à l'attention des instituts de contrôle; En usine, 9 niveaux de puissance sont programmés.
Données à l'attention des instituts de contrôle 45 Plats tests selon EN 60350-2 En usine, 9 niveaux de puissance sont programmés. Réglez l'extension des niveaux de puissance pour effectuer les contrôles selon lanorme (voir chapitre « Programmation »). Plat test Fond du récipient de cuisson (mm) Co...
Page 46 - Produits à ne pas utiliser; - de produit nettoyant à base de
Nettoyage et entretien 46 Risque de brûlure à cause de zones de cuisson chaudes.Les zones de cuisson restent trèschaudes après la cuisson.Éteignez la zone de cuisson.Laissez refroidir les zones de cuissonavant de nettoyer la table de cuis-son. Dommages en cas de pénétra- tion d'humidité.La vapeu...
Page 47 - taches
Nettoyage et entretien 47 Dommages causés par des ob- jets pointus.La bande d'étanchéité entre le domi-no SmartLine et le plan de travailpeut être endommagée.N'utilisez pas d'objets pointus pournettoyer votre appareil. Le liquide vaisselle n'élimine pastoutes les salissures ni tous les rési-dus.De...
Page 48 - Messages dans les affichages/ à l’écran; La sécurité enfants ou le verrouillage est activé.
En cas d'anomalie 48 Vous pouvez régler la plupart des défauts ou anomalies courants par vous-même.Dans bon nombre de cas, vous économiserez ainsi du temps et de l'argent carvous n'aurez pas besoin de faire appel au service après-vente. Les tableaux suivants vous aideront à déceler la cause d'un déf...
Page 50 - Comportement inattendu; Problème
En cas d'anomalie 50 Comportement inattendu Problème Cause et solution Le niveau de puissanceréglé clignote. Aucun récipient n'est posé sur la zone de cuisson oule récipient n'est pas adapté. Utilisez des récipients appropriés (voir chapitre« Induction », section « Récipients de cuisson »). Les to...
Page 52 - Résultat insatisfaisant; Problèmes d'ordre général ou anomalies techniques
En cas d'anomalie 52 Résultat insatisfaisant Problème Cause et solution La fonction Début decuisson automatiqueest enclenchée mais lecontenu de la casserolene cuit pas. De grandes quantités d'aliments sont en train de ré-chauffer. Augmentez le niveau de puissance au maximumpuis réduisez-le de nouv...
Page 54 - Accessoires en option; Chiffon microfibre
Accessoires en option 54 Miele propose une large gamme d'ac-cessoires Miele parfaitement adaptés àl'entretien et au nettoyage de vos appa-reils. Pour les commander, il vous suffit devous rendre sur la boutique en ligneMiele. Ils sont également disponibles auprèsdu service après-vente Miele (voir la ...
Page 55 - Service après vente; Contact en cas d'anomalies
Service après vente 55 Contact en cas d'anomalies Vous n'arrivez pas à résoudre l'anomalie par vous-même ? Contactez le serviceaprès-vente Miele ou votre revendeur Miele. Vous pouvez prendre rendez-vous en ligne avec le service après-vente Mielesous www.miele.com/service. Les coordonnées du service ...
Page 56 - Installation; Consignes de sécurité pour le montage; Dommages liés à un montage incorrect.; Les bois de placage du plan de travail doivent être traités avec
Installation *INSTALLATION* 56 Consignes de sécurité pour le montage Dommages liés à un montage incorrect. Le domino SmartLine peut être endommagé en raison d'un montage incorrect.Faites installer le domino SmartLine uniquement par un technicien qualifié. Risque d'électrocution en raison de la t...
Page 57 - Distances de sécurité
Installation *INSTALLATION* 57 Distances de sécurité Distance de sécurité au-dessus dudomino SmartLine La distance de sécurité prescrite par lefabricant de la hotte entre le dominoSmartLine et la hotte doit être respec-tée. Si des matériaux facilement inflam-mables (placards, par exemple) sontmontés...
Page 58 - Distance de sécurité latérale / arrière
Installation *INSTALLATION* 58 Distance de sécurité latérale / arrière Le domino SmartLine doit être installéde préférence en laissant un espace gé-néreux à droite et à gauche. À l'arrière du domino SmartLine, il fautrespecter la distance minimale indiquéeci-dessous par rapport à un meuble haut o...
Page 59 - - de l'arête supérieure du four doit être
Installation *INSTALLATION* 59 Distance minimale sous le dominoSmartLine Pour garantir une ventilation adéquatedu domino SmartLine, il est indispen-sable d'assurer une distance minimalesous la table de cuisson entre celui-ciet un four, une tablette ou un tiroir. La distance minimale entre le bord in...
Page 60 - Distance de sécurité avec la crédence
Installation *INSTALLATION* 60 Distance de sécurité avec la crédence Lorsqu'une crédence est posée, la distance minimale entre la découpe et la cré-dence doit être respectée, car les températures élevées peuvent abîmer ou dé-truire le matériau de la crédence. Pour une crédence en matériau inflammabl...
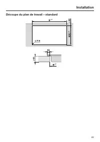
Page 61 - Plan de travail carrelé
Installation *INSTALLATION* 61 Instructions d'encastrement – standard Joint entre le domino SmartLine et leplan de travail Si vous utilisez un produit d'étan-chéité pour joint entre le plan de tra-vail et le domino SmartLine, vous ris-quez d'endommager ce dernier encas de démontage éventuel.N'utilis...
Page 62 - Combinaison avec un domino hotte
Installation *INSTALLATION* 62 Encastrement de plusieurs dominosSmartLine Les joints entre les différents dominosSmartLine sont injectés avec un produitd'étanchéité à base de silicone thermo-résistant (minimum 160 °C). En casd'encastrement à fleur de plan, il fautde plus injecter les joints entre le...
Page 64 - Encastrement avec domino hotte
Installation *INSTALLATION* 64 Encastrement avec domino hotte Exemples de combinaison Nombre x largeur [mm] Dimen- sion B [mm] Éléments de cuisson Hotte de table 1 x 378 1 x 120 481 2 x 378 1 x 120 862 1 x 3781 x 620 2 x 120 1226 3 x 378 2 x 120 1365 2 x 3781 x 620 2 x 120 1607 4 x 378 2 x 120 1746 ...
Page 66 - Barrettes de jonction – standard; Encastrement de 3 dominos et 2 barrettes de jonction
Installation *INSTALLATION* 66 Barrettes de jonction – standard Si vous installez plusieurs appareils, vous devez placer des barrettes de jonctionentre eux. Vous n'avez besoin que des supports ci-joints pour l'installation d'un CS-DA 700x FL. Encastrement de 3 dominos et 2 barrettes de jonction
Page 68 - Installation – standard; Préparation du plan de travail
Installation *INSTALLATION* 68 Installation – standard Préparation du plan de travail Réalisez la découpe du plan de tra-vail. Respectez les distances desécurité (voir chapitre « Installation »,section « Distances de sécurité »). Pour éviter tout gonflement dû à l’hu-midité, scellez les bords de...
Page 69 - Encastrement du domino SmartLine
Installation *INSTALLATION* 69 Encastrement du domino SmartLine Collez le joint d'étanchéité fournisous le bord du domino SmartLine.Ne pas coller le joint d’étanchéitésous tension. Faites passer le câble d'alimentationélectrique vers le bas par la découpedu plan de travail. Posez le domino Sma...
Page 70 - Plans de travail en pierre naturelle
Installation *INSTALLATION* 70 Instructions d'encastrement – à fleur de plan L'encastrement à fleur de plan n'estpossible que dans un plan de travailen pierre naturelle (granit, marbre), enbois massif ou carrelé. Si votre plande travail est constitué d'un autre ma-tériau, demandez au fabricant si l'...
Page 72 - Découpe du plan de travail – à fleur de plan; Plan de travail en pierre naturelle
Installation *INSTALLATION* 72 Découpe du plan de travail – à fleur de plan B 0 50 A 524 50 0 + 1 + 1 ß R 4 B A 0 2 12 0 1 0 5,5 + 0,5 * / 7 + 0,5 0 2 12 0 1 0 5,5 + 0,5 * / 7 + 0,5 + 1 + 1 + 1 + 1 B A + 1 + 1 Plan de travail en pierre naturelle Plan de travail en bois * 7 + 0,5 mm pour CS 7611 FL
Page 75 - Barrettes de jonction – à fleur de plan
Installation *INSTALLATION* 75 Barrettes de jonction – à fleur de plan Si vous installez plusieurs appareils, vous devez placer des barrettes de jonctionentre eux. Vous n'avez besoin que des supports ci-joints pour l'installation d'un CS-DA 700x FL. Encastrement de 3 dominos et 2 barrettes de joncti...
Page 76 - Cotes d'encastrement – à fleur de plan
Installation *INSTALLATION* 76 Cotes d'encastrement – à fleur de plan Toutes les dimensions sont indiquées en mm. a Avant b Câble d'alimentation électrique, L = 2 000 mm c Fraisage de gradins (voir les schémas détaillés au chapitre « Installation », sec-tion « Découpe du plan de travail pour encastr...
Page 77 - Installation – à fleur de plan
Installation *INSTALLATION* 77 Installation – à fleur de plan Préparation du plan de travail Réalisez la découpe du plan de tra-vail. Respectez les distances desécurité (voir chapitre « Installation »,section « Distances de sécurité »). Pour éviter tout gonflement dû à l’hu-midité, scellez les b...
Page 79 - Branchement électrique; Dommages liés à un raccorde-
Installation *INSTALLATION* 79 Branchement électrique Dommages liés à un raccorde- ment incorrect.Des travaux d'installation, d'entretienou de réparation non conformespeuvent entraîner de graves dangerspour l'utilisateur. Miele ne saurait être tenue respon-sable des dommages causés pardes travaux ...
Page 80 - Mise hors tension
Installation *INSTALLATION* 80 Mise hors tension Risque d'électrocution en raison de la tension réseau.Lors de travaux de réparation et/oude maintenance, un réenclenche-ment de la tension réseau peut être àl'origine d'une électrocution.Après la coupure, protégez le réseaucontre les remises sous te...
Page 81 - Fiches de données de produits
Fiches de données de produits 81 Les fiches de données des modèles décrits dans le présent mode d'emploi et lesinstructions de montage figurent ci-après. Informations relatives aux tables de cuisson électriques domes-tiques selon règlement (UE) N°66/2014 MIELE Identification du modèle CS 7612 Nombre...
Page 83 - Miele Experience Center Nice
9 avenue Albert Einstein - Z. I. du Coudray R.C.S. Bobigny B 708 203 088 55 Boulevard Malesherbes75008 Paris 30 rue du Bac75007 Paris Secteur Cap 3000285 avenue de Verdun06700 Saint-Laurent du Var MIELE FranceSiège social 93151 - Le Blanc-Mesnil CEDEX Miele Experience CenterParis Rive Gauche Miele E...