Miele F 2813 Vi - Manuels
Manuel d'utilisation Miele F 2813 Vi




























































































































Résumé
Table des matières 2 Consignes de sécurité et mises en garde ....................................................... 5 Votre contribution à la protection de l'environnement .................................. 17 Installation ...............................................................................
Table des matières 3 Accessoires ....................................................................................................... 62 Accessoires fournis ............................................................................................. 62Accessoires en option .........................
Consignes de sécurité et mises en garde 5 Cet appareil est conforme aux dispositions de sécurité en vigueur.Toute utilisation non conforme peut toutefois causer des dom-mages corporels et matériels. Lisez attentivement le mode d'emploi et les instructions de mon-tage avant de mettre l'appareil en se...
Consignes de sécurité et mises en garde 6 Utilisation conforme Cet appareil est conçu pour un usage ménager dans un environ- nement domestique ou similaire, par exemple :– dans des magasins, des bureaux ou d'autres environnements detravail similaires– dans des exploitations agricoles– par des clie...
Consignes de sécurité et mises en garde 7 Précautions à prendre avec les enfants Tenez les enfants de moins de 8 ans éloignés de l'appareil à moins qu'ils ne soient sous étroite surveillance. Les enfants de huit ans et plus ne sont autorisés à utiliser l'ap- pareil sans surveillance que s'il leu...
Consignes de sécurité et mises en garde 8 Sécurité technique Le circuit frigorifique a été testé pour détecter les fuites. L'appareil est conforme aux consignes de sécurité en vigueur et aux directiveseuropéennes en vigueur. Cet appareil frigorifique contient du fluide frigorigène isobutane (R60...
Consignes de sécurité et mises en garde 9 Les données de raccordement (tension et fréquence) figurant sur la plaque signalétique de l'appareil doivent impérativement corres-pondre à celles du réseau électrique pour éviter d'endommagervotre appareil. Comparez ces données avant de brancher votre app...
Consignes de sécurité et mises en garde 12 Si vous conservez des aliments contenant de la graisse ou de l'huile dans la contreporte, veillez à ce que la graisse ou l'huile nefuient pas sur les pièces en plastique de l'appareil. Des fissuresrisquent d'apparaître dans le plastique qui peut casser. ...
Consignes de sécurité et mises en garde 13 Ne consommez pas d'aliments qui ont dépassé la date limite de congélation : vous risquez une intoxication ! La durée de conserva-tion des aliments dépend de nombreux facteurs dont leur degré defraîcheur, leur qualité et leur température de conservation. R...
Consignes de sécurité et mises en garde 14 Accessoires et pièces détachées Utilisez exclusivement des accessoires d'origine Miele. Le mon- tage d'autres pièces exclut le bénéfice de la garantie. Miele offre une garantie d'approvisionnement de 10 ans minimum et jusqu'à 15 ans pour le maintien en ...
Consignes de sécurité et mises en garde 15 Transport L'appareil doit impérativement être transporté à la verticale et dans son emballage afin de ne subir aucun dommage. Risque de dommages corporels et matériels ! L'appareil étant très lourd, transportez-le toujours à l'aide d'une deuxième person...
Consignes de sécurité et mises en garde 16 Les projections d'agent réfrigérant peuvent provoquer des lésions oculaires ! N'endommagez aucune partie du circuit de refroidisse-ment, par exemple - ne percez jamais les conduits de l'évaporateur contenant du frigo- rigène, - ne coudez pas les conduits,...
Votre contribution à la protection de l'environnement 17 Nos emballages Nos emballages protègent votre appa-reil des dommages pouvant survenirpendant le transport. Nous les sélec-tionnons en fonction de critères écolo-giques permettant d'en faciliter le recy-clage. En participant au recyclage de vos...
Installation *INSTALLATION* 18 Lieu d'installation Choisissez une pièce très peu humideque vous pouvez aérer facilement. Au moment de choisir le lieu d'installa-tion, gardez à l'esprit que la consom-mation énergétique de l'appareil aug-mente lorsqu'il est à proximité immé-diate d'un chauffage, d'une...
Installation *INSTALLATION* 19 Risque de dommages dû à un taux d'humidité élevé.Lorsque le taux d'humidité est élevé,de la condensation peut s'accumulersur les parois extérieures de l'ap-pareil et peut engendrer de la corro-sion.Nous recommandons d'installer l'ap-pareil dans une pièce sèche et/ouc...
Installation *INSTALLATION* 20 Charge admissible du sol de niche Pour un montage sécurisé de l'appareilet afin de garantir son bon fonctionne-ment, le sol doit être plat et bien à l'ho-rizontale. Par ailleurs, il doit être constitué d'unmatériau dur et rigide. En raison du poids important de l'ap-pa...
Installation *INSTALLATION* 21 Installation côte à côte (side by side) Cet appareil peut être installé à côtéd'un autre appareil frigorifique en confi-guration « side by side ». Dans l'aperçuci-dessous, vous pouvez voir quellessont les configurations de montage sideby side avec votre appareil. Pour ...
Installation *INSTALLATION* 22 . . . sans paroi de séparation Si les deux appareils de froid ne sontpas séparés par une paroi de sépara-tion, ils doivent être reliés l'un à l'autregrâce au kit de montage side by side. Ilfaut également installer le chauffage la-téral pour éviter la formation d'eau de...
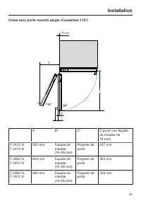
Installation *INSTALLATION* 25 Cotes avec porte ouverte (angle d’ouverture 115°) 10 mm D A B C A B* C* D (pour une façadede meuble de19 mm) F 2412 Vi, F 2413 Vi 525 mm Façade demeuble(19–38 mm) Poignée deporte 237 mm F 2802 Vi, F 2812 Vi 829 mm Façade demeuble(19–38 mm) Poignée deporte 363 mm F 2902...
Installation *INSTALLATION* 28 Encastrement de l'appareil Avant de commencer Lisez attentivement le mode d'emploiet les instructions de montage avantde mettre l'appareil en service.L'appareil de froid doit être installépar un installateur qualifié en suivantle mode d’emploi et les instructionsde mon...
Installation *INSTALLATION* 29 Poids de la façade de meuble Avant de monter la façade du meuble,vérifiez que le panneau qui la composene dépasse pas le poids maximal auto-risé : Appareil de froid Poids max. dela façade demeuble F 2412 Vi, F 2413 Vi 59 kg F 2802 Vi, F 2812 Vi 28 kg F 2902 Vi, F 2912 ...
Installation *INSTALLATION* 30 Contrôler la niche d'encastrement Contrôlez la niche d'encastrement(voir chapitre « Installation », section« Cotes d'encastrement »). Vérifiez la position du branchementélectrique. La longueur du câble d'ali-mentation électrique est de 3 m. La prise de courant ne d...
Installation *INSTALLATION* 31 Avant d'encastrer votre appareil Avant d'encastrer l'appareil, retirezles accessoires de la face extérieurede l'appareil. Risque de dommages en raison d'une aération insuffisante.Si l'appareil de froid n'est pas suffi-samment aéré, cela peut entraîner laformation d...
Installation *INSTALLATION* 32 2 Dévissez les équerres de fixation . Mettez-vous à plusieurs pour soule-ver l'appareil de la palette en faisantbien attention et en commençant parle dos de l'appareil. Risque de dommages si le sol est trop sollicité.Le déplacement de l'appareil frigori-fique p...
Installation *INSTALLATION* 33 Les équerres anti-basculement em-pêchent l'appareil de basculer. En outre, les équerres anti-basculementaident à fixer solidement la niche d'en-castrement aux murs qui sont autour. Pour chaque appareil, utilisez2 équerres anti-basculement , et si vous combinez 2 ap...
Installation *INSTALLATION* 34 Dans le paquet joint se trouvent desvis de fixation pour différents typesd'utilisation/de matériaux. Fixation à un mur en béton Fixation à un mur en bois Fixation avec cale en bois Utilisez à présent les équerres anti-basculement pour fixer si besoin la niche d'enc...
Installation *INSTALLATION* 35 Insérer l'appareil dans la niche d'en-castrement Lors de l'insertion de l'appareil,veillez à ne pas endommager le rac-cordement électrique ni le raccorde-ment à l'eau courante. Si vous souhaitez effectuer une instal-lation side by side de plusieurs appa-reils frigorifi...
Installation *INSTALLATION* 36 Poussez l'appareil dans la niche enfaisant très attention. S'il n'est pas possible d'insérer aisé-ment l'appareil dans la niche d'en-castrement, par ex. parce que le fondest irrégulier, dévissez légèrement lespieds réglables situés à l'arrière (voirchapitre « Insta...
Installation *INSTALLATION* 37 Épaisseur de la façade de meuble 38 mm Les pieds avant et arrière peuvent êtreréglés en hauteur et par l'avant del'appareil. Risque d'endommagement en cas de réglage inapproprié despieds.Le réglage des pieds peut être faus-sé avec l'utilisation d'une visseusesans fil...
Installation *INSTALLATION* 38 Réglez les pieds arrière à l'aide d'uneclé à cliquet (embout : douille, 8 mm)ou d'un tournevis (TX 20) . Réglez les pieds avant à l'aide d'uneclé à cliquet (embout : douille, 8 mm)ou d'un tournevis (TX 20) . Conseil : pour dévisser les pieds ré- glables, proc...
Installation *INSTALLATION* 39 Pour équilibrer l'appareil frigorifique,placez un niveau à bulles sur les dis-positifs de réglage de la porte de l'appareil. Dévissez les pieds réglables et sur les deux côtés jusqu'à ce que lerepère visible sur le socle se retrouveau moins à la hauteur de ...
Installation *INSTALLATION* 40 Si vous n'avez pas la possibilité de fixerla partie haute de l'appareil frigorifique,nous vous conseillons de le fixer avecdes languettes latérales dans la niched'encastrement : Rabattez les languettes de fixation la-térales . Vissez les languettes de fixation l...
Installation *INSTALLATION* 41 Préparation du montage de la façadedu meuble Ouvrez la porte de l'appareil jusqu'àla butée. Dévissez les dispositifs de réglage de la porte. Dévissez les équerres d'angle des deux côtés de la porte et mettez leséquerres et les vis de côté. Vous enaurez beso...
Installation *INSTALLATION* 43 Selon la taille, utilisez 6 à 10 vis pourfixer le cadre de montage à la par- tie supérieure du panneau de façade. Le cadre de montage est équipé d'unnombre de trous suffisant pours'adapter aux différents modèles depanneaux de façade. Choisissez toujours le matériau...
Installation *INSTALLATION* 44 Fixer et ajuster la façade de meuble Ouvrez la porte de l'appareil et sus-pendez la façade du meuble avec lecadre de montage dans les bou- lons filetés à partir du haut. Appuyez sur les deux côtés deséquerres d'angle dans le cadre en plastique blanc et vis...
Installation *INSTALLATION* 45 Fermez la porte de l'appareil et véri-fiez la distance entre celle-ci et les fa-çades de meuble avoisinantes. Réglez la profondeur de la façade demeuble grâce aux orifices deséquerres d'angle . Ajustez la façade sur les côtés et enhauteur à l'aide des boulons f...
Installation *INSTALLATION* 46 Monter l'équerre de fixation L'équerre de fixation permet de fixer lebas de la façade de meuble à la portede l'appareil. Montez l'équerre de fixation seule-ment après avoir encastré l'appareil(en configuration side-by-side le caséchéant) et installé la façade demeuble....
Installation *INSTALLATION* 47 Vissez la vis située sous la porte del'appareil. Montez le cache sur l'équerre de fixation . Fixez le cache sur l'équerre de fixation jusqu'au déclic.
Installation *INSTALLATION* 48 Fixer les caches Pour pouvoir fixer le cache dans l'interstice au-dessus de l'appareil,vous devez assembler le cachecomme suit : Emboîtez les deux pièces du cache. Vue de côté Insérez le cache dans l'interstice au-dessus de l'appareil jusqu'à cequ'il s'encliq...
Installation *INSTALLATION* 50 Fixer la grille de ventilation du socleet la plinthe Encliquetez la grille de ventilation dusocle en bas dans le socle de l’ap- pareil. Si besoin est, coupez le panneau desocle à la bonne longueur et à labonne hauteur (entre le rebord infé-rieur du socle et le s...
Installation *INSTALLATION* 51 Raccordement à l'eau cou-rante Instructions pour le raccordement àl'eau courante Risque de dommages corporels et matériels lié à un raccordementnon conforme.Un raccordement non conforme peutentraîner des blessures corporelleset/ou des dommages matériels.Seuls des pro...
Installation *INSTALLATION* 52 Remplacez exclusivement un tuyauen inox défectueux par un tuyau derechange d'origine Miele. Vous pou-vez vous procurer le tuyau en inoxpour contact alimentaire dans laboutique en ligne Miele, auprès duservice après-vente Miele ou devotre revendeur Miele. Un robinet d'a...
Installation *INSTALLATION* 53 Branchement électrique L'appareil doit exclusivement être rac-cordé à une prise avec mise à la terre, àl'aide du câble d'alimentation joint. Installez l'appareil de froid, de sorte quela prise soit facilement accessible. Si laprise n'est pas facilement accessible,vérif...
Économies d'énergie 56 Consommation énergétiquenormale Consommation énergétiqueélevée Utilisation Agencement des tiroirs et destablettes conforme à la sortied'usine. Ouvrir la porte si nécessaireseulement et la refermer leplus vite possible. Bien rangervos aliments. Le fait d'ouvrir souvent et long-...
Description de l'appareil 57 F 2412 Vi, F 2413 Vi a Affichage b Bouton Marche/Arrêt c Balconnet de contreporte d Éclairage intérieur e Tablettes f Fabrique à glaçons g Bac à glaçons h Paniers de congélation i Ouverture automatique de porte (Push2open/Pull2open) j Filtre à eau
Description de l'appareil 59 Écran principal °C -18 1 2 3 4 5 a Affichage SuperFrost(visible uniquement lorsque la fonction SuperFrost est activée) b Affichage de température de consigne c Touche sensitive de réglage de la température d Affichage Miele@home, statut de la connexion (visi...
Description de l'appareil 60 Mode Réglages Le mode Réglages permet de modifier les fonctions suivantes : Sym-bole Fonction Langue régler Luminosité régler (plus sombre à plus clair) Schéma de couleurs régler (sombre ou clair) / Signaux sonores régler le volume ou désactiver totalement les ...
Description de l'appareil 61 Miele@home configurer, désactiver ou demander le statut de laconnexion Wi-Fi (voir chapitre « Autres réglages ») * Mode expo désactiver * (visible uniquement si le Mode expo est activé, voir chapitre « Autres réglages ») Réglages usine réinitialiser les réglages d'...
Accessoires 62 Accessoires fournis Fiche de l'appareil Filtre à eau (filtre à tamis Intensive-Clear) Le filtre à tamis IntensiveClear installédans l'appareil frigorifique filtre l'eaucourante pour la préparation de gla-çons. Le filtre à tamis IntensiveClear ne doitpas être remplacé, il suffit de le ...
Accessoires 63 Kit de montage “side-by-side” Pour un montage « side by side » dedeux appareils l’un à côté de l’autre. Élément de charnière S’il faut changer la butée de porte devotre appareil, la grille inférieure d’aéra-tion doit être démontée. Pour ce faire, ilvous faut un élément de charnière. S...
Première mise en service 64 Avant la première utilisation Après le transport, laissez l'appareilfrigorifique reposer pendant env.1 heure avant de le raccorder. Vous éviterez ainsi d'éventuels dys-fonctionnements de l'appareil. Emballages de transport Retirez tous les matériaux d'embal-lage qui se ...
Première mise en service 65 Miele@home Votre appareil est équipé d'un moduleWi-Fi intégré. La mise en réseau est désactivée pardéfaut. Pour utiliser cette fonctionnalité, il vousfaut : - un réseau Wi-Fi - l'App Miele - un compte utilisateur Miele. Vous pouvez créer votre compte utilisateurvia l'App ...
Première mise en service 66 Utiliser l'appareil Les objets pointus ou tranchants,tels que des crayons ou des stylos,peuvent rayer l'écran tactile.Effleurez l'écran tactile avec lesdoigts uniquement. Si votre doigt est froid, il est possibleque l'écran tactile ne réagisse pas. °C -18 Les to...
Mise en marche et arrêt de l'appareil 68 Allumer l'appareil Ouvrez la porte de l'appareil. Appuyez sur le bouton Marche/Arrêtpour allumer l'appareil. L'appareil frigorifique commence à pro-duire du froid et l'éclairage intérieur s'al-lume chaque fois que la porte est ou-verte. Miele puis la page...
Mise en marche et arrêt de l'appareil 69 En cas d'absence prolongée Si l'appareil doit rester longtemps sansfonctionner : Arrêtez l'appareil. Débranchez l'appareil ou désactivezle fusible de l'installation domestique. Risque de dommages dû à un tuyau d'arrivée d'eau gelé.Si vous coupez l'arriv...
Autres réglages 70 Le mode Réglages vous permet de sélectionner différentes fonctions del'appareil et de modifier en partie leursparamètres pour mieux adapter l'ap-pareil à vos besoins. Vous trouverez ci-dessous la descrip-tion des fonctions du mode de ré-glage nécessitant des explications supp...
Autres réglages 71 Activer ou désactiver Mode éco Le Mode éco est recommandé par ex. pendant les vacances, si vous ne vou-lez pas complètement débrancher votreappareil mais que vous n’avez pas be-soin d’une grande puissance de réfrigé-ration. La consommation d’énergie estplus faible en Mode éco qu...
Autres réglages 72 Effectuer un Auto test Effectuez un Auto test si vous avez l'im- pression que votre appareil ne fonc-tionne pas parfaitement et qu'il doit êtrecontrôlé en vue de détecter d'éventuelsdéfauts. En mode Réglages , utilisez les touches et pour sélectionner la fonction Auto ...
Autres réglages 73 Activer l' Assistant de porte Vous avez le choix entre les deux assis-tants de porte Push2open et Pull2open . L'assistant Push2open est paramétré par défaut. L'assistant de porte Push2open convient pour les façades de meuble sans poi-gnées. Exercez une légère pression surla po...
Autres réglages 74 - Régler la durée d'AutoClose Vous pouvez également régler la duréed'ouverture de la porte de l'appareil jus-qu'à sa fermeture automatique. En mode Réglages , utilisez les touches et pour sélectionner la fonction Assistant de porte puis validez avec OK . En mode Réglage...
Autres réglages 75 Désactiver l'Assistant deporte En mode Réglages , utilisez les touches et pour sélectionner la fonction Assistant de porte puis validez avec OK . Sélectionnez Mode à l'aide des touches sensitives et puis vali- dez en appuyant sur OK . Sélectionnez désactivé à ...
Autres réglages 76 Activer Miele@home Vous devez réactiver la mise en réseaudans le cas où vous avez activéMiele@home une fois au préalable etque la connexion a ensuite été inter-rompue. En mode Réglages , utilisez les touches et pour sélectionner la fonction Miele@home puis validez avec OK...
Autres réglages 77 Désactiver le Mode expo Le mode Expo permet aux revendeursde présenter l'appareil sans activer la production de froid . Ce réglage n'est d'aucune utilité pour le particulier. Si le mode Expo a été activé à l'usine, s'affiche à l'écran. En mode Réglages , utilisez les tou...
Autres réglages 78 Réinitialiser les réglages d'usine Vous pouvez réinitialiser les réglages de l'appareil frigorifique aux réglagesd'usine. Avant de mettre au rebut votre appareil frigorifique, de le vendre, ou de mettre enservice un appareil frigorifique d’occasion, réinitialisez ses paramètres ...
Autres réglages 81 Activer, désactiver ou réinitiali-ser le Témoin du filtre à eau Le Témoin du filtre à eau vous rappelle que le filtre à eau doit être nettoyé tousles 6 mois environ, selon la quantité deglaçons produite. L’écran affiche : Net- toyer le filtre à eau . La procédure de nettoyage d...
Autres réglages 82 Réinitialiser le Témoin du filtre à eau Une fois le filtre à eau nettoyé, vous de-vez réinitialiser le Témoin du filtre à eau pour qu'il puisse à nouveau être affichéaprès une période de 6 mois. Si vous ne réinitialisez pas le rappel, ilréapparaîtra sans cesse. En mode Réglage...
La bonne température 83 Il est primordial de sélectionner unetempérature correcte afin de bienconserver les aliments. Ceux-cis'abîment vite sous l'action de micro-organismes. Une bonne température deconservation peut retarder, voire empê-cher la dégradation des aliments. En ef-fet, la température in...
Utilisation de la fonction SuperFrost 85 Fonction SuperFrost Enclenchez la fonction SuperFrost afinde congeler les aliments frais dans lesmeilleures conditions. Cette fonction permet de congeler lesaliments à cœur rapidement afin de pré-server leurs valeurs nutritives, leurs vita-mines, leur aspe...
Alarme de température et de porte 86 L'appareil est équipé d'un systèmed'alarme qui vous avertit lorsque latempérature augmente accidentelle-ment et permet ainsi d'éviter une déper-dition d'énergie si la porte est restéeouverte. Alarme de température Si la température de la zone de congé-lation dépa...
Alarme de température et de porte 87 Désactiver l'alarme de température Avant de désactiver l'alarme de tem-pérature, il est nécessaire de déter-miner et éliminer la cause del'alarme. Si l'alarme vous dérange, vous pouvezl'interrompre avant la fin. Effleurez la touche sensitive OK . Le signal sono...
Aménagement intérieur 88 Déplacer ou retirer les balcon-nets de contreporte Déplacez ou retirez les balconnetsuniquement lorsqu'ils sont vides. Saisissez le balconnet à deux mainsau niveau du cadre et faites-le re-monter un peu, de sorte que les deuxergots sortent du guidage. Retirez le balconne...
Aménagement intérieur 89 Retirer la tablette au-dessusde la fabrique à glaçons Saisissez par le dessous le devant dela tablette et appuyez des deux côtéssur la languette . Veillez à ne pas endommager les pa-rois de l'appareil lorsque vous retirezou réinsérez la tablette. Sortez la tablette en ...
Aménagement intérieur 90 Pour défaire les supports, insérez unobjet approprié dans la fente pourfaire tourner les chevilles en positionhorizontale (1.). Sortez les chevilles des supports (2.). Sortez la paroi en la tirant d'un coupvers le haut. Pour réinstaller la paroi de séparation,mettez ...
Congélation et conservation 92 Capacité maximale de congé-lation Pour garantir que les aliments soientcongelés à cœur le plus rapidementpossible, la capacité de congélationmaximale ne doit pas être dépassée. Lacapacité de congélation maximale dansles 24 heures est indiquée sur la plaquesignalétique ...
Congélation et conservation 93 Congélation de produits Ne congelez que des produits frais etde première qualité ! Conseils pour la congélation - Peuvent être congelés : la viande fraîche, la volaille, le gibier,le poisson, les légumes, les finesherbes, les fruits crus, les produitslaitiers, le pain...
Congélation et conservation 94 Conseil : Vous pouvez bien entendu utiliser un appareil pour souder les sacset films de congélation. Inscrivez le contenu et la date decongélation sur l'emballage. Avant la congélation Si vous devez congeler plus de 2 kgde produits frais, activez la fonctionSuperfr...
Congélation et conservation 96 Rafraîchissement rapide deboissons Si vous placez des bouteilles dans lecongélateur pour les refroidir plus rapi-dement, enlevez-les au bout d'une heure maximum , sinon elles risquent d'éclater.
Production de glaçons 97 Pour fonctionner, la fabrique automa-tique de glaçons a besoin d'être rac-cordée à l'eau courante (voir chapitre« Installation », section « Raccorde-ment à l'eau courante »). Risque sanitaire en raison de la prolifération de germes dans l'eau.La consommation d'une eau cont...
Production de glaçons 98 Désactiver la fabrique de glaçons Si vous ne souhaitez plus produire deglaçons, vous pouvez désactiver la fa-brique automatique de glaçons indé-pendamment de la zone de congéla-tion. Fermez le robinet d'arrêt de l'arrivéed'eau env. 3 heures avant de mettrel'appareil frigor...
Dégivrage automatique 99 L'appareil est pourvu d'un système« NoFrost » permettant d'assurer sondégivrage automatique. L'humidité pouvant être présente dansla zone de congélation se liquéfie dansl'évaporateur et est automatiquementdégivrée et évaporée à intervalles régu-liers. Grâce au dégivrage auto...
Nettoyage et entretien 100 Veuillez vous assurer que l'eau nepénètre pas dans l'électronique nidans l'éclairage. Risque d'endommagement en cas de pénétration d'humidité.La vapeur d'un nettoyeur vapeurpeut endommager les plastiques etles composants électriques.N'utilisez en aucun cas de nettoyeurva...
Nettoyage et entretien 101 Avant le nettoyage Appuyez sur le bouton Marche/Arrêtpour éteindre l'appareil. Sortez tous les aliments qui setrouvent dans l'appareil. Entreposez-les dans un endroit frais. Démontez toutes les autres piècesamovibles pour les nettoyer (voir cha-pitre « Aménagement in...
Nettoyage et entretien 102 Nettoyer le joint de porte Risque de dommages dus à un nettoyage incorrect.Si un corps gras est appliqué sur lejoint de porte, il risque de devenirporeux.N'appliquez aucun corps gras sur lejoint de porte. Nettoyez régulièrement le joint à l'eauclaire puis séchez-le soi...
Nettoyage et entretien 103 Nettoyez le tamis à l'eau courantetiède. Tournez le tamis de manière àle nettoyer intégralement. 4. Réinsérez le tamis à l'arrière dans lacartouche filtrante 4.). 5 . Insérez la cartouche filtrante jusqu'àla butée dans l'ouverture du filtre 5.).Le cache doit se trouv...
Nettoyage et entretien 104 réglage à l'écran (voir chapitre « Autres réglages », section « Réinitiali-ser le Témoin du filtre à eau »). Après le nettoyage Replacez tous les éléments dansl'appareil. Remettez l’appareil de froid enmarche. Pour accélérer la production de froidde la zone de...
Filtre à eau 105 L'appareil frigorifique est équipé d'unfiltre à eau (filtre à tamis IntensiveClear)qui filtre l'eau courante pour la prépara-tion de glaçons. Le filtre à tamis IntensiveClear filtre lesmatières en suspension dans l’eaucourante, mais pas les bactéries ni lesmicrobes. Le filtre à eau ...
Filtre à eau 107 1 . 2 . Tournez la cartouche filtrante situéedans le cache dans le sens contrairedes aiguilles d'une montre, en posi-tion verticale 1.) et sortez-la de l'ou-verture du filtre 2.). Retirez le capuchon de protection dela nouvelle cartouche filtrante. 4. 3 . 5 . Détachez le capuc...
Filtre à eau 108 mode de réglage à l'écran (voir cha- pitre « Autres réglages », section « Ré-initialiser le Témoin du filtre à eau »). Après avoir installé un nouveau filtreà charbon actif IntensiveClear, élimi-nez tous les glaçons produits dansles 24 heures suivant le remplace-ment.
En cas d'anomalie 109 Vous pouvez régler la plupart des défauts ou anomalies courants par vous-même.Dans bon nombre de cas, vous économiserez ainsi du temps et de l'argent carvous n'aurez pas besoin de faire appel au service après-vente. Sur www.miele.com/service, vous trouverez des informations sur...
En cas d'anomalie 113 Messages à l'écran Message Cause et solution Le signal sonore retentitet l'écran affiche : La température de congélationétait trop élevée. Tempéra-ture maximale °C . La température à l'intérieur de l'appareil a fortementaugmenté.Voici quelques causes possibles : – la porte de l...
En cas d'anomalie 115 Problèmes avec la fabrique de glaçons Problème Cause et solution La fabrique à glaçonsne produit aucun gla-çon. L'appareil frigorifique et la fabrique à glaçons ne sontpas activés. Activez l'appareil et la fabrique à glaçons. Vérifiez que le filtre à eau est correctement in...
Origines des bruits 119 Bruits nor-maux Quelle est leur origine ? Brrrrr... Le vrombissement provient du compresseur. Il peut être un peuplus fort au moment où le compresseur s'active. Blubb,blubb... Les gargouillements ou les ronronnements viennent du fluide ré-frigérant qui passe dans les conduits...
Service après-vente 120 Sur www.miele.com/service, voustrouverez des informations sur l'aideau dépannage et les pièces détachéesMiele. Contact en cas d'anomalies Vous n'arrivez pas à résoudre l'anoma-lie par vous-même ? Contactez le ser-vice après-vente Miele ou votre reven-deur Miele. Vous pouvez p...
Déclaration de conformité 121 Par la présente, Miele déclare que cecongélateur est conforme à la directive2014/53/EU. Le texte complet de la déclaration deconformité se trouve sous une desadresses Internet suivantes : - Page d'accueil miele France, sur www.miele.fr - Onglet Services, Demande de docu...
Droits d’auteur et licences 122 Miele utilise son propre logiciel ou un logiciel tiers non couvert par une licenceopen source, pour faire fonctionner et contrôler l’appareil. Le présent logiciel/lescomposants de logiciel sont soumis à des droits d’auteur. Les droits d’auteur dé-tenus par Miele et de...
9 avenue Albert Einstein - Z. I. du Coudray R.C.S. Bobigny B 708 203 088 55 Boulevard Malesherbes75008 Paris 30 rue du Bac75007 Paris Secteur Cap 3000285 avenue de Verdun06700 Saint-Laurent du Var MIELE FranceSiège social 93151 - Le Blanc-Mesnil CEDEX Miele Experience CenterParis Rive Gauche Miele E...
Other Miele Autres Manuals
-
Miele APWM 066 Notice d'Installation
-
Miele APWM 062 Notice d'Installation
-
Miele APWM 065 Notice d'Installation
-
Miele APWM 020 Manuel d'utilisation
-
Miele APWM 020 Notice d'Installation
-
Miele SC Notice d'Installation
-
Miele PR Notice d'Installation
-
Miele FP 900 Notice d'Installation
-
Miele RP 900 Notice d'Installation
-
Miele APWM 019 Manuel d'utilisation
-
Miele APWM 019 Notice d'Installation
-
Miele A 830/1 Manuel d'utilisation
-
Miele TT 86 Manuel d'utilisation
-
Miele RP 1150 Notice d'Installation
-
Miele UG 5010 Notice d'Installation
-
Miele UO 5010 Notice d'Installation
-
Miele APCL 001 Notice d'Installation
-
Miele E 473/2 Manuel d'utilisation
-
Miele APRI 312 Notice d'Installation
-
Miele DOS K 85 flex Notice d'Installation