Miele H 2467 BP ACTIVE - Manuels
Manuel d'utilisation Miele H 2467 BP ACTIVE
























































































































Résumé
Table des matières 2 Consignes de sécurité et mises en garde ....................................................... 6 Votre contribution à la protection de l'environnement .................................. 16 Description de l'appareil ..................................................................
Table des matières 4 Stériliser des conserves ...................................................................................... 56Sécher ................................................................................................................. 58Produits surgelés/plats préparés.............
Table des matières 5 Données à l'intention des instituts de contrôle .............................................. 95 Plats tests selon la norme EN 60350-1 ............................................................... 95Classe d'efficacité énergétique d'après la norme EN 60350-1 ....................
Consignes de sécurité et mises en garde 6 Ce four répond aux réglementations de sécurité en vigueur. Touteutilisation non conforme peut toutefois causer des dommages cor-porels et matériels. Lisez attentivement le mode d'emploi et les instructions de mon-tage avant de mettre le four en service. Vous...
Consignes de sécurité et mises en garde 7 Utilisation conforme Ce four est destiné à être utilisé dans le cadre domestique ou dans des conditions d'installation semblables au cadre domestique. Ce four ne convient pas à une utilisation en extérieur. Utilisez ce four exclusivement dans le cadre ...
Consignes de sécurité et mises en garde 8 Précautions à prendre avec les enfants Utilisez la sécurité enfants pour prévenir tout enclenchement invo- lontaire du four. Tenez les enfants de moins de 8 ans éloignés du four à moins qu'ils ne soient sous étroite surveillance. Les enfants âgés de 8 ...
Consignes de sécurité et mises en garde 9 Sécurité technique Des travaux d'installation, d'entretien ou de réparation non conformes peuvent entraîner de graves dangers pour l'utilisateur.Ces interventions doivent être exécutées exclusivement par des pro-fessionnels agréés par Miele. Un four endo...
Consignes de sécurité et mises en garde 11 Le four nécessite une arrivée d'air suffisante pour son fonctionne- ment. Veillez à ce que l'arrivée d'air de refroidissement ne soit pasentravée (par ex. par des baguettes d'isolation thermique dans laniche d'encastrement). L'air de refroidissement ne do...
Consignes de sécurité et mises en garde 15 Accessoires Utilisez exclusivement des accessoires d'origine Miele. Le mon- tage d'autres pièces exclut le bénéfice de la garantie. Miele offre une garantie d'approvisionnement de 10 ans minimum et jusqu'à 15 ans pour le maintien en état de fonctionneme...
Votre contribution à la protection de l'environnement 16 Recyclage de l’emballage Nos emballages protègent votre appa-reil des dommages qui peuvent survenirpendant le transport. Nous les sélec-tionnons en fonction de critères écolo-giques permettant d'en faciliter le recy-clage. En participant au re...
Description de l'appareil 17 Four a Éléments de commande b Verrouillage de la porte pendant la pyrolyse c Résistance de voûte/gril d Ouverture d'aspiration pour le ventilateur avec résistance circulaire située der-rière e Supports de gradins avec 5 niveaux de cuisson f Sole de l'enceinte avec résist...
Bandeau de commande du four 18 a Sélecteur de mode de cuissonSélectionner un mode de cuisson b ÉcranAffichage de l'heure et des informations relatives à l'utilisation c Touche sensitive Accéder aux réglages d Touche sensitive Revenir en arrière étape par étape e Touche sensitive OK Sélectionn...
Bandeau de commande du four 19 Sélecteur de mode de cuisson Le sélecteur de mode vous permet dechoisir les modes de cuisson et d'allu-mer l'éclairage de l'enceinte de cuissonséparément. Vous pouvez le tourner à droite ou àgauche. Modes de cuisson Eclairage Chaleur sole-voûte Multigril Chaleu...
Bandeau de commande du four 20 Touches sensitives en-dessous de l'écran Touche sensi- tive Fonction Cette touche permet d'accéder aux réglages lorsque le sélecteurde mode est en position 0 ou en position Eclairage . En fonction du menu dans lequel vous vous trouvez, cettetouche vous permet de...
Principe de commande 21 Sélectionner un mode de cuis-son Tournez le sélecteur de mode decuisson sur le mode souhaité. La température préconisée s'affiche àl'écran. Si nécessaire, modifiez la tempéra-ture préprogrammée, à l'aide du sé-lecteur . Validez en effleurant OK . Changer de mode de...
Équipement 22 Vous trouverez une liste des modèlesdécrits au dos du mode d'emploi. Plaque signalétique La plaque signalétique est visible sur lecadre de façade lorsque la porte est ou-verte. Vous y trouverez la désignation de votrefour, son numéro de fabrication ainsique ses données de raccordement ...
Équipement 23 Vous pouvez démonter les supports degradins (voir chapitre « Nettoyage et en-tretien », section « Démonter les sup-ports de gradins avec les rails coulis-sants FlexiClips »). Plaque de cuisson, plaque de cuis-son multi-usages et grille avec butéede sécurité Plaque de cuisson HBB 71 : P...
Équipement 24 Pour éviter que l'accessoire ne tombepar inadvertance, - veillez à ce que l'accessoire se trouve toujours entre les taquets avant et ar-rière des rails, - lorsque vous enfilez la grille sur les rails coulissants FlexiClips, position-nez toujours la zone réservée aux ali-ments vers le b...
Équipement 25 Monter les rails coulissants Flexi-Clips Risque de blessure en raison des surfaces brûlantes.Pendant le fonctionnement, le fourest brûlant. Vous pouvez vous brûlerau contact des résistances, de l'en-ceinte et des accessoires.Laissez les résistances, l'enceinte decuisson et les access...
Équipement 27 Plat perforé Crousti-chef HBBL 71 Le plat perforé Crousti-chef a été spé-cialement conçu pour la préparation depâtisseries, viennoiseries, pizzas biencroustillantes, de pains et de petitspains.Les fines perforations permettent dedorer également les aliments par ledessous.Vous pouvez ég...
Équipement 28 Plats à rôtir HUBCouvercles pour plats à rôtir HBD Contrairement aux autres plats à rôtir, leplat à rôtir de Miele s'enfourne directe-ment dans les supports de gradins. Leplat à rôtir est doté d'une butée desécurité.La surface du plat à rôtir est dotée d'unrevêtement anti-adhésif. Les ...
Équipement 29 Dispositifs de sécurité - Sécurité enfants (voir chapitre « Réglages », section «Sécurité enfants ») - Ventilateur (voir chapitre « Réglages », section« Arrêt différé ventilateur ») - Sécurité oubli La sécurité oubli s'active automati-quement si le four est utilisé pendantune durée...
Première mise en service 30 Miele@home Votre four est équipé d'un module Wi-Fi intégré. Pour utiliser cette fonctionnalité, il vousfaut : - un réseau Wi-Fi - l’App Miele - un compte utilisateur Miele. Vous pouvez créer votre compte utilisateurvia l'App Miele. L'App Miele vous guide lors de laconnexi...
Première mise en service 31 Réglages de base Vous devez procéder aux réglages sui-vants dans le cadre de la première miseen service. Vous pourrez modifier cesréglages ultérieurement (voir chapitre« Réglages »). Risque de blessure en raison des surfaces brûlantes.Pendant le fonctionnement, le foure...
Première mise en service 32 Première montée en tempéra-ture du four À la première montée en températuredu four, des odeurs désagréablespeuvent se dégager. Pour les éliminer,faites chauffer le four pendant au moinsune heure. Pendant la montée en température,assurez-vous que la cuisine soit bienventil...
Réglages 33 Tableau des réglages Option Réglages disponibles Langue ... | deutsch | english | ... Site Heure Affichage Activé * | Désactivé | Désactivation de nuit Format de temps 12h | 24h * Régler Ecran Luminosité Volume Signaux sonores Modifier mélodie * Fré...
Réglages 34 Accéder au menu « Réglages » Vous pouvez via la touche sensitive appeler le menu « Réglages » et per-sonnaliser votre four en adaptant les ré-glages d'usine à vos besoins. Tournez le sélecteur de mode decuisson sur la position 0 ou sur la po- sition Eclairage . Effleurez la touc...
Réglages 35 Ecran Luminosité La luminosité de l'écran est représentéepar une barre à segments. - luminosité maximale - luminosité minimale Volume Signaux sonores Lorsque les signaux sonores sont acti-vés, un signal retentit lorsque la tempé-rature réglée est atteinte ...
Réglages 36 Arrêt différé ventilateur En fin de cuisson, la ventilation conti-nue de fonctionner pour éliminer l'humi-dité résiduelle de l'enceinte, du ban-deau de commande et de la niche d'en-castrement. - Régulation thermique Le ventilateur se désactive dès que latempérature de l'enceinte passe so...
Réglages 38 Mise à jour à distance L'option Mise à jour à distance n'est vi- sible et sélectionnable que si lesconditions préalables à l'utilisation deMiele@home sont remplies (voir cha-pitre « Première mise en service »,section « Miele@home »). La fonction RemoteUpdate (mise à jourà distance) perme...
Réglages 39 Version logiciel L'option « Version logiciel » est définiepour le service après-vente Miele. Cesinformations ne sont d'aucune utilitépour le particulier. Revendeurs Cette fonction permet aux revendeursde présenter le four sans le faire chauf-fer. Ce réglage n’est d’aucune utilitépour le ...
Minuterie 40 Utiliser la fonction Minuterie Vous pouvez programmer la minute-rie pour surveiller certaines opéra- tions annexes, notamment pour la cuis-son des œufs. Vous pouvez également utiliser la minu-terie si vous avez configuré le démar-rage ou l'arrêt d'un cycle de cuisson enparallèle (par...
Tableau des modes de cuisson 41 Modes de cuisson Valeur préconi- sée Plage Chaleur tournante + 160 °C 30–250 °C Cuisson intensive 170 °C 50–250 °C Chaleur tournante Eco 190 °C 100–250 °C Booster 160 °C 100–250 °C Chaleur sole-voûte 180 °C 30–280 °C Multigril 240 °C 200–300 °C Turbo...
Conseils d'économie d'énergie 42 Cuisson - Retirez du four tous les accessoires dont vous n'avez pas besoin pour lacuisson. - En général, il vaut mieux choisir la température la plus faible de la four-chette indiquée dans la recette ou letableau de cuisson puis vérifier lacuisson une fois le temps d...
Conseils d'économie d'énergie 43 Utilisation de la chaleur rési-duelle - Si vous avez programmé une cuisson à plus de 140 °C et une durée supé-rieure à 30 minutes, vous pouvez ré-gler la température minimale env.5 minutes avant la fin du cycle decuisson. La chaleur résiduelle du foursuffit à termine...
Commande 44 Utilisation simple Enfournez l'aliment. Sélectionnez le mode de cuisson àl'aide du sélecteur de mode de cuis-son. Après un bref affichage du mode defonctionnement, la température par dé-faut apparaît. Si nécessaire, modifiez la tempéra-ture préprogrammée, à l'aide du sé-lecteur ...
Commande 45 Régler les temps de cuisson La cuisson sera moins réussie si leplat reste trop longtemps dans lefour avant le début du programme.Les produits frais peuvent perdre leurcouleur, voire devenir impropres à laconsommation.Pour le pain et les pâtisseries, la pâterisque de se dessécher et de le...
Commande 46 Supprimer les temps de cuisson ré-glés Effleurez la touche sensitive . Sélectionnez la durée ou l'heure sou-haitée. Validez en effleurant OK . Sélectionnez Supprimer . Validez en effleurant OK . Utilisez la touche pour revenir au menu du mode de cuisson sélection-né. Si...
Programmes auto 47 Utilisation des programmesautomatiques Votre appareil propose des pro-grammes automatiques qui vous per-mettent de réussir les plats les plus di-vers.Vous trouverez les recettes correspon-dantes à la fin du mode d'emploi et demontage. Sélectionnez Programmes auto . La liste d...
Cuisson de pâtisseries/pain 48 Un traitement en douceur des ali-ments est bon pour votre santé.Faites dorer les gâteaux, pizzas,frites ou autres aliments similairessans les faire brunir. Conseils pour la cuisson - Réglez un temps de cuisson. Ne lais- sez pas les pâtisseries et le pain dansl'enceinte...
Rôtissage 50 Conseils de rôtissage - Vous pouvez utiliser n'importe quel plat en matériau thermorésistant, parex. plat à rôtir, cocotte, plat en verre,sac ou sachet de cuisson, plat enterre cuite Römertopf, plaque decuisson multi-usages, grille et/ouplaque à griller et rôtir (si disponible)sur la pl...
Mode Gril 52 Risque de blessure en raison des surfaces brûlantes.Si vous utilisez un mode gril avec laporte ouverte, l'air chaud de l'en-ceinte ne passe plus devant le venti-lateur et n'est donc pas refroidi. Leséléments de commande deviennentchauds.Fermez la porte pendant la cuissonau gril. Conse...
Mode Gril 53 Choisir le niveau Sélectionnez le niveau en fonction del'épaisseur de la pièce à griller. Enfournez les aliments plats au ni-veau 3 ou 4. Enfournez les aliments de gros dia-mètre au niveau 1 ou 2. Sélectionner le temps de cuisson Les pièces de viande ou de poissonplates doive...
Autres applications 54 Vous trouverez dans ce chapitre des in-formations sur les applications sui-vantes : - Décongélation - Cuisson à basse température - Préparation de conserves - Sécher - Produits surgelés/plats préparés - Chauffer la vaisselle Décongélation Une décongélation en douceur permetde ...
Autres applications 55 Cuisson à basse température La cuisson à basse température estidéale pour les pièces délicates debœuf, de porc, de veau ou d'agneau quidoivent être cuites avec précision.Dans un premier temps, saisissez laviande rapidement et à haute tempéra-ture sur toutes ses faces.Placez en...
Autres applications 56 Stériliser des conserves Risque d'infection lié à la forma- tion de germes.Si les légumes secs et la viande sontstérilisés une seule fois, les sporesde la bactérie Clostridium botulinumne sont pas entièrement détruites.Des toxines peuvent se former etprovoquer de graves into...
Autres applications 57 Stérilisation des fruits et des corni-chons Dès que les bulles montent dans lesbocaux, réglez la température dechaleur résiduelle indiquée et laissezles bocaux dans l'enceinte chaudependant la durée indiquée. Stérilisation des légumes Dès que les bulles montent dans lesboc...
Autres applications 58 Sécher Le séchage ou la déshydratation desaliments est un moyen de conservationnaturel pour les fruits, certains légumeset les fines herbes. La condition est que les fruits et les lé-gumes soient frais, bien mûrs et nesoient pas abîmés. Préparez les aliments en les émin-çant...
Autres applications 59 Produits surgelés/platspréparés Conseils pour les gâteaux, pizzas etbaguettes - Faites cuire les gâteaux, pizzas et ba- guettes surgelés sur la grille recou-verte de papier sulfurisé.En raison de la différence de tempé-rature, la plaque de cuisson et laplaque de cuisson multi-...
Nettoyage et entretien 60 Risque de blessure en raison des surfaces brûlantes.Pendant le fonctionnement, le fourest brûlant. Vous pouvez vous brûlerau contact des résistances, de l'en-ceinte et des accessoires.Attendez que l'enceinte de cuisson,les résistances et les accessoiresaient refroidi avan...
Nettoyage et entretien 61 Les accessoires ne doivent pas êtrelavés au lave-vaisselle. Conseil : les dépôts laissés par l'écou- lement de jus de fruits ou de pâte à gâ-teau seront plus faciles à enlever si lefour est encore tiède. Pour faciliter le nettoyage, nous recom-mandons de procéder comme suit...
Nettoyage et entretien 63 Nettoyer l'enceinte avec laPyrolyse Vous pouvez nettoyer l'enceinte decuisson avec la fonction Pyrolyse au lieu de la nettoyer à la main. Pendant le nettoyage par pyrolyse, l'en-ceinte de cuisson est chauffée à plusde 400 °C. Cela permet de détruire etréduire en cendres...
Nettoyage et entretien 64 Démarrer la pyrolyse Risque de blessure par des va- peurs toxiques.Le nettoyage par pyrolyse peut dé-gager des vapeurs susceptibles d'ir-riter les muqueuses.Ne restez pas dans la cuisine pen-dant le nettoyage par pyrolyse etempêchez les enfants et les animauxdomestiques d...
Nettoyage et entretien 65 Départ différé de la pyrolyse Si vous souhaitez différer le départ dela pyrolyse, sélectionnez Départ à . Validez en effleurant OK . Réglez l'heure à laquelle le nettoyagepar pyrolyse doit démarrer. Validez en effleurant OK . La porte est automatiquement ver-rouillé...
Nettoyage et entretien 67 Démonter la porte La porte pèse env. 10 kg. La porte est fixée aux charnières pardes supports.Pour démonter la porte, vous devezd'abord déverrouiller les étriers de blo-cage des deux charnières. Ouvrez complètement la porte. Déverrouillez les étriers de blocageen les to...
Nettoyage et entretien 68 Désassembler la porte La porte est constituée d'un systèmeouvert comprenant 4 vitres partielle-ment dotées d'un revêtement réfléchis-sant la chaleur. Pendant le fonctionnement du four, del'air circule également dans la porte, desorte que la vitre extérieure reste froide. Si...
Nettoyage et entretien 69 Soulevez légèrement la vitre inté- rieure et sortez-la de la baguette enplastique. Retirez le joint. Soulevez légèrement la vitre intermé-diaire supérieure et retirez-la. Soulevez légèrement la vitre intermé-diaire inférieure et sortez-la. Nettoyez les vitres de p...
Nettoyage et entretien 70 Tournez les dispositifs de blocagedes vitres vers l'intérieur de sortequ'ils reposent sur la vitre intermé-diaire inférieure. Insérez la vitre intermédiaire supé-rieure de telle sorte que la référencesoit lisible (et non inversée).La vitre doit reposer sur les dispositi...
Nettoyage et entretien 71 Monter la porte Saisissez la porte par les côtés et in-sérez-la sur les supports des char-nières.Veillez à ne pas coincer la porte. Ouvrez complètement la porte. Si les étriers de blocage ne sont pasbien verrouillés, la porte risque desortir des supports et d'être endom...
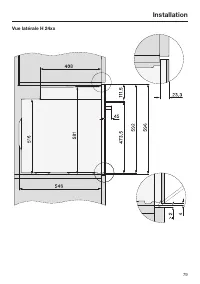
Installation *INSTALLATION* 78 Dimensions d'encastrement Les cotes sont indiquées en mm. Encastrement dans un meuble haut ou bas Si le four doit être encastré sous une table de cuisson, il convient de respecterles instructions concernant l'encastrement de la table de cuisson ainsi que sahauteur d'en...
Installation *INSTALLATION* 81 Raccordements et aération a Vue avant b Câble d'alimentation, longueur = 1 500 mm c Pas de raccordement dans cette zone d Découpe d'aération de min. 150 cm ²
Installation *INSTALLATION* 82 Encastrement du four N'utilisez le four que lorsque celui-ciest encastré, afin de garantir son bonfonctionnement. Le four nécessite une arrivée d'airsuffisante pour son fonctionnement.L'air de refroidissement ne doit pasêtre excessivement chauffé pard'autres sources de...
Installation *INSTALLATION* 83 Raccordement électrique Risque de blessure ! Miele décline toute responsabilité encas de travaux d’installation et d’en-tretien non conformes ou de répara-tions incorrectes pouvant entraînerde graves dangers pour l’utilisateur. Le raccordement au réseau élec-trique n...
Tableaux de cuisson 84 Pâte à gâteau Gâteaux/pâtisseries (accessoire) [°C] [min] +HFC -HFC Muffins (1 plaque) 150–160 1 2 25–35 Muffins (2 plaques) 150–160 1+3 3 1+3 30–40 4 Petits gâteaux* (1 plaque) 150 1 2 30–40 160 2 2 3 20–30 Petits gâteaux* (2 plaques) 150 2 1+3 3 1+3 30–40 Q...
Tableaux de cuisson 85 Pâte brisée Gâteaux/pâtisseries (accessoire) [°C] [min] +HFC -HFC Biscuits à l'emporte-pièce (1 plaque) 140–150 1 2 25–35 150–160 1 2 25–35 Biscuits à l'emporte-pièce (2 plaques) 140–150 1+3 3 1+3 25–35 4 Sprits* (1 plaque) 140 1 2 35–45 160 2 2 3 25–35 Sprit...
Tableaux de cuisson 86 Pâte levée Gâteaux/pâtisseries (accessoire) [°C] [min] +HFC -HFC Kouglof (grille, moule à kouglof, 24 cm) 1 150–160 1 2 50–60 160–170 1 2 50–60 Pain de Noël allemand (1 plaque) 150–160 1 2 55–65 160–170 1 2 55–65 Tarte aux fruits et au crumble (1 plaque) 1...
Tableaux de cuisson 87 Pâte à l'huile et au fromage blanc Gâteaux/pâtisseries (accessoire) [°C] [min] +HFC -HFC Tarte aux fruits (1 plaque) 160–170 1 2 40–50 170–180 2 3 50–60 Chaussons aux pommes/pains aux raisins(1 plaque) 160–170 2 3 25–35 Chaussons aux pommes/pains aux raisins(2 pl...
Tableaux de cuisson 89 Plats salés Aliment (accessoire) [°C] [min] +HFC -HFC Tarte salée (1 plaque) 220–230 1 – 1 35–45 180–190 – 1 30–40 Tarte à l'oignon (1 plaque) 180–190 1 1 2 25–35 170–180 1 2 30–40 Pizza, pâte levée (1 plaque) 170–180 1 2 25–35 210–220 1 1 2 20–30 Pizza, pâ...
Tableaux de cuisson 90 Bœuf Aliment (accessoire) [°C] [min] 10 [°C] Bœuf en daube, env. 1 kg (plat à rôtiravec couvercle) 2 150–160 3 2 6 120–130 7 – 2 170–180 3 2 6 120–130 7 – 180–190 2 6 160–180 8 – Filet de bœuf, env. 1 kg (plaque de cuis-son multi-usages) 2 180–190 3 2 6 25–60...
Tableaux de cuisson 91 Veau Aliment (accessoire) [°C] [min] 7 [°C] Veau en daube, env. 1,5 kg (plat à rôtiravec couvercle) 2 160–170 3 2 5 120–130 6 – 2 170–180 3 2 5 120–130 6 – Filet de veau, env. 1 kg (plaque de cuis-son multi-usages) 2 160–170 3 2 5 30–60 45–75 Filet de veau, sai...
Tableaux de cuisson 92 Porc Aliment (accessoire) [°C] [min] 10 [°C] Rôti/échine, env. 1 kg (plat à rôtir aveccouvercle) 160–170 2 5 130–140 6 80–90 180–190 2 5 130–140 6 80–90 Rôti avec barde, env. 2 kg (plat à rôtir) 180–190 2 5 130–150 7 80–90 190–200 2 5 130–150 7 80–90 Filet de...
Données à l'intention des instituts de contrôle 95 Plats tests selon la norme EN 60350-1 Plats tests (accessoire) [°C] 6 [min] +HFC -HFC Gâteaux individuels (1 plaque de cuisson 1 ) 150 1 2 30–40 160 4 2 3 20–30 Gâteaux individuels (2 plaques de cuis-son 1 ) 150 4 1+3 7 1+3 30–40 Sprit...
Données à l'intention des instituts de contrôle 96 Classe d'efficacité énergétique d'après la norme EN 60350-1 La classe d'efficacité énergétique est déterminée selon la norme EN 60350-1. Classe d'efficacité énergétique : A+ Veuillez tenir compte des indications suivantes pour procéder à la mesure :...
Recettes 97 Vous trouverez ci-après les recettescorrespondant aux programmes auto-matiques. Pour un résultat de cuisson optimal,nous vous recommandons d'utiliser lesquantités et les accessoires indiquésdans les recettes. Pour trouver le bon niveau d'insertion,veuillez démonter les rails coulissantsF...
Recettes 98 Moelleux aux pommes Temps de préparation : 95 minutes12 parts Pour la garniture 500 g de pommes, acidulées2 c. à s. de jus de citron Pour la pâte 150 g de beurre | pommade150 g de sucre8 g de sucre vanillé3 œufs, calibre M150 g de farine de blé, type 45½ c. à c. de levure chimique Pour l...
Recettes 99 Génoise Temps de préparation : 75 minutes12 parts Pour la pâte 4 œufs, calibre M4 c. à s. d’eau | chaude175 g de sucre200 g de farine de blé, type 451 c. à c. de levure chimique Pour le moule 1 c. à c. de beurre Accessoires Grille de cuissonChinois, finMoule à manqué, 26 cm Papier sul...
Recettes 100 Fourrages pour la génoise Temps de préparation : 30 minutes Fourrage crème et fromage blanc 500 g de fromage blanc, 20 % de MG100 g de sucre100 ml de lait, 3,5 % de MG8 g de sucre vanillé1 citron | uniquement le jus6 feuilles de gélatine, blanche500 g de crème fleurette Pour le saupoudr...
Recettes 101 Préparation du fourrage au cappuc-cino Pour le fourrage au cappuccino, fairefondre le chocolat. Fouetter la crèmefleurette, et réserver une petite quantitépour badigeonner le niveau supérieur.Faire ramollir la gélatine dans de l’eaufroide, l’égoutter et la dissoudre à faiblepuissance au...
Recettes 102 Gâteau marbré Temps de préparation : 80 minutes18 parts Pour la pâte 250 g de beurre | pommade200 g de sucre8 g de sucre vanillé4 œufs, calibre M200 g de crème épaisse400 g de farine de blé, type 4516 g de levure chimique1 pincée de sel3 c. à s. de cacao Pour le moule 1 c. à c. de beurr...
Recettes 103 Tarte aux fruits et au crumble Temps de préparation : 150 minutes20 parts Pour la pâte 42 g de levure, fraîche150 ml de lait, entier (3,5 % de matièregrasse) | tiède450 g de farine de blé, type 4550 g de sucre90 g de beurre | pommade1 œuf, calibre M Pour la garniture 1,25 kg de pommes P...
Recettes 104 Biscuits à l’emporte-pièce Temps de préparation : 135 minutespour 70 pièces (2 plaques) Ingrédients 250 g de farine de blé, type 45½ c. à c. de levure chimique80 g de sucre8 g de sucre vanillé1 flacon d’arôme de rhum3 c. à s. d’eau120 g de beurre | pommade Accessoires Rouleau à pâtisser...
Recettes 105 Sprits Temps de préparation : 50 minutesPour 50 pièces (2 plaques) Ingrédients 160 g de beurre | pommade50 g de sucre, roux50 g de sucre glace8 g de sucre vanillé1 pincée de sel200 g de farine de blé, type 451 œuf, calibre M | uniquement le blanc Accessoires Poche à douilleEmbout en éto...
Recettes 106 Muffins aux noix Temps de préparation : 95 minutespour 12 muffins Ingrédients 80 g de raisins secs40 ml de rhum120 g de beurre | pommade120 g de sucre8 g de sucre vanillé2 œufs, calibre M140 g de farine de blé, type 451 c. à c. de levure chimique120 g de cerneaux de noix | grossière-men...
Recettes 107 Pizza (pâte levée) Temps de préparation : 90 minutespour 4 personnes Pour la pâte 30 g de levure, fraîche170 ml d'eau | tiède300 g de farine de blé, type 451 c. à c. de sucre1 c. à c. de sel½ c. à c. de thym haché1 c. à c. d’origan, moulu1 c. à s. d’huile Pour la garniture 2 oignons1 g...
Recettes 108 Pizza (pâte à l’huile et au fromage blanc) Temps de préparation : 60 minutespour 4 personnes Pour la pâte 120 g de fromage blanc, 20 % de MG4 c. à s. de lait, 3,5 % de MG)4 c. à s. d’huile2 œufs, calibre M | uniquement le jaune1 c. à c. de sel1½ c. à c. de levure chimique250 g de farin...
Recettes 109 Poulet Temps de préparation : 95 minutespour 2 personnes Ingrédients 1 poulet, prêt à cuire (1,2 kg)2 c. à s. d’huile1½ c. à c. de sel2 c. à c. de paprika, doux1 c. à c. de curry Accessoires Grille de cuissonPlat à gratin, 22 cm x 29 cmFil de cuisine Préparation Mélanger l’huile avec le...
Recettes 110 Filet de bœuf (rôti) Temps de préparation : 65 minutespour 4 personnes Pour le filet de bœuf 1 kg de filet de bœuf (préparé)2 c. à s. d’huile1 c. à c. de selpoivre Pour saisir 2 c. à s. d’huile Accessoires Plaque de cuisson multi-usages Préparation Démarrer le programme automatiqueou p...
Recettes 111 Truite Temps de préparation : 65 minutes4 parts Pour les truites 4 truites préparées (250 g chacune)2 c. à s. de jus de citronSelpoivre Pour la farce 200 g de champignons de Paris frais½ oignon1 gousse d’ail25 g de persilSelpoivre Pour garnir 3 c. à s. de beurre Accessoires Plaque de cu...
Recettes 112 Filet de saumon Temps de préparation : 40 minutespour 4 personnes Pour le saumon 4 filets de saumon sans peau(4 x 200 g)2 c. à s. de jus de citronSelpoivre Pour garnir 3 c. à s. de beurre Pour parsemer 1 c. à c. d'aneth haché Accessoires Plaque de cuisson multi-usages Préparation Démarr...
Recettes 113 Truite saumonée Temps de préparation : 65 minutespour 4 personnes Pour la truite saumonée 1 truite saumonée entière, préparée(1 kg)1 citron | uniquement le jusSel Pour la farce 2 échalotes2 gousses d’ail2 tranches de pain de mie50 g de petites câpres1 œuf, calibre M | uniquement le jaun...
Recettes 114 Gratin de pommes de terre au fromage Temps de préparation : 90 minutespour 4 personnes Pour le gratin 600 g de pommes de terre, farineuses75 g de fromage, râpé Pour le moule 1 gousse d’ail Pour l’appareil 250 g de crème fleurette1 c. à c. de selpoivreNoix de muscade Pour parsemer 75 g ...
Recettes 115 Lasagnes Temps de préparation : 125 minutespour 4 personnes Pour les lasagnes 8 feuilles de lasagnes (sans précuisson) Pour la sauce bolognaise 50 g de lard, maigre, fumé | coupé enpetits dés375 g de viande hachée, mi-bœuf, mi-porc2 oignons | émincés800 g de tomates pelées (boîte)30 g d...
Déclaration de conformité 116 Par la présente, Miele déclare que cefour est conforme à la directive2014/53/EU. Le texte complet de la déclaration deconformité se trouve sous une desadresses Internet suivantes : - Page d'accueil miele France, sur www.miele.fr - Onglet Services, Demande de docu- menta...
Droits d’auteur et licences pour le module de communication 117 Miele utilise son propre logiciel ou unlogiciel tiers non couvert par une li-cence open source, pour faire fonction-ner et contrôler le module de communi-cation. Le présent logiciel/les compo-sants de logiciel sont soumis à desdroits d’...
9 avenue Albert Einstein - Z. I. du Coudray R.C.S. Bobigny B 708 203 088 55 Boulevard Malesherbes75008 Paris 30 rue du Bac75007 Paris Secteur Cap 3000285 avenue de Verdun06700 Saint-Laurent du Var MIELE FranceSiège social 93151 - Le Blanc-Mesnil CEDEX Miele Experience CenterParis Rive Gauche Miele E...
Other Miele Autres Manuals
-
Miele APWM 066 Notice d'Installation
-
Miele APWM 062 Notice d'Installation
-
Miele APWM 065 Notice d'Installation
-
Miele APWM 020 Manuel d'utilisation
-
Miele APWM 020 Notice d'Installation
-
Miele SC Notice d'Installation
-
Miele PR Notice d'Installation
-
Miele FP 900 Notice d'Installation
-
Miele RP 900 Notice d'Installation
-
Miele APWM 019 Manuel d'utilisation
-
Miele APWM 019 Notice d'Installation
-
Miele A 830/1 Manuel d'utilisation
-
Miele TT 86 Manuel d'utilisation
-
Miele RP 1150 Notice d'Installation
-
Miele UG 5010 Notice d'Installation
-
Miele UO 5010 Notice d'Installation
-
Miele APCL 001 Notice d'Installation
-
Miele E 473/2 Manuel d'utilisation
-
Miele APRI 312 Notice d'Installation
-
Miele DOS K 85 flex Notice d'Installation