Miele H 7890 BP - Manuels
Manuel d'utilisation Miele H 7890 BP
































































































































Résumé
Table des matières 2 Consignes de sécurité et mises en garde ................................................................ 6 Votre contribution à la protection de l'environnement ......................................... 14 Description de l'appareil ..................................................
Table des matières 3 Ecran................................................................................................................................. 37 Volume ............................................................................................................................. 37 Unité...
Table des matières 5 Installation ...................................................................................................................... 105 Dimensions d'encastrement ........................................................................................ 105 Encastrement dans un meu...
Consignes de sécurité et mises en garde 6 Ce four répond aux réglementations de sécurité en vigueur. Touteutilisation non conforme peut toutefois causer des dommages cor-porels et matériels.Lisez attentivement le mode d'emploi et les instructions de mon-tage avant de mettre le four en service. Vous ...
Consignes de sécurité et mises en garde 7 Ce four contient 2 sources lumineuses de classe d'efficacité éner- gétique F. Précautions à prendre avec les enfants Utilisez la sécurité enfants pour prévenir tout enclenchement invo- lontaire du four. Tenez les enfants de moins de 8 ans éloignés du f...
Consignes de sécurité et mises en garde 8 Sécurité technique Des travaux d'installation, d'entretien ou de réparation non conformes peuvent entraîner de graves dangers pour l'utilisateur. Cesinterventions doivent être exécutées exclusivement par des profes-sionnels agréés par Miele. Un four endo...
Consignes de sécurité et mises en garde 12 La capacité de charge de la porte est de 15 kg. Ne montez et ne vous asseyez pas sur la porte ouverte et ne déposez pas d'objetslourds dessus. Veillez à ne rien coincer entre la porte de l'appareil etl'enceinte de cuisson. Le four risquerait d'être endomm...
Consignes de sécurité et mises en garde 13 Les endroits chauds et humides sont propices à la prolifération d'insectes nuisibles (par ex. les cafards). Veillez à ce que le four etson environnement immédiat restent toujours propres.Les dommages causés par des insectes nuisibles ne sont pas cou-verts...
Votre contribution à la protection de l'environnement 14 Recyclage de l’emballage Nos emballages protègent votre appa-reil des dommages qui peuvent survenirpendant le transport. Nous les sélec-tionnons en fonction de critères écolo-giques permettant d'en faciliter le recy-clage.En participant au rec...
Description de l'appareil 15 Four a Éléments de commande b Verrouillage de porte c Résistance de voûte/gril avec antenne de réception pour la thermosonde sans fil d Ouvertures d'arrivée de la vapeur e Tube de remplissage pour le système d'évaporation f Thermosonde sans fil g Caméra h Supports de gra...
Eléments de commande 16 a Touche incurvée Marche/Arrêt Mise en marche et arrêt du four b Touche sensitive Commande du four sur un appareilmobile c Capteur de proximitéActiver l'éclairage de l'enceinte et del'écran et confirmer les signaux so-nores en cas d'approche d Écran tactileAffichage des...
Eléments de commande 17 Touche Marche/Arrêt La touche Marche/Arrêt est incurvée et réagit par simple effleurement dudoigt.Cette touche vous permet d'allumer etd'éteindre le four. Capteur de proximité Le capteur de proximité se trouve enhaut à gauche du bandeau de com-mande. Le capteur de proximit...
Eléments de commande 18 Touches sensitives Les touches sensitives réagissent au contact du doigt. Tout contact est confirmépar un bip sonore. Vous pouvez désactiver ce bip en sélectionnant le réglage Vo- lume | Bip touches | Désactivé . Si vous souhaitez que les touches sensitives réagissent même ...
Eléments de commande 19 Écran tactile Les objets pointus ou tranchants, tels que des crayons ou des stylos, peuventrayer l'écran tactile fragile.Effleurez l'écran tactile avec les doigts uniquement.Ne laissez pas d'eau pénétrer derrière l'écran. L'écran tactile est divisé en plusieurs zones. Modes d...
Eléments de commande 20 Symboles Les symboles suivants peuvent s'afficher à l'écran : Symbole Signification Ce symbole identifie les informations et les instructions de com-mande. Confirmez ces fenêtres d’information en cliquant sur OK . … Indication concernant les options non affichées dans l'a...
Principe de commande 21 Pour commander le four, effleurez l'op-tion souhaitée à l'écran.Lorsque vous effleurez une option dis-ponible, le caractère correspondant(mot et/ou symbole) devient orange . Les champs qui servent à confirmer desétapes de commande s’affichent en vert (par ex. OK ). Sélectionn...
Principe de commande 22 Saisir des lettres Servez-vous du clavier virtuel pour saisirles caractères. Choisissez des nomscourts et facilement reconnaissables. Effleurez les lettres ou caractèressouhaités. Conseil : le signe vous permet d'insé- rer un retour à la ligne pour les noms deprogramme l...
Équipement 23 Vous trouverez une liste des modèlesdécrits au dos du mode d'emploi. Plaque signalétique La plaque signalétique est visible sur lecadre de façade lorsque la porte est ou-verte.Vous y trouverez la désignation de votrefour, son numéro de fabrication ainsique ses données de raccordement (...
Équipement 24 Plaque de cuisson multi-usages etgrille avec butée de sécurité Plaque de cuisson multi-usages HUBB 91 : Grille HBBR 92 : Insérez toujours ces accessoires entreles barres d'un des niveaux de supportde gradins.Insérez toujours la grille avec le creuxvers le bas.Ces accessoires sont dotés...
Équipement 25 Rails coulissants FlexiClips HFC 92 Vous pouvez utiliser les rails coulissantsFlexiClips aux niveaux 1–3. Insérez entièrement les rails coulis-sants FlexiClips dans l'enceinte decuisson avant de poser des acces-soires dessus.Les accessoires sont alors maintenusautomatiquement entre les...
Équipement 26 Enclenchez le rail coulissant sur labarre inférieure du niveau de cuisson(3.). Si les rails coulissants sont bloquésaprès le montage, tirez-les une foiscomplètement en forçant. Pour démonter un rail coulissantFlexiClips, procédez comme suit : Enfoncez complètement le rail coulis-sa...
Équipement 27 Pierre à pizza HBS 70 La pierre à pizza vous permet d'obtenirdes résultats de cuisson parfaits pourles spécialités à la pâte croustillante,comme les pizzas, les quiches, le pain,les petits pains, les petits fours salés ouautres.Cet accessoire est à base de pierre ré-fractaire vitrifiée...
Équipement 28 Accessoires de nettoyage et d'entre-tien - Pastilles de détartrage et un flexible en plastique avec support pour procé-der au détartrage du four - Chiffon multi-usages en microfibres- Nettoyant pour four Miele Dispositifs de sécurité - Sécurité enfants (voir chapitre « Réglages », ...
Première mise en service 29 Miele@home Votre four est équipé d'un module Wi-Fi intégré. Pour utiliser cette fonctionnalité, il vousfaut : - un réseau Wi-Fi- l’App Miele- un compte utilisateur Miele. Vous pouvez créer votre compte utilisateurvia l'App Miele. L'App Miele vous guide lors de laconnexion...
Première mise en service 30 Réglages de base Vous devez procéder aux réglages sui-vants dans le cadre de la première miseen service. Vous pourrez modifier cesréglages ultérieurement (voir chapitre« Réglages »). Risque de blessure en raison des surfaces brûlantes.Pendant le fonctionnement, le foure...
Première mise en service 32 Une diffusion de vapeur est activée au-tomatiquement après une certaine du-rée. Risque de blessure par dégage- ment de vapeur.La vapeur d'eau qui s'échappe estbrûlante.N'ouvrez pas la porte de l'appareilpendant la diffusion de vapeur. Faites chauffer le four à vide pend...
Réglages 33 Tableau des réglages Option Réglages disponibles Langue ... | deutsch | english | ... Site Heure Affichage Activé * | Désactivé | Désactivation de nuit Représentation Analogique * | Numérique Format de temps 24 heures * | 12 h (am/pm) Régler DateEclairage Activé«Activé»pendant 15 se...
Réglages 36 Accéder au menu « Réglages » Dans le menu Réglages , vous pouvez personnaliser votre four en adaptant lesréglages d'usine à vos besoins. Vous vous trouvez dans le menu princi-pal. Sélectionnez Réglages . Sélectionnez le réglage souhaité. Vous pouvez vérifier ou modifier les r...
Réglages 37 Eclairage - Activé L'enceinte reste allumée pendanttoute la cuisson. - «Activé»pendant 15 secondes Pendant un cycle de cuisson, l'éclai-rage de l'enceinte se désactive aubout de 15 secondes. Vous pouvez ré-activer l'éclairage pendant 15 autressecondes en effleurant la touche . - Désac...
Réglages 38 Bip touches Le volume du signal sonore qui s'activeà chaque fois que l'on effleure unetouche sensitive est représenté par unebarre à segments. - volume maximal - tonalité des touches désactivée Mélodie d'accueil Vous pouvez activer ou désactiver lamélodie ...
Réglages 39 L'eau de condensation risque d'en-dommager la niche d'encastrement, leplan de travail et peut provoquer lacorrosion du four.Si le four est réglé sur Commandé par la durée et que vous maintenez des ali- ments au chaud dans l'enceinte, l'hu-midité de l'air qui augmente risqued'embuer le ba...
Réglages 40 Sécurité Sécurité enfants La sécurité enfants prévient tout enclen-chement involontaire du four.Vous pouvez régler une minuterie ouune alarme et utiliser la fonction Mobi-leStart même si la sécurité enfants estactivée. La sécurité enfants reste activéemême après une coupure de courant....
Réglages 41 - Activer Ce réglage est visible uniquement siMiele@home est désactivé. La fonc-tion Wi-Fi est réactivée. - Désactiver Ce réglage est visible uniquement siMiele@home est activé. La configura-tion Miele@home est conservée, lafonction Wi-Fi est désactivée. - Etat de la connexion Ce réglage...
Réglages 42 Affichage en veille La fonction SuperVision est également disponible lorsque le four est en modeveille. Il faut pour cela que l'affichagede l'heure du four soit activé ( Ré- glages | Heure | Affichage | Activé ). - Activé Les appareils ménagers actifs qui sontconnectés au système Miel...
Réglages 43 Si vous ne souhaitez pas installer la miseà jour, désactivez la mise à jour à distance(RemoteUpdate). La mise à jour peut prendre quelques mi-nutes. Respectez les points suivants pour lafonction de mise à jour à distance : - Tant que vous ne recevez pas de noti- fication, aucune mise à j...
Alarme + Minuterie 44 La touche sensitive vous permet de régler la durée de la minuterie, parexemple pour faire cuire des œufs. Vouspouvez aussi régler l'alarme à heure fixe. Vous pouvez régler simultanémentdeux alarmes, deux minuteries ou unealarme et une minuterie. Utiliser la fonction Alarme V...
Alarme + Minuterie 45 Utiliser la fonction Minuterie Vous pouvez programmer la minute-rie pour surveiller certaines opéra- tions annexes, notamment pour la cuis-son des œufs.Vous pouvez également utiliser la minu-terie si vous avez configuré le démar-rage ou l'arrêt d'un cycle de cuisson enparall...
Menu principal et sous-menus 46 Menu Valeur pré- conisée Plage Modes de cuisson Chaleur tournante + 160 °C 30–250 °C Chaleur sole/voûte 180 °C 30–280 °C HydraCook HydraCook + Rôtissage auto 160 °C 130–230 °C HydraCook + Chal.tournante+ 160 °C 130–250 °C HydraCook + Cuisson in...
Conseils d'économie d'énergie 48 Cuisson - Privilégiez les programmes automa- tiques pour préparer vos plats. - Retirez du four tous les accessoires dont vous n'avez pas besoin pour lacuisson. - En général, il vaut mieux choisir la température la plus faible de la four-chette indiquée dans la recett...
Commande 50 Mettez le four en marche. Le menu principal s’affiche. Enfournez le plat. Sélectionnez Modes de cuisson . Sélectionnez le mode de cuisson sou-haité. Le mode de cuisson et la températurepréprogrammée s'affichent. Si nécessaire, modifiez la températurepréprogrammée. La tempér...
Commande 51 Régler les temps de cuisson La cuisson sera moins réussie si leplat reste trop longtemps dans le fouravant le début du programme. Lesproduits frais peuvent perdre leurcouleur, voire devenir impropres à laconsommation.Pour le pain et les pâtisseries, la pâterisque de se dessécher et de le...
Commande 52 Annuler la cuisson Lorsque vous annulez une cuisson, lechauffage et l'éclairage de l'enceintes'éteignent. Les temps de cuisson ré-glés sont supprimés. Annuler une cuisson sans durée réglée Sélectionnez Terminer . Le menu principal s'affiche. Annuler une cuisson avec une duréeréglée S...
Commande 53 Activer ou désactiver le Booster pourune cuisson Si vous avez sélectionné Booster | Activé , vous pouvez désactiver cette fonctionmanuellement pour un cycle de cuisson.De la même manière, si vous avez sé-lectionné Booster | Désactivé , vous pou- vez activer cette fonction manuellementp...
Commande 54 Crisp function La fonction Crisp function (réduction du taux d'humidité) est particulièrementavantageuse pour certaines prépara-tions, telles que les quiches, les pizzasou encore les muffins.Elle permet également de rendre la peaudes volailles plus croustillante. Activer Crisp function L...
HydraCook 55 Votre four est équipé d'un systèmed'apport d'humidité. En mode Hydra- Cook , un apport de vapeur et une ventilation optimisés garantissent unecuisson et un brunissage uniformes devos viandes, pains et pâtisseries.Vous pouvez combiner l'apport d'humi-dité avec différents types de cha...
HydraCook 56 Démarrer une cuisson avec Hy-draCook Il est normal que de la buée se formesur la vitre intérieure pendant une dif-fusion de vapeur. Elle s'évapore en-suite pendant la cuisson. Préparez le plat et enfournez-le. Sélectionnez Modes de cuisson . Sélectionnez HydraCook . Séle...
HydraCook 57 Préparation de l'eau et démarrage duprocessus d'aspiration Versez dans un récipient la quantitéd'eau demandée. Ouvrez la porte. Sortez le tube d'aspiration situé àgauche en dessous du bandeau decommande. Plongez le tube d'aspiration dans lerécipient rempli d'eau. Validez en ef...
HydraCook 58 Manuel Vous pouvez déclencher les diffusionsde vapeur dès que Diffus. vapeur s'affiche et que le champ Départ devient vert. Attendez la fin de la phase de chauf-fage pour que la vapeur se mélangebien avec l'air chauffé de l'enceinte. Conseil : pour savoir à quel moment dé- clencher les ...
Programmes automatiques 60 Votre appareil propose de nombreuxprogrammes automatiques qui vouspermettent de réussir les plats les plusdivers. Catégories Pour une meilleure lisibilité, les pro-grammes automatiques sont re- groupés par catégorie. Il vous suffit desélectionner le programme correspon-...
Programmes automatiques 61 Recherche (en fonction de la langue)Sous Programmes automatiques , vous pouvez effectuer une recherche par nomparmi les catégories d'aliments et lesprogrammes automatiques répertoriésdans la liste.Il s'agit alors d'une recherche en texteintégral, qui peut aussi porter sur...
Fonctions spéciales 62 Vous trouverez dans ce chapitre des in-formations sur les applications sui-vantes : - Décongélation- Sécher- Chauffer la vaisselle- Faire lever la pâte- Cuisson basse température- Programme Shabbat- Maintien au chaud- Préparation de conserves- Produits surgelés/plats préparés ...
Fonctions spéciales 63 Sécher Le séchage ou la déshydratation des ali-ments est un moyen de conservationnaturel pour les fruits, certains légumeset les fines herbes.La condition est que les fruits et les lé-gumes soient frais, bien mûrs et nesoient pas abîmés. Préparez les aliments en les émin-çan...
Fonctions spéciales 64 Chauffer la vaisselle Utiliser de la vaisselle chauffée permetde maintenir la température des ali-ments plus longtemps. Utilisez de la vaisselle résistant à lachaleur. Introduisez la grille au niveau 1 et pla-cez la vaisselle à chauffer sur la grille.Selon la taille de la va...
Fonctions spéciales 65 Cuisson basse température La méthode de Cuisson basse tempéra- ture est idéale pour les pièces délicates de bœuf, de porc, de veau ou d'agneauqui doivent être cuites avec précision. Dans un premier temps, saisissez laviande rapidement et à haute tempéra-ture sur toutes ses fac...
Fonctions spéciales 66 Utiliser le mode Chaleur sole/voûte Inspirez-vous des indications figurantdans les tableaux de cuisson à la fin dece document. Utilisez la plaque de cuisson multi-usages avec la grille posée dessus. Insérez la plaque de cuisson multi-usages avec la grille au niveau 1. Séle...
Fonctions spéciales 68 Stériliser des conserves Risque d'infection lié à la forma- tion de germes.Si les légumes secs et la viande sontstérilisés une seule fois, les spores dela bactérie Clostridium botulinum nesont pas entièrement détruites. Destoxines peuvent se former et provo-quer de graves in...
Fonctions spéciales 69 / / Fruits –/– 30 °C 25–35 min concombres –/– 30 °C 25–30 min betteravesrouges 120 °C 30–40 min 30 °C 25–30 min haricots verts,haricots beurre 120 °C 90–120 min 30 °C 25–30 min / Température et durée de stérilisation, dès que les bulles sont visibles / Température et...
MyMiele 70 Vous pouvez enregistrer dans MyMiele les applications fréquem- ment utilisées.Dans le cas des programmes automa-tiques notamment, vous n'aurez plusbesoin de passer par tous les niveaux demenu pour démarrer un programme. Conseil : vous pouvez également définir les options enregistrées ...
Programmes personnalisés 71 Vous pouvez créer puis sauvegarder jus-qu'à 20 programmes personnalisés. - Vous pouvez combiner jusqu'à 10 étapes de cuisson pour décrire ledéroulement de vos recettes préfé-rées ou de ce que vous cuisinez leplus souvent. A chaque étape de cuis-son, il faut définir des ré...
Programmes personnalisés 72 Vous pouvez démarrer le programmeenregistré immédiatement ou ultérieu-rement, ou en modifier les étapes decuisson. Démarrer un programme per-sonnalisé Enfournez le plat. Sélectionnez Programmes personnali- sés . Sélectionnez un programme. En fonction des paramèt...
Cuisson de pâtisseries/pain 74 Un traitement en douceur des ali-ments est bon pour votre santé.Faites dorer les gâteaux, pizzas, fritesou autres aliments similaires sans lesfaire brunir. Conseils pour la cuisson - Réglez un temps de cuisson. Ne lais- sez pas les pâtisseries et le pain dansl'enceinte...
Rôtissage 76 Conseils de rôtissage - Vous pouvez utiliser n'importe quel plat en matériau thermorésistant, parex. plat à rôtir, cocotte, plat en verre,sac ou sachet de cuisson, plat enterre cuite Römertopf, plaque de cuis-son multi-usages, grille et/ou plaque àgriller et rôtir (si disponible) sur la...
Rôtissage 78 Thermosonde La thermosonde permet de surveillerune cuisson au degré près. Principe de fonctionnement La pointe métallique de la thermosondeest complètement enfoncée dans lapièce à cuire jusqu'à la poignée. Lapointe métallique contient un capteurthermique qui mesure la température àcœur,...
Rôtissage 79 Possibilités d'utilisation Certains programmes automatiques etfonctions spéciales vous invitent à utili-ser la thermosonde.Vous pouvez également vous en servirpour les programmes personnalisés etles modes de cuisson suivants : - Rôtissage automatique - Chaleur tournante + - Cuis...
Rôtissage 80 - La pointe métallique ne doit pas tou- cher d'os, ni être insérée dans desparties particulièrement grasses. Lagraisse et les os peuvent causer unarrêt prématuré de la cuisson. - Si la viande est marbrée et/ou très grasse, sélectionnez la valeur la plusélevée de la plage de températures...
Rôtissage 81 Différer une cuisson avec la thermo-sonde Vous pouvez programmer un départ dif-féré. Sélectionnez Départ à . Il est possible d'estimer l'heure de finde cuisson, car la durée d'une cuissonavec thermosonde correspond approxi-mativement à la durée d'une cuissonsans thermosonde.Le réglage...
Mode Gril 82 Risque de blessure en raison des surfaces brûlantes.Si vous utilisez un mode gril avec laporte ouverte, l'air chaud de l'en-ceinte ne passe plus devant le venti-lateur et n'est donc pas refroidi. Leséléments de commande deviennentchauds.Fermez la porte pendant la cuissonau gril. Conse...
Mode Gril 83 Sélectionner le temps de cuisson Les pièces de viande ou de poissonplates doivent cuire pendant env.6 à 8 minutes par face.Pour des temps de cuisson homo-gènes en mode Gril, choisissez desmorceaux de même épaisseur. De manière générale, vérifiez la cuis-son après le temps le plus...
Mode Gril 84 Griller avec le tournebroche Vous pouvez utiliser le tournebrocheavec les mode de cuisson Grand tour- nebroche et Petit tournebroche . Le tournebroche ne peut pas porterplus de 5 kg. Faites coulisser les supports pour labroche latéralement sur la plaque decuisson multi-usages ...
Nettoyage et entretien 85 Risque de blessure en raison des surfaces brûlantes.Pendant le fonctionnement, le fourest brûlant. Vous pouvez vous brûlerau contact des résistances, de l'en-ceinte et des accessoires.Attendez que l'enceinte de cuisson,les résistances et les accessoiresaient refroidi avan...
Nettoyage et entretien 86 Nettoyer les salissures nor-males Un joint est posé sur le tour de l'en-ceinte pour assurer l'étanchéité entrela vitre et l'enceinte. Il peut s'abîmersi vous le frottez ou le récurez.Évitez de le nettoyer autant que pos-sible. Nettoyer les salissures normales Il est conse...
Nettoyage et entretien 87 Nettoyer l'enceinte avec laPyrolyse Vous pouvez nettoyer l'enceinte decuisson avec la fonction Pyrolyse au lieu de la nettoyer à la main. Pendant le nettoyage par pyrolyse, l'en-ceinte de cuisson est chauffée à plus de400 °C. Cela permet de détruire et ré-duire en cendr...
Nettoyage et entretien 88 Démarrer la pyrolyse Risque de blessure par des va- peurs toxiques.Le nettoyage par pyrolyse peut déga-ger des vapeurs susceptibles d'irriterles muqueuses.Ne restez pas dans la cuisine pen-dant le nettoyage par pyrolyse et em-pêchez les enfants et les animaux do-mestiques...
Nettoyage et entretien 89 Terminer la pyrolyse Dès que le temps restant arrive à zéro,un message indique que la porte est dé-verrouillée.Dès que la porte est déverrouillée, Ter- miné s'affiche et un signal retentit. Validez en effleurant OK . Sélectionnez Fermer . Arrêtez le four. Les signaux ...
Nettoyage et entretien 90 Détartrer Le système d’évaporation doit être détar-tré plus ou moins souvent, en fonction dela dureté d’eau.Vous pouvez effectuer un détartrage àtout moment.Après un certain nombre de cuissons, lesystème vous invite automatiquement àdétartrer le four afin d'assurer son bonf...
Nettoyage et entretien 91 Insérez la plaque de cuisson multi-usages au niveau le plus haut et en-foncez-la bien, afin de recueillir le pro-duit détartrant suite à l'utilisation. Va-lidez en effleurant OK . Déposez le récipient contenant le pro-duit de détartrage sur la sole de l'en-ceinte de cui...
Nettoyage et entretien 92 Retirez la plaque de cuisson multi-usages contenant l'eau de rinçage re-cueillie, videz-la et replacez-la sur leniveau d'introduction supérieur. Retirez le flexible plastique du réci-pient et remplissez le récipient d'envi-ron 1 l d'eau froide du robinet. Remettez le ...
Nettoyage et entretien 93 Démonter la porte La porte pèse env. 14 kg. La porte est fixée aux charnières par dessupports.Pour démonter la porte, vous devezd'abord déverrouiller les étriers de blo-cage des deux charnières. Ouvrez complètement la porte. Déverrouillez les étriers de blocage enles to...
Nettoyage et entretien 94 Désassembler la porte La porte est constituée d'un systèmeouvert comprenant 4 vitres partielle-ment dotées d'un revêtement réfléchis-sant la chaleur.Pendant le fonctionnement du four, del'air circule également dans la porte, desorte que la vitre extérieure reste froide.Si d...
Nettoyage et entretien 95 Soulevez légèrement la vitre inté- rieure et sortez-la de la baguette enplastique. Retirez le joint. Soulevez légèrement la vitre intermé-diaire supérieure et retirez-la. Soulevez légèrement la vitre intermé-diaire inférieure et sortez-la. Nettoyez les vitres de p...
Nettoyage et entretien 96 Tournez les dispositifs de blocage desvitres vers l'intérieur de sorte qu'ilsreposent sur la vitre intermédiaire in-férieure. Insérez la vitre intermédiaire supé-rieure de telle sorte que la référencesoit lisible (et non inversée).La vitre doit reposer sur les dispositi...
Nettoyage et entretien 97 Monter la porte Saisissez la porte par les côtés et in-sérez-la sur les supports des char-nières.Veillez à ne pas coincer la porte. Ouvrez complètement la porte. Si les étriers de blocage ne sont pasbien verrouillés, la porte risque desortir des supports et d'être endom...
Nettoyage et entretien 98 Sortez les supports de gradins de lafixation par l'avant (1.) et retirez-les (2.). Le montage s'effectue dans l'ordre in- verse. Montez les pièces avec précaution. Abaisser la résistance devoûte/gril Si la voûte de l'enceinte de cuisson esttrès sale, vous pouvez abaisse...
En cas d'anomalie 99 Vous pouvez régler la plupart des défauts ou anomalies courants par vous-même.Dans bon nombre de cas, vous économiserez ainsi du temps et de l'argent car vousn'aurez pas besoin de faire appel au service après-vente.Sur www.miele.com/service, vous trouverez des informations sur l...
En cas d'anomalie 102 Problème Cause et solution Vous entendezencore un bruitde fonctionne-ment après la finde la cuisson. Le ventilateur de refroidissement continue de fonctionnerlorsqu'un programme est terminé (voir chapitre « Réglages »,section « Arrêt différé du ventilateur »). Le four s'est ar-...
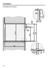
Installation *INSTALLATION* 105 Dimensions d'encastrement Les cotes sont indiquées en mm. Encastrement dans un meuble haut ou bas Si le four doit être encastré sous une table de cuisson, il convient de respecter lesinstructions concernant l'encastrement de la table de cuisson ainsi que sa hau-teur d...
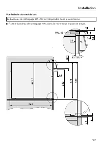
Installation *INSTALLATION* 107 Vue latérale du meuble bas Le bandeau de rattrapage HAL 90 est disponible dans le commerce. Fixez le bandeau de rattrapage HAL dans la niche sous le plan de travail.
Installation *INSTALLATION* 108 Raccordements et aération a Vue avant b Câble d'alimentation, longueur = 2 000 mm c Pas de raccordement dans cette zone d Découpe d'aération de min. 150 cm ²
Installation *INSTALLATION* 109 Encastrement du four N'utilisez le four que lorsque celui-ciest encastré, afin de garantir son bonfonctionnement. Le four nécessite une arrivée d'airsuffisante pour son fonctionnement.L'air de refroidissement ne doit pasêtre excessivement chauffé pard'autres sources d...
Installation *INSTALLATION* 110 Raccordement électrique Risque de blessure ! Miele décline toute responsabilité encas de travaux d’installation et d’en-tretien non conformes ou de répara-tions incorrectes pouvant entraînerde graves dangers pour l’utilisateur. Le raccordement au réseau élec-trique ...
Tableaux de cuisson 112 Pâte à gâteau Gâteaux/pâtisseries (accessoire) [°C] [min] CF Muffins (1 plaque) 150–160 – 2 25–35 – Muffins (2 plaques) 150–160 – 1+3 30–40 3 – Petits gâteaux (1 plaque)* 140 – 1 30–40 – 160 2 – 2 20–30 – Petits gâteaux (2 plaques)* 150 – 1+3 30–40 – Quatr...
Tableaux de cuisson 113 Pâte brisée Gâteaux/pâtisseries (accessoire) [°C] [min] CF Biscuits à l'emporte-pièce (1 plaque) 140–150 – 1 20–30 – 150–160 – 2 25–35 – Biscuits à l'emporte-pièce(2 plaques) 140–150 – 1+3 25–35 2 – Sprits (1 plaque)* 140 – 1 35–45 – 160 1 – 2 20–30 – Spri...
Tableaux de cuisson 114 Pâte levée Gâteaux/pâtisseries (accessoire) [°C] [min] CF Kouglof ( 24 cm) 160–170 1 45–55 – 160–170 1 50–60 – Pain de Noël allemand 150–160 – 1 50–60 – 160–170 1 45–55 – Tarte aux fruits et au crumble(plaque) 160–170 – 1 50–60 165–175 – 2 50–...
Tableaux de cuisson 115 Pâte à l'huile et au fromage blanc Pâtisseries/petits gâteaux [°C] [min] CF Tarte aux fruits (plaque) 160–170 – 2 40–50 – 170–180 – 2 40–50 – Chaussons aux pommes/pains auxraisins (1 plaque) 160–170 2 25–35 Chaussons aux pommes/pains auxraisins (2 plaques)...
Tableaux de cuisson 117 Plats salés Aliment (accessoire) [°C] [min] CF Tarte salée (plaque) 220–230 3 1 30–40 180–190 – 1 40–50 Tarte à l'oignon (plaque) 180–190 3 2 25–35 – 170–180 – 2 30–40 Pizza, pâte levée (plaque) 170–180 2 30–40 210–220 3 – 2 25–35 Pizza, ...
Tableaux de cuisson 118 Bœuf Aliment (accessoire) [°C] [min] [°C] Bœuf en daube, env. 1 kg(plat à rôtir avec couvercle) 2 150–160 3 1 120–130 5 – 2 170–180 3 1 120–130 5 – 2 170–180 – 1 160–180 6 – Filet de bœuf, env. 1 kg(plaque de cuisson multi-usages) 2 180–190 3 1 25–60...
Tableaux de cuisson 119 Veau Aliment (accessoire) [°C] [min] [°C] Veau en daube, env. 1,5 kg(plat à rôtir avec couvercle) 2 160–170 3 1 120–130 4 – 2 170–180 3 1 120–130 4 – Filet de veau, env. 1 kg(plaque de cuisson multi-usages) 2 160–170 3 1 30–60 45–75 Filet de veau, saig...
Tableaux de cuisson 120 Porc Aliment (accessoire) [°C] [min] [°C] Rôti/échine, env. 1 kg (plat à rôtiravec couvercle) 160–170 1 130–140 5 80–90 180–190 1 140–150 5 80–90 Rôti avec barde, env. 2 kg (plat à rô-tir) 180–190 1 140–150 6,7,8 80–90 190–200 1 130–150 7,8 80–90 F...
Données à l'intention des instituts de contrôle 123 Plats tests selon la norme EN 60350-1 Plats tests (accessoire) [°C] [min] CF Gâteaux individuels (1 plaque de cuis-son multi-usages 1 ) 140 – 1 30–40 – 160 4 – 2 20–30 – Gâteaux individuels (2 plaques decuisson multi-usages 1 ) 150 ...
Données à l'intention des instituts de contrôle 124 Classe d'efficacité énergétique d'après la norme EN 60350-1 La classe d'efficacité énergétique est déterminée selon la norme EN 60350-1. Classe d'efficacité énergétique : AVeuillez tenir compte des indications suivantes pour procéder à la mesure : ...
Caractéristiques techniques 125 Déclaration de conformité Par la présente, Miele déclare que ce four est conforme à la directive 2014/53/EU. Le texte complet de la déclaration de conformité se trouve sous une des adressesInternet suivantes : - Page d'accueil miele sur www.miele.fr ou www.miele.be/fr...
Caractéristiques techniques 126 Droits d’auteur et licences Miele utilise son propre logiciel ou un logiciel tiers non couvert par une licenceopen source, pour faire fonctionner et contrôler l’appareil. Le présent logiciel/lescomposants de logiciel sont soumis à des droits d’auteur. Les droits d’aut...