Miele KF 2902 Vi - Manuels
Manuel d'utilisation Miele KF 2902 Vi












































































































































Résumé
Table des matières 2 Consignes de sécurité et mises en garde ....................................................... 6 Votre contribution à la protection de l'environnement .................................. 18 Installation ...............................................................................
Table des matières 3 Accessoires ....................................................................................................... 63 Accessoires fournis ............................................................................................. 63Accessoires en option .........................
Table des matières 5 Origines des bruits ............................................................................................ 135 Service après-vente .......................................................................................... 136 Contact en cas d'anomalies........................
Consignes de sécurité et mises en garde 6 Cet appareil est conforme aux dispositions de sécurité en vigueur.Toute utilisation non conforme peut toutefois causer des dom-mages corporels et matériels. Lisez attentivement le mode d'emploi et les instructions de mon-tage avant de mettre l'appareil en se...
Consignes de sécurité et mises en garde 7 Utilisation conforme Cet appareil est conçu pour un usage ménager dans un environ- nement domestique ou similaire, par exemple :– dans des magasins, des bureaux ou d'autres environnements detravail similaires– dans des exploitations agricoles– par des clie...
Consignes de sécurité et mises en garde 8 Précautions à prendre avec les enfants Tenez les enfants de moins de 8 ans éloignés de l'appareil à moins qu'ils ne soient sous étroite surveillance. Les enfants de huit ans et plus ne sont autorisés à utiliser l'ap- pareil sans surveillance que s'il leu...
Consignes de sécurité et mises en garde 9 Sécurité technique Le circuit frigorifique a été testé pour détecter les fuites. L'appareil est conforme aux consignes de sécurité en vigueur et aux directiveseuropéennes en vigueur. Cet appareil frigorifique contient du fluide frigorigène isobutane (R60...
Consignes de sécurité et mises en garde 10 Les données de raccordement (tension et fréquence) figurant sur la plaque signalétique de l'appareil doivent impérativement corres-pondre à celles du réseau électrique pour éviter d'endommagervotre appareil. Comparez ces données avant de brancher votre ap...
Consignes de sécurité et mises en garde 13 Si vous conservez des aliments contenant de la graisse ou de l'huile dans la contreporte, veillez à ce que la graisse ou l'huile nefuient pas sur les pièces en plastique de l'appareil. Des fissuresrisquent d'apparaître dans le plastique qui peut casser. ...
Consignes de sécurité et mises en garde 14 Ne consommez pas d'aliments qui ont dépassé la date limite de congélation : vous risquez une intoxication ! La durée de conserva-tion des aliments dépend de nombreux facteurs dont leur degré defraîcheur, leur qualité et leur température de conservation. R...
Consignes de sécurité et mises en garde 15 Accessoires et pièces détachées Utilisez exclusivement des accessoires d'origine Miele. Le mon- tage d'autres pièces exclut le bénéfice de la garantie. Miele offre une garantie d'approvisionnement de 10 ans minimum et jusqu'à 15 ans pour le maintien en ...
Consignes de sécurité et mises en garde 16 Transport L'appareil doit impérativement être transporté à la verticale et dans son emballage afin de ne subir aucun dommage. Risque de dommages corporels et matériels ! L'appareil étant très lourd, transportez-le toujours à l'aide d'une deuxième person...
Consignes de sécurité et mises en garde 17 Les projections d'agent réfrigérant peuvent provoquer des lésions oculaires ! N'endommagez aucune partie du circuit de refroidisse-ment, par exemple - ne percez jamais les conduits de l'évaporateur contenant du frigo- rigène, - ne coudez pas les conduits,...
Votre contribution à la protection de l'environnement 18 Nos emballages Nos emballages protègent votre appa-reil des dommages pouvant survenirpendant le transport. Nous les sélec-tionnons en fonction de critères écolo-giques permettant d'en faciliter le recy-clage. En participant au recyclage de vos...
Installation *INSTALLATION* 19 Lieu d'installation Choisissez une pièce très peu humideque vous pouvez aérer facilement. Au moment de choisir le lieu d'installa-tion, gardez à l'esprit que la consom-mation énergétique de l'appareil aug-mente lorsqu'il est à proximité immé-diate d'un chauffage, d'une...
Installation *INSTALLATION* 20 Risque de dommages dû à un taux d'humidité élevé.Lorsque le taux d'humidité est élevé,de la condensation peut s'accumulersur les parois extérieures de l'ap-pareil et peut engendrer de la corro-sion.Nous recommandons d'installer l'ap-pareil dans une pièce sèche et/ouc...
Installation *INSTALLATION* 21 Charge admissible du sol de niche Pour un montage sécurisé de l'appareilet afin de garantir son bon fonctionne-ment, le sol doit être plat et bien à l'ho-rizontale. Par ailleurs, il doit être constitué d'unmatériau dur et rigide. En raison du poids important de l'ap-pa...
Installation *INSTALLATION* 22 Installation côte à côte (side by side) Cet appareil peut être installé à côtéd'un autre appareil frigorifique en confi-guration « side by side ». Dans l'aperçuci-dessous, vous pouvez voir quellessont les configurations de montage sideby side avec votre appareil. Pour ...
Installation *INSTALLATION* 23 . . . sans paroi de séparation Si les deux appareils de froid ne sontpas séparés par une paroi de sépara-tion, ils doivent être reliés l'un à l'autregrâce au kit de montage side by side. Ilfaut également installer le chauffage la-téral pour éviter la formation d'eau de...
Installation *INSTALLATION* 28 Encastrement de l'appareil Avant de commencer Lisez attentivement le mode d'emploiet les instructions de montage avantde mettre l'appareil en service.L'appareil frigorifique doit être instal-lé par un installateur qualifié en sui-vant le mode d'emploi et les instruc-ti...
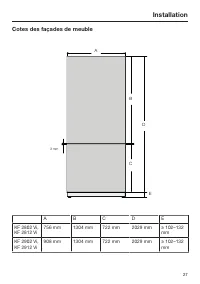
Installation *INSTALLATION* 29 Poids des façades de meuble Avant de monter les façades sur lesmeubles, assurez-vous que leur poidsne dépasse pas le poids maximal auto-risé : Appareil Poids max. façadesupérieure Poids max. façade in-férieure KF 2802 Vi,KF 2812 Vi 45 kg 18 kg KF 2902 Vi,KF 2912 Vi 40 ...
Installation *INSTALLATION* 30 Contrôler la niche d'encastrement Contrôlez la niche d'encastrement(voir chapitre « Installation », section« Cotes d'encastrement »). Vérifiez la position du branchementélectrique. La longueur du câble d'ali-mentation électrique est de 3 m. La prise de courant ne d...
Installation *INSTALLATION* 31 Avant d'encastrer votre appareil Avant d'encastrer l'appareil, retirezles accessoires de la face extérieurede l'appareil. Risque de dommages en raison d'une aération insuffisante.Si l'appareil de froid n'est pas suffi-samment aéré, cela peut entraîner laformation d...
Installation *INSTALLATION* 32 2 Dévissez les équerres de fixation . Mettez-vous à plusieurs pour soule-ver l'appareil de la palette en faisantbien attention et en commençant parle dos de l'appareil. Risque de dommages si le sol est trop sollicité.Le déplacement de l'appareil frigori-fique p...
Installation *INSTALLATION* 33 Les équerres anti-basculement em-pêchent l'appareil de basculer. En outre, les équerres anti-basculementaident à fixer solidement la niche d'en-castrement aux murs qui sont autour. Pour chaque appareil, utilisez2 équerres anti-basculement , et si vous combinez 2 ap...
Installation *INSTALLATION* 34 Dans le paquet joint se trouvent desvis de fixation pour différents typesd'utilisation/de matériaux. Fixation à un mur en béton Fixation à un mur en bois Fixation avec cale en bois Utilisez à présent les équerres anti-basculement pour fixer si besoin la niche d'enc...
Installation *INSTALLATION* 36 Ajuster l'appareil frigorifique Les dispositifs de réglage de la porte de l'appareil aident à positionnerce dernier dans la niche d'encastre-ment. Les dispositifs de réglage sont prévuspour des épaisseurs de façades de19 mm ou de 38 mm. Ajustez ensuite la position ...
Installation *INSTALLATION* 37 Placez les entretoises fournies des deux côtés au niveau des marquagesà côté des pieds réglables de l'ap-pareil. Réglez les pieds arrière à l'aide d'uneclé à cliquet (embout : douille, 8 mm)ou d'un tournevis (TX 20) .
Installation *INSTALLATION* 38 Réglez les pieds avant à l'aide d'uneclé à cliquet (embout : douille, 8 mm)ou d'un tournevis (TX 20) . Conseil : pour dévisser les pieds ré- glables, procédez par étapes : alterneztoujours gauche, droite, gauche, etc. Pour équilibrer l'appareil frigorifique,plac...
Installation *INSTALLATION* 39 Risque de dommages en raison d'un réglage trop important despieds.Les pieds de réglage arrière pour-raient être endommagés.Dévissez les pieds réglables au maximum jusqu'à ce que le mar- quage visible sur le socle se retrouveà 62 mm (hauteur de niche max. de2164 mm). ...
Installation *INSTALLATION* 40 Ouvrez les portes de l'appareil. Vissez les languettes supérieures etinférieures de la plaque de fixation sur les meubles/éléments qui en-tourent l'appareil. Dans le cas d'une combinaison sideby side, les appareils de froid nepeuvent être fixés aux meubles/équi-...
Installation *INSTALLATION* 43 Enfoncez des deux côtés leséquerres d'angle jusqu'à la butée dans les ouvertures prévues à cet ef-fet sur le cadre de montage . Fixer et ajuster la façade de meuble Ouvrez la porte de l'appareil et sus-pendez la façade du meuble avec lecadre de montage dans...
Installation *INSTALLATION* 44 Appuyez sur les deux côtés deséquerres d'angle dans le cadre en plastique blanc et vissez-les de ma-nière à serrer légèrement. Vous trou-verez pour ce faire des vis de re-change dans le sac en plastique por-tant la lettre E. Montez les écarteurs des deux cô- t...
Installation *INSTALLATION* 46 Monter les équerres de fixation Les équerres de fixation permettent defixer le dessous des façades de meubleaux portes de l'appareil. Montez les équerres de fixation seule-ment après avoir encastré l'appareil(en configuration side-by-side le caséchéant) et installé les...
Installation *INSTALLATION* 47 Vissez la vis située sous la porte del'appareil. Montez le cache sur l'équerre de fixation . Fixez le cache sur l'équerre de fixation jusqu'au déclic.
Installation *INSTALLATION* 48 Fixer les caches Pour pouvoir fixer le cache dans l'interstice au-dessus de l'appareil,vous devez assembler le cachecomme suit : Emboîtez les deux pièces du cache. Vue de côté Insérez le cache dans l'interstice au-dessus de l'appareil jusqu'à cequ'il s'encliq...
Installation *INSTALLATION* 50 Installez le cache sur le commuta- teur d'éclairage. Fixer la grille de ventilation du socleet la plinthe Encliquetez la grille de ventilation dusocle en bas dans le socle de l’ap- pareil. Si besoin est, coupez le panneau desocle à la bonne longueur et à la...
Installation *INSTALLATION* 52 Raccordement à l'eau cou-rante Instructions pour le raccordement àl'eau courante Risque de dommages corporels et matériels lié à un raccordementnon conforme.Un raccordement non conforme peutentraîner des blessures corporelleset/ou des dommages matériels.Seuls des pro...
Installation *INSTALLATION* 53 Remplacez exclusivement un tuyauen inox défectueux par un tuyau derechange d'origine Miele. Vous pou-vez vous procurer le tuyau en inoxpour contact alimentaire dans laboutique en ligne Miele, auprès duservice après-vente Miele ou devotre revendeur Miele. Un robinet d'a...
Installation *INSTALLATION* 54 Branchement électrique L'appareil doit exclusivement être rac-cordé à une prise avec mise à la terre, àl'aide du câble d'alimentation joint. Installez l'appareil de froid, de sorte quela prise soit facilement accessible. Si laprise n'est pas facilement accessible,vérif...
Économies d'énergie 57 Consommation énergétiquenormale Consommation énergétiqueélevée Utilisation Agencement des tiroirs, ta-blettes et balconnetsconforme à la sortie d'usine. Ouvrir la porte si nécessaireseulement et la refermer leplus vite possible. Bien rangervos aliments. Le fait d'ouvrir souven...
Description de l'appareil 60 Écran principal °C 4 1 2 3 4 5 -18 °C 6 7 a Affichage SuperFroid(visible uniquement lorsque la fonction SuperFroid est activée) b Affichage de température de consigne pour la zone de réfrigération c Touche sensitive de réglage de la température d Affichage...
Description de l'appareil 61 Mode Réglages Le mode Réglages permet de modifier les fonctions suivantes : Sym-bole Fonction Langue régler Luminosité régler (plus sombre à plus clair) Schéma de couleurs régler (sombre ou clair) / Signaux sonores régler le volume ou désactiver totalement les ...
Description de l'appareil 62 Miele@home configurer, désactiver ou demander le statut de laconnexion Wi-Fi (voir chapitre « Autres réglages ») * Mode expo désactiver * (visible uniquement si le Mode expo est activé, voir chapitre « Autres réglages ») Réglages usine réinitialiser les réglages d'...
Accessoires 63 Accessoires fournis Fiche de l'appareil Filtre Active AirClean Les filtres Active AirClean neutralisentles mauvaises odeurs dans la zone deréfrigération et empêchent les transfertsd'odeurs entre les aliments. Installez les filtres Active AirCleanfournis comme décrit au chapitre« Netto...
Première mise en service 65 Avant la première utilisation Après le transport, laissez l'appareilfrigorifique reposer pendant env.1 heure avant de le raccorder. Vous éviterez ainsi d'éventuels dys-fonctionnements de l'appareil. Emballages de transport Retirez tous les matériaux d'embal-lage qui se ...
Première mise en service 66 Installer les filtres Active AirClean Votre appareil frigorifique est équipé de2 filtres Active AirClean qui neutralisentles mauvaises odeurs dans la zone deréfrigération. Installez les filtres Active AirCleanfournis comme décrit au chapitre« Nettoyage et entretien », s...
Première mise en service 67 Disponibilité de la connexion Wi-Fi La connexion Wi-Fi partage une plagede fréquence avec d'autres appareils(par ex. micro-ondes, jouets télécom-mandés). Cela peut entraîner des pro-blèmes de connexion temporaires oucomplets. Une disponibilité constantedes fonctions propo...
Mise en marche et arrêt de l'appareil 70 Allumer l'appareil Ouvrez la porte de l'appareil. Appuyez sur le bouton Marche/Arrêtpour allumer l'appareil. L'appareil frigorifique commence à pro-duire du froid et l'éclairage intérieur s'al-lume chaque fois que la porte est ou-verte. Miele puis la page...
Mise en marche et arrêt de l'appareil 71 En cas d'absence prolongée Si l'appareil doit rester longtemps sansfonctionner : Arrêtez l'appareil. Débranchez l'appareil ou désactivezle fusible de l'installation domestique. Risque de dommages dû à un tuyau d'arrivée d'eau gelé.Si vous coupez l'arriv...
Autres réglages 72 Le mode Réglages vous permet de sélectionner différentes fonctions del'appareil et de modifier en partie leursparamètres pour mieux adapter l'ap-pareil à vos besoins. Vous trouverez ci-dessous la descrip-tion des fonctions du mode de ré-glage nécessitant des explications supp...
Autres réglages 73 Activer ou désactiver Mode éco Le Mode éco est recommandé par ex. pendant les vacances, si vous ne vou-lez pas complètement débrancher votreappareil mais que vous n’avez pas be-soin d’une grande puissance de réfrigé-ration. La consommation d’énergie estplus faible en Mode éco qu...
Autres réglages 74 Effectuer un Auto test Effectuez un Auto test si vous avez l'im- pression que votre appareil ne fonc-tionne pas parfaitement et qu'il doit êtrecontrôlé en vue de détecter d'éventuelsdéfauts. En mode Réglages , utilisez les touches et pour sélectionner la fonction Auto ...
Autres réglages 75 Activer l' Assistant de porte Vous avez le choix entre les deux assis-tants de porte Push2open et Pull2open . L'assistant Push2open est paramétré par défaut. L'assistant de porte Push2open convient pour les façades de meuble sans poi-gnées. Exercez une légère pression surla po...
Autres réglages 76 - Régler la durée d'AutoClose Vous pouvez également régler la duréed'ouverture de la porte de l'appareil jus-qu'à sa fermeture automatique. En mode Réglages , utilisez les touches et pour sélectionner la fonction Assistant de porte puis validez avec OK . En mode Réglage...
Autres réglages 77 Miele@home Activer Miele@home Le message Installer Miele@home appa- raît uniquement si l'appareil de froidn'est pas encore connecté à un réseauWi-Fi. Connectez votre appareil comme dé-crit dans le chapitre « Première miseen service ». Désactiver Miele@home En mode Réglages ...
Autres réglages 78 Reconfigurer Miele@home Si les informations ou les paramètres devotre réseau Wi-Fi ont changé, vouspouvez reconfigurer Miele@home pourvotre appareil frigorifique. En mode Réglages , utilisez les touches et pour sélectionner la fonction Miele@home puis validez avec OK . ...
Autres réglages 79 Réinitialiser les réglages d'usine Vous pouvez réinitialiser les réglages de l'appareil frigorifique aux réglagesd'usine. Avant de mettre au rebut votre appareil frigorifique, de le vendre, ou de mettre enservice un appareil frigorifique d’occasion, réinitialisez ses paramètres ...
Autres réglages 82 Activer le mode Holiday En mode Réglages , utilisez les touches et pour sélectionner la fonction Holiday puis validez avec OK . Sélectionnez activé à l'aide des touches sensitives et puis vali- dez en appuyant sur OK . L'affichage de la température pour lazone d...
Autres réglages 84 Activer le Témoin du filtre à eau Si le Témoin du filtre à eau a été désacti- vé, vous pouvez le réactiver si néces-saire. En mode Réglages , utilisez les touches et pour sélectionner la fonction Témoin du filtre à eau puis vali- dez avec OK . Sélectionnez activé à l'...
La bonne température 87 Il est primordial de sélectionner unetempérature correcte afin de bienconserver les aliments. Ceux-cis'abîment vite sous l'action de micro-organismes. Une bonne température deconservation peut retarder, voire empê-cher la dégradation des aliments. En ef-fet, la température in...
La bonne température 88 ... dans la zone de congélation Il faut obtenir une température de -18 °C pour congeler des aliments frais et les conserver longtemps. A cettetempérature le développement desmicro-organismes est très faible maisdès que la température dépasse les-10 °C, la décomposition des al...
La bonne température 89 Positionnez le régulateur de tempéra-ture sur « colder » (plus froid) en le ti-rant vers le bas. La température du compartiment secde la zone MasterFresh diminue gra-duellement pour s'établir juste au-des-sus de 0 °C. Possibilités de réglage de la tempé-rature La températur...
Utilisation de la fonction SuperFroid et SuperFrost 90 Fonction SuperFroid Grâce à la fonction SuperFroid, la zonede réfrigération atteint très rapidementla valeur la plus froide (en fonction de latempérature ambiante). Il est particulièrement recommandéd'enclencher la fonction SuperFroidlorsque ...
Utilisation de la fonction SuperFroid et SuperFrost 91 Fonction SuperFrost Enclenchez la fonction SuperFrost afinde congeler les aliments frais dans lesmeilleures conditions. Cette fonction permet de congeler lesaliments à cœur rapidement afin de pré-server leurs valeurs nutritives, leurs vita-mi...
Utilisation de la fonction SuperFroid et SuperFrost 92 Conseil : pour économiser l'énergie, vous pouvez désactiver vous-même lafonction SuperFrost, dès qu'une tempé-rature de congélation constante de -18 °C est atteinte. Contrôlez la tempé-rature dans la zone de congélation.
Alarme de température et de porte 93 L'appareil est équipé d'une alarme so-nore pour éviter que la températuredans la zone de congélation n'aug-mente sans que l'on s'en aperçoive etafin d'éviter une perte d'énergie si laporte de l'appareil devait rester ouverte. Alarme de température Si la températu...
Alarme de température et de porte 94 Alarme de porte Si l'une des portes de l'appareil resteouverte pendant plus de 2 minutes, unealarme se met à sonner.En outre, le message Fermer la porte s'affiche à l'écran. Dès que la porte de l'appareil est fer-mée, le signal sonore s'arrête et le mes-sage disp...
Aménagement intérieur 95 Déplacer ou retirer les balcon-nets de contreporte Déplacez ou retirez les balconnetsuniquement lorsqu'ils sont vides. Saisissez le balconnet à deux mainsau niveau du cadre et faites-le re-monter un peu, de sorte que les deuxergots sortent du guidage. Retirez le balconne...
Aménagement intérieur 96 Retirer le tiroir suspendu Retirez le tiroir suspendu sans le dé-caler sur les côtés, de manière à pou-voir le sortir des butées d'arrêt desdeux côtés. Pour le remettre en place, position-nez-vous bien en face et insérez le ti-roir suspendu dans le guidage. Vous pouvez d...
Aménagement intérieur 97 Retirer les compartiments dela zone de réfrigération Sortez légèrement le compartiment. Saisissez avec les deux mains le basdu cadre de fixation du compartimentet poussez ce dernier par à-coupvers le bas, de manière à ce qu'ilsorte des ergots à l'arrière. Sortez le com...
Aménagement intérieur 98 Retirer la paroi de séparation (selon le modèle) Vous pouvez extraire la paroi de sépara-tion du panier de congélation pour lanettoyer : La paroi de séparation est fixée au pa-nier de congélation par des supports. Sortez le panier de congélation leplus possible, jusqu'à la...
Entreposer ses aliments dans la zone de réfrigération 99 Risque d'explosion provoquée par des mélanges gazeux inflam-mables.Certains gaz inflammables risquentde prendre feu en présence de com-posants électriques.N'entreposez aucun produit explosifni aucun produit contenant un gazpropulseur (par ex...
Entreposer ses aliments dans la zone de réfrigération 100 Zone la moins froide La zone la moins froide du réfrigérateurse trouve tout en haut, au niveau de laporte de l'appareil. Utilisez cette zone,par exemple pour conserver votrebeurre et l'étaler plus facilement ouvotre fromage afin d'en préserve...
Entreposer ses aliments dans la zone de réfrigération 101 L'affichage de l'indicateur de tempé-rature est par ailleurs faussé en casd'ouverture prolongée ou répétée dela porte de l'appareil. Ouvrez tou-jours brièvement la porte de l'ap-pareil.Vérifiez de nouveau l'indicateur detempérature au bout de...
Entreposer ses aliments dans la zone de réfrigération 102 Conseil : Contactez le service après- vente si l'indicateur de températurereste noir après plusieurs contrôles et àun réglage plus froid. L'indicateur detempérature est endommagé et labonne conservation n'est pas garantie.Ne conservez pas d'a...
Conservation des aliments dans la zone MasterFresh 103 Zone MasterFresh La zone MasterFresh réunit les condi-tions optimales pour stocker fruits, lé-gumes, poissons, viandes et produitslaitiers. Les aliments restent frais pluslongtemps et les vitamines et le goûtsont préservés. La zone MasterFresh s...
Conservation des aliments dans la zone MasterFresh 105 Compartiment sec avec températurebasse La température dans le compartimentsec est comprise entre -1 °C et 3 °C.Ces températures, bien qu'inférieuresaux températures habituelles des zonesde réfrigération, offrent néanmoins desconditions idéales p...
Conservation des aliments dans la zone MasterFresh 106 Si vous n'êtes pas satisfait(e) du résultat de conservation des aliments, no-tamment s'ils semblent avoir perdu de leur fraîcheur, veuillez suivre lesconseils suivants : N'entreposez que des aliments frais. Les conditions de stockage sont très...
Congélation et conservation 107 Capacité maximale de congé-lation Pour garantir que les aliments soientcongelés à cœur le plus rapidementpossible, la capacité de congélationmaximale ne doit pas être dépassée. Lacapacité de congélation maximale dansles 24 heures est indiquée sur la plaquesignalétique...
Congélation et conservation 108 Congélation de produits Ne congelez que des produits frais etde première qualité ! Conseils pour la congélation - Peuvent être congelés : la viande fraîche, la volaille, le gibier,le poisson, les légumes, les finesherbes, les fruits crus, les produitslaitiers, le pai...
Congélation et conservation 109 Conseil : Vous pouvez bien entendu utiliser un appareil pour souder les sacset films de congélation. Inscrivez le contenu et la date decongélation sur l'emballage. Avant la congélation Si vous devez congeler plus de 2 kgde produits frais, activez la fonctionSuperF...
Congélation et conservation 111 Rafraîchissement rapide deboissons Si vous placez des bouteilles dans lecongélateur pour les refroidir plus rapi-dement, enlevez-les au bout d'une heure maximum , sinon elles risquent d'éclater.
Production de glaçons 112 Pour fonctionner, la fabrique automa-tique de glaçons a besoin d'être rac-cordée à l'eau courante (voir chapitre« Installation », section « Raccorde-ment à l'eau courante »). Risque sanitaire en raison de la prolifération de germes dans l'eau.La consommation d'une eau con...
Production de glaçons 113 Désactiver la fabrique de glaçons Si vous ne souhaitez plus produire deglaçons, vous pouvez désactiver la fa-brique automatique de glaçons indé-pendamment de la zone de congéla-tion. Fermez le robinet d'arrêt de l'arrivéed'eau env. 3 heures avant de mettrel'appareil frigo...
Dégivrage automatique 114 Zone de réfrigération et zone MasterFresh Le dégivrage de la zone de réfrigérationet de la zone MasterFresh est automa-tique. Pendant que le compresseur fonc-tionne, du givre et des gouttelettesd'eau peuvent se former sur la paroi ar-rière de la zone de réfrigération et de ...
Nettoyage et entretien 115 Veuillez vous assurer que l'eau nepénètre pas dans l'électronique nidans l'éclairage. Risque d'endommagement en cas de pénétration d'humidité.La vapeur d'un nettoyeur vapeurpeut endommager les plastiques etles composants électriques.N'utilisez en aucun cas de nettoyeurva...
Nettoyage et entretien 116 Avant le nettoyage Appuyez sur le bouton Marche/Arrêtpour éteindre l'appareil. Sortez tous les aliments qui setrouvent dans l'appareil. Entreposez-les dans un endroit frais. Démontez toutes les autres piècesamovibles pour les nettoyer (voir cha-pitre « Aménagement in...
Nettoyage et entretien 117 Nettoyer le joint de porte Risque de dommages dus à un nettoyage incorrect.Si un corps gras est appliqué sur lejoint de porte, il risque de devenirporeux.N'appliquez aucun corps gras sur lejoint de porte. Nettoyez régulièrement le joint à l'eauclaire puis séchez-le soi...
Nettoyage et entretien 118 Nettoyez le tamis à l'eau courantetiède. Tournez le tamis de manière àle nettoyer intégralement. 4. Réinsérez le tamis à l'arrière dans lacartouche filtrante 4.). 5 . Insérez la cartouche filtrante jusqu'àla butée dans l'ouverture du filtre 5.).Le cache doit se trouv...
Nettoyage et entretien 119 réglage à l'écran (voir chapitre « Autres réglages », section « Réinitiali-ser le Témoin du filtre à eau »). Changer les filtres ActiveAirClean Les filtres Active AirClean dans la zonede réfrigération doivent être remplacéstous les 6 mois environ. L’écran affiche : ...
Nettoyage et entretien 120 Après le nettoyage Replacez toutes les pièces dans lazone de réfrigération. Remettez l’appareil frigorifique enmarche. Déposez les aliments dans la zone deréfrigération, puis refermez les portesde l'appareil. Pour accélérer la production de froidde la zone de congé...
Filtre à eau 121 L'appareil frigorifique est équipé d'unfiltre à eau (filtre à tamis IntensiveClear)qui filtre l'eau courante pour la prépara-tion de glaçons. Le filtre à tamis IntensiveClear filtre lesmatières en suspension dans l’eaucourante, mais pas les bactéries ni lesmicrobes. Le filtre à eau ...
Filtre à eau 123 1 . 2 . Tournez la cartouche filtrante situéedans le cache dans le sens contrairedes aiguilles d'une montre, en posi-tion verticale 1.) et sortez-la de l'ou-verture du filtre 2.). Retirez le capuchon de protection dela nouvelle cartouche filtrante. 4. 3 . 5 . Détachez le capuc...
Filtre à eau 124 mode de réglage à l'écran (voir cha- pitre « Autres réglages », section « Ré-initialiser le Témoin du filtre à eau »). Après avoir installé un nouveau filtreà charbon actif IntensiveClear, élimi-nez tous les glaçons produits dansles 24 heures suivant le remplace-ment.
En cas d'anomalie 125 Vous pouvez régler la plupart des défauts ou anomalies courants par vous-même.Dans bon nombre de cas, vous économiserez ainsi du temps et de l'argent carvous n'aurez pas besoin de faire appel au service après-vente. Sur www.miele.com/service, vous trouverez des informations sur...
En cas d'anomalie 129 Messages à l'écran Message Cause et solution Le signal sonore retentitet l'écran affiche : La température de congélationétait trop élevée. Tempéra-ture maximale °C . La température à l'intérieur de l'appareil a fortementaugmenté.Voici quelques causes possibles : – la porte de l...
En cas d'anomalie 131 Problèmes avec la fabrique de glaçons Problème Cause et solution La fabrique à glaçonsne produit aucun gla-çon. L'appareil frigorifique et la fabrique à glaçons ne sontpas activés. Activez l'appareil et la fabrique à glaçons. Vérifiez que le filtre à eau est correctement in...
Origines des bruits 135 Bruits nor-maux Quelle est leur origine ? Brrrrr... Le vrombissement provient du compresseur. Il peut être un peuplus fort au moment où le compresseur s'active. Blubb,blubb... Les gargouillements ou les ronronnements viennent du fluide ré-frigérant qui passe dans les conduits...
Service après-vente 136 Sur www.miele.com/service, voustrouverez des informations sur l'aideau dépannage et les pièces détachéesMiele. Contact en cas d'anomalies Vous n'arrivez pas à résoudre l'anoma-lie par vous-même ? Contactez le ser-vice après-vente Miele ou votre reven-deur Miele. Vous pouvez p...
Déclaration de conformité 137 Par la présente, Miele déclare que cecombiné réfrigérateur-congélateur estconforme à la directive 2014/53/EU. Le texte complet de la déclaration deconformité se trouve sous une desadresses Internet suivantes : - Page d'accueil miele France, sur www.miele.fr - Onglet Ser...
Droits d’auteur et licences 138 Miele utilise son propre logiciel ou un logiciel tiers non couvert par une licenceopen source, pour faire fonctionner et contrôler l’appareil. Le présent logiciel/lescomposants de logiciel sont soumis à des droits d’auteur. Les droits d’auteur dé-tenus par Miele et de...
9 avenue Albert Einstein - Z. I. du Coudray R.C.S. Bobigny B 708 203 088 55 Boulevard Malesherbes75008 Paris 30 rue du Bac75007 Paris Secteur Cap 3000285 avenue de Verdun06700 Saint-Laurent du Var MIELE FranceSiège social 93151 - Le Blanc-Mesnil CEDEX Miele Experience CenterParis Rive Gauche Miele E...
Other Miele Autres Manuals
-
Miele APWM 066 Notice d'Installation
-
Miele APWM 062 Notice d'Installation
-
Miele APWM 065 Notice d'Installation
-
Miele APWM 020 Manuel d'utilisation
-
Miele APWM 020 Notice d'Installation
-
Miele SC Notice d'Installation
-
Miele PR Notice d'Installation
-
Miele FP 900 Notice d'Installation
-
Miele RP 900 Notice d'Installation
-
Miele APWM 019 Manuel d'utilisation
-
Miele APWM 019 Notice d'Installation
-
Miele A 830/1 Manuel d'utilisation
-
Miele TT 86 Manuel d'utilisation
-
Miele RP 1150 Notice d'Installation
-
Miele UG 5010 Notice d'Installation
-
Miele UO 5010 Notice d'Installation
-
Miele APCL 001 Notice d'Installation
-
Miele E 473/2 Manuel d'utilisation
-
Miele APRI 312 Notice d'Installation
-
Miele DOS K 85 flex Notice d'Installation