Miele PDR 516 SL COP [G GS] - Manuels

Miele PDR 516 SL COP [G GS] - Manuel d'utilisation, Notice d'Installation, Guide rapide en ligne au format PDF.
Manuel d'utilisation Miele PDR 516 SL COP [G GS]












































































Résumé
Table des matières 2 Votre contribution à la protection de l'environnement ................................................ 4 Consignes de sécurité et mises en garde .................................................................... 5 Utilisation conforme .............................................
Table des matières 3 Mode exploitant (mode de programmation) ................................................................. 33 Conditions requises pour l'accès ...................................................................................... 33Accéder au mode exploitant ........................
Votre contribution à la protection de l'environnement 4 Nos emballages Nos emballages protègent votre sèche-linge des dommages quipeuvent survenir pendant le transport. Nous les sélectionnons enfonction de critères écologiques qui permettent de les recycler. En participant au recyclage de vos emball...
Consignes de sécurité et mises en garde 5 Veuillez impérativement lire ce mode d'emploi. Ce sèche-linge répond aux réglementations de sécurité en vigueur. Toute utilisation nonconforme peut toutefois causer des dommages corporels et matériels. Lisez attentivement le mode d'emploi avant de mettre l...
Consignes de sécurité et mises en garde 6 Tenez les enfants de moins de huit ans éloignés de l'appareil à moins qu'ils ne soient sous étroite surveillance. Les enfants de huit ans et plus ne sont autorisés à utiliser sèche-linge sans la présence d'un adulte que s'il leur a été expliqué comment l...
Consignes de sécurité et mises en garde 7 Il existe un risque d'écrasement et de cisaillement au niveau des charnières de la porte de remplissage et de la trappe à peluches. Utilisez uniquement les poignées et les at-taches rapides prévues à cet effet. Assurez-vous que le tambour est à l’arrêt a...
Consignes de sécurité et mises en garde 9 Il existe un risque d'asphyxie et d'intoxication en refoulant des gaz brûlés, si le circula- teur chauffant à gaz, le chauffage à gaz, le four à charbon avec raccordement de cheminéeetc. sont installés dans la même pièce ou dans le logement ou dans les piè...
Consignes de sécurité et mises en garde 10 - Si vous ne pouvez pas trouver la cause de l'odeur de gaz, bien que toutes les soupapes de gaz sont fermées, contactez immédiatement le distributeur de gaz concerné. Si d'autres personnes sont formées à la manipulation de l'appareil, il est impératif demet...
Première mise en service 11 Dommages corporels ou matériels dus à une mauvaise installa- tion.Une mauvaise installation du sèche-linge peut causer des dom-mages corporels ou matériels.Installez et raccordez le sèche-linge correctement avant sa pre-mière mise en service.Raccordez le sèche-linge cor...
Description de la machine 12 PDR 511 SL (avec pompe à chaleur) 8 6 9 7 1 4 5 2 3 a Bandeau de commande b Sélecteur rotatif Tournez le sélecteur rotatif pour mettre le sèche-linge en marche et sélectionner le pro-gramme de séchage. c Porte La porte s'ouvre en tirant sur la poignée. d Trappe d'accès a...
Utilisation 15 Appareils avec commande par humidité résiduelle 1 2 3 4 5 6 7 8 9 a Bandeau de commande b Touches sensitives pour paliers de séchage c Affichages d’état S’allument en cas de besoin d Touche sensitive active la cadence du ventilateur pour un séchage optimal des textiles légers...
Utilisation 16 Programmes de séchage - Position = programme « Blanc/Couleurs » Pour sécher les textiles en coton/lin - Position = programme « Blanc/Couleurs Délicat » Pour sécher les textiles fragiles en coton/lin - Position = programme « Synthétique/ Délicat » Pour sécher les fibres synth...
Utilisation 18 Minuterie - Position 5 = Minuterie 05 minutes - Position 10 – 55 = Minuterie 10–55 minutes - Position 60 = Minuterie 60 minutes - Position = appareil éteint
Utilisation 20 Pour sécher les textiles faciles à entretenir en matières synthétiques et en tissus mixtes. - Zone de position = palier de température « élevé » Pour sécher le linge blanc et coloré en coton ou en lin - Position = appareil éteint
Utilisation 21 Fonctionnement du bandeau de commande Les touches sensitives réagissent au contact du bout des doigts. La sélection est pos-sible tant que la touche sensitive correspondante est éclairée. Une touche sensitive avec un éclairage clair signifie qu'elle est actuellement sélectionnée. Une ...
Séchage 22 1. « Conseils d'entretien de votre linge ». Laver votre lingeavant de le sécher Lavez soigneusement les textiles très sales. Utilisez suffisamment delessive et lavez à haute température. En cas de doute, lavez le lingeplusieurs fois. Si des produits chimiques industriels ont été utilisés ...
Séchage 23 - textiles qui ne sont pas suffisamment nettoyés et sont souillés par de la graisse ou de l'huile. Nettoyez les textiles particulièrement trèssales (par ex. vêtement de travail) avec une lessive particulière.Veuillez vous renseigner auprès d'un vendeur de produits de lessiveou de nettoyag...
Séchage 24 2. Remplir le sèche-linge de linge Charger le linge Dommages causés aux textiles dus à un entretien incorrect du linge.Si l'entretien du linge n'est pas respecté, les textiles peuvent êtreendommagés par le processus de séchage.Avant de charger votre sèche-linge, lisez tout d'abord le ch...
Séchage 25 3. Sélectionner un programme Sélectionner unprogramme Le sèche-linge est enclenché via la sélection de programme et éteintpar la position du sélecteur de programme. Tournez le sélecteur de programme sur le programme souhaité. De plus, un palier de séchage peut s'allumer et des durées...
Séchage 27 4. Démarrer un programme Démarrer un pro-gramme Effleurez la touche sensitive Start/Stop clignotante. La touche sensitive Start/Stop s'allume. Déroulement de programme - Si vous avez paramétré un départ différé, l'appareil commence par décompter le temps restant jusqu'au départ du prog...
Séchage 28 5. Retirer le linge du sèche-linge Fin du pro-gramme Le sèche-linge peut être réglé de manière à ce qu'un signal sonoreretentisse à la fin du programme. A la fin du programme ( s'affiche sur l'écran), le linge est refroidi et peut être retiré. Si l'option Rotation infroissable a été...
Tableau des programmes 29 Bloc de programmes « Label » Nom de programme Type de textile approprié Paliers de séchage sélectionnables (humidité résiduelle en %) Options activables Capacité de charge maximale Coton Textiles en coton norma-lement humides - Séchage repasseuse (40 %) - Séchage fer à ...
Tableau des programmes 30 Bloc de programmes « Standard » Nom de programme Type de textile approprié Paliers de séchage sélectionnables (humidité résiduelle en %) Options activables Capacité de charge maximale Blanc/Couleurs Textiles en lin/ coton mo-nocouche ou multi-couches - Séchage repasseuse ...
Modifier le déroulement d'un programme 31 Changer le programme en cours Une nouvelle sélection de programme n'est plus possible pendant leprogramme en cours (protection contre toute modification involon-taire). Pour pouvoir choisir un nouveau programme, vous devez toutd'abord annuler celui qui est e...
Modifier le déroulement d'un programme 32 Ajouter du linge lors du départ différé en cours Vous pouvez ouvrir la porte puis ajouter ou retirer du linge. - Tous les réglages des programmes restent identiques. - Si vous le souhaitez, vous avez encore la possibilité de changer de palier de séchage. O...
Mode exploitant (mode de programmation) 39 Pro- gramme Désignation Valeur de ré- glage pos- sible Préréglage Explication Ventilation supplémentaire 00 01 00 00 = désactivé 01 = activé Choix module COM 00 01 02 00 00 = désactivé 01 = module interne 02 = module externe Blocage programme ex...
Mode exploitant (mode de programmation) 42 Temps de pause Valeur de réglage dans l'affichage secondes 2 s 3 s 4 s 5 s 6 s 7 s 8 s 9 s 10 s 11 s 12 s 13 s 14 s 15 s Terminer le mode de programmation Pour quitter le mode de programmation, tournez le sélecteu...
Mise en réseau 43 Instructions d'appariement Pour connecter le sèche-linge à votre réseau, procédez comme suit. Ouvrir le Mode exploitant Allumez l'appareil en tournant le commutateur rotatif de la position de l'interrupteur sur n'importe quelle autre position. Ouvrez la porte du sèche-linge....
Mise en réseau 44 Maintenez la touche enfoncée jusqu’à ce que s’affiche à l’écran. Un minuteur (Timer) démarre ensuite. Le sèche-linge ouvre alors le Soft-AP pendant 10 mi-nutes. Connectez-vous avec le Device Connector dans Miele MOVE. Dès qu'une connexion est établie, des points clignote...
Mise en réseau 45 La puissance du signal Wi-Fi peut être consultée grâce au MDU ou directement sur l’appa-reil. Puissance du signal Wi-Fi Signification MDU * 76 - 100 % 3/3** En général, fonctionnement fiable possible 51 - 75 % 2/3 26 - 50 % 1/3 En général, fonctionnement possible 1 - 25 % 0/3 En ...
Mise en réseau 46 DNS Domain Name System Les serveurs DNS (systèmes de bases de données répartis dans le monde entier) ré-gissent la conversion des noms de domaine (adresses Internet) en adresses IP et inverse-ment. Ethernet Ethernet Technologie de transmission standard pour des réseaux reliés par c...
Mise en réseau 50 Exemple pour un réseau Wi-Fi 1 Internet 2 Routeur WiFi = 192.168.1.1 3 PC = 192.168.1.2 4 Imprimante = 192.168.1.3 5 Smartphone = 192.168.1.4 6 Ordinateur portable = 192.168.1.5 7 Lave-linge = 192.168.1.6 Le routeur attribue automatiquement à chaque participant une adresse IP (DHCP...
Nettoyage et entretien 51 Nettoyer le filtre à peluches. Risque d'incendie dû au fonctionnement du sèche-linge sans filtre à peluches.Les conduites d'air, le chauffage et l'évacuation peuvent être obs-trués pendant le fonctionnement du sèche-linge sans filtre à pe-luches et provoquer un incendie.L...
Nettoyage et entretien 52 Après le nettoyage, insérez délicatement le volet du compartiment àpeluches dans le sèche-linge et refermez-le. Pour fermer le clapet du compartiment à peluches, tournez la poi-gnée du clapet du compartiment à peluches de 90° dans le sens in-verse des aiguilles d'une mo...
En cas d'anomalie . . 54 Quelques pistes Vous pouvez résoudre la plupart des anomalies par vous-même. En n'appelant pas le Ser-vice Miele, vous économisez du temps et de l'argent. Les tableaux suivants vous aiderontà déterminer les causes de la panne et à trouver une solution. Cependant : Les inte...
Service après-vente 55 Contact en cas d'anomalies Vous n'arrivez pas à résoudre l'anomalie par vous-même ? Contactez le service après-vente Miele ou votre revendeur Miele. Les numéros de téléphone du service après-vente Miele figurent en fin de notice. Veuillez indiquer le modèle et la référence de ...
Installation 56 Conditions d'installation Dommages corporels ou matériels dus à une mauvaise installation. Une mauvaise installation du sèche-linge peut causer des dommages corporels ou ma-tériels. Seul un professionnel agréé par Miele ou le service après-vente Miele doit se charger del'installati...
Installation 57 Dévissez les vis (Torx T 20 et T 30) de l'habillage en bois. Enlevez le revêtement en bois. Soulevez le sèche-linge avec le chariot élévateur. Montez les pieds fournis (4 pièces) Installer le sèche-linge Placez le sèche-linge sur une surface rigide, horizontale et totalemen...
Installation 58 Afin de garantir une alimentation en air suffisante de l'appareil et de faciliter une interven-tion de maintenance ultérieure, il faut installer un accès de maintenance derrière l'ap-pareil d'au moins 500 mm de large et accessible à tout moment. Il ne faut pas dépasserles distances...
Installation 59 Si plusieurs valeurs de tension sont indiquées sur la plaque signalétique, le sèche-linge peut être raccordé à la tension d'entrée correspondante. L'adaptation à un autre type detension ne doit être effectuée que par un revendeur spécialisé ou par le service après-vente Miele. Lors...
Installation 60 Installation de variantes chauffées à l'électricité et au gaz Arrivée d’air frais/ évacuation d’air Le sèche-linge ne peut être utilisé que si un conduit d'évacuation est correctement raccor-dé et si la pièce est suffisamment ventilée (voir instruction d'installation). Réducteur de b...
Installation 61 Longueurs de tuyaux de rechange Forme du coude Modèles PDR 516 SL Coude à 90° r = 2d 1,1 m Coude à 45° r = 2d 0,7 m Coude à 90° r = d 1,9 m Coude à 45° r = d 1,1 m Coude avec plis 90° r = 2d 3,2 m Coude avec plis 45° r = 2d 2,0 m Coude à segment 90° (3 soudures) r = 2d 1,2 m Coude 90...
Installation 62 En cas de tracé complexe des conduits avec de nombreux coudes, des pièces d'instal-lation supplémentaires ou en cas de raccordement de plusieurs appareils à un conduitcollecteur, un calcul détaillé du réseau de conduits par un planificateur spécialisé ou unprofessionnel est recommand...
Installation 63 En cas de changement de famille de gaz, il faut demander au service après-vente Miele unjeu d'adaptation correspondant. Les données requises sont le type de machine, le numérode machine ainsi que la famille de gaz, le groupe de gaz, la pression de raccordement augaz et le pays d'inst...
Installation 65 Gaz liquide Longueur de la conduite de gaz (gaz liquéfié) 5 m 10 m 20 m 50 m Largeur brute Débit maximal 10 mm 1,3 kg/h 1,0 kg/h - - 12 mm 2,0 kg/h 1,5 kg/h 1,0 kg/h - 16 mm 4,0 kg/h 3,0 kg/h 2,0 kg/h 1,5 kg/h 22 mm 9,0 kg/h 6,5 kg/h 4,5 kg/h 3,0 kg/h 27 mm - 12,0 kg/h 8,0 kg/h 5,0 k...
Installation 66 teur. Les conduits collecteurs doivent être aussi courts que possible et dégagés versune cheminée d'évacuation. Il faut prévoir une évacuation de l'eau condensée sur lazone la plus profonde. Pour toutes les exceptions, notamment lors de l'installation d'un conduit collecteur, ilfaut ...
Installation 67 Régulateur de gaz Pour régler la pression des buses, il faut retirer le capuchon en plastique en haut.. Sous lecapuchon en plastique se trouve une vis à six pans. Pour régler la pression des buses, ilfaut ajuster cette vis à l'aide d'un tournevis plat. Raccord de mesure de pression d...
Installation 68 Pressions de raccordement du gaz Si la pression de raccordement du gaz naturel est inférieure à 15 mbar (par exemple enraison d'une chute de pression dans le réseau d'alimentation), le fournisseur de gaz doitêtre informé. Pays Catégorie degaz Pression de raccordement du gaz naturel (...
Installation 70 Installation de variantes équipées de pompe à chaleur Conditions générales de fonctionnement Ce sèche-linge pompe à chaleur est prévu exclusivement pour une utilisation en milieuprofessionnel et doit être utilisé uniquement en intérieur. Température ambiante pour un fonctionnement op...
Installation 71 Un filtre à peluches est situé dans l'ouverture d'aspiration du sèche-linge. Les peluches surle filtre doivent être régulièrement retirées à la main. L'ouverture d'aspiration doit être constamment dégagée et ne doit en aucun cas être re-couverte ! Ouverture d’évacuation d’air Pour le...
Accessoires disponibles en option 72 Les accessoires de ce sèche-linge sont disponibles chez les revendeurs Miele ou au SAVMiele. Des accessoires ne peuvent être rajoutés ou montés que s'ils sont expressément autori- sés par Miele. Si d’autres pièces sont rajoutées ou montées, les prétentions à la...
Accessoires disponibles en option 73 Ces données ne sont pas initialement attribuées à un utilisateur spécifique et ne sont pasnon plus stockées de manière permanente. Ce n'est que lorsque vous reliez votre appareilà un utilisateur qu'une sauvegarde persistante des données et une affectation spécifi...
Accessoires disponibles en option 74 Contactez le service après-vente Miele, si vous avez besoin de pièces de rechange etd'accessoires ou si vous souhaitez un conseil personnalisé. Risque lié à des travaux de remise en état non conformes. Les travaux de réparation doivent être effectués exclusivem...
Belgique: S.A. Miele Belgique Z.5 Mollem 480 – 1730 Mollem (Asse)Tel. 02/451.15.40E-mail: [email protected] Internet: www.miele-professional.be Miele SALimmatstrasse 4, 8957 SpreitenbachTéléphone +41 56 417 27 51Téléfax +41 56 417 24 69[email protected]www.miele.ch/professionalService de réparation ...
Notice d'Installation Miele PDR 516 SL COP [G GS]




































































































































Résumé
fr - Table des matières 45 Consignes d'installation ................................................................................................. 46 Conditions d'installation .................................................................................................... 46Conditions général...
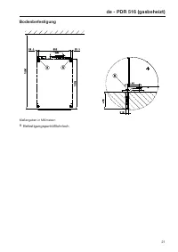
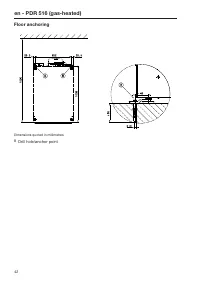
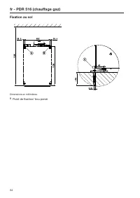
fr - Consignes d'installation 46 Conditions d'installation Dommages corporels ou matériels dus à une mauvaise instal- lation. Une mauvaise installation du sèche-linge peut causer des dom-mages corporels ou matériels. Seul un professionnel agréé par Miele ou le service après-venteMiele doit se char...
fr - Consignes d'installation 47 Dévissez les vis (Torx T 20 et T 30) de l'habillage en bois. Enlevez le revêtement en bois. Soulevez le sèche-linge avec le chariot élévateur. Montez les pieds fournis (4 pièces) Installer le sèche-linge Placez le sèche-linge sur une surface rigide, horizon...
fr - Consignes d'installation 48 PDR 516 SL x 1 800 mm y 710 mm z 1 090 mm Afin de garantir une alimentation en air suffisante de l'appareil et defaciliter une intervention de maintenance ultérieure, il faut installerun accès de maintenance derrière l'appareil d'au moins 500 mm delarge et accessib...
fr - Consignes d'installation 50 Forte formation de bruit et risque de dommages en raison d'un mauvais raccordement de phase sur les sèche-linge à pompe àchaleur.Une mauvaise position de phase entraîne une forte formation debruit dans les sèche-linge avec pompe à chaleur et peut endom-mager le com...
fr - Consignes d'installation 51 Installation de variantes chauffées à l'électricité et au gaz Arrivée d’air frais/évacuation d’air Le sèche-linge ne peut être utilisé que si un conduit d'évacuation estcorrectement raccordé et si la pièce est suffisamment ventilée (voirinstruction d'installation). R...
fr - Consignes d'installation 53 En cas de tracé complexe des conduits avec de nombreux coudes,des pièces d'installation supplémentaires ou en cas de raccorde-ment de plusieurs appareils à un conduit collecteur, un calcul dé-taillé du réseau de conduits par un planificateur spécialisé ou unprofessio...
fr - Consignes d'installation 54 En cas de changement de famille de gaz, il faut demander au serviceaprès-vente Miele un jeu d'adaptation correspondant. Les donnéesrequises sont le type de machine, le numéro de machine ainsi que lafamille de gaz, le groupe de gaz, la pression de raccordement au gaze...
fr - Consignes d'installation 57 Exceptions 1. S'il n'est pas possible de réaliser une évacuation individuelle, ilfaut alors vérifier par des mesures appropriées à ce que lors dufonctionnement d'une machine, le mélange air/ gaz brûlés vial'évacuation de l'air de l'autre machine ne puisse pas parveni...
fr - Consignes d'installation 58 Raccord principal Gaz naturel Gaz liquide Tuyau Raccord à vis Manchon réducteur Tuyau Régulateur de gaz Pour régler la pression des buses, il faut retirer le capuchon en plas-tique en haut.. Sous le capuchon en plastique se trouve une vis à sixpans. Pour régler la pr...
fr - Consignes d'installation 60 Risque de choc électrique et de blessure lors de l'utilisation du sèche-linge sans habillage extérieur complet.Lorsque l'habillage extérieur est retiré, il est possible d'accéder àdes pièces de machine sous tension ou en rotation.Après avoir installé le sèche-linge...
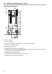
fr - PDR 516 (chauffage gaz) 61 Raccordements de l’appareil Dimensions en millimètres a Raccordement électrique b Raccordement au gaz (uniquement pour variantes chauffées au gaz) c Raccordement à l'arrivée d'air d Raccord d’évacuation e Raccord pour module de communicationLe module de communication ...
fr - Caractéristiques techniques 65 Variantes de tension possibles 1N AC 230 V, 50/60 Hz Raccordement standard Tension électrique 1N AC 230 V Fréquence 50/60 Hz Consommation 0,6 kW Protection électrique par fusibles (côté installation) 1×10 A Caractéristique de déclenchement du disjoncteur automatiq...
Guide rapide Miele PDR 516 SL COP [G GS]
















































































































Résumé
fr - Table des matières 3 Consignes de sécurité et mises en garde .................................................................... 5 Documentation .................................................................................................................. 5 Utilisation conforme ..............
fr - Table des matières 4 Résultat de séchage insatisfaisant .................................................................................... 33 Mise en réseau ................................................................................................................ 34 Instructions d'appar...
fr - Consignes de sécurité et mises en garde 5 Veuillez impérativement lire ce mode d'emploi. Documentation Ce document contient un condensé d'informations. Vous pouvez trouver le mode d'emploicomplet et d'autres documents sur le site internet de Miele : https://www.miele.fr/professional/modes-d-e...
fr - Consignes de sécurité et mises en garde 6 Le sèche-linge doit exclusivement servir au séchage de textiles préalablement lavés et dont le fabricant a déclaré qu'ils pouvaient être séchés en machine.Toute autre utilisationpourrait s'avérer dangereuse. Miele décline toute responsabilité en cas d...
fr - Consignes de sécurité et mises en garde 7 Le sèche-linge doit être entretenu correctement, en temps et en heure. Le calendrier des opérations de maintenance doit être respecté, faute de quoi des défauts de performances,des dysfonctionnements voire un incendie sont susceptibles de survenir. ...
fr - Consignes de sécurité et mises en garde 8 Seul un raccordement à une prise de terre conforme garantit un fonctionnement du sèche-linge en toute sécurité. Respectez cette consigne de sécurité élémentaire afin deprévenir tout dommage matériel ou corporel (ex. : décharge électrique). En cas de d...
fr - Consignes de sécurité et mises en garde 9 Le conduit d'évacuation ne doit jamais être installé sur une des cheminées ou ouver- tures suivantes. - des cheminées d'évacuation de fumées ou de gaz brûlés en fonctionnement. - des ouvertures servant à la désaération des pièces avec foyer. - des che...
fr - Consignes de sécurité et mises en garde 11 Le programme s'arrête au début de la phase de refroidissement. Dans de nombreux programmes, la phase de séchage est suivie d'une phase de refroidissement, qui garantitque le linge est maintenu à une température à laquelle il ne risque pas de s'abîmer...
fr - Description de la machine 12 PDR 511 SL (avec pompe à chaleur) 8 6 9 7 1 4 5 2 3 a Bandeau de commande b Sélecteur rotatif Tournez le sélecteur rotatif pour mettre le sèche-linge en marche et sélectionner le pro-gramme de séchage. c Porte La porte s'ouvre en tirant sur la poignée. d Trappe d'ac...
fr - Utilisation 15 Appareils avec commande par humidité résiduelle 1 2 3 4 5 6 7 8 9 a Bandeau de commande b Touches sensitives pour paliers de séchage c Affichages d’état S’allument en cas de besoin d Touche sensitive active la cadence du ventilateur pour un séchage optimal des textiles l...
fr - Utilisation 16 Paliers de sé-chage - Touche sensitive = „Séch.normal +“ - Touche sensitive = „Séchage normal“ - Touche sensitive = „Séchage fer à repasser“ - Touche sensitive = „Séchage repasseuse“ - Touche sensitive : fonction « Literie » Programmes deséchage - Position = pr...
fr - Utilisation 18 Niveaux de tem-pérature (TOP) - Touche sensitive = Palier de température « élevé » - Touche sensitive = Palier de température « moyen » - Touche sensitive = Palier de température « faible » - Touche sensitive = Palier de température « froid » Minuterie - Position 5 = ...
fr - Utilisation 21 Fonctionnement du bandeau de commande Les touches sensitives réagissent au contact du bout des doigts. Lasélection est possible tant que la touche sensitive correspondanteest éclairée. Une touche sensitive avec un éclairage clair signifie qu'elle est actuel-lement sélectionnée. U...
fr - Séchage 22 1. « Conseils d'entretien de votre linge ». Laver votre lingeavant de le sécher Lavez soigneusement les textiles très sales. Utilisez suffisamment delessive et lavez à haute température. En cas de doute, lavez le lingeplusieurs fois. Si des produits chimiques industriels ont été util...
fr - Séchage 25 3. Sélectionner un programme Sélectionner unprogramme Le sèche-linge est enclenché via la sélection de programme et éteintpar la position du sélecteur de programme. Tournez le sélecteur de programme sur le programme souhaité. De plus, un palier de séchage peut s'allumer et des d...
fr - Séchage 27 4. Démarrer un programme Démarrer un pro-gramme Effleurez la touche sensitive Start/Stop clignotante. La touche sensitive Start/Stop s'allume. Déroulement de programme - Si vous avez paramétré un départ différé, l'appareil commence par décompter le temps restant jusqu'au départ du...
fr - Tableau des programmes 29 Bloc de programmes « Label » Nom de programme Type de textile approprié Paliers de séchage sélectionnables (humidité résiduelle en %) Options activables Capacité de charge maximale Coton Textiles en coton norma-lement humides - Séchage repasseuse (40 %) - Séchage f...
fr - Tableau des programmes 30 Bloc de programmes « Standard » Nom de programme Type de textile approprié Paliers de séchage sélectionnables (humidité résiduelle en %) Options activables Capacité de charge maximale Blanc/Couleurs Textiles en lin/ coton mo-nocouche ou multi-couches - Séchage repass...
fr - Modifier le déroulement d'un programme 31 Changer le programme en cours Une nouvelle sélection de programme n'est plus possible pendant leprogramme en cours (protection contre toute modification involon-taire). Pour pouvoir choisir un nouveau programme, vous devez toutd'abord annuler celui qui ...
fr - Modifier le déroulement d'un programme 32 Ajouter du linge lors du départ différé en cours Vous pouvez ouvrir la porte puis ajouter ou retirer du linge. - Tous les réglages des programmes restent identiques. - Si vous le souhaitez, vous avez encore la possibilité de changer de palier de séchage...
fr - En cas d'anomalie . . 33 Quelques pistes Vous pouvez résoudre la plupart des anomalies par vous-même. En n'appelant pas le Ser-vice Miele, vous économisez du temps et de l'argent. Les tableaux suivants vous aiderontà déterminer les causes de la panne et à trouver une solution. Cependant : Les...
fr - Mise en réseau 34 Instructions d'appariement Pour connecter le sèche-linge à votre réseau, procédez comme suit. Ouvrir le Mode exploitant Allumez l'appareil en tournant le commutateur rotatif de la position de l'interrupteur sur n'importe quelle autre position. Ouvrez la porte du sèche-l...
fr - Mise en réseau 35 Continuez ensuite avec le Device Connector dans Miele MOVE. Configurer la connexion réseau via câble LAN Pour une connexion réseau câblée, le module de communication "XKM 3200 WL PLT"disponible en option est nécessaire. Au niveau exploitant sélectionnez avec les ...
fr - Accessoires disponibles en option 36 Les accessoires de ce sèche-linge sont disponibles chez les revendeurs Miele ou au SAVMiele. Des accessoires ne peuvent être rajoutés ou montés que s'ils sont expressément autori- sés par Miele. Si d’autres pièces sont rajoutées ou montées, les prétentions...
fr - Accessoires disponibles en option 37 Ces données ne sont pas initialement attribuées à un utilisateur spécifique et ne sont pasnon plus stockées de manière permanente. Ce n'est que lorsque vous reliez votre appareilà un utilisateur qu'une sauvegarde persistante des données et une affectation sp...
fr - Caractéristiques techniques 38 Caractéristiques techniques PDR 51x SL Hauteur 1 800 mm Largeur 711 mm Profondeur 1 075 mm Profondeur avec porte ouverte 1 760 mm Poids net avec pompe à chaleur chauffage électrique chauffage gaz 193 kg 146 kg 150 kg Capacité du tambour PDR 511: 200 l PDR 516: 300...
Other Miele Autres Manuals
-
Miele APWM 066 Notice d'Installation
-
Miele APWM 062 Notice d'Installation
-
Miele APWM 065 Notice d'Installation
-
Miele APWM 020 Manuel d'utilisation
-
Miele APWM 020 Notice d'Installation
-
Miele SC Notice d'Installation
-
Miele PR Notice d'Installation
-
Miele FP 900 Notice d'Installation
-
Miele RP 900 Notice d'Installation
-
Miele APWM 019 Manuel d'utilisation
-
Miele APWM 019 Notice d'Installation
-
Miele A 830/1 Manuel d'utilisation
-
Miele TT 86 Manuel d'utilisation
-
Miele RP 1150 Notice d'Installation
-
Miele UG 5010 Notice d'Installation
-
Miele UO 5010 Notice d'Installation
-
Miele APCL 001 Notice d'Installation
-
Miele E 473/2 Manuel d'utilisation
-
Miele APRI 312 Notice d'Installation
-
Miele DOS K 85 flex Notice d'Installation