Miele PG 8583 CD [WW AD CM] - Manuels

Miele PG 8583 CD [WW AD CM] - Manuel d'utilisation, Notice d'Installation en ligne au format PDF.
Manuel d'utilisation Miele PG 8583 CD [WW AD CM]
























































































































































































Résumé
fr - Table des matières 83 Remarques .................................................................................................................................... 85 Questions et problèmes techniques .......................................................................................... 85...
fr - Table des matières 84 Votre contribution à la protection de l'environnement ........................................................ 102 Elimination des emballages de transport .................................................................................. 102
fr - Remarques 85 Avertissements Attention ! Les remarques accompagnées de ce symbole contiennent des informations relatives à la sécurité : elles aver-tissent qu'il y a risque de dommages corporels ou matériels.Lisez attentivement ces avertissements et respectez les consignesde manipulation qu'il...
fr - Accessoires fournis 87 Éléments fournis - Module de communication XKM 3200 WL LMD Caractéristiques techniques Tension, Valeur de raccordement, Protection par fusible Voir plaque signalétique Câble d’alimentation env. 1,5 m Vitesse de transmission Ethernet 10/100 Mo/s Norme Wi-Fi 802.11 b/g /n B...
fr - Description de l'appareil 88 Vue d’ensemble de l’appareil a Touche Reset/ WPS b Diode de contrôle Une fois le montage effectué, signale que l'appareil est prêt à fonc-tionner et, s'il est en marche, qu'une communication est activée c Plaque signalétique (apposée sur le côté) d Câble de données ...
fr - Description de l'appareil 89 Mise en marche et arrêt Le module ne possède aucun bouton Marche/Arrêt séparé. Il s'éteinten même temps que le laveur-désinfecteur. Après chaque mise en marche, le module nécessite un temps d'ini-tialisation d'environ 90 s. Les données sont ensuite transmises oudes ...
fr - Description de l'appareil 90 Protection et sécurité des données Dès que vous avez activé la fonction de mise en réseau et que votreappareil est connecté à l'Internet, votre appareil envoie les donnéessuivantes au Cloud Miele : - numéro de fabrication de l’appareil - type d’appareil et caractéri...
fr - Consignes de sécurité et mises en garde 91 Lisez attentivement ce document avant d'utiliser le module de com-munication. Vous vous protégerez et éviterez d'endommager le mo-dule. Conservez soigneusement ce document. Respectez aussi scrupuleusement les instructions du mode d'emploi du laveur-d...
fr - Montage et installation *INSTALLATION* 92 Préparer l'utilisation du Wi-Fi Si vous souhaitez utiliser la connexion Wi-Fi du module, vous devezrespecter les points suivants avant l'installation. Portée et disponi-bilité du signal Wi-Fi La portée et la force du signal Wi-Fi dépendent des condition...
fr - Montage et installation *INSTALLATION* 93 Installation Avant d'installer le module de communication, vérifiez que les données de raccordement (tension et fréquence) qui figurent sur saplaque signalétique correspondent à celles qui figurent sur la plaquesignalétique du laveur-désinfecteur. Les...
fr - Montage et installation *INSTALLATION* 94 Insérer le module Le cas échéant, retirez l'autocollant ou le capuchon de protection dulogement de module. Insérez le module de communication dans son logement. Appuyezlégèrement pour qu'il se positionne correctement. Poser les câblesde données L'ut...
fr - Connexion au réseau 95 Établir la connexion Wi-Fi Câble LAN Le câble LAN ne doit pas être connecté au réseau. Si le câble LAN estbranché, le signal Wi-Fi est automatiquement désactivé. L'utilisationsimultanée du Wi-Fi et du LAN n'est techniquement pas possible. Connexion viaWPS La condition pré...
fr - Connexion au réseau 96 Accéder au menu Allumez le laveur en appuyant sur la touche . Vous devez attendre 90 secondes avant de pouvoir commencer àconfigurer l'interface. Pour accéder au menu, vous devez suivre le chemin d'accès sui-vant : Touche Réglages suppl. Inte...
fr - Connexion au réseau 99 Interface Web Le module XKM 3200 WL LMD possède sa propre interface web, quipeut être utilisée pour configurer les paramètres du réseau, configurerles imprimantes ou changer le mot de passe. L'interface est accessible depuis n'importe quel poste de travail devotre réseau ...
fr - Votre contribution à la protection de l'environnement 102 Elimination des emballages de transport Nos emballages protègent votre appareil des dommages pouvant sur-venir pendant le transport. Nous les sélectionnons en fonction de cri-tères écologiques permettant d'en faciliter le recyclage. En p...
Notice d'Installation Miele PG 8583 CD [WW AD CM]











Résumé
Consignes d'installation 2 PG 8582 CD / PG 8583 CD Autorisationd'installation Seuls des électriciens / plombiers habilités sont autorisés à installer le laveur-désinfecteur selon les instructions d'installation. Le laveur-désinfecteur doit être installé conformément aux normes etdirectives en vigueu...
Consignes d'installation PG 8582 CD / PG 8583 CD 3 froide.Les robinets d'eau des conduits d'eau doivent être facilement acces-sibles. Directive pourl'Allemagne et laSuisse En raison des réglementations nationales relatives à la protectionde l'eau potable, les clapets anti-retour joints doivent être ...
Consignes d'installation 4 PG 8582 CD / PG 8583 CD Liaison équipo-tentielle et terre Pour améliorer la sécurité il est vivement conseillé d’installer un inter- rupteur de protection contre les courants de court-circuit (30 mA) en amont.Etablissez une liaison équipotentielle . Une vis de branchement ...
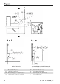
Figures PG 8582 CD / PG 8583 CD 5 Dimensions Standard Dimensions avec extension en profondeur EL Raccordement électrique WW Raccordement à l'eau chaude KW Raccordement eau froide AW Raccordement de la vidange DK Raccordement pour condensateur vapeur VE Raccordement à l'eau déminéralisée NW Raccord r...
Caractéristiques techniques 8 PG 8582 CD / PG 8583 CD Raccordement électrique Tension (à la livraison) 3N AC 400/50 Consommation 9,3 kW Fusible 3 x 16 A Câble d'alimentation, diamètre min. 5 x 2,5 mm² Longueur du câble de raccordement (H05(07)RN-F) 1,8 m Tension (commutable) AC 230/50 Consommati...
Caractéristiques techniques PG 8582 CD / PG 8583 CD 9 Eau déminéralisée Température max. 65 °C Pression conseillé (AD résistant à la pression) 200 kPa Pression minimale lors d’une entrée d’eau prolongée 30 kPa Pression maximale (AD résistant à la pression) 1 000 kPa Débit volumétrique 7,5 l/min...
Caractéristiques techniques 10 PG 8582 CD / PG 8583 CD Emission de chaleur dans la pièce d'installation par rayonnement en fonctionnement 0,35 kWh par charge lors de déchargement 0,40 kWh Conditions d'installation Température ambiante autorisée 40 °C Humidité de l'air relative max. jusqu'à 31 °C...
Belgique: S.A. Miele Belgique Z.5 Mollem 480 – 1730 Mollem (Asse)Tel. 02/451.15.40E-mail: [email protected] Internet: www.miele-professional.be Miele SALimmatstrasse 4, 8957 SpreitenbachTéléphone +41 56 417 27 51Téléfax +41 56 417 24 69[email protected]www.miele.ch/professionalService de réparation ...
Other Miele Autres Manuals
-
Miele APWM 066 Notice d'Installation
-
Miele APWM 062 Notice d'Installation
-
Miele APWM 065 Notice d'Installation
-
Miele APWM 020 Manuel d'utilisation
-
Miele APWM 020 Notice d'Installation
-
Miele SC Notice d'Installation
-
Miele PR Notice d'Installation
-
Miele FP 900 Notice d'Installation
-
Miele RP 900 Notice d'Installation
-
Miele APWM 019 Manuel d'utilisation
-
Miele APWM 019 Notice d'Installation
-
Miele A 830/1 Manuel d'utilisation
-
Miele TT 86 Manuel d'utilisation
-
Miele RP 1150 Notice d'Installation
-
Miele UG 5010 Notice d'Installation
-
Miele UO 5010 Notice d'Installation
-
Miele APCL 001 Notice d'Installation
-
Miele E 473/2 Manuel d'utilisation
-
Miele APRI 312 Notice d'Installation
-
Miele DOS K 85 flex Notice d'Installation