Page 2 - Table des matières
Table des matières 2 Consignes de sécurité et mises en garde ..................................................................... 4 Utilisation conforme .......................................................................................................... 4 Précautions particulières en cas d'od...
Page 3 - Installation et raccordement
Table des matières 3 Retirer la toile de repassage (garniture en paille de fer uniquement) ............................ 27Poser la toile de repassage (garniture en paille de fer uniquement).............................. 27Instructions pour les cylindres avec garniture en paille de fer .................
Page 4 - Consignes de sécurité et mises en garde; Utilisation conforme; Précautions particulières en cas d'odeur de gaz
Consignes de sécurité et mises en garde 4 Lisez attentivement le mode d'emploi avant de mettre l'appareil en service. Vous y trou-verez des informations importantes sur le montage, la sécurité, l'utilisation et l'entretiende cet appareil.Vous vous protégerez et éviterez ainsi de détériorer votre mat...
Page 5 - Sécurité technique et électrique; toyage travaillant aux solvants PER ou HCFC.; Utilisation de l'appareil; La repasseuse ne doit pas fonctionner sans surveillance.
Consignes de sécurité et mises en garde 5 Sécurité technique et électrique La repasseuse ne doit pas être utilisée dans la même pièce qu'une machine de net- toyage travaillant aux solvants PER ou HCFC. La repasseuse doit uniquement être utilisée dans des pièces sèches. N'utilisez la repasseuse...
Page 6 - Eteignez la repasseuse lorsqu'elle est inutilisée.; Utilisation d'accessoires; passeuse peuvent travailler à l'introduction du linge.
Consignes de sécurité et mises en garde 6 Pour le linge multicouches, n'essayez pas d'insérer vos doigts entre les couches de tis- su pour tendre le linge. Le cas échéant, vous vous exposez au risque de ne plus pouvoirretirer vos mains à temps avant d'atteindre la presse. Cette consigne vaut égale...
Page 8 - Votre contribution à la protection de l'environnement; Nos emballages
Votre contribution à la protection de l'environnement 8 Nos emballages Nos emballages protègent votre appareildes dommages pouvant survenir pendant letransport. Nous les sélectionnons en fonc-tion de critères écologiques permettant d'enfaciliter le recyclage. En participant au recyclage de vos embal...
Page 9 - Description de l'appareil; Cylindre avec toile de repassage
Description de l'appareil 9 Vue d'ensemble 1 2 3 4 5 6 7 8 5 9 10 11 a Bandeau de commande (écran tactile) b Barre protège-doigts c Cylindre avec toile de repassage d Table de sortie e Bouton d'arrêt d'urgence(à l'avant du montant gauche et à l'arrièredu montant droit) f Table d'introduction du ling...
Page 10 - Écran tactile
Description de l'appareil 10 Écran tactile Effleurez les touches à l'écran pour les activer. La touche actuellement sélectionnée estrétroéclairée. Affichage à l'écran en mode de sélection pour la température de la repasseuse a Touche Active/désactive la repasseuse. b Touch...
Page 12 - Effleurer la barre protège-doigts
Description de l'appareil 12 Symboles à l'écran 1 Effleurer la barre protège-doigts 2 La température actuelle de la repasseuseest inférieure à la température deconsigne sélectionnée. La températureaugmente. 3 Témoin de service pour le nettoyage et leparaffinage (voir chapitre « Nettoyage etent...
Page 13 - Si le symbole
Description de l'appareil 13 Barre protège-doigts La barre protège-doigts est un dispositif de sécurité qui doit faire l'objet d'une vérificationavant chaque mise en service. Risque de blessure en cas de dysfonctionnement de la barre protège-doigts. Un dysfonctionnement de la barre protège-doigts ...
Page 15 - Première mise en service; Nettoyage et paraffinage avant la première mise en service
Première mise en service 15 Nettoyage et paraffinage avant la première mise en service Vous devez impérativement nettoyer et paraffiner la presse avant la première mise enservice (voir chapitre « Nettoyage et entretien », sections « Nettoyage de la presse » et« Paraffinage de la presse »). Nettoye...
Page 16 - Préparer le linge; Textiles adaptés au repassage; ou; Humidité résiduelle; Respectez pour
Préparer le linge 16 Textiles adaptés au repassage Seuls les textiles propres et lavés avec del'eau peuvent être repassés dans la repas-seuse. Avant de les repasser, assurez-vousque les textiles soient adaptés au repassageen machine. L'étiquette des textiles doitcomporter l'un des symboles d'entreti...
Page 17 - Utilisation de la repasseuse; Préparer la repasseuse pour le fonctionnement; Température de repassage
Utilisation de la repasseuse 17 Préparer la repasseuse pour le fonctionnement Allumez l'interrupteur principal pour l'alimentation en courant. Appuyez sur la touche pour mettre la repasseuse sous tension. Le symbole rouge clignote. Appuyez doucement sur le côté inférieur de la barre prot...
Page 18 - Régler la température de repassage
Utilisation de la repasseuse 18 Touches de sélection de température Vous pouvez régler la température de la presse en utilisant les touches de sélection detempérature ( / / ) ou les touches et – . Si vous diminuez la température en cours de fonctionnement, la presse aura besoin de re-fro...
Page 19 - Vitesse de repassage; Régler la vitesse de repassage
Utilisation de la repasseuse 19 Vitesse de repassage Modèle de repas- seuse Symbole Plage de vitesse m / min Valeur pré-réglée PRI318 : Plage de vitesse basse 1,5—2,4 2,0 Plage de vitesse moyenne 2,5—3,4 3,0 Plage de vitesse élevée 3,5—4,6 4,0 PRI418/421 : Plage de vitesse basse 1,5—2,9 2...
Page 20 - Introduction du linge
Utilisation de la repasseuse 20 Enregistrer un réglage favori Commencez par régler la température de repassage et la vitesse de rotation souhaitées(voir chapitre « Utilisation de la repasseuse », section « Repassage »). Maintenez la touche enfoncée jusqu'à ce qu'elle clignote une fois. La com...
Page 21 - Sortie du linge
Utilisation de la repasseuse 21 Sortie du linge Risque de brûlure au contact du bord de la sortie de la presse. La presse devient très chaude en cours de fonctionnement. Le linge repassé peut êtretrès chaud au sortir de la presse.Prenez toujours le linge repassé avec précaution.Ne touchez pas le b...
Page 22 - Barre de commande au pied « FlexControl »; Après le repassage
Utilisation de la repasseuse 22 Barre de commande au pied « FlexControl » Le cylindre s'immobilise lorsque vous actionnez la pédale. Vous pouvez installer cette der-nière où vous le souhaitez. Ainsi, vous pouvez corriger facilement les erreurs d'introductiondu linge. Utiliser la barre de commande au...
Page 23 - Nettoyage et entretien; Nettoyage de la presse; Démarrer le programme de nettoyage
Nettoyage et entretien 23 Nettoyage de la presse Il est nécessaire de nettoyer et d'entretenir régulièrement la presse pour préserver l'entraî-nement du cylindre et la garniture. Veuillez impérativement tenir compte des conseils rela-tifs au nettoyage et à l'entretien de votre repasseuse dans le man...
Page 25 - Paraffinage de la presse; Démarrer le programme de paraffinage
Nettoyage et entretien 25 Paraffinage de la presse Démarrer le programme de paraffinage Maintenez la touche pendant au moins 3 secondes. L'écran affiche 2 touches de sélection de température qui ne sont pas identifiées par despoints de température (par ex. ). Appuyez sur le bouton de sélec...
Page 26 - avec le côté gommé de la poche tourné vers le cy-; Garniture
Nettoyage et entretien 26 Repliez la toile de paraffinage. Démarrez le programme de paraffinage (voir chapitre « Paraffinage de la presse », section« Démarrer le programme de paraffinage »). Insérez la toile de paraffinage avec le côté gommé de la poche tourné vers le cy- lindre . Passez la ...
Page 27 - avec garniture à lamelles
Nettoyage et entretien 27 Retirer la toile de repassage (garniture en paille de fer uniquement) Risque de dommages en cas de retrait autonome de la toile de repassage pour les cylindres avec garniture à lamelles . En cas de retrait ou d'enlèvement en toute autonomie de la toile de repassage, il su...
Page 28 - Instructions pour les cylindres avec garniture en paille de fer; Nettoyer les décolleurs; Retirez la toile de repassage du cylindre.
Nettoyage et entretien 28 Instructions pour les cylindres avec garniture en paille de fer La garniture en paille de fer doit être recouverte d'un feutre aiguilleté en polyester ou enaramide. Pendant le repassage, le cylindre ainsi garni plaque le linge contre la pressechauffée. La pression de serrag...
Page 29 - Reposez la toile de repassage encore humide sur le cylindre.; Maintenance des repasseuses chauffées au gaz; Risque d'incendie en cas de retard de maintenance.; Service après-vente Miele; Danger en cas de réparations non conformes.
Nettoyage et entretien 29 Préférez une vitesse d'essorage modérée afin d'éviter la formation de faux plis sur la toilede repassage. Reposez la toile de repassage encore humide sur le cylindre. Maintenance des repasseuses chauffées au gaz L'intérieur des repasseuses chauffées au gaz, les brûleurs...
Page 30 - Conditions d'installation; Stockage
Installation et raccordement 30 Conditions d'installation La repasseuse ne doit être installée et mise en service que par le service après-vente oule personnel dûment formé d'un revendeur agréé par la marque. La repasseuse doit être installée selon les règles et les normes en vigueur. Par ailleurs...
Page 31 - Fixation; Une fixation au sol est nécessaire pour cette repasseuse.; Monter la table de sortie; Dévisser la table de sortie
Installation et raccordement 31 Lors du transport de la repasseuse, veillez à ce qu'elle ne bascule pas. Ne transportezpas la repasseuse sans le châssis en bois.Si vous devez déplacer la repasseuse (par ex. en cas de déménagement), celle-ci doitêtre placée puis solidement fixée sur le châssis en boi...
Page 32 - Retirer les barres de renfort des montants latéraux
Installation et raccordement 32 2. Retirer les barres de renfort des montants latéraux Dévissez les vis des barres de renfort. Retirez les barres de renfort à l'arrière des montants latéraux. Pour pouvoir monter la table de sortie, les barres de renfort doivent être montées sur laface interne du...
Page 33 - Vissez également la vis située plus à l'intérieur.
Installation et raccordement 33 3. Monter les barres de renfort sur la face interne des montants latéraux Montez un côté des barres de renfort sur la face interne des montants latéraux. La barrede renfort initialement fixée au montant gauche doit être vissée sur la face interne dumontant droit. La...
Page 34 - Installer la table de sortie
Installation et raccordement 34 4. Installer la table de sortie 1. 2. Installation de la table de sortie sur le montant gauche Installez la table de sortie contre les montants latéraux, entre les vis et la face interne desmontants latéraux.
Page 35 - Monter le bac à linge; Retirer le bac à linge
Installation et raccordement 35 Monter le bac à linge 1. Retirer le bac à linge Dévissez à l'aide d'un tournevis. Retirez le bac à linge. 2. Insérer les vis dans les montants latéraux Vissez légèrement les vis dans les montants latéraux, de façon à ce que le bac à lingepuisse reposer sur les v...
Page 36 - Installer le bac à linge
Installation et raccordement 36 3. Installer le bac à linge Installez le bac à linge sur les vis des montants latéraux. 4. Visser le bac à linge Vissez le bac à linge sur les montants latéraux. Serrez les vis à fond.
Page 37 - Accrochez la protection dans les encoches arrière.
Installation et raccordement 37 5. Visser la protection contre les contacts accidentels (appareil sans bande d'enga-gement) Accrochez la protection dans les encoches arrière. Vissez la protection aux montants latéraux. 5. Visser la protection contre les contacts accidentels (appareil avec bande ...
Page 38 - Démonter les sécurités de transport; Conserver les sécurités de transport; Vissez les sécurités de transport à la base du montant gauche.
Installation et raccordement 38 Démonter les sécurités de transport Les sécurités de transport de la repasseuse doivent être démontées avant de procéder à lapremière mise en service. Pour ce faire, démontez les équerres marquées dans les mon-tants latéraux. Sécurité de transport dans le montant droi...
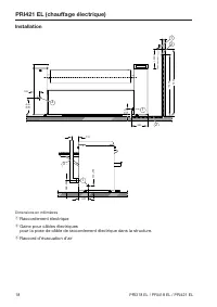
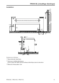
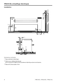
Page 39 - Raccordement électrique
Installation et raccordement 39 Raccordement électrique Le branchement électrique doit être réalisé par un électricien formé et habilité qui est en-tièrement responsable du respect des normes et des directives d'installation électriqueen vigueur. Le raccordement électrique et le schéma électrique se...
Page 40 - Raccordement au gaz (repasseuses à chauffage gaz uniquement); Danger en cas de travaux de maintenance non conformes.
Installation et raccordement 40 Etant donné que l'humidité relative de l'air peut aller jusqu'à 100 %, il faut impérativementprévenir tout reflux d'eau condensée dans la repasseuse. Si la pression du ventilateur de la machine n'est pas suffisante, il est nécessaire d'installerun ventilateur suppléme...
Page 42 - Danger au contact de pièces non protégées.; Ajustement
Installation et raccordement 42 Après l'installation Après avoir installé la repasseuse, il est nécessaire de monter tous les éléments d'habillagedémontés. Danger au contact de pièces non protégées. Les pièces conductrices ou en mouvement qui n'ont pas été recouvertes par les élé-ments d'habillage...
Page 43 - Accessoires en option; Retour avant flexible du linge; Risque de brûlure au contact du bord de l'auge.
Accessoires en option 43 Retour avant flexible du linge Le retour avant flexible du linge permet de décharger le linge repassé côté insertion. Etantdonné que le retrait du linge ne se fait plus par l'arrière, la présence d'une deuxième per-sonne n'est plus requise pour utiliser la repasseuse. Les re...
Page 44 - Guider le linge vers la table de sortie; Rallonge pour la table de sortie; La rallonge en option permet d'allonger la table de sortie de 132 mm.
Accessoires en option 44 Guider le linge vers la table de sortie Rabattez le déflecteur vers l'arrière, sur la table de sortie. Mettez-vous côté introduction du linge et poussez le retour avant du linge en direction dela table de sortie. Le linge repassé est redirigé vers la table de sortie. Ral...
Page 46 - Contact Service Commercial
Belgique: S.A. Miele Belgique Z.5 Mollem 480 – 1730 Mollem (Asse)Tel. 02/451.15.40E-mail: [email protected] Internet: www.miele-professional.be Miele SALimmatstrasse 4, 8957 SpreitenbachTéléphone +41 56 417 27 51Téléfax +41 56 417 24 69[email protected]www.miele.ch/professionalService de réparation ...