Miele PW 6241 [EL MF] - Manuels

Miele PW 6241 [EL MF] - Manuel d'utilisation, Notice, Notice d'Installation en ligne au format PDF.
Manuel d'utilisation Miele PW 6241 [EL MF]








































































Résumé
Table des matières 2 Consignes de sécurité et mises en garde ..................................................................... 4 Explication des consignes de sécurité et des avertissements sur la machine ................. 4 Utilisation conforme ......................................................
Consignes de sécurité et mises en garde 4 Explication des consignes de sécurité et des avertisse-ments sur la machine Veuillez lire le mode d'emploi Lisez les instructions, par exemple les instructions d'installa- tion Attention : surfaces brûlantes Attention tension jusqu'à 1000 V ! Mise à la terre...
Consignes de sécurité et mises en garde 5 Utilisation conforme Ce lave-linge est exclusivement conçu pour laver des textiles por- tant la mention « lavable en machine ». Toute autre utilisation pourraits'avérer dangereuse. Miele décline toute responsabilité en cas d'utili-sation non conforme. Il...
Consignes de sécurité et mises en garde 6 Les personnes qui ne sont pas en mesure d'utiliser ce lave-linge en toute sécurité en raison de déficiences physiques, sensorielles oumentales ou de leur manque d'expérience ou de connaissances nedoivent pas l'utiliser sans la surveillance ou les instructi...
Consignes de sécurité et mises en garde 7 Assurez-vous que le tambour est à l'arrêt avant de décharger votre linge. Ne mettez jamais les mains à l'intérieur du tambour s'il tourneencore. Vous risquez de vous blesser grièvement. Veillez lors de la fermeture de la porte de chargement à ne pas vous...
Consignes de sécurité et mises en garde 8 Sécurité technique Ce lave-linge ne doit être installé que par le service après-vente ou un revendeur autorisé. Vérifiez que votre lave-linge ne présente pas de dommages ex- ternes avant de l'installer. Si le lave-linge est endommagé, il ne doiten aucun ...
Consignes de sécurité et mises en garde 12 Au dos de la machine se trouve une sortie de ventilation, elle ne doit être en aucun cas fermée. Vérifiez l'écart minimal à respecterdans le schéma d'installation. La recommandation d'utilisation d'adjuvants de lavage chimiques ne signifie pas que le fa...
Consignes de sécurité et mises en garde 13 Les quantités de dosage exactes et les températures de traitementdoivent être réglées et contrôlées sur place conformément aux re-commandations de dosage des fabricants de lessive et de déter-gents. Il faut également tester si aucun chlore actif résiduel ne...
Votre contribution à la protection de l'environnement 14 Nos emballages Nos emballages ont pour fonction de protéger votre appareil desdommages dus au transport. Nous les sélectionnons en fonction decritères écologiques permettant d'en faciliter le recyclage. En participant au recyclage de vos embal...
Votre contribution à la protection de l'environnement 15 Economies d'énergie Consommationd'énergie et d'eau - Utilisez la charge maximale de chaque programme de lavage. La consommation d'énergie et d'eau est plus avantageuse pourune charge pleine. Lessive - Ne dépassez pas les dosages indiqués sur l...
Description de la machine 16 Description de l’appareil ⑥ ⑦ ① ② ③ ④ ⑤ a Bouton d'arrêt d'urgence En appuyant sur le bouton rouge, la machine s'arrête. b Bandeau de commande c Bac à produits Le volet s'ouvre en tirant sur la poignée. d Poignée Pour garantir la fonction de sécurité de la serrure de por...
Description de la machine 17 Bandeau de commande a Écran 1 Blanc 90 2 Couleurs 60 3 Couleurs intensif 60 °C °C °C Une fois l'appareil activé, le message de bienvenue apparaît brièvement puis la liste deprogramme. Le dernier programme démarré est mis en évidence. b Touches de fonction Les six...
Description de la machine 19 Touches de fonction En cas d'actionnement, la fonction est activée et désélectionnée en cas de nouvel action-nement. Arrêt/Fin La touche de fonction droite est utilisée après le démarrage de programme comme touchede fin.Après actionnement, le programme sélectionné est ...
Description de la machine 20 Mise à 0 (tarage) Si l'affichage de charge n'indique pas "00,0" lorsque le tambour est vide, ceci est effectuéavec la touche. Transfert de données Carte de programme pour exploitant Il n'y a encore aucun programme sur cette carte à l'usine. Vous trouverez dan...
Lavage 21 Première mise en service La première installation du lave-linge ne doit être effectuée que par le service après-vente ou un revendeur agréé. Ouvrir les robinets d'eau et/ou de vapeur de l'installation. Activer l'interrupteur principal (par l'utilisateur). Mettre la machine en march...
Lavage 22 Capacités (Linge sec) PW 6241 PW 6321 1 Blanc 90 °C max. 24 kg max. 32 kg 2 Couleurs 60 °C 3 Couleurs 60 °C intensif 4 Couleurs 30 °C 5 Couleurs 30 °C intensif 6 Couleurs éco court 7 Non repassable 60 °C max. 12 kg max. 16 kg 8 Non repassable 60 °C intensif 9 Non repassable 30 °C 10 Non re...
Lavage 23 Lavage avec la boîte à produits Dosage de la les-sive via la boîte àproduits Pour les programmes standard, placez la lessive en poudre pour lelavage dans le compartiment et si vous le souhaitez la lessive pour le prélavage dans le compartiment , l'assouplissant quant à lui doit êtr...
Lavage 24 Agent de blanchi-ment Blanchissez ou javellisez uniquement des textiles qui portent le sym-bole d'entretien Δ . Les agents de blanchiment liquides doivent uniquement être ajoutésdans un compartiment prévu à cet effet. Ce n'est seulement que decette manière que le détergent est automatique...
Lavage 26 Sélectionner un programme - Sélectionner un programme (par ex. programme 1 Blanc) en tour- nant le sélecteur rotatif. L'écran suivant s'affiche : 18 1 2 Blanc Vidange supplémentaire Couleurs °C °C 90 60 Sélectionner des fonctions supplémentaires Prélavage,Arrêt amidonnage ou Arrê...
Lavage 27 Modifications avant le démarrage de programme Si des modifications doivent être effectuées avant le démarrage duprogramme, comme la capacité, la température ou la vitesse d'esso-rage : Capacité Avant le démarrage du programme, la quantité de charge peut êtresaisie manuellement. 1 Lavage ...
Lavage 28 Appuyer sur la touche « START », le programme de lavage se dé-roule. Démarrer un pro-gramme Appuyez sur la touche « START » (Départ). Le programme de lavage démarre. Une fois le programme démarré, le déroulement du programme s'af-fiche à l'écran. 1 Lavage Blanc Prélavage °C 20 + 4...
Lavage 29 0h 11 min Temps restant Rinçage Répétition Phase 3 non : : : Bloc Temps lavage 1 2 Niveau réel mm Blockschritt 22 : : 2. rinçage : Températureconsigne Température réelle Niveau consigne °C 60 60 35 °C mm : : : Blanc Rotation: Rythme 1 tr/mn / 12 3 40 : Appuyez sur la touche ...
Fonctionnement avec la carte 31 Fonctionnement avec la carte Les cartes qui contiennent au minimum un programme, sont conçues pour un certain type d'appareils. Les cartes vierges sont uni-verselles. Mettez en marche la machine avec la touche I « Marche ». Le message de bienvenue s'affiche à l'écr...
Fonctionnement avec la carte 32 Défaut carte Carte mal insérée dans lecteur. Introduisez correctement la carte dans le lecteur. Si la carte n'est pas compatible avec un certain type d'appareil, lemessage suivant s'affiche à l'écran : Contenu carte Les programmes présents sur la carteconvienn...
Fonctions supplémentaires 33 Changer temporairement de langue Il est possible de modifier provisoirement la langue d'affichage avantle démarrage d'un programme via le symbole drapeau. La langue sélectionnée est réinitialisée 5 minutes après la fin de pro-gramme en cas d'ouverture de porte. 1 Blanc 9...
Fonctions supplémentaires 34 Départ différé Si un départ différé doit être affecté à un programme, il est possiblede différer le programme avec la touche « Départ différé ». Régler le départdifféré Sélectionnez le programme de lavage. L'affichage suivant (exemple) apparaît après la sélection du...
Fonctions supplémentaires 35 Les modifications ne sont pas sauvegardées. Avec prélavage Pour le linge très sale, il est possible de sélectionner un Prélavageavant le démarrage du programme dans les programmes standard 1à 10. Appuyez sur la touche + « Bloc+ ». Le message suivant s'affiche : 1 ...
Fonctions supplémentaires 36 Sans essorage « Arrêt sans essorage » peut être sélectionné dans tous les pro- grammes standard (sauf option essorage) avant le démarrage du pro-gramme. Appuyez sur la touche « Arrêt sans essorage ». Le champ dans l'affichage est représenté en surbrillance. Cons...
Fonctions supplémentaires 37 Annulation de programme Vous pouvez annuler un programme avec cette fonction. Appuyez deux fois sur la touche « Start/Stop » (Arrêt/Fin). Le programme est interrompu. Si le programme est arrêté alors qu'il reste de l'eau dans la machineou pendant l'essorage, le mess...
Modules en option 39 Dosage de produits liquides (en option pour les appa-reils avec boîte à produits) A e a c b d B A Pompe doseuse B Canne d'aspiration a Raccord (côté aspiration) b Raccord (côté pression) c Vidange (en cas de rupture de tuyau) d Ouverture d'aspiration e Sonde de niveau pour la ja...
Modules en option 40 Désactivation du dosage Avant le démarrage du programme, il est possible de désactiver ledosage liquide. 60 60 90 °C °C °C 1 Blanc Couleurs 2 3 Couleurs intensif Désactivez manuellement le dosage liquide avec la touche de fonc-tion « Dosage désactivé ». Après le dé...
Modules en option 42 0/1 100 ml 0 Calibrage dosage Pompe doseuse 1 V: P: t: s non Actionnez le sélecteur multifonctions 0/1 . Pour arrêter la pompe, appuyez sur la touche 0/1 sinon elle s'arrête automatiquement après 60 secondes. Mesurez la quantité versée dans le gobelet gradué. / ...
Modules en option 43 A la fin de la fonction de délestage, le programme est poursuivi auto-matiquement. Module de communication Le module de communication permet de raccorder un PC à la ma-chine. Le logement pour le module de communication se trouve au dos dela machine. Votre revendeur Miele ou votr...
Modules en option 44 Si la capacité de mémoire dans le module Données exploitation estépuisée, un message signale que les Données exploitation vont êtreécrasées après l'actionnement de la touche « START ». Conseil : si la touche « retour » est pressée ou que la touche « START » n'est pas actionné...
Modules en option 45 Ensemble données Module données exploita. Ensemble données Données programme Sélectionnez l'option Ensemble données. Après la sélection, l'affichage suivant Ensemble données apparaît : 200.987 h 123456 h : : Module données exploita. Ensemble données Durée fonctio...
Modules en option 46 Données programme Module données exploita. Données programme Supprimer données Sélectionnez l'option Données programme. Après la sélection, l'affichage suivant Données programme apparaît : Module données exploita. Donnéesprogramme Blanc Couleurs 90 °C 60 °C 2 1...
Modules en option 49 Système pesée/ Socle avec pesée intégrée Si la machine est dotée d'un socle avec pesée intégrée, le poids deremplissage du linge pendant le chargement du linge est affiché parpalier de 0,2 kg. Le poids de remplissage maximal du programmesélectionné est affiché à côté. Remise à z...
Conseils en cas de panne 50 La porte ne s’ouvre pas Appuyez sur la poignée de la porte, éteignez et allumez la machine,puis tirez à nouveau sur la poignée de la porte. La sécurité de la poignée de porte est désengagée La poignée de porte a perdu sa fonction. La porte ne peut plus êtreouverte ou fe...
Conseils en cas de panne 51 Panne de courant pendant le lavage, déverrouillaged'urgence de la porte En cas de cou-pure de courantmomentanée : Le programme s'arrête dans la dernière position prise et le messagesuivant apparaît à l'écran après le retour de la tension : COUPURE TENSION Arrêt progra...
Conseils en cas de panne 52 En cas de panne de courant prolongée Arrêtez la machine. Mettez l'interrupteur principal sur Arrêt (par l'utilisateur). Fermez les robinets d'eau et de vapeur côté installation. Pour retirer le linge, ouvrez le clapet de vidange manuellement et dé-verrouillez la por...
Conseils en cas de panne 53 Introduire d'abord le tournevis dans l'ouverture à côté de la serrurede la porte, l'enfoncer et le maintenir. Appuyer sur la poignée de laporte avec la main droite et ouvrir la porte en tirant la poignée. Nepas forcer sur la porte en l'ouvrant ! Sortir le linge. Cause...
Conseils en cas de panne 54 Affichage intervalle SAV, prévention Si un des messages qui suivent s'affiche à la mise en marche de l'ap-pareil, le service après-vente doit venir effectuer une maintenance oule contrôle annuel de prévention. 1 Intervalle SAV Appeler le SAV. Appeler le SAV. L'aff...
Conseils en cas de panne 55 Défaut arrivée d'eau Appeler le service après-ventesi le redémarrage échoue. Contrôlez le robinet d'eau et appuyez sur la touche "START" (Dé-part). Appeler le service après-ventesi le redémarrage échoue. Défaut serrure porte Appuyer fortement sur l...
Conseils en cas de panne 57 Service après-vente En cas de pannes, contactez le service après-vente. Veuillez indiquer au service après-vente le modèle de la machine, lenuméro de série (SN) et le numéro de matériel (M.-Nr.). Ces indica-tions figurent sur la plaque signalétique. Elle est collée porte ...
Nettoyage et entretien 58 Effectuez le nettoyage et l'entretien après l'utilisation du lave-linge. Ne pas utiliser de nettoyeur sous pression ni de jet pour nettoyer lelave-linge. Nettoyez la carrosserie, le bandeau de commande et les pièces en plastique uniquement avec un produit nettoyant doux...
Nettoyage et entretien 61 Palier d'arbre du tambour Lorsque l'intervalle de service est atteint, le message suivant s'afficheà l'écran : Graissage palier tambour Appeler le SAV. A l'aide de la touche ce message sera supprimé. Il s'affiche après la mise en marche de la machine jusqu'à ce que l...
Signification des symboles sur la plaque signalétique 62 1 2 3 4 5 6 7 8 9 10 12 11 13 15 18 19 16 17 20 21 22 23 a Modèle b Numéro de série c Référence article d Numéro matériel e Tension/ Fréquence f Fusible de commande g Moteur d’entraînement h Données de tambour i Diamètre/ profondeur du tambour...
Installation 63 Ce lave-linge ne doit être installé que par le service après-vente ouun revendeur autorisé. Ce lave-linge est destiné au traitement du linge ne contenant pas de substances dangereuses ou inflammables. Retirer l'emballage de transport avec prudence, avec des outils ap-propriés. Le l...
Installation 64 La plinthe avant est vissée à la paroi arrière, la plinthe arrière setrouve sous le couvercle de la machine et doivent être montées unefois l'installation terminée. Les vis se trouvent dans l'emballage. Conservez les sécurités de transport. Elles doivent être montéespour tout transpo...
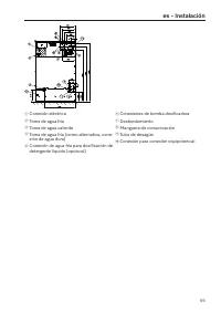
Installation 65 Raccorder l’arri-vée d’eau/ la vi-dange Voir schéma d'installation joint. La pression d’eau doit se situer entre 100 kPa (1 bar) et 1000 kPa(10 bar) pour garantir un déroulement de programme satisfaisant. Utiliser les tuyaux d’arrivée d'eau fournis. Avant de visser les tuyaux d'arriv...
Installation 66 Vissez le clapet anti-retour au robinet d’eau. Vissez le tuyau d’arrivée d’eau sur le filetage du clapet anti-retour. Note pour la Suisse Conformément à la norme SIA 385.351 / EN 1717 et à la recomman-dation de la SSIGE, il faut installer un anti-retour. Vous pouvez obtenirun ant...
Installation 67 Raccordement de dosage sur le boîtier mélangeur Les raccordements 1 et 2 sont destinés au dosage de produits vis- queux. Ces raccordements sont fermés et doivent être percés àl'aide d'un foret de 8 mm. Il faut faire attention à ne percer que la première cloison (1) car unecloison d'i...
Installation 68 Raccordement électrique Le branchement doit être effectué uniquement par un électricienagréé et être conforme aux normes EDF et aux prescriptions spéci-fiques à chaque pays. Si un disjoncteur différentiel (RCD) doit être installé, prendre impérati-vement un disjoncteur différentiel t...
Installation 69 Le niveau minimal de la flotte pour activer le chauffage est de110 mm de colonne d'eau. Le moteur est protégé contre les surcharges par une protection del'enroulement. Veuillez respecter le schéma électrique et le schéma d’installationjoint ! Ces plans sont importants pour le raccord...
Mode d’emploi abrégé 70 1. Préparation du linge Lavez dans ce lave-linge uniquement des textiles déclarés lavablesen machine par le fabricant sur l'étiquette d'entretien. Videz les poches. 2. Mettre la machine en marche et charger le linge Mettez le lave-linge en marche à l’aide de la touche ...
Mode d’emploi abrégé 71 Les agents de blanchiment liquides doivent uniquement être ajou-tés dans un compartiment prévu à cet effet . 4. Sélectionner un programme en tournant le sélecteurrotatif 5. Appuyer sur la touche « START », le programme de la-vage sélectionné démarre Si le message « Anomali...
Miele S.A.SZ.I. du Coudray9, avenue Albert EinsteinB.P. 100093151 Le Blanc-Mesnil Cedexwww.miele.fr/professional R.C.S. Bobigny B 708 203 088 Tél. : Fax. :Mail : Tél. :Fax. :Mail : Tél. :Mail : 01 49 39 44 44 01 49 39 44 38[email protected] 01 49 39 44 7801 49 39 34 10[email protected] 01 49 39 44 8...
Notice Miele PW 6241 [EL MF]














































































































































































































































































































































































































































































Résumé
fr - Table des matières 169 Tableau des programmes ............................................................................................... 171 Tableau des programmes de base .................................................................................... 171 Programme Blanc ................
fr - Tableau des programmes 171 Tableau des programmes de base Programme Blanc Blanc 90 °C Rapport de rem-plissage/Quanti-té de charge Type de textile Textiles en coton, lin ou fibres mélangées blancs,par ex. draps ou serviettes éponge 1.10 PW 6241 - 24 kgPW 6321 - 32 kg Déroulement deprogramme + ...
fr - Tableau des programmes 172 Programmes Couleurs Couleurs 60 °C Rapport de rem-plissage/Quanti-té de charge Type de textile Textiles en coton, lin ou fibres mélangées norma-lement sales, par ex. draps et serviettes éponge 1.10 PW 6241 - 24 kgPW 6321 - 32 kg Déroulement deprogramme + Prélavage 3...
fr - Tableau des programmes 173 Couleurs intensif 30 °C Rapport de rem-plissage/Quanti-té de charge Type de textile Textiles en coton, lin ou fibres mélangées trèssales, par ex. draps et serviettes éponge 1.10 PW 6241 - 24 kgPW 6321 - 32 kg Déroulement deprogramme + Prélavage 30 °C, sélectionnable...
fr - Tableau des programmes 175 Programmes Fin/Laine Fin 30 °C Rapport de rem-plissage/Quanti-té de charge Type de textile Fibres synthétiques, satin 1.25 PW 6241 - 9,6 kg PW 6321 - 13 kg Déroulement deprogramme Lavage 30 °C Rythme de lavage « fin »2 Cycles de rinçageEssorage final Laine 30 °C Type ...
fr - Tableau des programmes 176 Programme Rinçage seul Rinçage seul Type de textile Textiles qui doivent uniquement encore être rin-cés et essorés Déroulement deprogramme 1 cycle de rinçageEssorage final Programme Essorage supplémentaire Essorage supplémentaire Type de textile Textiles lavés qui doi...
fr - Tableau des programmes 177 Tableau des programmes hôtels/restaurants/traiteurs Cette catégorie concerne un grand nombre de textiles avec des degrés de salissure divers.Ce programme peut laver des draps et serviettes peu sales jusqu'au linge de cuisine trèssale, en passant par le linge de table ...
fr - Tableau des programmes 178 Programme Linge éponge spa Linge éponge spa 50 °C Rapport de rem-plissage/Quanti-té de charge Type de textile Draps ou serviettes éponge en coton, lin oufibres mélangées de couleur ou blancs avectaches d'huile ou de graisse prononcées 1.13* PW 6241 - 18 kgPW 6321 - 24...
fr - Tableau des programmes 179 Programme Peignoirs Peignoirs 60 °C Rapport de rem-plissage/Quanti-té de charge Type de textile Peignoirs en coton ou en fibres mélangées (s'ilssont très sales, sélectionner + Prélavage 40 °C) 1.10* PW 6241 - 24 kgPW 6321 - 32 kg Déroulement deprogramme + Prélavage...
fr - Tableau des programmes 181 Tableau des programmes Couettes Ces programmes permettent de laver les couettes, oreillers et/ou duvets avec garnissagede plumes et garnissage en fibres synthétiques ou naturelles. Programmes Couettes Ces programmes de lavage sont exclusivement conçus pour laver des t...
fr - Tableau des programmes 183 Désinfection : généralités Qu'est-ce que la désinfection ? Destruction et réduction des germes de maladies contagieuses, de sorte qu'une contami-nation et une infection soient exclues. Désinfection thermique La désinfection thermique a lieu par l'action d'une températ...
fr - Tableau des programmes 184 Liste VAH VAH = Verbund für angewandte Hygiene e.V.(précédemment DGHM = Deutsche Gesellschaft für Hygiene und Mikrobiologie) La liste VAH décrit les procédés pour une désinfection prophylactique de routine pour laprévention des infections à l'hôpital, dans les cabinet...
fr - Tableau des programmes 185 Tableau des programmes Désinfection Programmes Désinfection Tous les programmes sont verrouillés . Ils ne peuvent plus être interrompus ou arrêtés après 1 minute de déroulement. Leur ordre ne peut plus être modifié. Pour éviter une nouvelle contamination, l'arrivée d'...
fr - Tableau des programmes 187 Tableau des programmes Nettoyage machine Nettoyage machine Pour nettoyer la boîte à produits, le tambour, la cuve et le système de vidange. En cas d'utilisation fréquente de programmes de désinfection, de programmes bassestempératures ou pour l'élimination de saliss...
fr - Tableau des programmes 188 Tableau des programmes Fauberts Ces programmes sont conçus pour le lavage, la désinfection et l'apprêt (différents degrésd'humidité disponibles) de fauberts en coton ou en fibres mélangées, de tapis d'entrée la-vables, de disques de polissage et de lavettes utilisés p...
fr - Tableau des programmes 189 Fauberts désin Th+apprêt 90 °C Rapport de rem-plissage/Quanti-té de charge Type de textile Fauberts en coton, viscose, polyester ou micro-fibres 1.10 PW 6241PW 6321 Quantité voir tableau « Quantité de charge : fauberts » Déroulement deprogramme Déroulement de programm...
fr - Tableau des programmes 192 Programmes Lavettes Ces programmes sont conçus pour le lavage, la désinfection et l'apprêt (différents degrésd'humidité disponibles) de lavettes en coton, en fibres mélangées ou en microfibres utili-sées par les entreprises de nettoyage. Lavettes standard 60 °C Rappor...
fr - Tableau des programmes 194 Tableau des programmes Pompiers Ces programmes conviennent pour le lavage et l'imprégnation de tenues, vestes, panta-lons, masques respiratoires et tenues de protection anti-produits chimiques pour pom-piers Nomex. Programmes Tenue de protection Tenue de protection 60...
fr - Tableau des programmes 195 Tenue de protection Pour préparer le linge N'agrafez pas d'étiquettes sur les articles à laver. Si possible, retirez les mousquetons ou placez-les dans une poche latérale soigneuse-ment fermée. Fermez les fermetures velcro ou couvrez-les avec du velcro. Lavez ...
fr - Tableau des programmes 197 Programmes Tenues protection chimie Vêtements chimie est un programme de lavage des vêtements de protection chimique des pompiers.Une désinfection thermochimique (60 °C - 140 °F / 20 min) est réalisée pour laquelle desdétergents appropriés doivent être utilisés. Vêtem...
fr - Tableau des programmes 198 Programmes Vêtements de secours Casques* 60 °C (froid à 60 °C) Rapport de rem-plissage/Quanti-té de charge Type de textile Casques de protection pour pompiers PW 6241 - 6 casques PW 6321 - 10 casques Déroulement deprogramme Prélavage jusqu'à 40 °Ccycle de lavage princ...
fr - Tableau des programmes 199 Ceintures* 40 °C (froid à 40 °C) Rapport de rem-plissage/Quanti-té de charge Type de textile Couplages de pompiers également avec descomposants en aluminium et des garnitures encuir PWM 6241 - 18 couplages PWM 6321 - 24 couplages Déroulement deprogramme Lavage princip...
fr - Tableau des programmes 201 Tableau des programmes Pressings Programmes Pressings Le « nettoyage à l'eau » Aquanett est un procédé de nettoyage très délicat avec de l'eauet des produits d'entretien spéciaux pour les vêtements qui pouvaient uniquement êtrenettoyés à sec jusqu'ici. Aquanett délica...
fr - Tableau des programmes 202 Tableau des programmes Bain d'imprégnation Programme Bain d'imprégnation Lavage/imperméabil. 40 °C Rapport de rem-plissage/Quanti-té de charge Type de textile Pour tous les articles lavables à imperméabiliser(par ex. vêtements outdoor) 1.15–1.20 PW 6241 - 14,5 kg PW 6...
fr - Tableau des programmes 203 Tableau des programmes Centre équestre Ces programmes sont conçus pour le lavage et l'imprégnation des couvertures pour che-vaux, tapis de selle, guêtres, cloches, bandes, licols textile. Programmes Centres équestres Couvertures cheval 60 °C Rapport de rem-plissage/Qu...
fr - Tableau des programmes 204 Lavage préalable Nettoyez les couvertures très sales à l'aide d'un jet d'eau puissant ou d'un aspirateur. Détergent Pour le lavage, un détergent sans eau de Javel et azurant optique doit être utilisé.Pour les couvertures de laine, des produits avec un pH légèrement ré...
fr - Tableau des programmes 205 Tableau des programmes Sport Programmes Sport Maillots 40 °C Rapport de rem-plissage/Quanti-té de charge Type de textile Polyester ou polyamide avec ou sans élasthanne 1.20 PW 6241 - 12 kgPW 6321 - 16 kg Déroulement deprogramme + Prélavage 30 °C, sélectionnable Lava...
fr - Tableau des programmes 206 Vêtements outdoor 40 °C Rapport de rem-plissage/Quanti-té de charge Type de textile Textiles polyamide, à membrane 1.15 - 1.20 PW 6241 - 12–16 kg PW 6321 - 16–21 kg Déroulement deprogramme + Prélavage 30 °C, sélectionnable Lavage 40 °C2 Cycles de rinçageImprégnation...
fr - Tableau des programmes 207 Tableau des programmes Sluice (Laundry Regulation HTM 01-04) Les programmes Sluice sont destinés au linge de corps extrêmement sale ainsi qu'aulinge éponge et aux draps également très sales. La désinfection est effectuée selon les prescriptions locales en vigueur. Deu...
fr - Tableau des programmes 209 Tableau des programmes Récupération de l'eau (WRG) Programme Recyclage de l’eau (WRG) Nettoyage WRG 80 °C Rapport de rem-plissage/Quanti-té de charge Déroulement deprogramme VidangeRinçageVidangeLavageVidangeRinçageVidange Vidange WRG Déroulement deprogramme Vidange
Notice d'Installation Miele PW 6241 [EL MF]


































































































Résumé
fr - Table des matières 34 Consignes d'installation ............................................................................................................. 35 Explication des consignes de sécurité et des avertissements sur la machine .................... 35 Conditions d'installation .............
fr - Consignes d'installation *INSTALLATION* 35 Explication des consignes de sécurité et des avertissementssur la machine Veuillez lire le mode d'emploi Lisez les instructions, par exemple les instructions d'instal-lation Attention : surfaces brûlantes Attention tension jusqu'à 1000 V ! Mise à la te...
fr - Consignes d'installation *INSTALLATION* 36 Le lave-linge doit être placé sur une surface totalement plane, horizon-tale et solide qui résiste au moins à une charge au sol indiquée (voirchapitre « Caractéristiques techniques »). Conseil : La surface de montage la mieux adaptée est un sol en bé- ...
fr - Consignes d'installation *INSTALLATION* 37 Le lave-linge peut être raccordé soit par raccordement fixe, soit parprise, conformément à la norme IEC 60309-1. Pour un raccordementfixe, il faut installer sur le lieu d'installation un dispositif de sectionne-ment phase et neutre. Ce dispositif peut ...
fr - Consignes d'installation *INSTALLATION* 38 Le tuyau d'arrivée d'eau froide (bande bleue) n'est pas appropriépour un raccordement à l'eau chaude. Raccordement àl’eau chaude Pour maintenir la consommation d'énergie la plus faible possiblependant le fonctionnement à l'eau chaude, le lave-linge doi...
fr - Consignes d'installation *INSTALLATION* 39 Il est nécessaire que la conduite soit purgée pour un déroulementdu travail sans encombre.Si plusieurs appareils sont raccordés à un conduit collecteur, leconduit collecteur doit présenter une grande section appropriéepour le fonctionnement simultané d...
fr - Consignes d'installation *INSTALLATION* 40 Les raccordements 1 et 2 sont destinés au dosage de produits vis- queux et doivent aussi être utilisés pour les dispositifs de dosagehaute pression avec rinçage à l'eau. Les dispositifs de dosage doiventêtre équipés d'un dispositif de sécurité à l'eau...
fr - Caractéristiques techniques 46 Variantes de tension et caractéristiques électriques Standard : Commutable sur : Tension électrique 3 AC 220 - 240 V 3 AC 208 V Fréquence 50 Hz 60 Hz Consommation 25 kW 20 kW Protection par fusibles (côté installation) 3 x 80 A 3 x 70 A Diamètre minimum du câble d...
fr - Caractéristiques techniques 47 Raccords d’eau Raccordement à l'eau froide Pression nécessaire 100–1000 kPa (1–10 bar) Débit maximal (en l'absence d'alimentation en eau chaude et dure) 74 (79,5*) l/min Débit volumétrique maximal 26 (31,5*) l/min Raccord fileté requis (filetage extérieur, côté in...
fr - Caractéristiques techniques 48 Emissions de l'appareil Emission moyenne de chaleur dans la pièce d'installation 4,7 MJ/h Niveau pression acoustique d’émission au poste 78 dB(A) re 20 µPa Niveau de puissance sonore au lavage 60,3 dB (A) re 1 pW Niveau de puissance sonore à l'essorage 82,2 dB (A)...
Other Miele Autres Manuals
-
Miele APWM 066 Notice d'Installation
-
Miele APWM 062 Notice d'Installation
-
Miele APWM 065 Notice d'Installation
-
Miele APWM 020 Manuel d'utilisation
-
Miele APWM 020 Notice d'Installation
-
Miele SC Notice d'Installation
-
Miele PR Notice d'Installation
-
Miele FP 900 Notice d'Installation
-
Miele RP 900 Notice d'Installation
-
Miele APWM 019 Manuel d'utilisation
-
Miele APWM 019 Notice d'Installation
-
Miele A 830/1 Manuel d'utilisation
-
Miele TT 86 Manuel d'utilisation
-
Miele RP 1150 Notice d'Installation
-
Miele UG 5010 Notice d'Installation
-
Miele UO 5010 Notice d'Installation
-
Miele APCL 001 Notice d'Installation
-
Miele E 473/2 Manuel d'utilisation
-
Miele APRI 312 Notice d'Installation
-
Miele DOS K 85 flex Notice d'Installation