Miele PW 6321 [EL SOM WEK MF] - Manuels

Miele PW 6321 [EL SOM WEK MF] - Manuel d'utilisation, Notice d'Installation, Notice en ligne au format PDF.
Manuel d'utilisation Miele PW 6321 [EL SOM WEK MF]














































































































































































































































































































































































































































































Résumé
fr - Table des matières 169 Tableau des programmes ............................................................................................... 171 Tableau des programmes de base .................................................................................... 171 Programme Blanc ................
fr - Tableau des programmes 171 Tableau des programmes de base Programme Blanc Blanc 90 °C Rapport de rem-plissage/Quanti-té de charge Type de textile Textiles en coton, lin ou fibres mélangées blancs,par ex. draps ou serviettes éponge 1.10 PW 6241 - 24 kgPW 6321 - 32 kg Déroulement deprogramme + ...
fr - Tableau des programmes 172 Programmes Couleurs Couleurs 60 °C Rapport de rem-plissage/Quanti-té de charge Type de textile Textiles en coton, lin ou fibres mélangées norma-lement sales, par ex. draps et serviettes éponge 1.10 PW 6241 - 24 kgPW 6321 - 32 kg Déroulement deprogramme + Prélavage 3...
fr - Tableau des programmes 173 Couleurs intensif 30 °C Rapport de rem-plissage/Quanti-té de charge Type de textile Textiles en coton, lin ou fibres mélangées trèssales, par ex. draps et serviettes éponge 1.10 PW 6241 - 24 kgPW 6321 - 32 kg Déroulement deprogramme + Prélavage 30 °C, sélectionnable...
fr - Tableau des programmes 175 Programmes Fin/Laine Fin 30 °C Rapport de rem-plissage/Quanti-té de charge Type de textile Fibres synthétiques, satin 1.25 PW 6241 - 9,6 kg PW 6321 - 13 kg Déroulement deprogramme Lavage 30 °C Rythme de lavage « fin »2 Cycles de rinçageEssorage final Laine 30 °C Type ...
fr - Tableau des programmes 176 Programme Rinçage seul Rinçage seul Type de textile Textiles qui doivent uniquement encore être rin-cés et essorés Déroulement deprogramme 1 cycle de rinçageEssorage final Programme Essorage supplémentaire Essorage supplémentaire Type de textile Textiles lavés qui doi...
fr - Tableau des programmes 177 Tableau des programmes hôtels/restaurants/traiteurs Cette catégorie concerne un grand nombre de textiles avec des degrés de salissure divers.Ce programme peut laver des draps et serviettes peu sales jusqu'au linge de cuisine trèssale, en passant par le linge de table ...
fr - Tableau des programmes 178 Programme Linge éponge spa Linge éponge spa 50 °C Rapport de rem-plissage/Quanti-té de charge Type de textile Draps ou serviettes éponge en coton, lin oufibres mélangées de couleur ou blancs avectaches d'huile ou de graisse prononcées 1.13* PW 6241 - 18 kgPW 6321 - 24...
fr - Tableau des programmes 179 Programme Peignoirs Peignoirs 60 °C Rapport de rem-plissage/Quanti-té de charge Type de textile Peignoirs en coton ou en fibres mélangées (s'ilssont très sales, sélectionner + Prélavage 40 °C) 1.10* PW 6241 - 24 kgPW 6321 - 32 kg Déroulement deprogramme + Prélavage...
fr - Tableau des programmes 181 Tableau des programmes Couettes Ces programmes permettent de laver les couettes, oreillers et/ou duvets avec garnissagede plumes et garnissage en fibres synthétiques ou naturelles. Programmes Couettes Ces programmes de lavage sont exclusivement conçus pour laver des t...
fr - Tableau des programmes 183 Désinfection : généralités Qu'est-ce que la désinfection ? Destruction et réduction des germes de maladies contagieuses, de sorte qu'une contami-nation et une infection soient exclues. Désinfection thermique La désinfection thermique a lieu par l'action d'une températ...
fr - Tableau des programmes 184 Liste VAH VAH = Verbund für angewandte Hygiene e.V.(précédemment DGHM = Deutsche Gesellschaft für Hygiene und Mikrobiologie) La liste VAH décrit les procédés pour une désinfection prophylactique de routine pour laprévention des infections à l'hôpital, dans les cabinet...
fr - Tableau des programmes 185 Tableau des programmes Désinfection Programmes Désinfection Tous les programmes sont verrouillés . Ils ne peuvent plus être interrompus ou arrêtés après 1 minute de déroulement. Leur ordre ne peut plus être modifié. Pour éviter une nouvelle contamination, l'arrivée d'...
fr - Tableau des programmes 187 Tableau des programmes Nettoyage machine Nettoyage machine Pour nettoyer la boîte à produits, le tambour, la cuve et le système de vidange. En cas d'utilisation fréquente de programmes de désinfection, de programmes bassestempératures ou pour l'élimination de saliss...
fr - Tableau des programmes 188 Tableau des programmes Fauberts Ces programmes sont conçus pour le lavage, la désinfection et l'apprêt (différents degrésd'humidité disponibles) de fauberts en coton ou en fibres mélangées, de tapis d'entrée la-vables, de disques de polissage et de lavettes utilisés p...
fr - Tableau des programmes 189 Fauberts désin Th+apprêt 90 °C Rapport de rem-plissage/Quanti-té de charge Type de textile Fauberts en coton, viscose, polyester ou micro-fibres 1.10 PW 6241PW 6321 Quantité voir tableau « Quantité de charge : fauberts » Déroulement deprogramme Déroulement de programm...
fr - Tableau des programmes 192 Programmes Lavettes Ces programmes sont conçus pour le lavage, la désinfection et l'apprêt (différents degrésd'humidité disponibles) de lavettes en coton, en fibres mélangées ou en microfibres utili-sées par les entreprises de nettoyage. Lavettes standard 60 °C Rappor...
fr - Tableau des programmes 194 Tableau des programmes Pompiers Ces programmes conviennent pour le lavage et l'imprégnation de tenues, vestes, panta-lons, masques respiratoires et tenues de protection anti-produits chimiques pour pom-piers Nomex. Programmes Tenue de protection Tenue de protection 60...
fr - Tableau des programmes 195 Tenue de protection Pour préparer le linge N'agrafez pas d'étiquettes sur les articles à laver. Si possible, retirez les mousquetons ou placez-les dans une poche latérale soigneuse-ment fermée. Fermez les fermetures velcro ou couvrez-les avec du velcro. Lavez ...
fr - Tableau des programmes 197 Programmes Tenues protection chimie Vêtements chimie est un programme de lavage des vêtements de protection chimique des pompiers.Une désinfection thermochimique (60 °C - 140 °F / 20 min) est réalisée pour laquelle desdétergents appropriés doivent être utilisés. Vêtem...
fr - Tableau des programmes 198 Programmes Vêtements de secours Casques* 60 °C (froid à 60 °C) Rapport de rem-plissage/Quanti-té de charge Type de textile Casques de protection pour pompiers PW 6241 - 6 casques PW 6321 - 10 casques Déroulement deprogramme Prélavage jusqu'à 40 °Ccycle de lavage princ...
fr - Tableau des programmes 199 Ceintures* 40 °C (froid à 40 °C) Rapport de rem-plissage/Quanti-té de charge Type de textile Couplages de pompiers également avec descomposants en aluminium et des garnitures encuir PWM 6241 - 18 couplages PWM 6321 - 24 couplages Déroulement deprogramme Lavage princip...
fr - Tableau des programmes 201 Tableau des programmes Pressings Programmes Pressings Le « nettoyage à l'eau » Aquanett est un procédé de nettoyage très délicat avec de l'eauet des produits d'entretien spéciaux pour les vêtements qui pouvaient uniquement êtrenettoyés à sec jusqu'ici. Aquanett délica...
fr - Tableau des programmes 202 Tableau des programmes Bain d'imprégnation Programme Bain d'imprégnation Lavage/imperméabil. 40 °C Rapport de rem-plissage/Quanti-té de charge Type de textile Pour tous les articles lavables à imperméabiliser(par ex. vêtements outdoor) 1.15–1.20 PW 6241 - 14,5 kg PW 6...
fr - Tableau des programmes 203 Tableau des programmes Centre équestre Ces programmes sont conçus pour le lavage et l'imprégnation des couvertures pour che-vaux, tapis de selle, guêtres, cloches, bandes, licols textile. Programmes Centres équestres Couvertures cheval 60 °C Rapport de rem-plissage/Qu...
fr - Tableau des programmes 204 Lavage préalable Nettoyez les couvertures très sales à l'aide d'un jet d'eau puissant ou d'un aspirateur. Détergent Pour le lavage, un détergent sans eau de Javel et azurant optique doit être utilisé.Pour les couvertures de laine, des produits avec un pH légèrement ré...
fr - Tableau des programmes 205 Tableau des programmes Sport Programmes Sport Maillots 40 °C Rapport de rem-plissage/Quanti-té de charge Type de textile Polyester ou polyamide avec ou sans élasthanne 1.20 PW 6241 - 12 kgPW 6321 - 16 kg Déroulement deprogramme + Prélavage 30 °C, sélectionnable Lava...
fr - Tableau des programmes 206 Vêtements outdoor 40 °C Rapport de rem-plissage/Quanti-té de charge Type de textile Textiles polyamide, à membrane 1.15 - 1.20 PW 6241 - 12–16 kg PW 6321 - 16–21 kg Déroulement deprogramme + Prélavage 30 °C, sélectionnable Lavage 40 °C2 Cycles de rinçageImprégnation...
fr - Tableau des programmes 207 Tableau des programmes Sluice (Laundry Regulation HTM 01-04) Les programmes Sluice sont destinés au linge de corps extrêmement sale ainsi qu'aulinge éponge et aux draps également très sales. La désinfection est effectuée selon les prescriptions locales en vigueur. Deu...
fr - Tableau des programmes 209 Tableau des programmes Récupération de l'eau (WRG) Programme Recyclage de l’eau (WRG) Nettoyage WRG 80 °C Rapport de rem-plissage/Quanti-té de charge Déroulement deprogramme VidangeRinçageVidangeLavageVidangeRinçageVidange Vidange WRG Déroulement deprogramme Vidange
Notice d'Installation Miele PW 6321 [EL SOM WEK MF]


































































































Résumé
fr - Table des matières 34 Consignes d'installation ............................................................................................................. 35 Explication des consignes de sécurité et des avertissements sur la machine .................... 35 Conditions d'installation .............
fr - Consignes d'installation *INSTALLATION* 35 Explication des consignes de sécurité et des avertissementssur la machine Veuillez lire le mode d'emploi Lisez les instructions, par exemple les instructions d'instal-lation Attention : surfaces brûlantes Attention tension jusqu'à 1000 V ! Mise à la te...
fr - Consignes d'installation *INSTALLATION* 36 Le lave-linge doit être placé sur une surface totalement plane, horizon-tale et solide qui résiste au moins à une charge au sol indiquée (voirchapitre « Caractéristiques techniques »). Conseil : La surface de montage la mieux adaptée est un sol en bé- ...
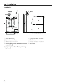
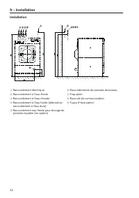
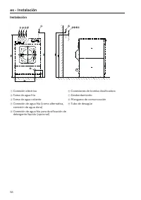
fr - Consignes d'installation *INSTALLATION* 37 Le lave-linge peut être raccordé soit par raccordement fixe, soit parprise, conformément à la norme IEC 60309-1. Pour un raccordementfixe, il faut installer sur le lieu d'installation un dispositif de sectionne-ment phase et neutre. Ce dispositif peut ...
fr - Consignes d'installation *INSTALLATION* 38 Le tuyau d'arrivée d'eau froide (bande bleue) n'est pas appropriépour un raccordement à l'eau chaude. Raccordement àl’eau chaude Pour maintenir la consommation d'énergie la plus faible possiblependant le fonctionnement à l'eau chaude, le lave-linge doi...
fr - Consignes d'installation *INSTALLATION* 39 Il est nécessaire que la conduite soit purgée pour un déroulementdu travail sans encombre.Si plusieurs appareils sont raccordés à un conduit collecteur, leconduit collecteur doit présenter une grande section appropriéepour le fonctionnement simultané d...
fr - Consignes d'installation *INSTALLATION* 40 Les raccordements 1 et 2 sont destinés au dosage de produits vis- queux et doivent aussi être utilisés pour les dispositifs de dosagehaute pression avec rinçage à l'eau. Les dispositifs de dosage doiventêtre équipés d'un dispositif de sécurité à l'eau...
fr - Caractéristiques techniques 46 Variantes de tension et caractéristiques électriques Standard : Commutable sur : Tension électrique 3 AC 220 - 240 V 3 AC 208 V Fréquence 50 Hz 60 Hz Consommation 25 kW 20 kW Protection par fusibles (côté installation) 3 x 80 A 3 x 70 A Diamètre minimum du câble d...
fr - Caractéristiques techniques 47 Raccords d’eau Raccordement à l'eau froide Pression nécessaire 100–1000 kPa (1–10 bar) Débit maximal (en l'absence d'alimentation en eau chaude et dure) 74 (79,5*) l/min Débit volumétrique maximal 26 (31,5*) l/min Raccord fileté requis (filetage extérieur, côté in...
fr - Caractéristiques techniques 48 Emissions de l'appareil Emission moyenne de chaleur dans la pièce d'installation 6,1 MJ/h Niveau pression acoustique d’émission au poste 73 dB(A) re 20 µPa Caractéristiques de l’appareil Largeur de l’appareil (sans pièces ajoutées) 1085 mm Hauteur de l'appareil (s...
Notice Miele PW 6321 [EL SOM WEK MF]






















Résumé
Umbau- und Montageanweisung M.-Nr. 06702862 13 von 22 Diese Unterlagen dürfen ohne unsere Genehmigung weder vervielfältigt noch Dritten zugänglich gemacht werden. Eigentumsrechte vorbehalten. 06.01.2022 fr Module 1 (MF01-24/32) dosage liquide 1-6 Motif : Ce manuel montre comment monter le système de...
Umbau- und Montageanweisung M.-Nr. 06702862 14 von 22 Diese Unterlagen dürfen ohne unsere Genehmigung weder vervielfältigt noch Dritten zugänglich gemacht werden. Eigentumsrechte vorbehalten. 06.01.2022 L'application de service Miele « Documentation technique du service Miele » (MSD) est nécessaire ...
Umbau- und Montageanweisung M.-Nr. 06702862 15 von 22 Diese Unterlagen dürfen ohne unsere Genehmigung weder vervielfältigt noch Dritten zugänglich gemacht werden. Eigentumsrechte vorbehalten. 06.01.2022 La pompe fonctionne 60 s. A Mesurer la quantité de dosage dans le gobelet gradué et saisir pour...
Other Miele Autres Manuals
-
Miele APWM 066 Notice d'Installation
-
Miele APWM 062 Notice d'Installation
-
Miele APWM 065 Notice d'Installation
-
Miele APWM 020 Manuel d'utilisation
-
Miele APWM 020 Notice d'Installation
-
Miele SC Notice d'Installation
-
Miele PR Notice d'Installation
-
Miele FP 900 Notice d'Installation
-
Miele RP 900 Notice d'Installation
-
Miele APWM 019 Manuel d'utilisation
-
Miele APWM 019 Notice d'Installation
-
Miele A 830/1 Manuel d'utilisation
-
Miele TT 86 Manuel d'utilisation
-
Miele RP 1150 Notice d'Installation
-
Miele UG 5010 Notice d'Installation
-
Miele UO 5010 Notice d'Installation
-
Miele APCL 001 Notice d'Installation
-
Miele E 473/2 Manuel d'utilisation
-
Miele APRI 312 Notice d'Installation
-
Miele DOS K 85 flex Notice d'Installation