Miele PWM 511 [EL DP DD SOM] - Manuels

Miele PWM 511 [EL DP DD SOM] - Manuel d'utilisation, Notice d'Installation en ligne au format PDF.
Manuel d'utilisation Miele PWM 511 [EL DP DD SOM]


















































































































































































































































































































































































































































































































































Résumé
fr - Table des matières 194 Programmes proposés des différents modèles .................................................................. 195 Tableau des programmes ........................................................................................................... 198 Options sélectionnabl...
fr - Programmes proposés des différents modèles 195 Groupe de programmes Nom de programme Standard MopStar Self-service Programmes spéciaux en option (achat possible) Standard Blanc • - • - Standard Couleurs • • - - Standard Couleurs intensif • - - - Standard Couleurs éco court • -...
fr - Tableau des programmes 198 Options sélectionnables Option Symbole Description Prérinçage Démarrer le pré-rinçage avant le début du lavage Prélavage Prélavage avant le début du lavage principal Trempage Bloc au début du lavage principal, 30 °C, peu de mouvement, Hydro plus Augmentation d...
fr - Tableau des programmes 199 Tableau des programmes de base La durée de lavage est le temps minimum de lavage dans le lavage principal après avoir atteint la température de consigne. Les durées d'arrivée d'eau, de dosage, de chauffage,d'essorage intermédiaire, etc. ne sont pas prises en compte. P...
fr - Tableau des programmes 200 Programmes Couleurs Couleurs 60 °C (froid à 60 °C) Rapport de remplis-sage/Quantité decharge Type de textile Textiles en coton, lin ou fibres mélangées normale-ment sales, par ex. draps et serviettes éponge 1:9 PWM 509 – 9 kg PWM 511 – 11 kg Déroulement de pro-gramme ...
fr - Tableau des programmes 201 Programmes Non repassable Non repassable 40 °C (froid à 60 °C) Rapport de remplis-sage/Quantité decharge Type de textile Textiles normalement sales en fibres synthétiques oumélangées 1.20 PWM 509 – 4 kg PWM 511 – 5 kg Déroulement de pro-gramme Lavage jusqu'à 60 °C, du...
fr - Tableau des programmes 202 Programmes Fin/Chemises/Laine Fin 30 °C (froid à 60 °C) Rapport de remplis-sage/Quantité decharge Type de textile Fibres synthétiques, satin 1.25 PWM 509 – 3,2 kg PWM 511 – 4 kg Déroulement de pro-gramme Lavage jusqu'à 60 °C, durée de lavage 12 minRythme de lavage ...
fr - Tableau des programmes 203 Programme Rinçage seul Rinçage seul Rapport de remplis-sage/Quantité decharge Type de textile Textiles qui doivent uniquement encore être rincés etessorés 1:9 PWM 509 – 9 kg PWM 511 – 11 kg Déroulement de pro-gramme 1 cycle de rinçageEssorage final Options Arrêt du re...
fr - Tableau des programmes 204 Nettoyage machine Nettoyage machine 70 °C (70 °C à 90 °C) Type de textile Sans charge Déroulement de pro-gramme + touche Intensif : lavage principal supplémentaire jusqu'à 90 °C, durée de lavage 6 min2 cycles de lavageVidange Options Trempage, Hydro plus, intensif, ...
fr - Tableau des programmes 205 Tableau des programmes hôtels/restaurants/traiteurs Cette catégorie concerne un grand nombre de textiles avec des degrés de salissure divers.Ce programme peut laver des draps et serviettes peu sales jusqu'au linge de cuisine trèssale, en passant par le linge de table ...
fr - Tableau des programmes 206 Programme Housses de matelas Housses de matelas 60 °C (froid à 90 °C) Rapport de remplis-sage/Quantité decharge Type de textile Housses de protection imperméables pour matelas ensynthétique 1.13 PWM 509 – 6,2 kg PWM 511 – 7,8 kg Déroulement de pro-gramme Lavage jusqu'...
fr - Tableau des programmes 207 Linge de cuisine Linge de cuisine 90 °C (froid à 90 °C) Rapport de remplis-sage/Quantité decharge Type de textile Linge de cuisine en coton, lin ou tissu mélangé 1.13 PWM 509 – 6,2 kg PWM 511 – 7,8 kg Déroulement de pro-gramme Pré-rinçageLavage jusqu'à 90 °C, durée de...
fr - Tableau des programmes 208 Tableau des programmes Literie/Voilages Voilages Voilages 40 °C (froid à 60 °C) Rapport de remplis-sage/Quantité decharge Type de textile Fibres synthétiques, satin 1.25 PWM 509 – 3,2 kg PWM 511 – 4 kg Déroulement de pro-gramme Lavage jusqu'à 60 °C, durée de lavage 14...
fr - Tableau des programmes 209 Couettes Ces programmes permettent de laver les couettes, oreillers et/ou duvets avec garnissagede plumes et garnissage en fibres synthétiques ou naturelles. Ces programmes de lavage sont exclusivement conçus pour laver des textiles portant lamention « lavable en mach...
fr - Tableau des programmes 210 Quantité de charge : literie Les capacités maximales peuvent être relevées dans le tableau suivant. Ces données sontfournies à titre indicatif et varient en fonction de la taille et de l'épaisseur des couettes. Modèle Quantité* PWM 509 1–2 oreillers PWM 511 1 couette ...
fr - Tableau des programmes 211 Désinfection : généralités Qu'est-ce que la désinfection ? Destruction et réduction des germes de maladies contagieuses, de sorte qu'une contami-nation et une infection soient exclues. Désinfection thermique La désinfection thermique a lieu par l'action d'une températ...
fr - Tableau des programmes 212 Liste VAH VAH = Verbund für angewandte Hygiene e.V.(précédemment DGHM = Deutsche Gesellschaft für Hygiene und Mikrobiologie) La liste VAH décrit les procédés pour une désinfection prophylactique de routine pour laprévention des infections à l'hôpital, dans les cabinet...
fr - Tableau des programmes 213 Raccordement à l'eau pour les variantes avec chauffage externe (EH) L'appareil doit être raccordé à l'eau froide et à l'eau chaude. Une température d'eau chauded'au moins 80 °C est recommandée. L'utilisation de programmes de désinfection n'est enprincipe pas possible ...
fr - Tableau des programmes 214 Désinfection Désinfection thermique et la désinfection chimico-thermique sont des programmes pour la désinfection des textiles.Une désinfection thermique et chimico-thermique est réalisée. Pour la désinfection chimi-co-thermique, des détergents appropriés doivent être...
fr - Tableau des programmes 215 Désinfection thermique 90 °C Rapport de remplis-sage/Quantité decharge Type de textile Coton, lin ; par ex. draps, serviettes éponge 1:9 PWM 509 – 9 kg PWM 511 – 11 kg Déroulement de pro-gramme Désinfection 90 °C, temps de maintien 10 min.refroidissement final (Cooldo...
fr - Tableau des programmes 217 Tableau des programmes Fauberts Ces programmes sont conçus pour le lavage, la désinfection et l'apprêt (différents degrésd'humidité disponibles) de fauberts en coton ou en fibres mélangées, de tapis d'entrée la-vables, de disques de polissage et de lavettes utilisés p...
fr - Tableau des programmes 218 Fauberts Pour éviter la présence de grosses saletés dans la machine, secouez les fauberts avant deles mettre dans la machine. Fauberts standard 60 °C (froid à 90 °C) Rapport de remplis-sage/Quantité decharge Type de textile Fauberts en coton, viscose, polyester ou m...
fr - Tableau des programmes 219 Faubert dés. thermique 90 °C Rapport de remplis-sage/Quantité decharge Type de textile Fauberts en coton, viscose, polyester ou microfibres 1:9 PWM 509 – 9 kg PWM 511 – 11 kg Quantité voir tableau « Quantité de charge : fauberts » Déroulement de pro-gramme Essorage pr...
fr - Tableau des programmes 221 Faubert dés. ch-t.20m+rtu 60 °C Rapport de remplis-sage/Quantité decharge Type de textile Fauberts en coton, viscose, polyester ou microfibres 1.10 PWM 509 – 8 kgPWM 511 – 10 kg Déroulement de pro-gramme Déroulement de programme comme pour faubertsdésinfection chimico...
fr - Tableau des programmes 222 Conseil : En cas d'utilisation de fauberts en microfibres, la quantité de charge est plus im- portante, car ce type de fauberts pèse moins lourd. Quantité de charge : fauberts (microfibres) vaut pour un rapport de remplissage de 1:9 Format du faubert 40 cm 120 g /faub...
fr - Tableau des programmes 223 Programmes Tapis de seuil/Disques de nettoyage Tapis de seuil 40 °C (froid à 60 °C) Rapport de remplis-sage/Quantité decharge Type de textile Tapis d'entrée lavables 1.15 PWM 509 – 5,4 kg PWM 511 – 6,8 kg Déroulement de pro-gramme Pré-rinçageLavage jusqu'à 60 °C, duré...
fr - Tableau des programmes 224 Programmes Lavettes Ces programmes sont conçus pour le lavage, la désinfection et l'apprêt (différents degrésd'humidité disponibles) de lavettes en coton, en fibres mélangées ou en microfibres utili-sées par les entreprises de nettoyage. Lavettes standard 60 °C (froid...
fr - Tableau des programmes 225 Lavettes dés. thermique 90 °C Rapport de remplis-sage/Quantité decharge Type de textile Lavettes en coton, viscose, polyester ou microfibres 1.18 PWM 509 – 4,6 kg PWM 511 – 5,6 kg Quantité voir tableau « Quantité de charge : lavettes » Déroulement de pro-gramme Pré-ri...
fr - Tableau des programmes 227 Lavettes rtu Rapport de remplis-sage/Quantité decharge Type de textile Lavettes en coton, viscose, polyester ou microfibres 1.18 PWM 509 – 4,6 kg PWM 511 – 5,6 kg Quantité voir tableau « Quantité de charge : lavettes » Déroulement de pro-gramme 1 cycle de rinçageen fi...
fr - Tableau des programmes 228 Tableau des programmes Pompiers Ces programmes conviennent pour le lavage et l'imprégnation de tenues, vestes, panta-lons, masques respiratoires et tenues de protection anti-produits chimiques pour pom-piers Nomex. Programmes Vêtements de protection Tenue de protectio...
fr - Tableau des programmes 229 Tenue de protection Pour préparer le linge N'agrafez pas d'étiquettes sur les articles à laver. Si possible, retirez les mousquetons ou placez-les dans une poche latérale soigneuse-ment fermée. Fermez les fermetures velcro ou couvrez-les avec du velcro. Lavez ...
fr - Tableau des programmes 230 Programmes Masques Les programmes Masques sont conçus pour le lavage et la désinfection de masques res- piratoires avec croisillon. Avant le chargement de la machine, relevez les lanières des masques pour protéger les vi-sières. Placez chaque masque dans le sac de...
fr - Tableau des programmes 231 Casques * 60 °C (froid à 60 °C) Rapport de remplis-sage/Quantité decharge Type de textile Casques de protection pour pompiers PWM 509 – 2 casques PWM 511 – 2 casques Déroulement de pro-gramme Prélavage jusqu'à 40 °Ccycle de lavage principal jusqu'à 60 °C, durée de la-...
fr - Tableau des programmes 232 Mettre 2 à 3 couplages (sangles de retenue) de chaque côté dans les sacs de protectionrembourrés prévus à cet effet et les fermer. Il est possible de se procurer les sachets de protection via le service après-vente Miele. Après le lavage, les couplages sont séchés à l...
fr - Tableau des programmes 234 Tableau des programmes Outdoor Outdoor 40 °C (froid à 40 °C) Rapport de remplis-sage/Quantité decharge Type de textile Textiles polyamide, à membrane 1.15 PWM 509 – 5,4 kg PWM 511 – 6,8 kg Déroulement de pro-gramme Lavage jusqu'à 40 °C, durée de lavage 6 min2 cycles d...
fr - Tableau des programmes 235 Sport Textiles sport 40 °C (froid à 60 °C) Rapport de remplis-sage/Quantité decharge Type de textile Tricots, maillots et pantalons en microfibres ou fibresmélangées 1.20 PWM 509 – 4 kg PWM 511 – 5 kg Déroulement de pro-gramme Lavage jusqu'à 60 °C, durée de lavage 6 m...
fr - Tableau des programmes 236 Vêtements de travail Huile/Graisse 60 °C (froid à 90 °C) Rapport de remplis-sage/Quantité decharge Type de textile Vêtements de travail, nappes et chiffons en coton oufibres mélangées salis d'huile ou de graisse 1.10 PWM 509 – 8 kgPWM 511 – 10 kg Déroulement de pro-gr...
fr - Tableau des programmes 237 Tableau des programmes Sluice (Laundry Regulation HTM 01-04) Les programmes Sluice sont destinés au linge de corps extrêmement sale ainsi qu'au lingeéponge et aux draps également très sales. La désinfection est effectuée selon les prescriptions locales en vigueur. Deu...
fr - Tableau des programmes 238 Tableau des programmes Self Service Couleurs 60 °C (froid à 60 °C) Rapport de remplis-sage/Quantité decharge Type de textile Textiles en coton, lin ou fibres mélangées normale-ment sales, par ex. draps et serviettes éponge 1:9 PWM 511 – 11 kg Déroulement de pro-gramme...
fr - Tableau des programmes 239 Tableau des programmes Eco Couleurs éco 40 °C (froid à 40 °C) Rapport de remplis-sage/Quantité decharge Type de textile Textiles en coton, lin ou fibres mélangées peu sales,par ex. draps et serviettes éponge 1:9 PWM 509 - 9 kg PWM 511 - 11 kg Déroulement de pro-gramme...
fr - Tableau des programmes 240 Non repass. éco 30 °C (froid à 30 °C) Rapport de remplis-sage/Quantité decharge Type de textile Textiles peu sales en fibres synthétiques ou mélan-gées 1.20 PWM 509 - 4 kg PWM 511 - 5 kg Déroulement de pro-gramme Lavage jusqu'à 30 °C, durée de lavage 7 min2 cycles de ...
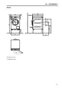
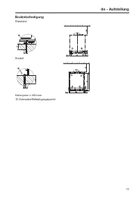
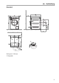
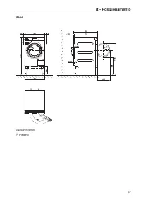
Notice d'Installation Miele PWM 511 [EL DP DD SOM]






























































Other Miele Autres Manuals
-
Miele APWM 066 Notice d'Installation
-
Miele APWM 062 Notice d'Installation
-
Miele APWM 065 Notice d'Installation
-
Miele APWM 020 Manuel d'utilisation
-
Miele APWM 020 Notice d'Installation
-
Miele SC Notice d'Installation
-
Miele PR Notice d'Installation
-
Miele FP 900 Notice d'Installation
-
Miele RP 900 Notice d'Installation
-
Miele APWM 019 Manuel d'utilisation
-
Miele APWM 019 Notice d'Installation
-
Miele A 830/1 Manuel d'utilisation
-
Miele TT 86 Manuel d'utilisation
-
Miele RP 1150 Notice d'Installation
-
Miele UG 5010 Notice d'Installation
-
Miele UO 5010 Notice d'Installation
-
Miele APCL 001 Notice d'Installation
-
Miele E 473/2 Manuel d'utilisation
-
Miele APRI 312 Notice d'Installation
-
Miele DOS K 85 flex Notice d'Installation