Miele PWM 511 [EL DV DD] - Manuels

Miele PWM 511 [EL DV DD] - Manuel d'utilisation, Notice, Notice d'Installation en ligne au format PDF.
Manuel d'utilisation Miele PWM 511 [EL DV DD]




















































































Résumé
Table des matières 2 Votre contribution à la protection de l'environnement ........................................................ 6 Votre ancien appareil .................................................................................................................... 6 Consignes de sécurité et ...
Table des matières 3 Modifier le déroulement d'un programme ............................................................................. 37 Modifier un programme................................................................................................................ 37 Modifier un programme ...
Table des matières 4 Commande/affichage ................................................................................................................... 70 Langue .........................................................................................................................................
Table des matières 5 Caractéristiques techniques ..................................................................................................... 80 Caractéristiques de l’appareil PWM 509/511 ........................................................................... 80 Raccordement électrique ...
Votre contribution à la protection de l'environnement 6 Nos emballages Nos emballages protègent votre appareil des dommages pouvant sur-venir pendant le transport. Nous les sélectionnons en fonction de cri-tères écologiques permettant d'en faciliter le recyclage. En participant au recyclage de vos e...
Consignes de sécurité et mises en garde 7 Mode d’emploi d'origine Explication des consignes de sécurité et des avertissementssur la machine Veuillez lire le mode d'emploi Lisez les instructions, par exemple les instructionsd'installation Attention : surfaces brûlantes Attention tension jusqu'à 1000 ...
Consignes de sécurité et mises en garde 8 Utilisation conforme Ce lave-linge est exclusivement conçu pour laver des textiles por- tant la mention « lavable en machine ». Toute autre utilisation pourraits'avérer dangereuse. Miele décline toute responsabilité en cas d'utili-sation non conforme. Il...
Consignes de sécurité et mises en garde 9 Erreur d'utilisation prévisible N'utilisez jamais de détergents contenant des solvants pour net- toyer le tambour de votre lave-linge. Ces produits risquent de détério-rer les pièces de l'appareil et de dégager des vapeurs toxiques. Risque d'incendie et d'...
Consignes de sécurité et mises en garde 10 Sécurité technique Vérifiez que votre lave-linge ne présente pas de dommages ex- ternes avant de l'installer. Si le lave-linge est endommagé, il ne doit enaucun cas être installé et mis en service. Seul un raccordement à une prise de terre conforme gara...
Consignes de sécurité et mises en garde 11 La prise du lave-linge doit être constamment accessible pour pou- voir débrancher à tout moment le lave-linge. Si un raccordement fixe est prévu, installer des dispositifs de dis- jonction phase et neutre. Si un raccordement fixe est prévu, le lave-li...
Consignes de sécurité et mises en garde 13 Ne stockez et ne manipulez ni essence, pétrole ou autre produit in- flammable à proximité du lave-linge. N'utilisez pas le couvercle de lamachine comme support. Risque d'incendie et d'explosion ! Ne rangez pas de produits chimiques sur le couvercle de l...
Consignes de sécurité et mises en garde 14 Dommages sur les composants et liés au chlore Plus vous utilisez de chlore, plus les composants risquent d'être abîmés. L'utilisation de produits à base de chlore, comme l'hypochlorite de sodium et les blanchiments au chlore en poudre peut en fonction d...
Consignes de sécurité et mises en garde 15 Accessoires Des accessoires ne peuvent être rajoutés ou montés que s'ils sont expressément autorisés par Miele. Si d’autres pièces sont rajoutéesou montées, les prétentions à la garantie et/ou fondées sur la respon-sabilité du fait du produit deviennent c...
Description de la machine 16 Description de la machine ⑥⑦ ⑫ ① ② ③ ⑬ ⑭ ⑯ ④ ⑰ ⑤ ⑧ ⑨ ⑱ ⑩ ⑪ ⑫ ⑮ a Trappe d’accès au filtre à lessive et à la pompe de vidange ou vanne de vidange b Porte c Poignée d Bac à produits e Écran (pour plus d’informations, consulter le chapitre « Commande »). f Raccordement élec...
Description de la machine 17 Bandeau de commande ⑥ ① ② ③ ④ ⑤ a Touche sensitive Langue Pour sélectionner la langue utilisateur ac-tuelle.À la fin du programme, la langue de l’ex-ploitant s’affiche à nouveau. b Touche sensitive Retour Revient au niveau précédent dans le me-nu. c Écran tactile a...
Commande 18 Touches sensitives et écran tactile Les touches sensitives , et Start/Stop ainsi que les affichages à l’écran réagissent au contact du doigt. Tout contact est confirmé parun bip sonore. Vous pouvez modifier ou désactiver le volume du bipsonore (voir chapitre « Mode exploitant »). Le...
Commande 19 Exemples d'utilisation Listes de sélection Menu « Programmes » (choix unique) 11:02 Blanc Couleurs Couleursintensif Programmes Couleurs écocourt Aide Vous pouvez faire défiler l'écran vers la gauche ou vers la droite en ba-layant l'écran. Posez un doigt sur l'écran et déplace...
Commande 20 Réglage des don-nées chiffrées Certains menus permettent le réglage de valeurs numériques. Dans l'exemple suivant, le réglage de l'heure est effectué. L'accès àce niveau est décrit au chapitre « Mode exploitant ». OK 12 00 10 58 14 02 11 59 13 01 Heure Entrez les chiffres en b...
Commande 21 Menu déroulant L'exemple suivant décrit l'affichage d'un programme de lavage encours. L'accès à ce niveau est décrit au chapitre « Démarrage duprogramme - Fin de programme ». 11:02 2:27 Blanc Laver et chauffer Tps rest. Statut Si une barre orange apparaît en haut de l'écran au m...
Commande 22 Utilisation dans une laverie Selon la programmation effectuée, le menu d'accueil peut se présen-ter de différentes manières (voir chapitre « Mode exploitant », section« Commande »). La commande simplifiée s'effectue via une sélection rapide. Les utili-sateurs ne peuvent pas modifier les ...
Lavage 23 Préparation du lavage Vider les poches Videz les poches. Dommages provoqués par des corps étrangers. Des clous, pièces de monnaie, trombones, etc. peuvent endomma-ger le linge et certains composants de l'appareil.Vérifiez la présence de corps étrangers sur le linge avant le lavage etre...
Lavage 25 Charger et mettre le lave-linge en marche Charger le lave-linge Préparez le lave-linge. Mettez le lave-linge en marche à l’aide de la touche . L’écran d’accueil s’affiche. Ouvrez la porte en tirant sur la poignée. Chargez le linge déplié dans le tambour sans le tasser.
Lavage 26 Vérifiez qu'aucune pièce de linge n'est coincée entre la porte et l’ouverture de chargement. Fermez la porte en appuyant fermement sur le dispositif d'enclen-chement. Le dispositif de fermeture de porte est enclenché, mais le lave-lingen'est pas encore verrouillé. La porte se verrouill...
Lavage 27 Lavage avec la boîte à produits Dosage de la les-sive via la boîte àproduits Pour les programmes standard, verser la lessive en poudre pour lelavage principal dans le compartiment . Si vous le souhaitez, ver- ser la lessive pour le prélavage dans le bac à produits , l'adoucis- sant...
Lavage 28 Utilisation de tein-tures / de décolo-rants et de détartrants Des produits colorants / décolorants et des produits de détartragedoivent être appropriés à l'utilisation en lave-linge. Respectez impéra-tivement les consignes d'utilisation du fabricant. Dosage de la les-sive Dosage de la les-...
Lavage 29 Sélectionner un programme Programmes Il existe plusieurs possibilités de sélectionner un programme. 11:02 Programmes Favoris Exploitant Aide Vous pouvez sélectionner un programme dans le menu Programmes . Effleurez la zone de sélection Programmes . 11:02 Blanc Couleurs Couleurs...
Lavage 30 La plupart des réglages de programme sont déjà déterminés pour lesprogrammes favoris et ne peuvent pas être modifiés. Sélectionner les paramètres du programme Sélectionner lacharge Pour permettre un dosage externe en fonction de la charge et uncycle adapté, vous pouvez indiquer la charge p...
Lavage 33 Sélectionner des options Sélectionner desoptions Vous pouvez sélectionner des options pour certains programmes delavage. Effleurez la zone de sélection Options . 11:02 Minuteur Blanc 9,0/9,9 kg °C Tr/min 90 0:56 h 1300 Aide Aperçu Détail Options 11:02 OK Prélavage Rinçage s...
Lavage 34 Démarrage de programme - fin de programme Démarrer un pro-gramme Dès qu'un programme peut être démarré, la touche sensitive Start/ Stop clignote. Effleurez la touche sensitive Start/Stop . La porte se verrouille (symbole ) et le programme de lavage dé- marre. 11:02 2:27 Blanc Lave...
Lavage 35 Minuteur Le timer vous permet de choisir la date de début du programme,l'heure de début du programme ou l'heure de fin du programme. Cemode est également appelé départ différé. Réglage du Timer(minuteur) Effleurez la zone de sélection Minuteur . 11:02 Minuteur Blanc 9,0/9,9 kg °C...
Spécificités selon les programmes 36 Essorage Vitesse d’essoragefinal La vitesse d'essorage maximale pour le programme de lavage s'affichetoujours dans le menu de pré-démarrage à l'écran après la sélectiondu programme. Il est possible de réduire la vitesse d'essorage final. La vitesse ne peut être m...
Modifier le déroulement d'un programme 37 Modifier un programme Modifier un pro-gramme de lavage Pour choisir un autre programme, vous devez d'abord annuler le pro-gramme en cours et sélectionner le nouveau programme. Annuler un programme Vous pouvez annuler un programme de lavage à tout moment aprè...
Modifier le déroulement d'un programme 38 Ajouter/retirer du linge Vous pouvez ajouter ou retirer du linge lors des premières minutes quisuivent le démarrage du programme. 11:02 Couleurs Statut h 0:49 Laver etchauffer Tps rest. Ajouter du linge Effleurez la zone de sélection Ajouter du linge...
En cas d'anomalie 39 Conseils en cas de panne Déverrouillage d'urgence de la porte en cas de panne de courant La porte de chargement ne s’ouvre pas. Attention ! Tambour en fonctionnement et risque de brûlures. Avant de poser la clé Torx, vérifiez que la machine est hors tension, le tambour est à l...
En cas d'anomalie 40 Service après-vente En cas de pannes, contactez le service après-vente. Veuillez indiquer au service après-vente le modèle de la machine, le numéro de série (SN)et le numéro de matériel (M.-Nr.). Ces indications figurent sur la plaque signalétique. Elleest collée porte ouverte, ...
En cas d'anomalie 41 Problème Cause et solution Le programme est dansl'écran de pré-démarrageet la touche Start/Stop du capteur ne clignote pas. La porte de chargement est seulement entrebâillée maispas correctement fermée. Vérifiez si la porte de chargement est correctement fer-mée.
En cas d'anomalie 42 Annulation de programme et message d'anomalie Problème Cause et solution F - Anomalie vidange. Si le redémarrage échoue,contactez le service après-vente. L’évacuation d’eau est bloquée ou gênée. Le tuyau de vidan-ge est placé trop haut. Nettoyez les filtres et la pompe à bai...
En cas d'anomalie 44 Résultat de lavage insatisfaisant Problème Cause et solution Le résultat de lavage n’estpas satisfaisant avec de lalessive liquide. La lessive liquide ne contient pas d’agent de blanchiment.Les taches de fruit, de café ou de thé ne sont donc pas tou-jours éliminées. Utilisez d...
En cas d'anomalie 45 Problèmes d'ordre général avec le lave-linge Problème Cause et solution Le lave-linge vibre forte-ment pendant l'essorage. Les pieds de l’appareil sont mal réglés et ne sont pas blo-qués. Ajustez l'appareil de sorte qu'il soit bien d'aplomb et blo-quez les pieds. La pompe fait...
En cas d'anomalie 46 La porte ne s’ouvre pas. Problème Cause et solution Ouverture de porte impos-sible La porte est verrouillée pendant le cycle de lavage. Effleurez la touche sensitive Start/Stop . Sélectionnez Annulation programme ou Ajouter du linge . La porte est déverrouillée et vous pouve...
En cas d'anomalie 48 Vérifiez si la turbine de la pompe de vidange tourne aisément. Si ce n’est pas le cas, enle-vez les corps étrangers présents (boutons, pièces de monnaie, etc.) si nécessaire et net-toyez l'intérieur. Remontez le filtre puis verrouillez-le bien. De l'eau s'écoule du lave-li...
Nettoyage et entretien 49 Effectuez le nettoyage et l'entretien après l'utilisation du lave-linge. Ne pas utiliser de nettoyeur sous pression ni de jet pour nettoyer lelave-linge. Nettoyez la carrosserie, le bandeau de commande et les pièces en plastique uniquement avec un produit nettoyant doux...
Nettoyage et entretien 50 Nettoyer le bac à produits, les compartiments et le si-phon avant utilisation. Après utilisation, nettoyez soigneusement la boîte à produits, lescompartiments à l'eau chaude pour les débarrasser des résidus delessive et des dépôts incrustés. En cas d'arrêt prolongé de l...
Nettoyage et entretien 51 1. Retirer le tube d'aspiration de son logement et le nettoyer l’eau chaude. Nettoyer également le tuyau sur lequel le tubed'aspiration est fixé. 2. Remettre le tube d’aspiration en place. Nettoyez le canal de l’adoucissant avec de l’eau chaude et unebrosse. Après plus...
Nettoyage et entretien 52 Retirez le joint de caoutchouc (1) de son logement. Saisissez l’arête du filtre en plastique (2) avec une pince à bec fin ouuniverselle et retirez la. Nettoyez le filtre en matière synthétique. Le remontage s’effectue dans l’ordre inverse. Revisser fermement le racc...
Installation 53 Installation du lave-linge Ce lave-linge ne doit être installé que par le service après-vente ouun revendeur autorisé. Respecter les consignes dans les instruc-tions d'installation. Ce lave-linge est destiné au traitement du linge ne contenant pas desubstances dangereuses ou inflamma...
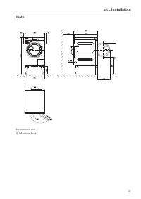
Installation 54 Maintenance facilitée Afin de faciliter les interventions du service après-vente, respecter lescotes minimales et la distance par rapport au mur avec accès indi-quées. Respectez impérativement les côtes minimales indiquées et la dis-tance par rapport au mur. Distance minimale par r...
Installation 56 Installation du lave-linge Transportez le lave-linge jusqu'à l'emplacement d'installation. Lors du transport du lave-linge, veillez à ce qu'il ne bascule pas. Ne saisissez pas le lave-linge par la porte de chargement. Le lave-linge ne doit pas être encastré. Montage sur socle...
Installation 57 Sécurités de transport Démonter les sécurités de transport Desserrez le crochet de verrouillage et tournez la sécurité de trans-port gauche de 90° dans le sens des aiguilles d'une montre. Retirez la tige de transport. Desserrez le crochet de verrouillage et tournez la sécurité ...
Installation 58 Retirez la tige de transport. Fermez les orifices à l’aide des bouchons joints. Conservez les sécurités de transport. Elles doivent être montéespour tout transport de la machine. Installer les sécurités de transport Le remontage des sécurités de transport s'effectue dans l'ordr...
Installation 59 Ajustement Les pieds du lave-linge et le sol doivent être bien secs pour éviter àl'appareil de glisser pendant l'essorage. Une installation non conforme augmente la consommation d'eau etd'énergie, et peut provoquer un déplacement de l'appareil. Ce sont les quatre pieds à vis qui assu...
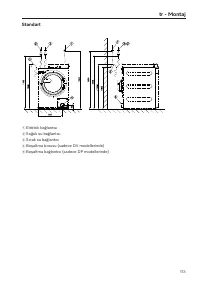
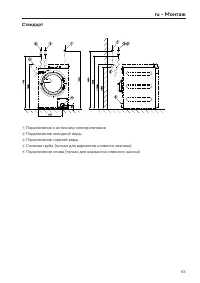
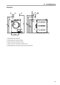
Installation 60 Raccordement à l’eau Selon l'ordonnance allemande sur l'eau potable, un clapet anti-re-tour doit être installé entre le robinet d'eau et le tuyau d'alimenta-tion en eau en Allemagne à partir du 21/03/2021 lors de la mise enservice de tous les appareils qui sont raccordés à l'eau chau...
Installation 62 Note pour la Suisse Conformément à la norme SIA 385.351 / EN 1717 et à la recomman-dation de la SSIGE, il faut installer un anti-retour. Vous pouvez obtenirun anti-retour conforme aux normes en vigueur auprès de votre instal-lateur en sanitaire.
Installation 63 Clapet de vidange(suivant modèle) Dans les lave-linge équipés d'une vanne de vidange, le bain lessivielest évacué par une vanne motorisée. La vanne de vidange peut êtreraccordée via un raccord en équerre standard fourni HT DN 70 direc-tement à l'évacuation des eaux usées sur place (s...
Installation 65 Raccordement électrique Le branchement doit être effectué uniquement par un électricienagréé et être conforme aux normes EDF et aux prescriptions spéci-fiques à chaque pays. Si un disjoncteur différentiel (RCD) doit être installé, prendre impérati-vement un disjoncteur différentiel t...
Installation 66 Délestage / gestionde l'énergie Un système de gestion des pics de charge ou de l'énergie peut êtreconnecté via la Connector-Box. Le système de gestion de l'énergie surveille la consommation d'éner-gie d'un objet pour désactiver à court terme de manière ciblée cer-tains organes électr...
Installation 67 Interface LAN/WLAN Le lave-linge est équipé d'une interface WLAN/LAN pour l'échangede données. L'interface de données fournie par le port LAN est conforme à lanorme SELV (basse tension) selon la norme EN 60950. La connexionLAN est réalisée à l'aide d'une fiche RJ45 selon EIA/TIA 568B...
Mode exploitant 68 Ouvrir le Mode exploitant Mettez le lave-linge en marche. 11:02 Programmes Favoris Exploitant Aide Effleurez la zone de sélection Exploitant . L'écran passe au menu Mode exploitant . Ouvrir le Mode exploitant Mettez le lave-linge sous tension et ouvrez la porte. ...
Mode exploitant 70 Commande/affichage Langue Plusieurs langues d'affichage vous sont proposées. Le sous-menuLangue permet de choisir la langue d'exploitant principale. La langue d'utilisateur peut être modifiée le temps d'un programme àl'aide de la touche sensitive . Accès langue L'écran peut aff...
Mode exploitant 71 Heure Une fois le format de temps sélectionné, l’heure peut être réglée. Format heure - 24 h - 12 h - Heure non affichée Régler - L’heure peut être réglée. Date La date peut être réglée une fois le format sélectionné. Format date - JJ.MM.AAAA - AAAA.MM.JJ - MM.JJ.AAAA Date - La da...
Mode exploitant 72 Départ différé L'affichage du départ différé (minuteur) peut être activé ou désactivé. Réglage d’usine : activé Mémoire Le lave-linge enregistre les derniers réglages d'un programme de la-vage (température, vitesse d'essorage et certaines options) après ledémarrage du programme. L...
Mode exploitant 73 Sélection du programme Commande Conseil : Commencez par effectuer tous les réglages et toutes les modifications nécessaires sur le lave-linge avant de sélectionner l'unedes options ci-dessous.En sélectionnant « Laverie-simple » ou « Logo laverie », une fois lemenu Mode exploitant...
Mode exploitant 74 Un menu s'ouvre, dans lequel vous pouvez sélectionner un nouveauprogramme ou modifier le paramètre. Validez la zone de sélection Enregistrer . Votre choix a été pris en compte. Classer les pro-grammes L'ordre des programmes peut être modifié sur la liste des pro-grammes et la li...
Mode exploitant 75 Technique de procédé Infroissable La fonction Infroissable permet de réduire la formation de plis aprèsla fin du programme. Le tambour tourne encore jusqu'à 30 minutesaprès la fin du programme. Vous pouvez ouvrir la porte du lave-linge à tout moment. Réglage d’usine : activé
Mode exploitant 76 Vidange fin deprogramme La vidange automatique de l'eau peut être activée ou désactivée. Lavidange automatique de l'eau permet de toujours vider le bain lessivielà la fin d'un programme. C'est également le cas pour les programmesqui se terminent avec de l'eau. Service Fréquence de...
Mode exploitant 77 1 à 6 pompes de dosage peuvent être activées. Après l'activation de la pompe de dosage, d'autres réglages peuventêtre effectués. - Désactiver pompe dos. - Calibrage - Débit (nouveau) : ml/min - Facteur de correction - Taille du récipient - Pré-avertiss. signal vide - Reset pré-ave...
Mise en réseau 78 Instructions d'appariement Pour connecter le lave-linge à votre réseau, procédez comme suit. Ouvrir le Mode exploitant Sélectionnez l'option Exploitant sur l'écran de l'appareil. Sélectionnez l'option Accès par code . Saisissez le code exploitant à 3 chiffres. Configurer la c...
Mise en réseau 79 - Serveur DNS IP = passerelle/routeur IP standard - Utilisation Mesh/répéteur : SSID et mot de passe identique à la passerelle/au routeur standard - Le SSID doit être visible en permanence Exigences du système pour le LAN - DHCP activé - multicastDNS/Bonjour/IGMP Snooping activé - ...
Caractéristiques techniques 80 Caractéristiques de l’appareil PWM 509/511 Raccordement électrique Tension électrique voir plaque signalétique Fréquence voir plaque signalétique Consommation voir plaque signalétique Consommation voir plaque signalétique Protection par fusibles requise voir plaque sig...
Caractéristiques techniques 81 Sécurité des produits Norme de sécurité produit EN 60335-1, EN 50571, IEC 60335-1, IEC 60335-2-7, EN 50570, IEC 60335-2-11 Déclaration de conformité UE Par la présente, Miele déclare que ce lave-linge est conforme à la directive 2014/53/EU.Le texte intégral de la décla...
Protection des données Wi-Fi 82 Protection et sécurité des données Dès que vous avez activé la fonction de mise en réseau et que votreappareil est connecté à l'Internet, votre appareil envoie les donnéessuivantes au Cloud Miele : - numéro de fabrication de l’appareil - type d’appareil et caractérist...
Miele S.A.SZ.I. du Coudray9, avenue Albert EinsteinB.P. 100093151 Le Blanc-Mesnil Cedexwww.miele.fr/professional R.C.S. Bobigny B 708 203 088 Tél. : Fax. :Mail : Tél. :Fax. :Mail : Tél. :Mail : 01 49 39 44 44 01 49 39 44 38[email protected] 01 49 39 44 7801 49 39 34 10[email protected] 01 49 39 44 8...
Notice Miele PWM 511 [EL DV DD]


















































































































































































































































































































































































































































































































































Résumé
fr - Table des matières 194 Programmes proposés des différents modèles .................................................................. 195 Tableau des programmes ........................................................................................................... 198 Options sélectionnabl...
fr - Programmes proposés des différents modèles 195 Groupe de programmes Nom de programme Standard MopStar Self-service Programmes spéciaux en option (achat possible) Standard Blanc • - • - Standard Couleurs • • - - Standard Couleurs intensif • - - - Standard Couleurs éco court • -...
fr - Tableau des programmes 198 Options sélectionnables Option Symbole Description Prérinçage Démarrer le pré-rinçage avant le début du lavage Prélavage Prélavage avant le début du lavage principal Trempage Bloc au début du lavage principal, 30 °C, peu de mouvement, Hydro plus Augmentation d...
fr - Tableau des programmes 199 Tableau des programmes de base La durée de lavage est le temps minimum de lavage dans le lavage principal après avoir atteint la température de consigne. Les durées d'arrivée d'eau, de dosage, de chauffage,d'essorage intermédiaire, etc. ne sont pas prises en compte. P...
fr - Tableau des programmes 200 Programmes Couleurs Couleurs 60 °C (froid à 60 °C) Rapport de remplis-sage/Quantité decharge Type de textile Textiles en coton, lin ou fibres mélangées normale-ment sales, par ex. draps et serviettes éponge 1:9 PWM 509 – 9 kg PWM 511 – 11 kg Déroulement de pro-gramme ...
fr - Tableau des programmes 201 Programmes Non repassable Non repassable 40 °C (froid à 60 °C) Rapport de remplis-sage/Quantité decharge Type de textile Textiles normalement sales en fibres synthétiques oumélangées 1.20 PWM 509 – 4 kg PWM 511 – 5 kg Déroulement de pro-gramme Lavage jusqu'à 60 °C, du...
fr - Tableau des programmes 202 Programmes Fin/Chemises/Laine Fin 30 °C (froid à 60 °C) Rapport de remplis-sage/Quantité decharge Type de textile Fibres synthétiques, satin 1.25 PWM 509 – 3,2 kg PWM 511 – 4 kg Déroulement de pro-gramme Lavage jusqu'à 60 °C, durée de lavage 12 minRythme de lavage ...
fr - Tableau des programmes 203 Programme Rinçage seul Rinçage seul Rapport de remplis-sage/Quantité decharge Type de textile Textiles qui doivent uniquement encore être rincés etessorés 1:9 PWM 509 – 9 kg PWM 511 – 11 kg Déroulement de pro-gramme 1 cycle de rinçageEssorage final Options Arrêt du re...
fr - Tableau des programmes 204 Nettoyage machine Nettoyage machine 70 °C (70 °C à 90 °C) Type de textile Sans charge Déroulement de pro-gramme + touche Intensif : lavage principal supplémentaire jusqu'à 90 °C, durée de lavage 6 min2 cycles de lavageVidange Options Trempage, Hydro plus, intensif, ...
fr - Tableau des programmes 205 Tableau des programmes hôtels/restaurants/traiteurs Cette catégorie concerne un grand nombre de textiles avec des degrés de salissure divers.Ce programme peut laver des draps et serviettes peu sales jusqu'au linge de cuisine trèssale, en passant par le linge de table ...
fr - Tableau des programmes 206 Programme Housses de matelas Housses de matelas 60 °C (froid à 90 °C) Rapport de remplis-sage/Quantité decharge Type de textile Housses de protection imperméables pour matelas ensynthétique 1.13 PWM 509 – 6,2 kg PWM 511 – 7,8 kg Déroulement de pro-gramme Lavage jusqu'...
fr - Tableau des programmes 207 Linge de cuisine Linge de cuisine 90 °C (froid à 90 °C) Rapport de remplis-sage/Quantité decharge Type de textile Linge de cuisine en coton, lin ou tissu mélangé 1.13 PWM 509 – 6,2 kg PWM 511 – 7,8 kg Déroulement de pro-gramme Pré-rinçageLavage jusqu'à 90 °C, durée de...
fr - Tableau des programmes 208 Tableau des programmes Literie/Voilages Voilages Voilages 40 °C (froid à 60 °C) Rapport de remplis-sage/Quantité decharge Type de textile Fibres synthétiques, satin 1.25 PWM 509 – 3,2 kg PWM 511 – 4 kg Déroulement de pro-gramme Lavage jusqu'à 60 °C, durée de lavage 14...
fr - Tableau des programmes 209 Couettes Ces programmes permettent de laver les couettes, oreillers et/ou duvets avec garnissagede plumes et garnissage en fibres synthétiques ou naturelles. Ces programmes de lavage sont exclusivement conçus pour laver des textiles portant lamention « lavable en mach...
fr - Tableau des programmes 210 Quantité de charge : literie Les capacités maximales peuvent être relevées dans le tableau suivant. Ces données sontfournies à titre indicatif et varient en fonction de la taille et de l'épaisseur des couettes. Modèle Quantité* PWM 509 1–2 oreillers PWM 511 1 couette ...
fr - Tableau des programmes 211 Désinfection : généralités Qu'est-ce que la désinfection ? Destruction et réduction des germes de maladies contagieuses, de sorte qu'une contami-nation et une infection soient exclues. Désinfection thermique La désinfection thermique a lieu par l'action d'une températ...
fr - Tableau des programmes 212 Liste VAH VAH = Verbund für angewandte Hygiene e.V.(précédemment DGHM = Deutsche Gesellschaft für Hygiene und Mikrobiologie) La liste VAH décrit les procédés pour une désinfection prophylactique de routine pour laprévention des infections à l'hôpital, dans les cabinet...
fr - Tableau des programmes 213 Raccordement à l'eau pour les variantes avec chauffage externe (EH) L'appareil doit être raccordé à l'eau froide et à l'eau chaude. Une température d'eau chauded'au moins 80 °C est recommandée. L'utilisation de programmes de désinfection n'est enprincipe pas possible ...
fr - Tableau des programmes 214 Désinfection Désinfection thermique et la désinfection chimico-thermique sont des programmes pour la désinfection des textiles.Une désinfection thermique et chimico-thermique est réalisée. Pour la désinfection chimi-co-thermique, des détergents appropriés doivent être...
fr - Tableau des programmes 215 Désinfection thermique 90 °C Rapport de remplis-sage/Quantité decharge Type de textile Coton, lin ; par ex. draps, serviettes éponge 1:9 PWM 509 – 9 kg PWM 511 – 11 kg Déroulement de pro-gramme Désinfection 90 °C, temps de maintien 10 min.refroidissement final (Cooldo...
fr - Tableau des programmes 217 Tableau des programmes Fauberts Ces programmes sont conçus pour le lavage, la désinfection et l'apprêt (différents degrésd'humidité disponibles) de fauberts en coton ou en fibres mélangées, de tapis d'entrée la-vables, de disques de polissage et de lavettes utilisés p...
fr - Tableau des programmes 218 Fauberts Pour éviter la présence de grosses saletés dans la machine, secouez les fauberts avant deles mettre dans la machine. Fauberts standard 60 °C (froid à 90 °C) Rapport de remplis-sage/Quantité decharge Type de textile Fauberts en coton, viscose, polyester ou m...
fr - Tableau des programmes 219 Faubert dés. thermique 90 °C Rapport de remplis-sage/Quantité decharge Type de textile Fauberts en coton, viscose, polyester ou microfibres 1:9 PWM 509 – 9 kg PWM 511 – 11 kg Quantité voir tableau « Quantité de charge : fauberts » Déroulement de pro-gramme Essorage pr...
fr - Tableau des programmes 221 Faubert dés. ch-t.20m+rtu 60 °C Rapport de remplis-sage/Quantité decharge Type de textile Fauberts en coton, viscose, polyester ou microfibres 1.10 PWM 509 – 8 kgPWM 511 – 10 kg Déroulement de pro-gramme Déroulement de programme comme pour faubertsdésinfection chimico...
fr - Tableau des programmes 222 Conseil : En cas d'utilisation de fauberts en microfibres, la quantité de charge est plus im- portante, car ce type de fauberts pèse moins lourd. Quantité de charge : fauberts (microfibres) vaut pour un rapport de remplissage de 1:9 Format du faubert 40 cm 120 g /faub...
fr - Tableau des programmes 223 Programmes Tapis de seuil/Disques de nettoyage Tapis de seuil 40 °C (froid à 60 °C) Rapport de remplis-sage/Quantité decharge Type de textile Tapis d'entrée lavables 1.15 PWM 509 – 5,4 kg PWM 511 – 6,8 kg Déroulement de pro-gramme Pré-rinçageLavage jusqu'à 60 °C, duré...
fr - Tableau des programmes 224 Programmes Lavettes Ces programmes sont conçus pour le lavage, la désinfection et l'apprêt (différents degrésd'humidité disponibles) de lavettes en coton, en fibres mélangées ou en microfibres utili-sées par les entreprises de nettoyage. Lavettes standard 60 °C (froid...
fr - Tableau des programmes 225 Lavettes dés. thermique 90 °C Rapport de remplis-sage/Quantité decharge Type de textile Lavettes en coton, viscose, polyester ou microfibres 1.18 PWM 509 – 4,6 kg PWM 511 – 5,6 kg Quantité voir tableau « Quantité de charge : lavettes » Déroulement de pro-gramme Pré-ri...
fr - Tableau des programmes 227 Lavettes rtu Rapport de remplis-sage/Quantité decharge Type de textile Lavettes en coton, viscose, polyester ou microfibres 1.18 PWM 509 – 4,6 kg PWM 511 – 5,6 kg Quantité voir tableau « Quantité de charge : lavettes » Déroulement de pro-gramme 1 cycle de rinçageen fi...
fr - Tableau des programmes 228 Tableau des programmes Pompiers Ces programmes conviennent pour le lavage et l'imprégnation de tenues, vestes, panta-lons, masques respiratoires et tenues de protection anti-produits chimiques pour pom-piers Nomex. Programmes Vêtements de protection Tenue de protectio...
fr - Tableau des programmes 229 Tenue de protection Pour préparer le linge N'agrafez pas d'étiquettes sur les articles à laver. Si possible, retirez les mousquetons ou placez-les dans une poche latérale soigneuse-ment fermée. Fermez les fermetures velcro ou couvrez-les avec du velcro. Lavez ...
fr - Tableau des programmes 230 Programmes Masques Les programmes Masques sont conçus pour le lavage et la désinfection de masques res- piratoires avec croisillon. Avant le chargement de la machine, relevez les lanières des masques pour protéger les vi-sières. Placez chaque masque dans le sac de...
fr - Tableau des programmes 231 Casques * 60 °C (froid à 60 °C) Rapport de remplis-sage/Quantité decharge Type de textile Casques de protection pour pompiers PWM 509 – 2 casques PWM 511 – 2 casques Déroulement de pro-gramme Prélavage jusqu'à 40 °Ccycle de lavage principal jusqu'à 60 °C, durée de la-...
fr - Tableau des programmes 232 Mettre 2 à 3 couplages (sangles de retenue) de chaque côté dans les sacs de protectionrembourrés prévus à cet effet et les fermer. Il est possible de se procurer les sachets de protection via le service après-vente Miele. Après le lavage, les couplages sont séchés à l...
fr - Tableau des programmes 234 Tableau des programmes Outdoor Outdoor 40 °C (froid à 40 °C) Rapport de remplis-sage/Quantité decharge Type de textile Textiles polyamide, à membrane 1.15 PWM 509 – 5,4 kg PWM 511 – 6,8 kg Déroulement de pro-gramme Lavage jusqu'à 40 °C, durée de lavage 6 min2 cycles d...
fr - Tableau des programmes 235 Sport Textiles sport 40 °C (froid à 60 °C) Rapport de remplis-sage/Quantité decharge Type de textile Tricots, maillots et pantalons en microfibres ou fibresmélangées 1.20 PWM 509 – 4 kg PWM 511 – 5 kg Déroulement de pro-gramme Lavage jusqu'à 60 °C, durée de lavage 6 m...
fr - Tableau des programmes 236 Vêtements de travail Huile/Graisse 60 °C (froid à 90 °C) Rapport de remplis-sage/Quantité decharge Type de textile Vêtements de travail, nappes et chiffons en coton oufibres mélangées salis d'huile ou de graisse 1.10 PWM 509 – 8 kgPWM 511 – 10 kg Déroulement de pro-gr...
fr - Tableau des programmes 237 Tableau des programmes Sluice (Laundry Regulation HTM 01-04) Les programmes Sluice sont destinés au linge de corps extrêmement sale ainsi qu'au lingeéponge et aux draps également très sales. La désinfection est effectuée selon les prescriptions locales en vigueur. Deu...
fr - Tableau des programmes 238 Tableau des programmes Self Service Couleurs 60 °C (froid à 60 °C) Rapport de remplis-sage/Quantité decharge Type de textile Textiles en coton, lin ou fibres mélangées normale-ment sales, par ex. draps et serviettes éponge 1:9 PWM 511 – 11 kg Déroulement de pro-gramme...
fr - Tableau des programmes 239 Tableau des programmes Eco Couleurs éco 40 °C (froid à 40 °C) Rapport de remplis-sage/Quantité decharge Type de textile Textiles en coton, lin ou fibres mélangées peu sales,par ex. draps et serviettes éponge 1:9 PWM 509 - 9 kg PWM 511 - 11 kg Déroulement de pro-gramme...
fr - Tableau des programmes 240 Non repass. éco 30 °C (froid à 30 °C) Rapport de remplis-sage/Quantité decharge Type de textile Textiles peu sales en fibres synthétiques ou mélan-gées 1.20 PWM 509 - 4 kg PWM 511 - 5 kg Déroulement de pro-gramme Lavage jusqu'à 30 °C, durée de lavage 7 min2 cycles de ...
Notice d'Installation Miele PWM 511 [EL DV DD]
































































































































































































































Résumé
fr - Table des matières 43 Consignes d'installation ............................................................................................................. 44 Explication des consignes de sécurité et des avertissements sur la machine .................... 44 Conditions d'installation .............
fr - Consignes d'installation *INSTALLATION* 44 Explication des consignes de sécurité et des avertissementssur la machine Veuillez lire le mode d'emploi Lisez les instructions, par exemple les instructions d'instal-lation Attention : surfaces brûlantes Attention tension jusqu'à 1000 V ! Mise à la te...
fr - Consignes d'installation *INSTALLATION* 45 Installation Transportez le lave-linge sur le lieu d'installation à l'aide d'un chariotet retirez l'emballage de transport.Le lave-linge doit être placé sur une surface totalement plane, horizon-tale et solide qui résiste au moins à une charge au sol i...
fr - Consignes d'installation *INSTALLATION* 46 Serrez les contre-écrous après ajustement à l'aide d'une clé platedans le sens contraire des aiguilles d'une montre, pour que les piedsne puissent pas être déréglés. Raccordement électrique Le branchement électrique doit être réalisé par un électrici...
fr - Consignes d'installation *INSTALLATION* 47 Ce dispositif (y compris la prise) doit être protégé contre tout réen-clenchement involontaire ou non autorisé, si une interruption perma-nente de l'alimentation en énergie n'est pas contrôlée depuis chaquezone d'accès. Conseil : Raccordez de préférenc...
fr - Consignes d'installation *INSTALLATION* 49 - Évacuation directe dans une bonde au sol (puits d'écoulement). Si nécessaire, le tuyau peut être rallongé jusqu'à 5 m. L'accessoirecorrespondant est disponible auprès du SAV Miele ou des revendeursspécialisés Miele.Pour des hauteurs d'évacuation supé...
fr - Consignes d'installation *INSTALLATION* 50 Options / Accessoires en option Des accessoires ne peuvent être rajoutés ou montés que s'ils sontexpressément autorisés par Miele.Le montage d'autres pièces exclut le bénéfice de la garantie. Connector Box La Connector Box permet de raccorder des dispo...
fr - Consignes d'installation *INSTALLATION* 51 Interface LAN/WLAN Le lave-linge est équipé d'une interface WLAN/LAN pour l'échangede données.L'interface de données fournie par le port LAN est conforme à lanorme SELV (basse tension) selon la norme EN 60950. La connexionLAN est réalisée à l'aide d'un...
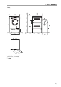
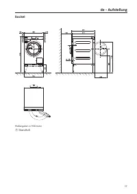
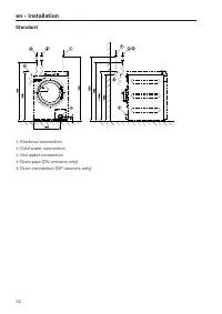
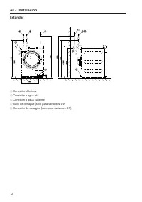
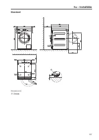
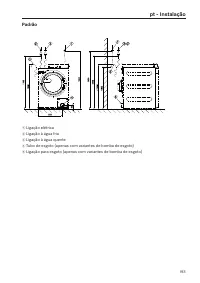
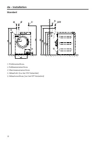
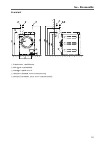
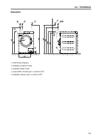
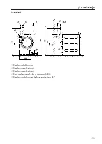
fr - Installation 54 Socle a Raccordement électrique b Raccordement à l'eau froide c Raccordement à l’eau chaude d Tuyau d'évacuation (uniquement pour vanne de vidange DV) e Raccord de vidange (uniquement pour pompe de vidange DP)
fr - Caractéristiques techniques 59 Variantes de tension et caractéristiques électriques 3N AC 400 V EL DV Tension électrique 3N AC 400 V Fréquence 50/60 Hz Protection par fusibles requise (côté installation) Caractéristique de déclenchement du disjoncteur automatique 3 x 16 A Type B Consommation 8,...
fr - Caractéristiques techniques 61 Raccordement à l'eau Raccordement à l'eau froide Pression nécessaire 100 - 1000 kPa (1 - 10 bar) Débit volumétrique maximal 10 l/min Raccord fileté requis (filetage extérieur, côté installation conforme à DIN 44991, joint plat) 3/4" Longueur du tuyau d’arrivée...
fr - Caractéristiques techniques 62 Fixation Standard Points de fixation nécessaires 2 Vis à bois DIN 571 (diamètre x longueur) 12 mm x 90 mm Cheville (diamètre x longueur) 14 mm x 80 mm Avec socle (APWM) Points de fixation nécessaires 4 Vis à bois DIN 571 (diamètre x longueur) 12 mm x 90 mm Chevill...
Other Miele Autres Manuals
-
Miele APWM 066 Notice d'Installation
-
Miele APWM 062 Notice d'Installation
-
Miele APWM 065 Notice d'Installation
-
Miele APWM 020 Manuel d'utilisation
-
Miele APWM 020 Notice d'Installation
-
Miele SC Notice d'Installation
-
Miele PR Notice d'Installation
-
Miele FP 900 Notice d'Installation
-
Miele RP 900 Notice d'Installation
-
Miele APWM 019 Manuel d'utilisation
-
Miele APWM 019 Notice d'Installation
-
Miele A 830/1 Manuel d'utilisation
-
Miele TT 86 Manuel d'utilisation
-
Miele RP 1150 Notice d'Installation
-
Miele UG 5010 Notice d'Installation
-
Miele UO 5010 Notice d'Installation
-
Miele APCL 001 Notice d'Installation
-
Miele E 473/2 Manuel d'utilisation
-
Miele APRI 312 Notice d'Installation
-
Miele DOS K 85 flex Notice d'Installation