Miele PWM 909 [EL DV DD] - Manuels

Miele PWM 909 [EL DV DD] - Manuel d'utilisation, Notice, Notice d'Installation, Guide rapide en ligne au format PDF.
Manuel d'utilisation Miele PWM 909 [EL DV DD]
























































































Résumé
Table des matières 2 Votre contribution à la protection de l'environnement ........................................................ 6 Votre ancien appareil .................................................................................................................... 6 Consignes de sécurité et ...
Table des matières 3 Avance rapide................................................................................................................................. 37 Commande manuelle.......................................................................................................................
Table des matières 4 Options / Accessoires en option................................................................................................. 68 Connector Box .......................................................................................................................... 68 Interfa...
Table des matières 5 Mise en réseau ............................................................................................................................. 82 Instructions d'appariement ......................................................................................................... 82...
Votre contribution à la protection de l'environnement 6 Nos emballages Nos emballages protègent votre appareil des dommages pouvant sur-venir pendant le transport. Nous les sélectionnons en fonction de cri-tères écologiques permettant d'en faciliter le recyclage. En participant au recyclage de vos e...
Consignes de sécurité et mises en garde 7 Mode d’emploi d'origine Explication des consignes de sécurité et des avertissementssur la machine Veuillez lire le mode d'emploi Lisez les instructions, par exemple les instructionsd'installation Attention : surfaces brûlantes Attention tension jusqu'à 1000 ...
Consignes de sécurité et mises en garde 8 Utilisation conforme Ce lave-linge est exclusivement conçu pour laver des textiles por- tant la mention « lavable en machine ». Toute autre utilisation pourraits'avérer dangereuse. Miele décline toute responsabilité en cas d'utili-sation non conforme. Il...
Consignes de sécurité et mises en garde 9 Erreur d'utilisation prévisible N'utilisez jamais de détergents contenant des solvants pour net- toyer le tambour de votre lave-linge. Ces produits risquent de détério-rer les pièces de l'appareil et de dégager des vapeurs toxiques. Risque d'incendie et d'...
Consignes de sécurité et mises en garde 10 Sécurité technique Vérifiez que votre lave-linge ne présente pas de dommages ex- ternes avant de l'installer. Si le lave-linge est endommagé, il ne doit enaucun cas être installé et mis en service. Seul un raccordement à une prise de terre conforme gara...
Consignes de sécurité et mises en garde 11 La prise du lave-linge doit être constamment accessible pour pou- voir débrancher à tout moment le lave-linge. Si un raccordement fixe est prévu, installer des dispositifs de dis- jonction phase et neutre. Si un raccordement fixe est prévu, le lave-li...
Consignes de sécurité et mises en garde 13 Ne stockez et ne manipulez ni essence, pétrole ou autre produit in- flammable à proximité du lave-linge. N'utilisez pas le couvercle de lamachine comme support. Risque d'incendie et d'explosion ! Ne rangez pas de produits chimiques sur le couvercle de l...
Consignes de sécurité et mises en garde 14 Dommages sur les composants et liés au chlore Plus vous utilisez de chlore, plus les composants risquent d'être abîmés. L'utilisation de produits à base de chlore, comme l'hypochlorite de sodium et les blanchiments au chlore en poudre peut en fonction d...
Consignes de sécurité et mises en garde 15 Accessoires Des accessoires ne peuvent être rajoutés ou montés que s'ils sont expressément autorisés par Miele. Si d’autres pièces sont rajoutéesou montées, les prétentions à la garantie et/ou fondées sur la respon-sabilité du fait du produit deviennent c...
Description de la machine 16 Description de la machine ⑥⑦ ⑫ ① ② ③ ⑬ ⑭ ⑯ ④ ⑰ ⑤ ⑧ ⑨ ⑱ ⑩ ⑪ ⑫ ⑮ a Trappe d’accès au filtre à lessive et à la pompe de vidange ou vanne de vidange b Porte c Poignée d Bac à produits e Écran (pour plus d’informations, consulter le chapitre « Commande »). f Raccordement élec...
Description de la machine 17 Bandeau de commande ⑥ ① ② ③ ④ ⑤ a Touche sensitive Langue Pour sélectionner la langue utilisateur ac-tuelle.À la fin du programme, la langue de l’ex-ploitant s’affiche à nouveau. b Touche sensitive Retour Revient au niveau précédent dans le me-nu. c Écran tactile a...
Commande 18 Touches sensitives et écran tactile Les touches sensitives , et Start/Stop ainsi que les affichages à l’écran réagissent au contact du doigt. Tout contact est confirmé parun bip sonore. Vous pouvez modifier ou désactiver le volume du bipsonore (voir chapitre « Mode exploitant »). Le...
Commande 19 Exemples d'utilisation Listes de sélection Menu « Programmes » (choix unique) 11:02 Blanc Couleurs Couleursintensif Programmes Couleurs écocourt Vous pouvez faire défiler l'écran vers la gauche ou vers la droite en ba-layant l'écran. Posez un doigt sur l'écran et déplacez-l...
Commande 20 Réglage des don-nées chiffrées Certains menus permettent le réglage de valeurs numériques. Dans l'exemple suivant, le réglage de l'heure est effectué. L'accès àce niveau est décrit au chapitre « Mode exploitant ». OK 12 00 10 58 14 02 11 59 13 01 Heure Entrez les chiffres en b...
Commande 21 Menu déroulant L'exemple suivant décrit l'affichage d'un programme de lavage encours. L'accès à ce niveau est décrit au chapitre « Démarrage duprogramme - Fin de programme ». 11:02 2:27 Blanc Laver et chauffer Tps rest. Statut Info programme Si une barre orange apparaît en hau...
Commande 22 Utilisation dans une laverie Selon la programmation effectuée, le menu d'accueil peut se présen-ter de différentes manières (voir chapitre « Mode exploitant », section« Commande »). La commande simplifiée s'effectue via une sélection rapide. Les utili-sateurs ne peuvent pas modifier les ...
Lavage 23 Préparation du lavage Vider les poches Videz les poches. Dommages provoqués par des corps étrangers. Des clous, pièces de monnaie, trombones, etc. peuvent endomma-ger le linge et certains composants de l'appareil.Vérifiez la présence de corps étrangers sur le linge avant le lavage etre...
Lavage 24 - Vous trouverez davantage de conseils dans le « Tableau des pro- grammes ». Charger et mettre le lave-linge en marche Charger le lave-linge Préparez le lave-linge. Mettez le lave-linge en marche à l’aide de la touche . L’écran d’accueil s’affiche. Ouvrez la porte en tirant sur la...
Lavage 25 Vérifiez qu'aucune pièce de linge n'est coincée entre la porte et l’ouverture de chargement. Fermez la porte en appuyant fermement sur le dispositif d'enclen-chement. Le dispositif de fermeture de porte est enclenché, mais le lave-lingen'est pas encore verrouillé. La porte se verrouill...
Lavage 26 Lavage avec la boîte à produits Dosage de la les-sive via la boîte àproduits Pour les programmes standard, verser la lessive en poudre pour lelavage principal dans le compartiment . Si vous le souhaitez, ver- ser la lessive pour le prélavage dans le bac à produits , l'adoucis- sant...
Lavage 27 Utilisation de tein-tures / de décolo-rants et de détartrants Des produits colorants / décolorants et des produits de détartragedoivent être appropriés à l'utilisation en lave-linge. Respectez impéra-tivement les consignes d'utilisation du fabricant. Dosage de la les-sive Dosage de la les-...
Lavage 28 Sélectionner un programme Programmes Il existe plusieurs possibilités de sélectionner un programme. 11:02 Programmes Favoris Exploitant Vous pouvez sélectionner un programme dans le menu Programmes . Effleurez la zone de sélection Programmes . 11:02 Blanc Couleurs Couleursint...
Lavage 29 La plupart des réglages de programme sont déjà déterminés pour lesprogrammes favoris et ne peuvent pas être modifiés. Sélectionner les paramètres du programme Sélectionner lacharge Pour permettre un dosage externe en fonction de la charge et uncycle adapté, vous pouvez indiquer la charge p...
Lavage 32 Sélectionner des options Sélectionner desoptions Vous pouvez sélectionner des options pour certains programmes delavage. Effleurez la zone de sélection Options . 11:02 Minuteur Blanc 9,0/9,9 kg °C Tr/min 90 0:56 h 1300 Aperçu Options Détail 11:02 OK Prélavage Rinçage supp...
Lavage 33 Démarrage de programme - fin de programme Démarrer un pro-gramme Dès qu'un programme peut être démarré, la touche sensitive Start/ Stop clignote. Effleurez la touche sensitive Start/Stop . La porte se verrouille (symbole ) et le programme de lavage dé- marre. 11:02 2:27 Blanc Lave...
Lavage 34 Le linge oublié dans le tambour pourrait rétrécir ou déteindre lors dela prochaine lessive.Retirez le linge du tambour. Vérifiez qu'aucun corps étranger n'est resté coincé dans le jointd'étanchéité de la porte. Arrêtez le lave-linge avec la touche . Conseil : Laissez le bac à produi...
Lavage 35 Si le programme a déjà commencé, annulez-le pour pouvoir modifierou supprimer le délai de départ différé. Vous pouvez démarrer immédiatement le programme. Effleurez la zone de sélection Démarrer tout de suite .
Spécificités selon les programmes 36 Essorage Vitesse d’essoragefinal La vitesse d'essorage maximale pour le programme de lavage s'affichetoujours dans le menu de pré-démarrage à l'écran après la sélectiondu programme. Il est possible de réduire la vitesse d'essorage final. La vitesse ne peut être m...
Spécificités selon les programmes 37 Avance rapide La fonction « Modifier l'ordre » permet d'avancer ou de reculer dansle déroulement du programme. Le déroulement de programme sepoursuit à partir du cycle de programme sélectionné. Si un programme est interrompu au moyen de la touche Start/Stop , la...
Spécificités selon les programmes 39 Confirmez la sélection en appuyant sur la touche sensitive Exécuter . Si une valeur numérique plus élevée est réglée, les valeurs inférieuresne sont plus affichées. Effleurez la touche sensitive Start/Stop . Le programme de lavage est lancé ou se poursuit. D...
Modifier le déroulement d'un programme 41 Modifier un programme Modifier un pro-gramme de lavage Pour choisir un autre programme, vous devez d'abord annuler le pro-gramme en cours et sélectionner le nouveau programme. Annuler un programme Vous pouvez annuler un programme de lavage à tout moment aprè...
Modifier le déroulement d'un programme 42 Ajouter/retirer du linge Vous pouvez ajouter ou retirer du linge lors des premières minutes quisuivent le démarrage du programme. 11:02 Couleurs Statut h 0:49 Ajouter du linge Info programme Laver et chauffer Tps rest. Effleurez la zone de sélectio...
En cas d'anomalie 43 Conseils en cas de panne Déverrouillage d'urgence de la porte en cas de panne de courant La porte de chargement ne s’ouvre pas. Attention ! Tambour en fonctionnement et risque de brûlures. Avant de poser la clé Torx, vérifiez que la machine est hors tension, le tambour est à l...
En cas d'anomalie 44 Service après-vente En cas de pannes, contactez le service après-vente. Veuillez indiquer au service après-vente le modèle de la machine, le numéro de série (SN)et le numéro de matériel (M.-Nr.). Ces indications figurent sur la plaque signalétique. Elleest collée porte ouverte, ...
En cas d'anomalie 45 Problème Cause et solution Le programme est dansl'écran de pré-démarrageet la touche Start/Stop du capteur ne clignote pas. La porte de chargement est seulement entrebâillée maispas correctement fermée. Vérifiez si la porte de chargement est correctement fer-mée.
En cas d'anomalie 46 Annulation de programme et message d'anomalie Problème Cause et solution F - Anomalie vidange. Si le redémarrage échoue,contactez le service après-vente. L’évacuation d’eau est bloquée ou gênée. Le tuyau de vidan-ge est placé trop haut. Nettoyez les filtres et la pompe à bai...
En cas d'anomalie 48 Résultat de lavage insatisfaisant Problème Cause et solution Le résultat de lavage n’estpas satisfaisant avec de lalessive liquide. La lessive liquide ne contient pas d’agent de blanchiment.Les taches de fruit, de café ou de thé ne sont donc pas tou-jours éliminées. Utilisez d...
En cas d'anomalie 49 Problèmes d'ordre général avec le lave-linge Problème Cause et solution Le lave-linge vibre forte-ment pendant l'essorage. Les pieds de l’appareil sont mal réglés et ne sont pas blo-qués. Ajustez l'appareil de sorte qu'il soit bien d'aplomb et blo-quez les pieds. La pompe fait...
En cas d'anomalie 50 La porte ne s’ouvre pas. Problème Cause et solution Ouverture de porte impos-sible La porte est verrouillée pendant le cycle de lavage. Effleurez la touche sensitive Start/Stop . Sélectionnez Annulation programme ou Ajouter du linge . La porte est déverrouillée et vous pouve...
En cas d'anomalie 52 Vérifiez si la turbine de la pompe de vidange tourne aisément. Si ce n’est pas le cas, enle-vez les corps étrangers présents (boutons, pièces de monnaie, etc.) si nécessaire et net-toyez l'intérieur. Remontez le filtre puis verrouillez-le bien. De l'eau s'écoule du lave-li...
Nettoyage et entretien 53 Effectuez le nettoyage et l'entretien après l'utilisation du lave-linge. Ne pas utiliser de nettoyeur sous pression ni de jet pour nettoyer lelave-linge. Nettoyez la carrosserie, le bandeau de commande et les pièces en plastique uniquement avec un produit nettoyant doux...
Nettoyage et entretien 54 Nettoyer le bac à produits, les compartiments et le si-phon avant utilisation. Après utilisation, nettoyez soigneusement la boîte à produits, lescompartiments à l'eau chaude pour les débarrasser des résidus delessive et des dépôts incrustés. En cas d'arrêt prolongé de l...
Nettoyage et entretien 55 1. Retirer le tube d'aspiration de son logement et le nettoyer l’eau chaude. Nettoyer également le tuyau sur lequel le tubed'aspiration est fixé. 2. Remettre le tube d’aspiration en place. Nettoyez le canal de l’adoucissant avec de l’eau chaude et unebrosse. Après plus...
Nettoyage et entretien 56 Retirez le joint de caoutchouc (1) de son logement. Saisissez l’arête du filtre en plastique (2) avec une pince à bec fin ouuniverselle et retirez la. Nettoyez le filtre en matière synthétique. Le remontage s’effectue dans l’ordre inverse. Revisser fermement le racc...
Installation 57 Installation du lave-linge Ce lave-linge ne doit être installé que par le service après-vente ouun revendeur autorisé. Respecter les consignes dans les instruc-tions d'installation. Ce lave-linge est destiné au traitement du linge ne contenant pas desubstances dangereuses ou inflamma...
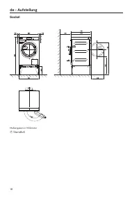
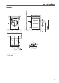
Installation 58 Maintenance facilitée Afin de faciliter les interventions du service après-vente, respecter lescotes minimales et la distance par rapport au mur avec accès indi-quées. Respectez impérativement les côtes minimales indiquées et la dis-tance par rapport au mur. Distance minimale par r...
Installation 59 Installation du lave-linge Transportez le lave-linge jusqu'à l'emplacement d'installation. Lors du transport du lave-linge, veillez à ce qu'il ne bascule pas. Ne saisissez pas le lave-linge par la porte de chargement. Le lave-linge ne doit pas être encastré. Montage sur socle...
Installation 60 Sécurités de transport Démonter les sécurités de transport Desserrez le crochet de verrouillage et tournez la sécurité de trans-port gauche de 90° dans le sens des aiguilles d'une montre. Retirez la tige de transport. Desserrez le crochet de verrouillage et tournez la sécurité ...
Installation 61 Retirez la tige de transport. Fermez les orifices à l’aide des bouchons joints. Conservez les sécurités de transport. Elles doivent être montéespour tout transport de la machine. Installer les sécurités de transport Le remontage des sécurités de transport s'effectue dans l'ordr...
Installation 62 Ajustement Les pieds du lave-linge et le sol doivent être bien secs pour éviter àl'appareil de glisser pendant l'essorage. Une installation non conforme augmente la consommation d'eau etd'énergie, et peut provoquer un déplacement de l'appareil. Ce sont les quatre pieds à vis qui assu...
Installation 63 Raccordement à l’eau Selon l'ordonnance allemande sur l'eau potable, un clapet anti-re-tour doit être installé entre le robinet d'eau et le tuyau d'alimenta-tion en eau en Allemagne à partir du 21/03/2021 lors de la mise enservice de tous les appareils qui sont raccordés à l'eau chau...
Installation 65 Note pour la Suisse Conformément à la norme SIA 385.351 / EN 1717 et à la recomman-dation de la SSIGE, il faut installer un anti-retour. Vous pouvez obtenirun anti-retour conforme aux normes en vigueur auprès de votre instal-lateur en sanitaire.
Installation 66 Clapet de vidange(suivant modèle) Dans les lave-linge équipés d'une vanne de vidange, le bain lessivielest évacué par une vanne motorisée. La vanne de vidange peut êtreraccordée via un raccord en équerre standard fourni HT DN 70 direc-tement à l'évacuation des eaux usées sur place (s...
Installation 68 Raccordement électrique Le branchement doit être effectué uniquement par un électricienagréé et être conforme aux normes EDF et aux prescriptions spéci-fiques à chaque pays. Si un disjoncteur différentiel (RCD) doit être installé, prendre impérati-vement un disjoncteur différentiel t...
Installation 69 Délestage / gestionde l'énergie Un système de gestion des pics de charge ou de l'énergie peut êtreconnecté via la Connector-Box. Le système de gestion de l'énergie surveille la consommation d'éner-gie d'un objet pour désactiver à court terme de manière ciblée cer-tains organes électr...
Installation 70 Interface LAN/WLAN Le lave-linge est équipé d'une interface WLAN/LAN pour l'échangede données. L'interface de données fournie par le port LAN est conforme à lanorme SELV (basse tension) selon la norme EN 60950. La connexionLAN est réalisée à l'aide d'une fiche RJ45 selon EIA/TIA 568B...
Mode exploitant 71 Ouvrir le Mode exploitant Mettez le lave-linge en marche. 11:02 Programmes Favoris Exploitant Effleurez la touche sensitive Exploitant . L'écran passe au menu Mode exploitant . Ouvrir le Mode exploitant Mettez le lave-linge sous tension et ouvrez la porte. Effleu...
Mode exploitant 73 Commande/affichage Langue Plusieurs langues d'affichage vous sont proposées. Le sous-menuLangue permet de choisir la langue d'exploitant principale. La langue d'utilisateur peut être modifiée le temps d'un programme àl'aide de la touche sensitive . Accès langue L'écran peut aff...
Mode exploitant 74 Heure Une fois le format de temps sélectionné, l’heure peut être réglée. Format heure - 24 h - 12 h - Heure non affichée Régler - L’heure peut être réglée. Date La date peut être réglée une fois le format sélectionné. Format date - JJ.MM.AAAA - AAAA.MM.JJ - MM.JJ.AAAA Date - La da...
Mode exploitant 75 Départ différé L'affichage du départ différé (minuteur) peut être activé ou désactivé. Réglage d’usine : activé Mémoire Le lave-linge enregistre les derniers réglages d'un programme de la-vage (température, vitesse d'essorage et certaines options) après ledémarrage du programme. L...
Mode exploitant 76 Sélection du programme Commande Conseil : Commencez par effectuer tous les réglages et toutes les modifications nécessaires sur le lave-linge avant de sélectionner l'unedes options ci-dessous.En sélectionnant « Laverie-simple » ou « Logo laverie », une fois lemenu Mode exploitant...
Mode exploitant 77 Paquets de pro-gramme La sélection du programme peut être étendue en activant des pro-grammes individuels à partir des paquets de programmes de groupecible. Les programmes sélectionnés (marqués en orange) dans les paquetsde programmes sont affichés à l'écran au moment de la sélect...
Mode exploitant 79 Technique de procédé Infroissable La fonction Infroissable permet de réduire la formation de plis aprèsla fin du programme. Le tambour tourne encore jusqu'à 30 minutesaprès la fin du programme. Vous pouvez ouvrir la porte du lave-linge à tout moment. Réglage d’usine : activé
Mode exploitant 80 Vidange fin deprogramme La vidange automatique de l'eau peut être activée ou désactivée. Lavidange automatique de l'eau permet de toujours vider le bain lessivielà la fin d'un programme. C'est également le cas pour les programmesqui se terminent avec de l'eau. Service Fréquence de...
Mode exploitant 81 1 à 6 pompes de dosage peuvent être activées. Après l'activation de la pompe de dosage, d'autres réglages peuventêtre effectués. - Désactiver pompe dos. - Calibrage - Débit (nouveau) : ml/min - Facteur de correction - Taille du récipient - Pré-avertiss. signal vide - Reset pré-ave...
Mise en réseau 82 Instructions d'appariement Pour connecter le lave-linge à votre réseau, procédez comme suit. Ouvrir le Mode exploitant Sélectionnez l'option Exploitant sur l'écran de l'appareil. Sélectionnez l'option Accès par code . Saisissez le code exploitant à 3 chiffres. Configurer la c...
Mise en réseau 83 - Serveur DNS IP = passerelle/routeur IP standard - Utilisation Mesh/répéteur : SSID et mot de passe identique à la passerelle/au routeur standard - Le SSID doit être visible en permanence Exigences du système pour le LAN - DHCP activé - multicastDNS/Bonjour/IGMP Snooping activé - ...
Caractéristiques techniques 84 Caractéristiques de l’appareil PWM 909 Raccordement électrique Tension électrique voir plaque signalétique Fréquence voir plaque signalétique Consommation voir plaque signalétique Consommation voir plaque signalétique Protection par fusibles requise voir plaque signalé...
Caractéristiques techniques 85 Sécurité des produits Norme de sécurité produit EN 60335-1, EN 50571, IEC 60335-1, IEC 60335-2-7, EN 50570, IEC 60335-2-11 Déclaration de conformité UE Par la présente, Miele déclare que ce lave-linge est conforme à la directive 2014/53/EU.Le texte intégral de la décla...
Protection des données Wi-Fi 86 Protection et sécurité des données Dès que vous avez activé la fonction de mise en réseau et que votreappareil est connecté à l'Internet, votre appareil envoie les donnéessuivantes au Cloud Miele : - numéro de fabrication de l’appareil - type d’appareil et caractérist...
Miele S.A.SZ.I. du Coudray9, avenue Albert EinsteinB.P. 100093151 Le Blanc-Mesnil Cedexwww.miele.fr/professional R.C.S. Bobigny B 708 203 088 Tél. : Fax. :Mail : Tél. :Fax. :Mail : Tél. :Mail : 01 49 39 44 44 01 49 39 44 38[email protected] 01 49 39 44 7801 49 39 34 10[email protected] 01 49 39 44 8...
Notice Miele PWM 909 [EL DV DD]



































































































































































































































































































































































































































































































































Résumé
fr - Table des matières 184 Tableau des programmes ........................................................................................................... 185 Options sélectionnables............................................................................................................... 18...
fr - Tableau des programmes 185 Options sélectionnables Option Symbole Description Prérinçage Démarrer le pré-rinçage avant le début du lavage Prélavage Prélavage avant le début du lavage principal Trempage Bloc au début du lavage principal, 30 °C, peu de mouve-ment, Hydro plus Augmentation ...
fr - Tableau des programmes 186 Tableau des programmes de base La durée de lavage est le temps minimum de lavage dans le lavage principal après avoir atteint la température de consigne. Les durées d'arrivée d'eau, de dosage, de chauffage,d'essorage intermédiaire, etc. ne sont pas prises en compte. P...
fr - Tableau des programmes 187 Programmes Couleurs Couleurs 60 °C (froid à 60 °C) Rapport de rem-plissage/Quantitéde charge Type de textile Textiles en coton, lin ou fibres mélangées norma-lement sales, par ex. draps et serviettes éponge 1:9 PWM 909 - 9 kg Déroulement deprogramme Lavage jusqu'à 60 ...
fr - Tableau des programmes 188 Programmes Non repassable Non repassable 40 °C (froid à 60 °C) Rapport de rem-plissage/Quantitéde charge Type de textile Textiles normalement sales en fibres synthétiquesou mélangées 1.20 PWM 909 – 4 kg Déroulement deprogramme Lavage jusqu'à 60 °C, durée de lavage 7 m...
fr - Tableau des programmes 189 Programmes Fin/Chemises/Laine Fin 30 °C (froid à 60 °C) Rapport de rem-plissage/Quantitéde charge Type de textile Fibres synthétiques, satin 1.25 PWM 909 – 3,2 kg Déroulement deprogramme Lavage jusqu'à 60 °C, durée de lavage 12 minRythme de lavage "fin"2 cycle...
fr - Tableau des programmes 190 Programme Rinçage seul Rinçage seul Rapport de rem-plissage/Quantitéde charge Type de textile Textiles qui doivent uniquement encore être rin-cés et essorés 1:9 PWM 909 – 9 kg Déroulement deprogramme 1 cycle de rinçageEssorage final Options Arrêt du remplissage, arrêt...
fr - Tableau des programmes 191 Nettoyage machine Nettoyage machine 70 °C (70 °C à 90 °C) Type de textile Sans charge Déroulement deprogramme + touche Intensif : lavage principal supplémen- taire jusqu'à 90 °C, durée de lavage 6 min2 cycles de lavageVidange Options Trempage, Hydro plus, intensif, ...
fr - Tableau des programmes 192 Tableau des programmes hôtels/restaurants/traiteurs Cette catégorie concerne un grand nombre de textiles avec des degrés de salissure divers.Ce programme peut laver des draps et serviettes peu sales jusqu'au linge de cuisine trèssale, en passant par le linge de table ...
fr - Tableau des programmes 193 Programme Linge éponge spa Linge éponge spa 50 °C (froid à 90 °C) Rapport de rem-plissage/Quantitéde charge Type de textile Draps ou serviettes éponge en coton, lin ou fibresmélangées de couleur ou blancs avec tachesd'huile ou de graisse prononcées 1.13* PWM 909 – 6,2...
fr - Tableau des programmes 194 Linge de cuisine Linge de cuisine 90 °C (froid à 90 °C) Rapport de rem-plissage/Quantitéde charge Type de textile Linge de cuisine en coton, lin ou tissu mélangé 1.13 PWM 909 – 6,2 kg Déroulement deprogramme Pré-rinçageLavage jusqu'à 90 °C, durée de lavage 10 minRefro...
fr - Tableau des programmes 195 Tableau des programmes Literie/Voilages Voilages Voilages 40 °C (froid à 60 °C) Rapport de rem-plissage/Quantitéde charge Type de textile Fibres synthétiques, satin 1.25 PWM 909 – 3,2 kg Déroulement deprogramme Lavage jusqu'à 60 °C, durée de lavage 14 min3 cycles de r...
fr - Tableau des programmes 196 Couettes Ces programmes permettent de laver les couettes, oreillers et/ou duvets avec garnissagede plumes et garnissage en fibres synthétiques ou naturelles. Ces programmes de lavage sont exclusivement conçus pour laver des textiles portant lamention « lavable en mach...
fr - Tableau des programmes 197 Désinfection : généralités Qu'est-ce que la désinfection ? Destruction et réduction des germes de maladies contagieuses, de sorte qu'une contami-nation et une infection soient exclues. Désinfection thermique La désinfection thermique a lieu par l'action d'une températ...
fr - Tableau des programmes 198 Liste VAH VAH = Verbund für angewandte Hygiene e.V.(précédemment DGHM = Deutsche Gesellschaft für Hygiene und Mikrobiologie) La liste VAH décrit les procédés pour une désinfection prophylactique de routine pour laprévention des infections à l'hôpital, dans les cabinet...
fr - Tableau des programmes 199 Raccordement à l'eau pour les variantes avec chauffage externe (EH) L'appareil doit être raccordé à l'eau froide et à l'eau chaude. Une température d'eau chauded'au moins 80 °C est recommandée. L'utilisation de programmes de désinfection n'est enprincipe pas possible ...
fr - Tableau des programmes 200 Désinfection Désinfection thermique et la désinfection chimico-thermique sont des programmes pour la désinfection des textiles.Une désinfection thermique et chimico-thermique est réalisée. Pour la désinfection chimi-co-thermique, des détergents appropriés doivent être...
fr - Tableau des programmes 203 Tableau des programmes Fauberts Ces programmes sont conçus pour le lavage, la désinfection et l'apprêt (différents degrésd'humidité disponibles) de fauberts en coton ou en fibres mélangées, de tapis d'entrée la-vables, de disques de polissage et de lavettes utilisés p...
fr - Tableau des programmes 204 Fauberts Pour éviter la présence de grosses saletés dans la machine, secouez les fauberts avant deles mettre dans la machine. Fauberts standard 60 °C (froid à 90 °C) Rapport de rem-plissage/Quantitéde charge Type de textile Fauberts en coton, viscose, polyester ou m...
fr - Tableau des programmes 205 Faubert dés. thermique 90 °C Rapport de rem-plissage/Quantitéde charge Type de textile Fauberts en coton, viscose, polyester ou micro-fibres 1:9 PWM 909 – 9 kg Quantité voir tableau « Quantité de charge : fau- berts » Déroulement deprogramme PrélavageBain de pré-rinça...
fr - Tableau des programmes 207 Faubert dés. ch-t.20m+rtu 60 °C Rapport de rem-plissage/Quantitéde charge Type de textile Fauberts en coton, viscose, polyester ou micro-fibres 1.10 PWM 909 – 8 kg Déroulement deprogramme Déroulement de programme comme pour fau-berts désinfection chimico-thermique. *,...
fr - Tableau des programmes 208 Le programme Fauberts rtu convient pour l'apprêt ultérieur des fauberts secs et propres. Une solution désinfectante est rajoutée lors de l'apprêt.Les quantités de dosage doivent être réglées sur place et le standard de désinfectioncontrôlé. Quantité de charge : fauber...
fr - Tableau des programmes 209 Programmes Tapis de seuil/Disques de nettoyage Tapis de seuil 40 °C (froid à 60 °C) Rapport de rem-plissage/Quantitéde charge Type de textile Tapis d'entrée lavables 1.15 PWM 909 – 5,4 kg max Déroulement deprogramme Pré-rinçageLavage jusqu'à 60 °C, durée de lavage 8 m...
fr - Tableau des programmes 210 Programmes Lavettes Ces programmes sont conçus pour le lavage, la désinfection et l'apprêt (différents degrésd'humidité disponibles) de lavettes en coton, en fibres mélangées ou en microfibres utili-sées par les entreprises de nettoyage. Lavettes standard 60 °C (froid...
fr - Tableau des programmes 211 Lavettes dés. thermique 90 °C Rapport de rem-plissage/Quantitéde charge Type de textile Lavettes en coton, viscose, polyester ou micro-fibres 1.18 PWM 909 – 4,6 kg Quantité voir tableau « Quantité de charge : lavettes » Déroulement deprogramme Pré-rinçagePrélavage jus...
fr - Tableau des programmes 213 Lavettes rtu Rapport de rem-plissage/Quantitéde charge Type de textile Lavettes en coton, viscose, polyester ou micro-fibres 1.18 PWM 909 – 4,6 kg Quantité voir tableau « Quantité de charge : lavettes » Déroulement deprogramme 1 cycle de rinçageen fin de programme l'h...
fr - Tableau des programmes 214 Tableau des programmes Pompiers Ces programmes conviennent pour le lavage et l'imprégnation de tenues, vestes, panta-lons, masques respiratoires et tenues de protection anti-produits chimiques pour pom-piers Nomex. Programmes Vêtements de protection Tenue de protectio...
fr - Tableau des programmes 215 Tenue de protection Pour préparer le linge N'agrafez pas d'étiquettes sur les articles à laver. Si possible, retirez les mousquetons ou placez-les dans une poche latérale soigneuse-ment fermée. Fermez les fermetures velcro ou couvrez-les avec du velcro. Lavez ...
fr - Tableau des programmes 216 Programmes Masques Les programmes Masques sont conçus pour le lavage et la désinfection de masques res- piratoires avec croisillon. Avant le chargement de la machine, relevez les lanières des masques pour protéger les vi-sières. Placez chaque masque dans le sac de...
fr - Tableau des programmes 217 Programmes Vêtements de secours Casques * 60 °C (froid à 60 °C) Rapport de rem-plissage/Quantitéde charge Type de textile Casques de protection pour pompiers PWM 909 - 3 casques Déroulement deprogramme Prélavage jusqu'à 40 °Ccycle de lavage principal jusqu'à 60 °C, du...
fr - Tableau des programmes 218 Ceintures * 40 °C (froid à 40 °C) Rapport de rem-plissage/Quantitéde charge Type de textile Couplages de pompiers également avec descomposants en aluminium et des garnitures encuir PWM 909 - 6 ceinturons Déroulement deprogramme Lavage principal jusqu'à 40 °C, durée de...
fr - Tableau des programmes 220 Aquanett Le « nettoyage à l'eau » Aquanett est un procédé de nettoyage très délicat avec de l'eauet des produits d'entretien spéciaux pour les vêtements qui pouvaient uniquement êtrenettoyés à sec jusqu'ici. Aquanett délicat 25 °C (froid à 30 °C) Rapport de rem-plissa...
fr - Tableau des programmes 221 Tableau des programmes Outdoor Outdoor 40 °C (froid à 40 °C) Rapport de rem-plissage/Quantitéde charge Type de textile Textiles polyamide, à membrane 1.15 PWM 909 – 5,4 kg Déroulement deprogramme Lavage jusqu'à 40 °C, durée de lavage 6 min2 cycles de rinçageEssorage f...
fr - Tableau des programmes 222 Centre équestre Ces programmes sont conçus pour le lavage et l'imprégnation des couvertures pour che-vaux, tapis de selle, guêtres, cloches, bandes, licols textile. Couvertures cheval 60 °C (froid à 60 °C) Rapport de rem-plissage/Quantitéde charge Type de textile Couv...
fr - Tableau des programmes 223 Détergent Pour le lavage, un détergent sans eau de Javel et azurant optique doit être utilisé.Pour les couvertures de laine, des produits avec un pH légèrement réduit devraient être uti-lisés. Il est également possible d'ajouter des produits contenant des enzymes.Il f...
fr - Tableau des programmes 224 Sport Textiles sport 40 °C (froid à 60 °C) Rapport de rem-plissage/Quantitéde charge Type de textile Polyester ou polyamide avec ou sans élasthanne 1.20 PWM 909 – 4 kg Déroulement deprogramme Lavage jusqu'à 60 °C, durée de lavage 6 min3 cycles de rinçageEssorage final...
fr - Tableau des programmes 225 Vêtements de travail Huile/Graisse 60 °C (froid à 90 °C) Rapport de rem-plissage/Quantitéde charge Type de textile Vêtements de travail, nappes et chiffons en cotonou fibres mélangées salis d'huile ou de graisse 1.10 PWM 909 – 8 kg Déroulement deprogramme Prélavage ju...
fr - Tableau des programmes 226 Tableau des programmes Sluice (Laundry Regulation HTM 01-04) Les programmes Sluice sont destinés au linge de corps extrêmement sale ainsi qu'au lingeéponge et aux draps également très sales. La désinfection est effectuée selon les prescriptions locales en vigueur. Deu...
fr - Tableau des programmes 228 Tableau des programmes Eco Les programmes Eco sont des programmes optionnels qui peuvent être téléchargés sur In-ternet. Couleurs éco 40 °C (froid à 40 °C) Rapport de rem-plissage/Quantitéde charge Type de textile Textiles en coton, lin ou fibres mélangées peusales, p...
fr - Tableau des programmes 229 Non repass. éco 30 °C (froid à 30 °C) Rapport de rem-plissage/Quantitéde charge Type de textile Textiles peu sales en fibres synthétiques ou mé-langées 1.20 PWM 909 - 4 kg Déroulement deprogramme Lavage jusqu'à 30 °C, durée de lavage 7 min2 cycles de rinçageEssorage f...
Notice d'Installation Miele PWM 909 [EL DV DD]





































































































































































































































Résumé
fr - Table des matières 44 Consignes d'installation ............................................................................................................. 45 Explication des consignes de sécurité et des avertissements sur la machine .................... 45 Conditions d'installation .............
fr - Consignes d'installation *INSTALLATION* 45 Explication des consignes de sécurité et des avertissementssur la machine Veuillez lire le mode d'emploi Lisez les instructions, par exemple les instructionsd'installation Attention : surfaces brûlantes Attention tension jusqu'à 1000 V ! Mise à la terr...
fr - Consignes d'installation *INSTALLATION* 46 Transport et mise en place Ne transportez jamais la machine sans les sécurités de transport.Conservez les sécurités de transport. Elles doivent être remontéesavant tout nouveau déplacement de la machine (ex. : déménagement). Installation Transportez le...
fr - Consignes d'installation *INSTALLATION* 47 Ajustement Ajustez le lave-linge après installation dans le sens longitudinal ettransversal à l'aide de pieds réglables et d'un niveau à bulles. Pour garantir un fonctionnement efficace et économe en énergie, lelave-linge doit être posé bien à l'hori...
fr - Consignes d'installation *INSTALLATION* 48 L'adaptation à un autre type de tension ne doit être effectuée que par un revendeur spécialisé ou par le service après-vente Miele. Pource faire, il faut respecter les instructions de recâblage sur le schémaélectrique. Le lave-linge peut être raccord...
fr - Consignes d'installation *INSTALLATION* 50 Le bain lessiviel vidangé peut être peut être brûlant pouvant at- teindre jusqu'à 95 °C. Risque de brûlure !Evitez les contacts directs. Pompe de vidange(suivant modèle) Dans le cas de modèles avec une pompe de vidange, le bain lessivielest pompé par...
fr - Consignes d'installation *INSTALLATION* 51 Options / Accessoires en option Des accessoires ne peuvent être rajoutés ou montés que s'ils sontexpressément autorisés par Miele.Le montage d'autres pièces exclut le bénéfice de la garantie. Connector Box La Connector Box permet de raccorder des dispo...
fr - Consignes d'installation *INSTALLATION* 52 Interface LAN/WLAN Le lave-linge est équipé d'une interface WLAN/LAN pour l'échangede données. L'interface de données fournie par le port LAN est conforme à lanorme SELV (basse tension) selon la norme EN 60950. La connexionLAN est réalisée à l'aide d'u...
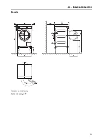
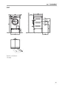
fr - Installation 55 Socle a Raccordement électrique b Raccordement à l'eau froide c Raccordement à l’eau chaude d Tuyau d'évacuation (uniquement pour vanne de vidange DV) e Raccord de vidange (uniquement pour pompe de vidange DP)
fr - Caractéristiques techniques 60 Variantes de tension et caractéristiques électriques 3N AC 400 V EL DV Tension électrique 3N AC 400 V Fréquence 50/60 Hz Protection par fusibles requise (côté installation) Caractéristique de déclenchement du disjoncteur automatique 3 x 16 A Type B Consommation 8,...
fr - Caractéristiques techniques 62 Raccordement à l'eau Raccordement à l'eau froide Pression nécessaire 100 - 1000 kPa (1 - 10 bar) Débit volumétrique maximal 10 l/min Raccord fileté requis (filetage extérieur, côté installation conforme à DIN 44991, joint plat) 3/4" Longueur du tuyau d’arrivée...
fr - Caractéristiques techniques 63 Fixation Standard Points de fixation nécessaires 2 Vis à bois DIN 571 (diamètre x longueur) 12 mm x 90 mm Cheville (diamètre x longueur) 14 mm x 80 mm Avec socle (APWM) Points de fixation nécessaires 4 Vis à bois DIN 571 (diamètre x longueur) 12 mm x 90 mm Chevill...
Guide rapide Miele PWM 909 [EL DV DD]
































































































































































































Résumé
fr - Table des matières 77 Consignes de sécurité et mises en garde ..................................................................... 79 Documentation .................................................................................................................. 79Utilisation conforme ...........
fr - Table des matières 78 Caractéristiques techniques .......................................................................................... 113 Caractéristiques de l’appareil PWM 909 ........................................................................... 113 Raccordement électrique ..........
fr - Consignes de sécurité et mises en garde 79 Documentation Ce document contient un condensé d'informations. Vous pouveztrouver le mode d'emploi complet et d'autres documents sur le siteinternet de Miele : https://www.miele.fr/professional/modes-d-emploi-177.htm Pour récupérer les documents, vous ...
fr - Consignes de sécurité et mises en garde 80 N'installez pas votre lave-linge dans les pièces exposées au gel. Les tuyaux gelés risquent de se fendre ou d’éclater. Des tempéra-tures inférieures à zéro peuvent diminuer la fiabilité des composantsélectroniques. Ce lave-linge est conçu pour une ...
fr - Consignes de sécurité et mises en garde 81 Fermez la porte de chargement après chaque lavage. Vous éviterez ainsi que des enfants essaient de grimper dans le lave-linge ou es-saient d'y cacher des objets ou que de petits animaux se cachent àl'intérieur. N'endommagez, ne retirez et ne désact...
fr - Consignes de sécurité et mises en garde 84 Ne rangez pas de produits chimiques sur le couvercle de la ma- chine (lessive liquide, adjuvants lessiviels). Des décolorations maisaussi des fuites peuvent se produire. Des produits chimiques renver-sés par mégarde sur le couvercle doivent être immé...
fr - Consignes de sécurité et mises en garde 85 Les quantités de dosage exactes et les températures de traitementdoivent être réglées et contrôlées sur place conformément aux re-commandations de dosage des fabricants de lessive et de déter-gents. Il faut également tester si aucun chlore actif résidu...
fr - Description de la machine 86 Description de la machine ⑥⑦ ⑫ ① ② ③ ⑬ ⑭ ⑯ ④ ⑰ ⑤ ⑧ ⑨ ⑱ ⑩ ⑪ ⑫ ⑮ a Trappe d’accès au filtre à lessive et à la pompe de vidange ou vanne de vidange b Porte c Poignée d Bac à produits e Écran (pour plus d’informations, consulter le chapitre « Commande »). f Raccordement...
fr - Description de la machine 87 Bandeau de commande ⑥ ① ② ③ ④ ⑤ a Touche sensitive Langue Pour sélectionner la langue utilisateur ac-tuelle.À la fin du programme, la langue de l’ex-ploitant s’affiche à nouveau. b Touche sensitive Retour Revient au niveau précédent dans le me-nu. c Écran tact...
fr - Commande 88 Touches sensitives et écran tactile Les touches sensitives , et Start/Stop ainsi que les affi- chages à l’écran réagissent au contact du doigt. Tout contact estconfirmé par un bip sonore. Vous pouvez modifier ou désactiver levolume du bip sonore (voir chapitre « Mode exploitant...
fr - Commande 89 Exemples d'utilisation Listes de sélec-tion Menu « Programmes » (choix unique) 11:02 Blanc Couleurs Couleursintensif Programmes Couleurs écocourt Vous pouvez faire défiler l'écran vers la gauche ou vers la droite enbalayant l'écran. Posez un doigt sur l'écran et déplacez...
fr - Commande 90 Réglage des don-nées chiffrées Certains menus permettent le réglage de valeurs numériques. Dans l'exemple suivant, le réglage de l'heure est effectué. L'accès àce niveau est décrit au chapitre « Mode exploitant ». OK 12 00 10 58 14 02 11 59 13 01 Heure Entrez les chiffres e...
fr - Commande 91 Menu déroulant L'exemple suivant décrit l'affichage d'un programme de lavage encours. L'accès à ce niveau est décrit au chapitre « Démarrage duprogramme - Fin de programme ». 11:02 2:27 Blanc Laver et chauffer Tps rest. Statut Info programme Si une barre orange apparaît e...
fr - Commande 92 Dommages provoqués par des détergents contenant des sol- vants, Du white spirit, du détachant etc. peut endommager lespièces plastiques. Lorsque vous nettoyez des textiles, vérifiez quevous ne répandez pas de nettoyant contenant des solvants sur lespièces en plastique. Risque d'...
fr - Commande 93 Charger et mettre le lave-linge en marche Charger le lave-linge Préparer le lave-linge. Mettez le lave-linge en marche à l’aide de la touche . L’écran d’accueil s’affiche. Ouvrez la porte en tirant sur la poignée. Chargez le linge déplié dans le tambour sans le tasser.
fr - Commande 95 Lavage avec la boîte à produits Dosage de la les-sive via la boîte àproduits Pour les programmes standard, verser la lessive en poudre pour lelavage principal dans le compartiment . Si vous le souhaitez, verser la lessive pour le prélavage dans le bac à produits , l'adouciss...
fr - Commande 96 Dosage de la les-sive Dosage de la les-sive Il faut éviter le surdosage, qui provoque une formation de mousse ex-cessive. - Ne pas utiliser de détergent très moussant. - Tenir compte des indications du fabricant de lessive. Le dosage dépend : - de la quantité de linge ; - de la dure...
fr - Commande 97 Favoris Vous pouvez aussi sélectionner un programme dans le menu Favoris . 11:02 Programmes Favoris Exploitant Effleurez la zone de sélection Favoris . 11:02 Couleurs Nonrepassable Couleurs écocourt Favoris Blanc °C 60 60 °C 60 °C 60 °C Balayez l'écran vers...
fr - Commande 100 Sélectionner la vi-tesse d'essorage Vous pouvez modifier la vitesse d'essorage qui a été configurée surun programme de lavage. Effleurez la zone de sélection Vitesse essorage (tr/min.) . 11:02 Minuteur Blanc 9,0/9,9 kg °C Tr/min 90 0:56 h 1300 Aperçu Options Détail 11:0...
fr - Commande 101 11:02 2:27 Blanc Laver et chauffer Tps rest. Statut Info programme Conseil : Dans le menu déroulant, vous pouvez consulter la tempéra- ture, la vitesse d'essorage et les options sélectionnés. Si un départ différé ( Minuteur) a été sélectionné, celui-ci s'affiche à l'écr...
fr - En cas d'anomalie 103 Conseils en cas de panne Déverrouillage d'urgence de la porte en cas de panne de courant La porte de chargement ne s’ouvre pas. Attention ! Tambour en fonctionnement et risque de brûlures. Avant de poser la clé Torx, vérifiez que la machine est hors tension, le tambour e...
fr - En cas d'anomalie 104 Service après-vente En cas de pannes, contactez le service après-vente. Veuillez indiquer au service après-vente le modèle de la machine, le numéro de série (SN)et le numéro de matériel (M.-Nr.). Ces indications figurent sur la plaque signalétique. Elleest collée porte ouv...
fr - En cas d'anomalie 105 Impossible de démarrer un programme de lavage Problème Cause et solution L'écran reste sombre et latouche sensitive Start/ Stop ne s'allume pas et ne clignote pas. Le lave-linge n’est pas sous tension. Vérifiez que le lave-linge est allumé. Vérifiez si le lave-linge es...
fr - En cas d'anomalie 106 Annulation de programme et message d'anomalie Problème Cause et solution F - Anomalie vidange. Si le redémarrage échoue,contactez le service après-vente. L’évacuation d’eau est bloquée ou gênée. Le tuyau de vi-dange est placé trop haut. Nettoyez les filtres et la pompe...
fr - En cas d'anomalie 108 Résultat de lavage insatisfaisant Problème Cause et solution Le résultat de lavage n’estpas satisfaisant avec de lalessive liquide. La lessive liquide ne contient pas d’agent de blanchiment.Les taches de fruit, de café ou de thé ne sont donc pastoujours éliminées. Utilis...
fr - En cas d'anomalie 109 Problèmes d'ordre général avec le lave-linge Problème Cause et solution Le lave-linge vibre forte-ment pendant l'essorage. Les pieds de l’appareil sont mal réglés et ne sont pas blo-qués. Ajustez l'appareil de sorte qu'il soit bien d'aplomb et blo-quez les pieds. La pomp...
fr - En cas d'anomalie 110 La porte ne s’ouvre pas. Problème Cause et solution Ouverture de porte impos-sible La porte est verrouillée pendant le cycle de lavage. Effleurez la touche sensitive Start/Stop . Sélectionnez Annulation programme ou Ajouter du linge . La porte est déverrouillée et vous...
fr - Caractéristiques techniques 113 Caractéristiques de l’appareil PWM 909 Raccordement électrique Tension électrique voir plaque signalétique Fréquence voir plaque signalétique Consommation voir plaque signalétique Consommation voir plaque signalétique Protection par fusibles requise voir plaque s...
fr - Caractéristiques techniques 114 Sécurité des produits Norme de sécurité produit EN 60335-1, EN 50571, IEC 60335-1, IEC 60335-2-7, EN 50570, IEC 60335-2-11 Déclaration de conformité UE Par la présente, Miele déclare que ce lave-linge est conforme à la directive 2014/53/EU.Le texte intégral de la...
Other Miele Autres Manuals
-
Miele APWM 066 Notice d'Installation
-
Miele APWM 062 Notice d'Installation
-
Miele APWM 065 Notice d'Installation
-
Miele APWM 020 Manuel d'utilisation
-
Miele APWM 020 Notice d'Installation
-
Miele SC Notice d'Installation
-
Miele PR Notice d'Installation
-
Miele FP 900 Notice d'Installation
-
Miele RP 900 Notice d'Installation
-
Miele APWM 019 Manuel d'utilisation
-
Miele APWM 019 Notice d'Installation
-
Miele A 830/1 Manuel d'utilisation
-
Miele TT 86 Manuel d'utilisation
-
Miele RP 1150 Notice d'Installation
-
Miele UG 5010 Notice d'Installation
-
Miele UO 5010 Notice d'Installation
-
Miele APCL 001 Notice d'Installation
-
Miele E 473/2 Manuel d'utilisation
-
Miele APRI 312 Notice d'Installation
-
Miele DOS K 85 flex Notice d'Installation