Miele PWM 916 [EL DV DD SOM] - Manuels

Miele PWM 916 [EL DV DD SOM] - Manuel d'utilisation, Notice d'Installation en ligne au format PDF.
Manuel d'utilisation Miele PWM 916 [EL DV DD SOM]
























































































































































































































































































































































































































































































































































































Résumé
fr - Table des matières 204 Tableau des programmes ........................................................................................................... 206 Options sélectionnables............................................................................................................... 20...
fr - Tableau des programmes 206 Options sélectionnables Option Symbole Description Prérinçage Démarrer le pré-rinçage avant le début du lavage Prélavage Prélavage avant le début du lavage principal Trempage Bloc au début du lavage principal, 30 °C, peu de mouve-ment, Hydro plus Augmentation ...
fr - Tableau des programmes 207 Tableau des programmes de base La durée de lavage est le temps minimum de lavage dans le lavage principal après avoir atteint la température de consigne. Les durées d'arrivée d'eau, de dosage, de chauffage,d'essorage intermédiaire, etc. ne sont pas prises en compte. P...
fr - Tableau des programmes 208 Programmes Couleurs Couleurs 60 °C (froid à 60 °C) Rapport de rem-plissage/Quantitéde charge Type de textile Textiles en coton, lin ou fibres mélangées norma-lement sales, par ex. draps et serviettes éponge 1:9 PWM 912 – 12 kgPWM 916 – 16 kg PWM 920 – 20 kg Déroulemen...
fr - Tableau des programmes 209 Programmes Non repassable Non repassable 40 °C (froid à 60 °C) Rapport de rem-plissage/Quantitéde charge Type de textile Textiles normalement sales en fibres synthétiquesou mélangées 1.20 PWM 912 – 5,6 kg PWM 916 – 7 kg PWM 920 – 9 kg Déroulement deprogramme Lavage ju...
fr - Tableau des programmes 210 Programmes Fin/Chemises/Laine Fin 30 °C (froid à 60 °C) Rapport de rem-plissage/Quantitéde charge Type de textile Fibres synthétiques, satin 1.25 PWM 912 – 4,4 kg PWM 916 – 5,6 kg PWM 920 – 7,2 kg Déroulement deprogramme Lavage jusqu'à 60 °C, durée de lavage 12 minRyt...
fr - Tableau des programmes 211 Programme Rinçage seul Rinçage seul Rapport de rem-plissage/Quantitéde charge Type de textile Textiles qui doivent uniquement encore être rin-cés et essorés 1:9 PWM 912 – 12 kgPWM 916 – 16 kg PWM 920 – 20 kg Déroulement deprogramme 1 cycle de rinçageEssorage final Opt...
fr - Tableau des programmes 212 Nettoyage machine Nettoyage machine 70 °C (70 °C à 90 °C) Type de textile Sans charge Déroulement deprogramme + touche Intensif : lavage principal supplémen- taire jusqu'à 90 °C, durée de lavage 6 min2 cycles de lavageVidange Options Trempage, Hydro plus, intensif, ...
fr - Tableau des programmes 213 Tableau des programmes hôtels/restaurants/traiteurs Cette catégorie concerne un grand nombre de textiles avec des degrés de salissure divers.Ce programme peut laver des draps et serviettes peu sales jusqu'au linge de cuisine trèssale, en passant par le linge de table ...
fr - Tableau des programmes 214 Programme Linge éponge spa Linge éponge spa 50 °C (froid à 90 °C) Rapport de rem-plissage/Quantitéde charge Type de textile Draps ou serviettes éponge en coton, lin ou fibresmélangées de couleur ou blancs avec tachesd'huile ou de graisse prononcées 1.13* PWM 912 – 8,6...
fr - Tableau des programmes 215 Linge de cuisine Linge de cuisine 90 °C (froid à 90 °C) Rapport de rem-plissage/Quantitéde charge Type de textile Linge de cuisine en coton, lin ou tissu mélangé 1.13 PWM 912 – 8,6 kg PWM 916 – 10,8 kg PWM 920 – 13,8 kg Déroulement deprogramme Pré-rinçageLavage jusqu'...
fr - Tableau des programmes 216 Tableau des programmes Literie/Voilages Voilages Voilages 40 °C (froid à 60 °C) Rapport de rem-plissage/Quantitéde charge Type de textile Fibres synthétiques, satin 1.25 PWM 912 – 4,4 kg PWM 916 – 5,6 kg PWM 920 – 7,2 kg Déroulement deprogramme Lavage jusqu'à 60 °C, d...
fr - Tableau des programmes 217 Couettes Ces programmes permettent de laver les couettes, oreillers et/ou duvets avec garnissagede plumes et garnissage en fibres synthétiques ou naturelles. Ces programmes de lavage sont exclusivement conçus pour laver des textiles portant lamention « lavable en mach...
fr - Tableau des programmes 218 Quantité de charge : literie Les capacités maximales peuvent être relevées dans le tableau suivant. Ces données sontfournies à titre indicatif et varient en fonction de la taille et de l'épaisseur des couettes. Type Quantité* PWM 912 2 oreillers ou 1 couette PWM 916 3...
fr - Tableau des programmes 219 Désinfection : généralités Qu'est-ce que la désinfection ? Destruction et réduction des germes de maladies contagieuses, de sorte qu'une contami-nation et une infection soient exclues. Désinfection thermique La désinfection thermique a lieu par l'action d'une températ...
fr - Tableau des programmes 220 Liste VAH VAH = Verbund für angewandte Hygiene e.V.(précédemment DGHM = Deutsche Gesellschaft für Hygiene und Mikrobiologie) La liste VAH décrit les procédés pour une désinfection prophylactique de routine pour laprévention des infections à l'hôpital, dans les cabinet...
fr - Tableau des programmes 222 Désinfection Désinfection thermique et la désinfection chimico-thermique sont des programmes pour la désinfection des textiles.Une désinfection thermique et chimico-thermique est réalisée. Pour la désinfection chimi-co-thermique, des détergents appropriés doivent être...
fr - Tableau des programmes 225 Tableau des programmes Fauberts Ces programmes sont conçus pour le lavage, la désinfection et l'apprêt (différents degrésd'humidité disponibles) de fauberts en coton ou en fibres mélangées, de tapis d'entrée la-vables, de disques de polissage et de lavettes utilisés p...
fr - Tableau des programmes 226 Fauberts Pour éviter la présence de grosses saletés dans la machine, secouez les fauberts avant deles mettre dans la machine. Fauberts standard 60 °C (froid à 90 °C) Rapport de rem-plissage/Quantitéde charge Type de textile Fauberts en coton, viscose, polyester ou m...
fr - Tableau des programmes 227 Faubert dés. thermique 90 °C Rapport de rem-plissage/Quantitéde charge Type de textile Fauberts en coton, viscose, polyester ou micro-fibres 1:9 PWM 912 – 12 kgPWM 916 – 16 kg PWM 920 – 20 kg Quantité voir tableau « Quantité de charge : fau- berts » Déroulement deprog...
fr - Tableau des programmes 229 Faubert dés. ch-t.20m+rtu 60 °C Rapport de rem-plissage/Quantitéde charge Type de textile Fauberts en coton, viscose, polyester ou micro-fibres 1.10 PWM 912 – 11 kg PWM 916 – 14 kg PWM 920 – 18 kg Déroulement deprogramme Déroulement de programme comme pour fau-berts d...
fr - Tableau des programmes 230 Le programme Fauberts rtu convient pour l'apprêt ultérieur des fauberts secs et propres. Une solution désinfectante est rajoutée lors de l'apprêt.Les quantités de dosage doivent être réglées sur place et le standard de désinfectioncontrôlé. Quantité de charge : fauber...
fr - Tableau des programmes 231 Programmes Tapis d'entrée / Disques de nettoyage Tapis de seuil 40 °C (froid à 60 °C) Rapport de rem-plissage/Quantitéde charge Type de textile Tapis d'entrée lavables 1.15 PWM 912 – max. 7,4 kg PWM 916 – max. 9,4 kg PWM 920 – max. 12 kg Déroulement deprogramme Pré-ri...
fr - Tableau des programmes 232 Programmes Lavettes Ces programmes sont conçus pour le lavage, la désinfection et l'apprêt (différents degrésd'humidité disponibles) de lavettes en coton, en fibres mélangées ou en microfibres utili-sées par les entreprises de nettoyage. Lavettes standard 60 °C (froid...
fr - Tableau des programmes 233 Lavettes dés. thermique 90 °C Rapport de rem-plissage/Quantitéde charge Type de textile Lavettes en coton, viscose, polyester ou micro-fibres 1.18 PWM 912 – 6,0 kg PWM 916 – 8,0 kg PWM 920 – 10 kg Quantité voir tableau « Quantité de charge : lavettes » Déroulement dep...
fr - Tableau des programmes 235 Lavettes rtu Rapport de rem-plissage/Quantitéde charge Type de textile Lavettes en coton, viscose, polyester ou micro-fibres 1.18 PWM 912 – 6,0 kg PWM 916 – 8,0 kg PWM 920 – 10 kg Quantité voir tableau « Quantité de charge : lavettes » Déroulement deprogramme 1 cycle ...
fr - Tableau des programmes 236 Tableau des programmes Pompiers Ces programmes conviennent pour le lavage et l'imprégnation de tenues, vestes, panta-lons, masques respiratoires et tenues de protection anti-produits chimiques pour pom-piers Nomex. Programmes Vêtements de protection Tenue de protectio...
fr - Tableau des programmes 237 Tenue de protection Pour préparer le linge N'agrafez pas d'étiquettes sur les articles à laver. Si possible, retirez les mousquetons ou placez-les dans une poche latérale soigneuse-ment fermée. Fermez les fermetures velcro ou couvrez-les avec du velcro. Lavez ...
fr - Tableau des programmes 238 Programmes Masques Les programmes Masques sont conçus pour le lavage et la désinfection de masques res- piratoires avec croisillon. Avant le chargement de la machine, relevez les lanières des masques pour protéger les vi-sières. Placez chaque masque dans le sac de...
fr - Tableau des programmes 239 Programmes Tenues protection chimie Vêtements chimie est un programme de lavage des vêtements de protection chimique des pompiers.Une désinfection thermochimique (60 °C - 140 °F / 20 min) est réalisée pour laquelle desdétergents appropriés doivent être utilisés. Vêtem...
fr - Tableau des programmes 240 Programmes Vêtements de secours Casques * 60 °C (froid à 60 °C) Rapport de rem-plissage/Quantitéde charge Type de textile Casques de protection pour pompiers PWM 912 - 3 casques PWM 916 - 4 casques PWM 920 - 5 casques Déroulement deprogramme Prélavage jusqu'à 40 °Ccyc...
fr - Tableau des programmes 241 Ceintures * 40 °C (froid à 40 °C) Rapport de rem-plissage/Quantitéde charge Type de textile Couplages de pompiers également avec descomposants en aluminium et des garnitures encuir PWM 912 - 8 couplages PWM 916 - 12 couplages PWM 920 - 15 couplages Déroulement deprogr...
fr - Tableau des programmes 242 Vêtements de secours * 60 °C Rapport de rem-plissage/Quantitéde charge Type de textile Nomex et coton voir tableau « Quantité de charge des vête- ments pour le per- sonnel de se- cours » Déroulement deprogramme Prélavage jusqu'à 40 °CDésinfection* 60 °C, temps de main...
fr - Tableau des programmes 244 Aquanett Le « nettoyage à l'eau » Aquanett est un procédé de nettoyage très délicat avec de l'eauet des produits d'entretien spéciaux pour les vêtements qui pouvaient uniquement êtrenettoyés à sec jusqu'ici. Aquanett délicat 25 °C (froid à 30 °C) Rapport de rem-plissa...
fr - Tableau des programmes 245 Tableau des programmes Outdoor Outdoor 40 °C (froid à 40 °C) Rapport de rem-plissage/Quantitéde charge Type de textile Textiles polyamide, à membrane 1.15 PWM 912 – 7,4 kg PWM 916 – 9,4 kg PWM 920 – 12 kg Déroulement deprogramme Lavage jusqu'à 40 °C, durée de lavage 6...
fr - Tableau des programmes 246 Centre équestre Ces programmes sont conçus pour le lavage et l'imprégnation des couvertures pour che-vaux, tapis de selle, guêtres, cloches, bandes, licols textile. Couvertures cheval 60 °C (froid à 60 °C) Rapport de rem-plissage/Quantitéde charge Type de textile Couv...
fr - Tableau des programmes 248 Détergent Pour le lavage, un détergent sans eau de Javel et azurant optique doit être utilisé.Pour les couvertures de laine, des produits avec un pH légèrement réduit devraient être uti-lisés. Il est également possible d'ajouter des produits contenant des enzymes.Il f...
fr - Tableau des programmes 249 Sport Textiles sport 40 °C (froid à 60 °C) Rapport de rem-plissage/Quantitéde charge Type de textile Tricots, maillots et pantalons en microfibres oufibres mélangées 1.20 PWM 912 – 5,6 kg PWM 916 – 7 kg PWM 920 – 9 kg Déroulement deprogramme Lavage jusqu'à 60 °C, duré...
fr - Tableau des programmes 250 Vêtements de travail Huile/Graisse 60 °C (froid à 90 °C) Rapport de rem-plissage/Quantitéde charge Type de textile Vêtements de travail, nappes et chiffons en cotonou fibres mélangées salis d'huile ou de graisse 1.10 PWM 912 – 11 kg PWM 916 – 14 kg PWM 920 – 18 kg Dér...
fr - Tableau des programmes 251 Tableau des programmes Sluice (Laundry Regulation HTM 01-04) Les programmes Sluice sont destinés au linge de corps extrêmement sale ainsi qu'au lingeéponge et aux draps également très sales. La désinfection est effectuée selon les prescriptions locales en vigueur. Deu...
fr - Tableau des programmes 253 Récupération de l'eau (WRG) Nettoyage récup. eau 80 °C Rapport de rem-plissage/Quantitéde charge Déroulement deprogramme VidangeRinçageVidangeNettoyageVidangeRinçageVidange Vidange supp récup eau froid Déroulement deprogramme Vidange
fr - Tableau des programmes 254 Tableau des programmes Eco Les programmes Eco sont des programmes optionnels qui peuvent être téléchargés sur In-ternet. Couleurs éco 40 °C (froid à 40 °C) Rapport de rem-plissage/Quantitéde charge Type de textile Textiles en coton, lin ou fibres mélangées peusales, p...
fr - Tableau des programmes 255 Non repass. éco 30 °C (froid à 30 °C) Rapport de rem-plissage/Quantitéde charge Type de textile Textiles peu sales en fibres synthétiques ou mé-langées 1.20 PWM 912 - 5,6 kg PWM 916 - 7 kg PWM 920 - 9 kg Déroulement deprogramme Lavage jusqu'à 30 °C, durée de lavage 7 ...
Notice d'Installation Miele PWM 916 [EL DV DD SOM]
































































































































Résumé
fr - Table des matières 44 Consignes d'installation ............................................................................................................. 45 Explication des consignes de sécurité et des avertissements sur la machine .................... 45 Conditions d'installation .............
fr - Consignes d'installation *INSTALLATION* 45 Explication des consignes de sécurité et des avertissementssur la machine Veuillez lire le mode d'emploi Lisez les instructions, par exemple les instructionsd'installation Attention : surfaces brûlantes Attention tension jusqu'à 1000 V ! Mise à la terr...
fr - Consignes d'installation *INSTALLATION* 46 Installation Transportez le lave-linge sur le lieu d'installation à l'aide d'un chariotet retirez l'emballage de transport. Le lave-linge doit être placé sur une surface totalement plane, horizon-tale et solide qui résiste au moins à une charge au sol ...
fr - Consignes d'installation *INSTALLATION* 47 Pour garantir un fonctionnement efficace et économe en énergie, lelave-linge doit être posé bien à l'horizontale sur ses 4 pieds. Dans lecas contraire, la consommation d'eau et d'énergie augmente et peutprovoquer un déplacement de l'appareil. Serrez ...
fr - Consignes d'installation *INSTALLATION* 48 Lors de raccordement à une tension électrique différente de celleindiquée sur la plaque signalétique, il peut se produire des dysfonc-tionnements ou une défaillance du lave-linge !Si plusieurs valeurs de tension sont inscrites sur la plaque signalé-tiq...
fr - Consignes d'installation *INSTALLATION* 50 Vanne de vidange Dans les lave-linge équipés d'une vanne de vidange, le bain lessivielest évacué par une vanne motorisée. La vanne de vidange peut êtreraccordée via un raccord en équerre standard fourni HT DN 70 direc-tement à l'évacuation des eaux usé...
fr - Consignes d'installation *INSTALLATION* 52 Options / Accessoires en option Des accessoires ne peuvent être rajoutés ou montés que s'ils sontexpressément autorisés par Miele.Le montage d'autres pièces exclut le bénéfice de la garantie. Kit de raccorde-ment à l'eau dure(APWM062) Le raccordement p...
fr - Consignes d'installation *INSTALLATION* 53 Interface LAN/WLAN Le lave-linge est équipé d'une interface WLAN/LAN pour l'échangede données. L'interface de données fournie par le port LAN est conforme à lanorme SELV (basse tension) selon la norme EN 60950. La connexionLAN est réalisée à l'aide d'u...
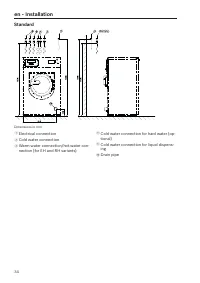
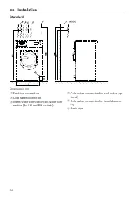
fr - Installation 54 Par défaut Dimensions en millimètres a Raccordement électrique b Raccordement à l'eau froide c Raccordement d'eau chaude/chaude(pour les variantes EH et RH) d Raccordement à l'eau froide eau dure (enoption) e Raccordement eau froide pour dosage deproduits liquides l Tuyau d'évac...
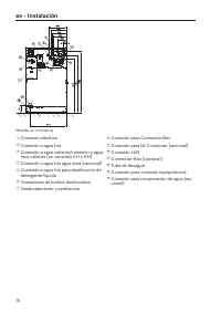
fr - Installation 56 Socle Dimensions en mm a Raccordement électrique b Raccordement à l'eau froide c Raccordement d'eau chaude/chaude(pour les variantes RH) d Raccordement à l'eau froide eau dure (enoption) e Raccordement eau froide pour dosage deproduits liquides l Tuyau d'évacuation
fr - Caractéristiques techniques 61 Variantes de tension et caractéristiques électriques 3N AC 400 V EL DV Tension électrique 3N AC 400 V Fréquence 50/60 Hz Protection par fusibles requise (côté installation) Caractéristique de déclenchement du disjoncteur automatique 25 A Type B Consommation 14,6 k...
fr - Caractéristiques techniques 62 Raccordement à l'eau Raccordement à l'eau froide Pression nécessaire 100 - 1000 kPa (1 - 10 bar) Débit volumétrique maximal 31,5 l/min Raccord fileté requis (filetage extérieur, côté installation conforme à DIN 44991, joint plat) 3 x 3/4" Longueur du tuyau d’a...
fr - Caractéristiques techniques 63 Dimensions d'installation Largeur de la carrosserie (sans pièces ajoutées) 920 mm Hauteur de la carrosserie (sans pièces ajoutées) 1447 mm Profondeur de la carrosserie (sans pièces ajoutées) 754 mm Largeur hors tout 924 mm Hauteur hors tout 1450 mm Profondeur hors...
Other Miele Autres Manuals
-
Miele APWM 066 Notice d'Installation
-
Miele APWM 062 Notice d'Installation
-
Miele APWM 065 Notice d'Installation
-
Miele APWM 020 Manuel d'utilisation
-
Miele APWM 020 Notice d'Installation
-
Miele SC Notice d'Installation
-
Miele PR Notice d'Installation
-
Miele FP 900 Notice d'Installation
-
Miele RP 900 Notice d'Installation
-
Miele APWM 019 Manuel d'utilisation
-
Miele APWM 019 Notice d'Installation
-
Miele A 830/1 Manuel d'utilisation
-
Miele TT 86 Manuel d'utilisation
-
Miele RP 1150 Notice d'Installation
-
Miele UG 5010 Notice d'Installation
-
Miele UO 5010 Notice d'Installation
-
Miele APCL 001 Notice d'Installation
-
Miele E 473/2 Manuel d'utilisation
-
Miele APRI 312 Notice d'Installation
-
Miele DOS K 85 flex Notice d'Installation