Maytag MED7020R** - Notice

Maytag MED7020R**

Maytag MED7020R** - Notice, à lire gratuitement en ligne au format PDF. Nous espérons que cela vous aidera à résoudre toutes les questions que vous pourriez avoir. Si vous avez encore des questions, contactez-nous via le formulaire de contact.

1 Page 1
2 Page 2
3 Page 3
4 Page 4
5 Page 5
6 Page 6
Page: / 6
Téléchargement du manuel

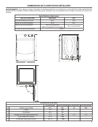
Dimension Guide

Maytag

®

Dryer with Extra Power and

Quick Dry Cycle - 7.3 cu. ft.

W11685584A

Electric - MED7020R**, YMED7020R**
Gas - MGD7020R**

„Téléchargement du manuel“ signifie que vous devez attendre que le fichier soit complètement chargé avant de pouvoir le lire en ligne. Certains manuels sont très volumineux, et le temps de chargement dépend de la vitesse de votre connexion Internet.

Autres modèles de Maytag