Page 2 - POUR LE TECHNICIEN SEULEMENT; NE PAS ENLEVER NI DÉTRUIRE; IMPORTANTE NOTE DE SÉCURITÉ — “Pour les techniciens uniquement”; Table des matières; Informations de sécurité concernant la mesure de la tension; La mesure de la tension doit être effectuée de la manière suivante :; lorsqu’il est mis sous tension.; à cause de contraintes dues au phénomène ESD.
PAGE 27 POUR LE TECHNICIEN SEULEMENT NE PAS ENLEVER NI DÉTRUIRE IMPORTANTE NOTE DE SÉCURITÉ — “Pour les techniciens uniquement” Cette fiche de données de service est conçue pour être utilisée par des personnes ayant une expérience en électricité, en électronique et en mécanique d’un niveau généralem...
Page 3 - TABLEA
POUR LE TECHNICIEN SEULEMENT PAGE 28 NE PAS ENLEVER NI DÉTRUIRE TABLEA U DE COMMANDE WHIRLPOOL (les caractéristiques et l’apparence peuvent varier selon les modèles) La rotation du bouton sélecteur de programme éteint chaque témoin du programme cor respondant. (Les fonctions et l’apparence peuvent v...
Page 4 - GUIDE DE DIAGNOSTIC; Activation manquée
PAGE 29 POUR LE TECHNICIEN SEULEMENT NE PAS ENLEVER NI DÉTRUIRE GUIDE DE DIAGNOSTIC Avant d’entreprendre une réparation, contrôler ce qui suit : Vérifier que la prise de courant est alimentée. Fusible grillé ou disjoncteur ouvert? A-t-on utilisé un fusible ordinaire? Informer le client qu’il fau...
Page 5 - TEST DE L’INTERFACE UTILISATEUR/; de la console
POUR LE TECHNICIEN SEULEMENT PAGE 30 NE PAS ENLEVER NI DÉTRUIRE bouton quelconque ne réussit pas à changer la fonction, le bouton est défectueux et il ne sera pas possible d’utiliser ce bouton pour initier le mode de diagnostic. Remplacer l’ensemble de l’interface utilisateur/carter. Si aucun témo...
Page 7 - AFFICHAGE DE LA VERSION LOGICIELLE; Code Description; CODES D’ANOMALIE/D’ERREUR DU CLIENT
POUR LE TECHNICIEN SEULEMENT PAGE 32 NE PAS ENLEVER NI DÉTRUIRE AFFICHAGE DE LA VERSION LOGICIELLE NOTE : Le mode de diagnostic de service doit être activé avant de commencer le mode Affichage de la version logicielle. Le mode Affichage de la version logicielle expire après 10 minutes d’inactivité e...
Page 8 - CODES D’ANOMALIE/D’ERREUR DE SERVICE
PAGE 33 POUR LE TECHNICIEN SEULEMENT NE PAS ENLEVER NI DÉTRUIRE Code Description Explications et opérations recommandées F1E1 Problème avec le module de commande de programme (MCP) Indique un problème avec le MCP. • Contrôler toutes les connexions du MC P et vers le MC P. • V oir TEST nº 1 : Contrôl...
Page 9 - GUIDE DE DÉPANNAGE; Problème
POUR LE TECHNICIEN SEULEMENT PAGE 34 NE PAS ENLEVER NI DÉTRUIRE GUIDE DE DÉPANNAGE Problème Cause possible Contrôles et tests La sécheuse n’a pas d’alimentation électrique. Vérifier l’alimentation électrique à la prise murale, vérifier les disjoncteurs, les fusibles ou les raccordements à la boîte d...
Page 10 - TESTS DE DÉPANNAGE; MCP CA; Figure 2 - Brochages et connecteurs du MCP; P8 – ÉLECTROVANNE D’ADMISSION; P5 – INTERFACE UTILISATEUR P9 – MOTEUR/L1; Relais de chauffage no 1
PAGE 35 POUR LE TECHNICIEN SEULEMENT NE PAS ENLEVER NI DÉTRUIRE TESTS DE DÉPANNAGE IMPORTANT : Les procédures suivantes peuvent nécessiter l’utilisation de sondes à aiguilles pour mesurer la tension. Ne pas utiliser des sondes à aiguilles endommagera les connecteurs. TEST Nº 1 : Contrôle de la tensi...
Page 11 - TEST no 2 : Connexions d’alimentation; SÉCHEUSE ÉLECTRIQUE :
POUR LE TECHNICIEN SEULEMENT PAGE 36 NE PAS ENLEVER NI DÉTRUIRE Si une tension de +5 V CC est mesurée, l’une des thermistances est cour t-circuitée. Pour diagnostiquer les thermistances, voir TEST nº 4a, page 42. S’il n’y a pas une tension de +5 V CC, passer à l’étape 8. 8. Débrancher la sécheus...
Page 12 - TEST no 3 : Circuit du moteur
PAGE 37 POUR LE TECHNICIEN SEULEMENT NE PAS ENLEVER NI DÉTRUIRE 7. Vérifier visuellement que TOUS les connecteurs sont complètement insérés dans l’IU. 8. Réassembler tous les pièces et panneaux. 9. Brancher la sécheuse ou reconnecter la source de courant électrique. 10. Exécuter les étapes sous “Dia...
Page 14 - TEST no 4 : Système de chauffage; La sécheuse ne chauffe pas
PAGE 39 POUR LE TECHNICIEN SEULEMENT NE PAS ENLEVER NI DÉTRUIRE 10. En utilisant la Figure 10 et le schéma des circuits de la page 49, vérifier les valeurs de résistance des bobinages du moteur (bobinage principal et bobinage de démarrage) comme montré dans le tableau suivant. NOTE : Le bobinage pri...
Page 17 - Températures au point de décharge; AC; TEST no 4a : Thermistances; Résistance de la thermistance de décharge
POUR LE TECHNICIEN SEULEMENT PAGE 42 NE PAS ENLEVER NI DÉTRUIRE Si la résistance est en bon état, la thermistance de sortie est en bon état. Passer à l’étape 4. Si la résistance de la thermistance ne correspond pas aux valeurs indiquées dans le tableau, remplacer la thermistance de décharge. 4. ...
Page 18 - TEST no 4b : Fusible thermique; TEST no 4d : Électrovanne à gaz; Thermistance d’entrée; Élect - Résistance de la thermistance d’entrée; Gaz - Résistance de la thermistance d’entrée
PAGE 43 POUR LE TECHNICIEN SEULEMENT NE PAS ENLEVER NI DÉTRUIRE 4. Contrôler la résistance entre P14-1 et P14-2, et la mise à la terre de la sécheuse. Si l’une des broches indique une continuité à la terre (court-circuit), remplacer le câblage; sinon, passer à l’étape 5. 5. Si les étapes précédentes...
Page 19 - TEST no 5 : Capteur d’humidité; TIMED DRY; Bornes; Résistance de l’électrovanne à gaz; Bobines
POUR LE TECHNICIEN SEULEMENT PAGE 44 NE PAS ENLEVER NI DÉTRUIRE NOTE : Si l’allumeur ne se met pas en marche, la tension de ligne peut ne pas être présente au brûleur à gaz. Le contacteur centrifuge du moteur peut être suspect. IMPORTANT : Pour éviter d’endommager le câblage du bruleur à gaz, vérifi...
Page 20 - TEST no 5a : Ajuster le degré
PAGE 45 POUR LE TECHNICIEN SEULEMENT NE PAS ENLEVER NI DÉTRUIRE Si un signal sonore continu est émis et si un caractère alphanumérique s’affiche sur la console, le capteur d’humidité a réussi le test. Passer à l’étape 9. Si aucun signal sonore n’est émis ou si un signal sonore continu est émis a...
Page 21 - TEST no 7 : Contacteur de la porte; Les témoins et l’afficheur ne s’allument pas :
POUR LE TECHNICIEN SEULEMENT PAGE 46 NE PAS ENLEVER NI DÉTRUIRE 4. Vérifier visuellement que TOUS les connecteurs du MCP sont complètement insérés dans le MCP. 5. Vérifier visuellement que le connecteur de l’IU est complètement inséré dans l’IU. 6. Si le résultat du contrôle visuel est OK, remplacer...
Page 22 - TEST no 8 : Lampe du tambour; S’il n’y a pas de pulvérisation d’eau
PAGE 47 POUR LE TECHNICIEN SEULEMENT NE PAS ENLEVER NI DÉTRUIRE TEST nº 8 : Lampe du tambour Ce test est exécuté si la lampe du tambour ne s’allume pas à l’ouverture de la porte. 1. Débrancher la sécheuse ou déconnecter la source de courant électrique. 2. Retirer le panneau arrière pour accéder à la...
Page 23 - Tableau des codes hex de tension
POUR LE TECHNICIEN SEULEMENT PAGE 48 NE PAS ENLEVER NI DÉTRUIRE 7. Accéder à l’électrovanne d’admission d’eau en retirant le panneau arrière. Vérifier que les conducteurs et le tuyau d’alimentation sont connectés sur l’électrovanne d’admission d’eau (voir Figure 15). Vérifier que le tuyau de l’é...
Page 25 - POSITIONS DES COMPOSANTS; Spécifications de la sécheuse; Consulter la Figure 12b,
POUR LE TECHNICIEN SEULEMENT PAGE 50 NE PAS ENLEVER NI DÉTRUIRE POSITIONS DES COMPOSANTS SPÉCIFICATIONS Tension : 240 V CA (200 à 260), sécheuse électrique, biphasée, “optimisée” 208 V CA (176 à 229), sécheuse électrique, triphasée, “moins optimisée” 120 V CA (100 à 130), sécheuse à gaz Courant : (É...
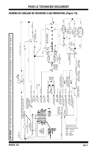
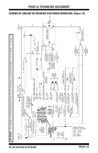
Page 26 - SCHÉMA DE CÂBLAGE DE SÉCHEUSE ÉLECTRIQUE WHIRLPOOL (Figure 18)
PAGE 51 POUR LE TECHNICIEN SEULEMENT NE PAS ENLEVER NI DÉTRUIRE L1 LINE – BK PHASE L1 – N 240 VOL TS R – LINE L2 R – PHASE L2 W – NEUTR AL NEUTRE – BL N NEU BK N T TA N DRUM L AMP LAMPE DU T AMBOUR W AT ER VA LV E ÉL EC TR OV AN NE D ’AD MI SS IO N D’ EA U BK N BK N US ER IN TE RF AC E IN TE RF AC E...