Page 3 - Table des matières
Table des matières 3 Consignes de sécurité et mises en garde ....................................................... 5 Votre contribution à la protection de l'environnement .................................. 16 Description de l'appareil ..................................................................
Page 4 - Programmation
Table des matières 4 Sécurité anti-surchauffe ...................................................................................... 38 Programmation .................................................................................................. 39 Nettoyage et entretien ............................
Page 5 - Consignes de sécurité et mises en garde
Consignes de sécurité et mises en garde 5 Ce wok est conforme aux réglementations de sécurité en vigueur.Toute utilisation non conforme peut toutefois causer des dom-mages corporels et matériels. Lisez attentivement le mode d'emploi et les instructions de mon-tage avant de mettre le wok en service. ...
Page 6 - Utilisation conforme; Ce wok est destiné à un usage domestique ou dans des condi-
Consignes de sécurité et mises en garde 6 Utilisation conforme Ce wok est destiné à un usage domestique ou dans des condi- tions d'utilisation semblables au cadre domestique. Ce wok ne convient pas à une utilisation en extérieur. Utilisez le wok exclusivement dans le cadre domestique pour la p...
Page 7 - Précautions à prendre avec les enfants
Consignes de sécurité et mises en garde 7 Précautions à prendre avec les enfants Tenez les enfants de moins de huit ans éloignés du wok à moins qu'ils ne soient sous étroite surveillance. Les enfants âgés de 8 ans et plus peuvent uniquement utiliser le wok sans surveillance si vous leur en avez ...
Page 8 - Sécurité technique; Un wok endommagé représente un danger potentiel pour votre
Consignes de sécurité et mises en garde 8 Sécurité technique Des travaux d'installation, d'entretien ou de réparation non conformes peuvent entraîner de graves dangers pour l'utilisateur.Ces interventions doivent être exécutées exclusivement par des pro-fessionnels agréés par Miele. Un wok endom...
Page 10 - Risque d’électrocution !
Consignes de sécurité et mises en garde 10 Risque d’électrocution ! N'allumez pas le wok si vous constatez que le plateau vitrocéra-mique est endommagé (craquelures, fissures). Eteignez le wok dèsque vous soupçonnez une anomalie. Débranchez le wok. Contactezle service après-vente. Si le wok a ét...
Page 15 - Nettoyage et entretien; N'utilisez jamais de nettoyeur vapeur pour nettoyer votre wok.
Consignes de sécurité et mises en garde 15 Nettoyage et entretien N'utilisez jamais de nettoyeur vapeur pour nettoyer votre wok. La vapeur qui s'en dégage pourrait se déposer sur les élémentsconducteurs d'électricité et provoquer un court-circuit. Si le wok est installé au-dessus d'un four pyrol...
Page 16 - Votre contribution à la protection de l'environnement; Nos emballages
Votre contribution à la protection de l'environnement 16 Nos emballages Nos emballages protègent votre appa-reil des dommages pouvant survenirpendant le transport. Nous les sélec-tionnons en fonction de critères écolo-giques permettant d'en faciliter le recy-clage. En participant au recyclage de vos...
Page 18 - Eléments de commande et d'affichage; Touches sensitives
Description de l'appareil 18 Eléments de commande et d'affichage Touches sensitives a Marche/Arrêt wok b Stop&Gopour arrêter/ démarrer un processus de cuisson en cours c Protection nettoyagepour verrouiller les touches sensitives d Maintien au chaudpour activer/ désactiver la fonction Maintien a...
Page 19 - Affichages/Diodes de contrôle; Caractéristiques de la zone de cuisson
Description de l'appareil 19 Affichages/Diodes de contrôle h Affectation des zones de cuisson Arrêt automatiqueL'arrêt automatique pour le wok est activé i Chaleur résiduelle j BoosterLe Booster est activé k Affichage du minuteur : à : Durée Le verrouillage de la mise en marche/ le verroui...
Page 20 - Accessoires fournis
Description de l'appareil 20 Accessoires fournis Pour commander les accessoires desérie ou en option, veuillez vous repor-ter au chapitre « Accessoires en op-tion ». Poêle wok CSWP 1450
Page 21 - Principe de fonctionnement; Bruits
Principe de fonctionnement 21 Une bobine à induction se trouve sousle wok à induction. Cette bobine produitun champ magnétique qui agit directe-ment sur le fond du récipient et le ré-chauffe. La chaleur dégagée par le fondde la poêle wok réchauffe ensuite indi-rectement la plaque creuse. L'induction...
Page 22 - Récipients de cuisson; Risque d'incendie en cas de
Récipients de cuisson 22 Risque d'incendie en cas de poêles wok non appropriéesEn cas d'utilisation d'autres poêleswoks, la graisse, l'huile ou les ali-ments risquent de trop chauffer et deprendre feu.Utilisez uniquement la poêle wok fournie avec l'appareil. La poêle fournie a été spécialementconç...
Page 23 - Première mise en service
Première mise en service 23 Veuillez coller la plaque signalétiquejointe aux documents accompagnantvotre appareil à l'emplacement prévuà cet effet sous « Service après-vente ». Enlevez les éventuels autocollants etfilms de protection. Nettoyer un domino SmartLinepour la première fois Avant d'u...
Page 24 - Utilisation; Principe de commande; que sur les autres
Utilisation 24 Principe de commande Votre domino SmartLine est équipé detouches sensitives électroniques qui ré-agissent au contact du doigt. Pour desraisons de sécurité, il faut appuyer pluslongtemps sur la touche sensitiveMarche / Arrêt que sur les autres touches, lors de la mise sous tension.L...
Page 25 - Risque d'incendie par suite de; Mise en marche du wok; Effleurez la touche sensitive; Régler le niveau de puissance
Utilisation 25 Risque d'incendie par suite de surchauffe.Les aliments qui ne sont pas sur-veillés en cours de cuisson risquentde trop chauffer et de s'enflammer.Ne laissez pas l'appareil sans sur-veillance pendant qu'il fonctionne ! Tenez compte du fait que le tempsde montée en température d'un ap...
Page 26 - Risque de brûlure à cause de
Utilisation 26 Indicateur de chaleur rési-duelle Lorsque le domino SmartLine estchaud, le témoin de chaleur résiduelles'allume après son arrêt. En fonction dela température, un point apparaît res-pectivement sur les niveaux de puis-sance 1, 2 et 3. Les points du témoin de chaleur rési-duelle s'éteig...
Page 27 - Début de cuisson automatique; ou
Utilisation 27 Début de cuisson automatique Quand la fonction « Début de cuissonautomatique » est activée, la zone decuisson atteint très vite sa puissancemaximale (phase de saisie) pour redes-cendre ensuite à la puissance sélection-née (phase de poursuite de cuisson). Letemps de saisie dépend de la...
Page 28 - Booster; Activer TwinBooster, niveau 1
Utilisation 28 Booster Le wok est équipé d'un TwinBooster. Le booster renforce la puissance pen-dant 15 minutes au maximum. Vous avez activé le Booster - et vous n'avez pas réglé le niveau de puissance au préalable ? Le niveaude puissance revient automatique-ment sur 9 lorsque le booster s'arrêteou ...
Page 29 - Fonction maintien au chaud; - Mélangez régulièrement les aliments
Utilisation 29 Fonction maintien au chaud La fonction de maintien au chaud sertà maintenir la température des platschauds juste après leur préparation,mais pas pour réchauffer des platsfroids. La durée maximum de maintien auchaud est de 2 heures. - Pendant leur maintien au chaud, cou- vrez vos plats...
Page 30 - Niveaux de puissance
Niveaux de puissance 30 En usine, 9 niveaux de puissance sont programmés sur la table de cuisson. Sivous souhaitez une gradation plus fine, vous pouvez l'élargir à 17 niveaux de puis-sance (voir chapitre « Programmation »). Plage de réglage à l'usine (9 niveaux) étendue (17 niveaux) Maintien au chau...
Page 31 - Timer; Fonction Minuterie; Régler la minuterie
Timer 31 Pour pouvoir utiliser le minuteur (Ti-mer), le domino doit être allumé. Le minuteur peut être utilisé pour2 fonctions : - régler la minuterie - régler l'arrêt automatique d'une zone de cuisson/résistance/zone du tep-pan. Vous pouvez utiliser les fonctions simul-tanément. Il est possible de ...
Page 32 - Arrêt automatique; Modifier l’heure d’arrêt
Timer 32 Arrêt automatique Il est possible de choisir au bout decombien de temps une zone de cuissondoit s’arrêter automatiquement. Cettefonction peut être utilisée simultané-ment pour toutes les zones de cuisson. Si la durée que vous avez sélection-née est supérieure au temps maximalde fonctionneme...
Page 34 - Fonctions supplémentaires
Fonctions supplémentaires 34 Stop&Go L'activation de Stop&Go réduit à 1 le ni-veau de puissance réglé.Vous ne pouvez plus modifier ni le ni-veau de puissance ni le réglage de laminuterie, le wok peut uniquement êtrearrêté. Le décompte de la durée de mi-nuterie, du délai de désactivation, de ...
Page 35 - Protection nettoyage; Activer; Mode démonstration; Description du modèle
Fonctions supplémentaires 35 Protection nettoyage Vous pouvez bloquer les touches sen-sitives du domino SmartLine pendant20 secondes, pour retirer les salis-sures par exemple. La touche sensi-tive n'est pas verrouillée. Activer Effleurez la touche sensitive . Dans l'affichage de la minuterie...
Page 36 - Dispositifs de sécurité
Dispositifs de sécurité 36 Verrouillage de la mise enmarche/Verrouillage Le verrouillage est désactivé en casde panne de courant. Votre domino SmartLine est équipéd'une sécurité enfants et d'une fonctionde verrouillage destinées à empêchertoute mise en marche intempestive dudomino, ainsi que toute m...
Page 37 - Sécurité oubli; Touches sensitives recouvertes
Dispositifs de sécurité 37 Sécurité oubli Touches sensitives recouvertes Dès que quelque chose recouvre unetouche sensitive pendant plus de 10 se-condes, par exemple un doigt, un ali-ment qui déborde ou un objet posé, ledomino SmartLine s'arrête instantané-ment. Le symbole clignote brièvement sur...
Page 38 - Sécurité anti-surchauffe; et
Dispositifs de sécurité 38 Sécurité anti-surchauffe Les bobines d'induction et les ventila-teurs du système électronique sontéquipés d'une protection anti-sur-chauffe. Cette dernière applique l'unedes mesures suivantes avant que ceséléments ne soient en surchauffe : Bobines d'induction - La fonction...
Page 39 - Modifier la programmation
Programmation 39 Vous pouvez adapter la programmationdu domino SmartLine à vos besoins.Vous pouvez modifier les réglages lesuns après les autres. Une fois la programmation activée, lesymbole apparaît et dans l'affi- chage de la minuterie (Timer). Au boutde quelques secondes, clignotent alter-n...
Page 42 - Produits à ne pas utiliser; - de produit nettoyant à base de
Nettoyage et entretien 42 Risque de brûlure à cause de surfaces chaudes.Les surfaces restent très chaudesaprès la cuisson.Éteignez le wok.Laissez refroidir les surfaces avantde nettoyer le wok. Dommages en cas de pénétra- tion d'humidité.La vapeur pourrait se déposer sur leséléments conducteurs ...
Page 43 - taches
Nettoyage et entretien 43 Dommages causés par des ob- jets pointus.La bande d'étanchéité entre le domi-no SmartLine et le plan de travailpeut être endommagée.N'utilisez pas d'objets pointus pournettoyer votre appareil. Le liquide vaisselle n'élimine pastoutes les salissures ni tous les rési-dus.De...
Page 44 - Messages dans les affichages/ à l’écran; La sécurité enfants ou le verrouillage est activé.
En cas d'anomalie 44 Vous pouvez régler la plupart des défauts ou anomalies courants par vous-même.Dans bon nombre de cas, vous économiserez ainsi du temps et de l'argent carvous n'aurez pas besoin de faire appel au service après-vente. Les tableaux suivants vous aideront à déceler la cause d'un déf...
Page 46 - Comportement inattendu; Problème
En cas d'anomalie 46 Comportement inattendu Problème Cause et solution Le niveau de puissanceréglé clignote. La poêle wok n'est pas placée sur l'appareil. Placez la poêle wok sur l'appareil. Les touches sensitivesréagissent de façontrop sensible ou pas as-sez sensible. La sensibilité des touches s...
Page 47 - Problèmes d'ordre général ou anomalies techniques
En cas d'anomalie 47 Problèmes d'ordre général ou anomalies techniques Problème Cause et solution Le domino SmartLinene s'allume pas. Le domino SmartLine n'est pas alimenté en électrici-té. Vérifiez si le fusible de l'installation domestique asauté. Dans ce cas, avertissez un électricien pro-fessi...
Page 48 - Accessoires en option; Chiffon microfibre
Accessoires en option 48 Miele propose une large gamme d'ac-cessoires Miele parfaitement adaptés àl'entretien et au nettoyage de vos appa-reils. Pour les commander, il vous suffit devous rendre sur la boutique en ligneMiele. Ils sont également disponibles auprèsdu service après-vente Miele (voir la ...
Page 49 - Service après vente; Contact en cas d'anomalies
Service après vente 49 Contact en cas d'anomalies Vous n'arrivez pas à résoudre l'anomalie par vous-même ? Contactez le serviceaprès-vente Miele ou votre revendeur Miele. Vous pouvez prendre rendez-vous en ligne avec le service après-vente Mielesous www.miele.com/service. Les coordonnées du service ...
Page 50 - Installation; Consignes de sécurité pour le montage; Dommages liés à un montage incorrect.; Les bois de placage du plan de travail doivent être traités avec
Installation *INSTALLATION* 50 Consignes de sécurité pour le montage Dommages liés à un montage incorrect. Le domino SmartLine peut être endommagé en raison d'un montage incorrect.Faites installer le domino SmartLine uniquement par un technicien qualifié. Risque d'électrocution en raison de la t...
Page 51 - Distances de sécurité
Installation *INSTALLATION* 51 Distances de sécurité Distance de sécurité au-dessus dudomino SmartLine La distance de sécurité prescrite par lefabricant de la hotte entre le dominoSmartLine et la hotte doit être respec-tée. Si des matériaux facilement inflam-mables (placards, par exemple) sontmontés...
Page 52 - Distance de sécurité latérale / arrière
Installation *INSTALLATION* 52 Distance de sécurité latérale / arrière Le domino SmartLine doit être installéde préférence en laissant un espace gé-néreux à droite et à gauche. À l'arrière du domino SmartLine, il fautrespecter la distance minimale indiquéeci-dessous par rapport à un meuble haut o...
Page 53 - - de l'arête supérieure du four doit être
Installation *INSTALLATION* 53 Distance minimale sous le dominoSmartLine Pour garantir une ventilation adéquatedu domino SmartLine, il est indispen-sable d'assurer une distance minimalesous la table de cuisson entre celui-ciet un four, une tablette ou un tiroir. La distance minimale entre le bord in...
Page 54 - Distance de sécurité avec la crédence
Installation *INSTALLATION* 54 Distance de sécurité avec la crédence Lorsqu'une crédence est posée, la distance minimale entre la découpe et la cré-dence doit être respectée, car les températures élevées peuvent abîmer ou dé-truire le matériau de la crédence. Pour une crédence en matériau inflammabl...
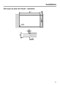
Page 55 - Plan de travail carrelé
Installation *INSTALLATION* 55 Instructions d'encastrement – standard Joint entre le domino SmartLine et leplan de travail Si vous utilisez un produit d'étan-chéité pour joint entre le plan de tra-vail et le domino SmartLine, vous ris-quez d'endommager ce dernier encas de démontage éventuel.N'utilis...
Page 56 - Combinaison avec un domino hotte
Installation *INSTALLATION* 56 Encastrement de plusieurs dominosSmartLine Les joints entre les différents dominosSmartLine sont injectés avec un produitd'étanchéité à base de silicone thermo-résistant (minimum 160 °C). En casd'encastrement à fleur de plan, il fautde plus injecter les joints entre le...
Page 58 - Encastrement avec domino hotte
Installation *INSTALLATION* 58 Encastrement avec domino hotte Exemples de combinaison Nombre x largeur [mm] Dimen- sion B [mm] Éléments de cuisson Hotte de table 1 x 378 1 x 120 481 2 x 378 1 x 120 862 1 x 3781 x 620 2 x 120 1226 3 x 378 2 x 120 1365 2 x 3781 x 620 2 x 120 1607 4 x 378 2 x 120 1746 ...
Page 60 - Barrettes de jonction – standard; Encastrement de 3 dominos et 2 barrettes de jonction
Installation *INSTALLATION* 60 Barrettes de jonction – standard Si vous installez plusieurs appareils, vous devez placer des barrettes de jonctionentre eux. Vous n'avez besoin que des supports ci-joints pour l'installation d'un CS-DA 700x FL. Encastrement de 3 dominos et 2 barrettes de jonction
Page 62 - Installation – standard; Préparation du plan de travail
Installation *INSTALLATION* 62 Installation – standard Préparation du plan de travail Réalisez la découpe du plan de tra-vail. Respectez les distances desécurité (voir chapitre « Installation »,section « Distances de sécurité »). Pour éviter tout gonflement dû à l’hu-midité, scellez les bords de...
Page 63 - Encastrement du domino SmartLine
Installation *INSTALLATION* 63 Encastrement du domino SmartLine Collez le joint d'étanchéité fournisous le bord du domino SmartLine.Ne pas coller le joint d’étanchéitésous tension. Faites passer le câble d'alimentationélectrique vers le bas par la découpedu plan de travail. Posez le domino Sma...
Page 64 - Plans de travail en pierre naturelle
Installation *INSTALLATION* 64 Instructions d'encastrement – à fleur de plan L'encastrement à fleur de plan n'estpossible que dans un plan de travailen pierre naturelle (granit, marbre), enbois massif ou carrelé. Si votre plande travail est constitué d'un autre ma-tériau, demandez au fabricant si l'...
Page 66 - Découpe du plan de travail – à fleur de plan; Plan de travail en pierre naturelle
Installation *INSTALLATION* 66 Découpe du plan de travail – à fleur de plan B 0 50 A 524 50 0 + 1 + 1 ß R 4 B A 0 2 12 0 1 0 5,5 + 0,5 * / 7 + 0,5 0 2 12 0 1 0 5,5 + 0,5 * / 7 + 0,5 + 1 + 1 + 1 + 1 B A + 1 + 1 Plan de travail en pierre naturelle Plan de travail en bois * 7 + 0,5 mm pour CS 7611 FL
Page 69 - Barrettes de jonction – à fleur de plan
Installation *INSTALLATION* 69 Barrettes de jonction – à fleur de plan Si vous installez plusieurs appareils, vous devez placer des barrettes de jonctionentre eux. Vous n'avez besoin que des supports ci-joints pour l'installation d'un CS-DA 700x FL. Encastrement de 3 dominos et 2 barrettes de joncti...
Page 70 - Cotes d'encastrement – à fleur de plan
Installation *INSTALLATION* 70 Cotes d'encastrement – à fleur de plan Toutes les dimensions sont indiquées en mm. a Avant b Câble d'alimentation électrique, L = 2 000 mm c Fraisage de gradins (voir les schémas détaillés au chapitre « Installation », sec-tion « Découpe du plan de travail pour encastr...
Page 71 - Installation – à fleur de plan
Installation *INSTALLATION* 71 Installation – à fleur de plan Préparation du plan de travail Réalisez la découpe du plan de tra-vail. Respectez les distances desécurité (voir chapitre « Installation »,section « Distances de sécurité »). Pour éviter tout gonflement dû à l’hu-midité, scellez les b...
Page 73 - Branchement électrique; Dommages liés à un raccorde-
Installation *INSTALLATION* 73 Branchement électrique Dommages liés à un raccorde- ment incorrect.Des travaux d'installation, d'entretienou de réparation non conformespeuvent entraîner de graves dangerspour l'utilisateur. Miele ne saurait être tenue respon-sable des dommages causés pardes travaux ...
Page 74 - Mise hors tension
Installation *INSTALLATION* 74 Mise hors tension Risque d'électrocution en raison de la tension réseau.Lors de travaux de réparation et/oude maintenance, un réenclenche-ment de la tension réseau peut être àl'origine d'une électrocution.Après la coupure, protégez le réseaucontre les remises sous te...
Page 75 - Miele Experience Center Nice
9 avenue Albert Einstein - Z. I. du Coudray R.C.S. Bobigny B 708 203 088 55 Boulevard Malesherbes75008 Paris 30 rue du Bac75007 Paris Secteur Cap 3000285 avenue de Verdun06700 Saint-Laurent du Var MIELE FranceSiège social 93151 - Le Blanc-Mesnil CEDEX Miele Experience CenterParis Rive Gauche Miele E...