Page 2 - Table des matières
Table des matières 2 Consignes de sécurité et mises en garde ................................................................ 4 Votre contribution à la protection de l'environnement ......................................... 11 Schéma descriptif ..........................................................
Page 3 - Installation
Table des matières 3 Filtres à charbon actif .................................................................................................... 29 Mise à zéro du compteur d'heures de fonctionnement du filtre à charbonactif ..............................................................................
Page 4 - Consignes de sécurité et mises en garde; Utilisation conforme; Cette hotte est destinée à un usage domestique ou à des condi-
Consignes de sécurité et mises en garde 4 Cette hotte répond aux réglementations de sécurité en vigueur.Toute utilisation non conforme peut toutefois causer des dom-mages corporels et matériels.Lisez attentivement le mode d’emploi et les instructions de mon-tage avant de mettre la hotte en service. ...
Page 5 - Précautions à prendre avec les enfants
Consignes de sécurité et mises en garde 5 Précautions à prendre avec les enfants Tenez les enfants de moins de huit ans éloignés de la hotte à moins qu'ils ne soient sous étroite surveillance. Les enfants âgés de huit ans et plus peuvent utiliser la hotte sans surveillance uniquement si son fonc...
Page 7 - Les ampoules de l’éclairage sont fixées. Pour des raisons de sécu-; Utilisation simultanée de la hotte et d'un foyer; Risque d'intoxication lié aux gaz de combustion !
Consignes de sécurité et mises en garde 7 Les ampoules de l’éclairage sont fixées. Pour des raisons de sécu- rité, seul un professionnel agréé par Miele ou le service après-vente Miele doit se charger de leur remplacement. Utilisation simultanée de la hotte et d'un foyer Risque d'intoxication li...
Page 9 - Installation conforme
Consignes de sécurité et mises en garde 9 L'eau de condensation peut entraîner la formation de corrosion sur la hotte. Enclenchez toujours la hotte dès que vous utilisez une zone de cuis-son pour éviter que l'eau de condensation s'accumule. Si elles chauffent de façon excessive, les graisses de ...
Page 10 - Nettoyage et entretien
Consignes de sécurité et mises en garde 10 N'utilisez que des tubes ou flexibles en matériau ininflammable pour raccorder l'évacuation d'air. Ceux-ci sont disponibles dans lesmagasins spécialisés ou auprès du service après-vente Miele. Ne raccordez jamais l'évacuation de la hotte à une cheminée ...
Page 11 - Votre contribution à la protection de l'environnement; Recyclage de l’emballage
Votre contribution à la protection de l'environnement 11 Recyclage de l’emballage Nos emballages protègent votre appa-reil des dommages qui peuvent survenirpendant le transport. Nous les sélec-tionnons en fonction de critères écolo-giques permettant d'en faciliter le recy-clage.En participant au rec...
Page 14 - Description du fonctionnement; Mode évacuation
Description du fonctionnement 14 Selon le modèle de hotte, les modes defonctionnement suivants sont pos-sibles : Mode évacuation L'air aspiré est nettoyé par les filtres àgraisses puis rejeté à l'extérieur du bâti-ment. Mode recyclage (uniquement avec jeu d'adaptation etfiltre à charbon actif en opt...
Page 15 - Première mise en service; Disponibilité Miele@home
Première mise en service 15 Choisir entre le mode évacua-tion et recyclage Cette hotte peut fonctionner en modeévacuation ou recyclage. La puissancedu moteur est adaptée en fonction dumode de fonctionnement. Par défaut,la hotte est configurée en mode recy-clage. Il est nécessaire de modifier lesrégl...
Page 16 - Effectuer Scan & Connect
Première mise en service 16 Effectuer Scan & Connect Scannez le QR code. Si vous avez installé l'App Miele et quevous possédez un compte utilisateur,vous serez directement dirigé vers lamise en réseau.Si vous n'avez pas encore installé l'AppMiele, vous serez dirigé vers l'Apple AppStore ® ou l...
Page 17 - Conditions préalables :
Première mise en service 17 Activer Con@ctivity La fonction Con@ctivity correspond àune méthode de communication directeentre une table de cuisson électriqueMiele et une hotte Miele. Elle permet decommander automatiquement la hotteen fonction de l'état de fonctionnementde la table de cuisson électri...
Page 18 - Renouveler la connexion
Première mise en service 18 Une fois la connexion établie, 2 et 3 sont allumés en continu. Quittez le mode connexion de la hotteen effleurant la touche d’arrêt diffé-ré . La fonction Con@ctivity est désormaisactivée. Si la connexion directe par Wi-Fi estétablie, la table de cuisson et la hotten...
Page 19 - Utilisation en mode automatique; pidement au niveau; Temps de réaction
Utilisation en mode automatique 19 Lorsque la fonction Con@ctivity estactivée, la hotte fonctionne toujours enmode automatique (voir chapitre« Première mise en service », section« Activer Con@ctivity »).Si vous souhaitez utiliser la hotte enmode manuel, consultez le chapitre« Utilisation (mode manue...
Page 20 - Arrêt; Retour au mode automatique
Utilisation en mode automatique 20 Arrêt Désactivez toutes les zones de latable de cuisson. La puissance d'aspiration diminue gra-duellement pendant les minutes quisuivent puis le moteur s'arrête.L'air de la cuisine est ainsi débarrassédes fumées et odeurs résiduelles. - Le moteur bascule aussitôt...
Page 21 - Utilisation en mode manuel; Désactiver le niveau Booster; Sélectionner l'arrêt différé
Utilisation en mode manuel 21 Cuisiner sans fonctionCon@ctivity (mode manuel) La hotte peut être utilisée manuelle-ment aux conditions suivantes : - la fonction Con@ctivity ne doit pas être activée, - vous avez désactivé provisoirement la fonction Con@ctivity (voir chapitre« Utilisation (mode automa...
Page 22 - Powermanagement
Utilisation en mode manuel 22 Allumer / Eteindre / Varierl'éclairage Vous pouvez allumer, modifier ouéteindre l'éclairage indépendamment dumoteur. Pour allumer ou éteindre l'éclairage,effleurez brièvement la touche corres-pondante . Quand vous l'activez, l'intensité del'éclairage est réglée au ...
Page 23 - Utilisation en mode automatique et manuel
Utilisation en mode automatique et manuel 23 Compteur d'heures de fonction-nement La hotte enregistre la durée de fonction-nement.Le compteur d'heures de fonctionne-ment signale par le biais de l'affichagedu témoin de saturation du filtre àgraisses ou du filtre à charbon quand le filtre à grai...
Page 24 - Consulter le témoin de saturation
Utilisation en mode automatique et manuel 24 Modifier ou désactiver le témoin desaturation du filtre à charbon actif Le filtre anti-odeurs est nécessaire pourle fonctionnement en mode recyclage.Vous pouvez régler le témoin de satura-tion des filtres selon vos besoins et voshabitudes de cuisson.Vous ...
Page 26 - Débranchez la hotte avant toute; Carrosserie; Généralités; Les surfaces et éléments de
Nettoyage et entretien 26 Débranchez la hotte avant toute maintenance ou tout entretien (voirchapitre « Consignes de sécurité etmises en garde »). Carrosserie Généralités Les surfaces et éléments de commande sont susceptibles de serayer.Respectez les conseils de nettoyageci-dessous. Pour toute...
Page 27 - Filtres à graisses; Fréquence de nettoyage; Faites attention à ne pas faire; Produits à ne pas utiliser; spray dégraissant
Nettoyage et entretien 27 Filtres à graisses Risque d'incendie Les filtres à graisses saturés sont in-flammables.Nettoyez régulièrement les filtres àgraisses. Les filtres à graisses métalliques réutili-sables de l’appareil retiennent les parti-cules solides des fumées de cuisson(graisses, poussièr...
Page 28 - Risque d'endommagement par; Après le nettoyage; pendant environ; Remplacer les filtres à graisses
Nettoyage et entretien 28 Nettoyer les filtres à graisses au lave-vaisselle Risque d'endommagement par des températures trop élevées dansle lave-vaisselle.Les filtres à graisse peuvent être ren-dus inutilisables par des tempéra-tures trop élevées, par exemple en sedéformant.Choisissez un programme...
Page 29 - Filtres à charbon actif; Fréquence de remplacement
Nettoyage et entretien 29 Filtres à charbon actif En mode recyclage, la hotte doit êtreéquipée d'un filtre à charbon actif enplus des filtres à graisses. Celui-ci per-met d'absorber les odeurs de cuisson.On l'installe dans le déflecteur au-des-sus des filtres à graisses. Installer / Remplacer les fi...
Page 30 - Retirer le film de protection; raccord d’évacuation
Installation *INSTALLATION* 30 Avant l'installation Avant l'installation, veuillez tenir compte de toutes les informationsmentionnées dans ce chapitre et duchapitre « Consignes de sécurité etmises en garde ». Retirer le film de protection Les pièces de l'appareil sont recou-vertes d'un film de pro...
Page 31 - Plan de montage
Installation *INSTALLATION* 31 Montage Installation Montaje Montaggio Montering Montagem Asennus Plan de montage Les différentes étapes de montage sontdécrites sur le plan de montage. DUW20 Kit de recyclage Le jeu d'adaptation comprend une grilled'évacuation, un flexible et des colliersde serrage (a...
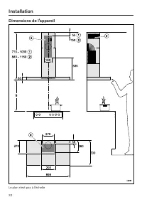
Page 33 - Distance entre la table de cuisson et la hotte (S)
Installation *INSTALLATION* 33 a Évacuation d’air b Recyclage c Sortie d’air montée vers le haut en cas de recyclage de Zone d’installation (en cas de recyclage uniquement d ). Zone du mur et/ou du plafond pour le passage de l’évacuation d’air et pour le montage de la prisede courant. En mode recyc...
Page 34 - Conseils de montage; - Une distance de 650 mm minimum
Installation *INSTALLATION* 34 Conseils de montage - Une distance de 650 mm minimum est recommandée pour faciliter le tra-vail sous la hotte même au-dessusdes tables de cuisson électriques. - Lorsque vous choisissez la hauteur de montage, tenez compte de la tailledes utilisateurs. Vous devez pouvoir...
Page 35 - Cheminée d'évacuation
Installation *INSTALLATION* 35 Conduit d'évacuation Risque d'intoxication en cas d'utilisation simultanée de la hotte etd'un brûleur !Consultez le chapitre « Consignes desécurité et mises en garde » avantd'utiliser votre hotte pour la premièrefois.En cas de doute, demandez à une so-ciété de ramona...
Page 36 - Eau de condensation
Installation *INSTALLATION* 36 Eau de condensation Si la conduite d'évacuation d'air est ins-tallée, par exemple dans des piècesfroides ou des greniers, les différencesde température peuvent entraîner la for-mation d'eau de condensation dans laconduite d'évacuation d'air. Pour réduireles différences...
Page 38 - Branchement électrique; Risque d’incendie en cas de sur-
Installation *INSTALLATION* 38 Branchement électrique La hotte est équipée en série d'un rac-cordement prêt à l'emploi à une prise desécurité.Si la prise n’est pas facilement acces-sible ou si un raccordement fixe est pré-vu, vérifiez qu’un dispositif de section-nement de chacun des pôles est prévus...
Page 40 - Caractéristiques techniques; Disponible en option pour fonctionnement en mode recyclage
Caractéristiques techniques 40 Moteur de ventilateur 80 W Éclairage de la table de cuisson 3 x 3 W Puissance totale de raccordement 89 W Tension réseau, fréquence AC 230 V, 50 Hz Fusible 10 A Longueur du câble d’alimentation électrique 1,5 m Poids DA 6698 W 26 kg Module Wi-Fi Bande de fréquence 2,40...
Page 41 - Fiche relative aux hottes domestiques
Caractéristiques techniques 41 Fiche relative aux hottes domestiques selon règlement délégué (UE) N° 65/2014 et règlement (UE) N°66/2014 MIELE Identification du modèle DA 6698 W Consommation énergétique annuelle (AEC hotte ) 24,6 kWh par an Classe d’efficacité énergétique A++ Indice d'efficacité éne...