Daikin FWT-CT - Manuel d'utilisation

Daikin FWT-CT

Climatiseur Daikin FWT-CT - Manuel d'utilisation, à lire gratuitement en ligne au format PDF. Nous espérons que cela vous aidera à résoudre toutes les questions que vous pourriez avoir. Si vous avez encore des questions, contactez-nous via le formulaire de contact.

1 Page 1
2 Page 2
3 Page 3
4 Page 4
5 Page 5
6 Page 6
7 Page 7
8 Page 8
9 Page 9
10 Page 10
11 Page 11
12 Page 12
13 Page 13
14 Page 14
15 Page 15
16 Page 16
17 Page 17
18 Page 18
19 Page 19
20 Page 20
21 Page 21
22 Page 22
23 Page 23
24 Page 24
25 Page 25
26 Page 26
27 Page 27
28 Page 28
29 Page 29
30 Page 30
31 Page 31
Page: / 31
Téléchargement du manuel

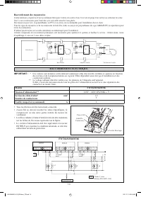
INSTALLATION
MANUAL

IM-WMJW-0312(0)-DAIKIN (DENV)

Part No.: R08019037507

MODELS
FWT02CATNMV1
FWT03CATNMV1
FWT04CATNMV1
FWT05CATNMV1
FWT06CATNMV1

Installation Manual

Chilled Water Fan Coil Units

Installationshandbuch

Kaltwasser-Ventilator Luftkühler

Manuel d’installation

Ventilo-convecteur à eau glacée

Installatiehandboek

Koud Water-Ventilator Luchtkoeler

Manual de instalación

Unidades de serpentín de ventilador de agua fría

Manuale Di Installazione

Unità fan coil ad acqua fredda

Εγχειρίδιο εγκατάστασης

Μονάδες πηνίου του ανεμιστήρα για το παγωμένó νερο

Manual De Instalação

Unidades de bobina de ventilador de água refrigerante

Руководство По Установке

ВентилЯторные доводчики с водЯным охлаждением

Kurulum Kılavuzu

So¤uk su fan bobin üniteleri

English

Deutsch

Français

Nederlands

Español

Italiano

Ελληνικά

Português

Русский

Türkçe

CVR IM-WMJW-0312(0)DKdenv_EN.ind1 1

CVR IM-WMJW-0312(0)DKdenv_EN.ind1 1

10/5/12 3:00:07 PM

10/5/12 3:00:07 PM

„Téléchargement du manuel“ signifie que vous devez attendre que le fichier soit complètement chargé avant de pouvoir le lire en ligne. Certains manuels sont très volumineux, et le temps de chargement dépend de la vitesse de votre connexion Internet.

Autres modèles de climatiseurs Daikin

Tous les climatiseurs Daikin