Frigidaire FFTR2045VS - Notice d'Installation

Réfrigérateur Frigidaire FFTR2045VS - Notice d'Installation, à lire gratuitement en ligne au format PDF. Nous espérons que cela vous aidera à résoudre toutes les questions que vous pourriez avoir. Si vous avez encore des questions, contactez-nous via le formulaire de contact.
Table des matières:
- Page 2 – Table des matières
- Page 3 – SÉCURITÉ DU PRODUIT
- Page 4 – SANTÉ ET SÉCURITÉ; VEUILLEZ LIRE LA GARANTIE CI-JOINTE; GÉNÉRALITÉS; L’UTILISATEUR EN VUE D’UNE CONSULTATION ULTÉRIEURE.; EXIGENCES GÉNÉRALES D’INSTALLATION; de règlementations émanant de toute autre autorité locale.; CET APPAREIL EST LOURD. UTILISER DE L’ÉQUIPEMENT
- Page 5 – de gaz n’alimente la cuisinière.; NE PAS; installer une valve derrière la cuisinière.; MISE À NIVEAU; EMPLACEMENT
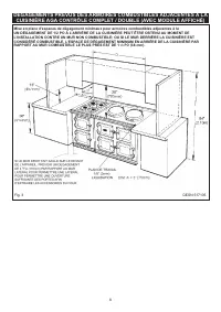
- Page 6 – à l’arrière de chaque plaque peut être retirée.; DIMENSIONS DE LA CUISINIÈRE; être augmenté au total de; EN SURPLOMB; ** POSITION DU CONDUIT D’ALIMENTATION DE GAZ VERS LE MODULE
- Page 8 – RAPPORT AU MUR COMBUSTIBLE LE PLUS PRÈS EST DE 1
- Page 9 – DONNÉES TECHNIQUES
- Page 10 – ET PRESSION) ET QUE L’AJUSTEMENT DE L’APPAREIL SONT COMPATIBLES.; réglementations pertinentes concernant la ventilation.; AVERTISSEMENT : DANGER DE CHOC ÉLECTRIQUE; et injonctions locales.; INSTALLATION
- Page 11 – SÉQUENCE ET PROCÉDURE D’INSTALLATION
- Page 12 – VEUILLEZ NOTER :
- Page 13 – SEULEMENT
- Page 15 – Branchements électriques; Risque de choc électrique
- Page 16 – Méthode du câblage de l’alimentation
- Page 17 – verrouillez-la en place en serrant jusqu’au fond les deux vis M6.
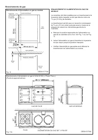
- Page 18 – Branchements de gaz
- Page 19 – Test de pression
- Page 20 – 7 Remplacez la plaque du dessus du Module tel que suit :
- Page 22 – NOTES D’ENTRETIEN
- Page 23 – Vérifiez l’opération du contrôle du grill ou de l’ampoule.
- Page 25 – Accès au régulateur du gaz est tel que suit :-
- Page 30 – EFFECTUER L’ENTRETIEN
07/15 EINS 517028
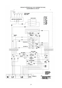
MODULE INTÉGRÉ TC/DC (FFD)
(avec brûleur au gaz sur la cuisinière)
À utiliser aux États-Unis / Canada
Guide
d’installation
VEUILLEZ LIRE CES INSTRUCTIONS AVANT DE DÉBUTER L’INSTALLATION DE ET APPAREIL.
IMPORTANT :
CONSERVEZ LES INSTRUCTIONS POUR RÉFÉRENCE ULTÉRIEURE
IMPORTANT :
CONSERVER CES INSTRUCTIONS POUR RÉFÉRENCE FUTURE
AVERTISSEMENT : Si les instructions de ce manuel ne sont pas suivies à la lettre,
un feu ou une explosion peut s’en suivre, entraînant des dommages matériels,
des blessures, ou la mort.
Ne rangez pas d’essence ou d’autres produits émettant des vapeurs près de cet
appareil, ou de tout autre appareil.
QUE FAIRE SI VOUS SENTEZ DU GAZ
.
N’essayez pas d’activer un appareil.
.
Ne touchez à aucune prise électrique
.
N’utilisez aucun téléphone de votre édifice.
.
Appelez immédiatement votre fournisseur de gaz à partir du téléphone d’un
voisin.
Suivez les instructions de vos fournisseurs de gaz
.
Si vous n’arrivez pas à rejoindre le fournisseur de gaz, appelez les pompiers.
L’installation et l’entretien doivent être effectués par un installateur qualifié, une
agence d’entretien, ou le fournisseur de gaz.
„Téléchargement du manuel“ signifie que vous devez attendre que le fichier soit complètement chargé avant de pouvoir le lire en ligne. Certains manuels sont très volumineux, et le temps de chargement dépend de la vitesse de votre connexion Internet.
Résumé
Table des matières Sécurité du produit 3 Considérations générale 4 Santé et sécurité 4 Exigences générales d’installation 4 Emplacement 5 Caractéristiques - AGA Contrôle complet (Total control, TC3) / 6 Contrôle double (Dual control, DC3) avec module intégré TC/DC (plaque au gaz) (TC3M/DC3M) Caracté...
SÉCURITÉ DU PRODUIT 3 MEANING/DESCRIPTION SIGNIFICATION/DESCRIPTION SYMBOL WARNING/CAUTION An appropriate safety instruction should be followed or caution to a potential hazard exists. AVERTISSEMENT Une consigne de sécurité appropriée doivent être suivies ou garde d’un danger potentiel exists. DANGE...
SANTÉ ET SÉCURITÉ Protection du consommateurEn tant que fabricant responsable, nous mettons tout en œuvre pour que nos produits soient conçus et fabriqués de façon à répondre aux normes de sécurité en vigueur, si installés et utilisés de façon appropriée. VEUILLEZ LIRE LA GARANTIE CI-JOINTE Toute mo...