KitchenAid KVWC906KSS - Notice

Hotte de cuisine KitchenAid KVWC906KSS - Notice, à lire gratuitement en ligne au format PDF. Nous espérons que cela vous aidera à résoudre toutes les questions que vous pourriez avoir. Si vous avez encore des questions, contactez-nous via le formulaire de contact.
Table des matières:
- Page 1 – DIMENSIONS DU PRODUIT; VUE DE FACE; po; A. Opercule arrachable du couvercle du boîtier de; NUMÉRO DE MODÈLE DU PRODUIT : KVWC906KSS et KVWC908KSS; Spécifications électriques :; raccorder le cuivre à l’aluminium.; po
- Page 2 – DIMENSIONS D’INSTALLATION; Installations alternatives avec cache-conduit pleine largeur; minimum; Hotte
- Page 3 – Méthodes d’évacuation; Évacuation par le toit; EXIGENCES D’ÉVACUATION; Pour un fonctionnement efficace et silencieux :
- Page 4 – Calcul de la longueur du circuit d’évacuation; tous les composants utilisés dans le circuit.; Composant; Exemple de circuit d’évacuation; bouche de décharge murale
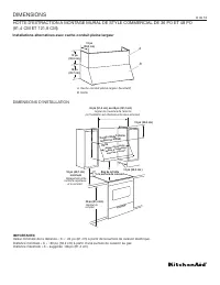
DIMENSIONS
HOTTE D’EXTRACTION À MONTAGE MURAL DE STYLE COMMERCIAL DE 36 PO ET 48 PO
(91,4 CM ET 121,9 CM)
5 de 12
W11548782A
DIMENSIONS DU PRODUIT
VUE DE FACE
CL
18 po (45,7 cm)
12 po (30,5 cm)
36 po (91,4 cm)
48 po (121,9 cm)
18 po (45,9 cm) pour une hotte de 48 po (121,9 cm)
12
po (30,6 cm) pour une hotte de 36 po (91,4 cm)
(8,1 cm)
3
po
6 po (16,5 cm)
25 po (63,5 cm)
1
/
16
1
/
16
3
/
16
1
/
2
VUE ARRIÈRE
A. Opercule arrachable du couvercle du boîtier de
connexion
B. Haut de la hotte
C. Support en bois
D. Bas de la hotte
NUMÉRO DE MODÈLE DU PRODUIT : KVWC906KSS et KVWC908KSS
AVERTISSEMENT :
Pour réduire le risque d’incendie, de décharge électrique ou de blessures, lire les INSTRUCTIONS IMPORTANTES
DE SÉCURITÉ du guide d’utilisation de votre appareil avant de faire fonctionner cet appareil.
Spécifications électriques :
■
L’appareil doit être alimenté par un circuit de 120 V CA à 60 Hz seulement et protégé par fusible de 15 A.
■
Si le domicile possède un câblage en aluminium, suivre la procédure ci-dessous :
Connecter le câblage en aluminium en utilisant des capuchons ou des outils spécialement conçus et homologués UL pour
raccorder le cuivre à l’aluminium.
Suivre la procédure recommandée par le fabricant de connecteurs électriques. Les raccordements aluminium/cuivre doivent satisfaire
aux prescriptions des codes locaux et de l’industrie, et être conformes aux pratiques de câblage reconnues.
A
B
C
CL
(45,7 cm)
18 po
D
18
po (47,8 cm) pour une hotte de 48 po (121,9 cm)
12
po (32,5 cm) pour une hotte de 36 po (91,4 cm)
(24,4 cm)
9 po
13
/
16
13
/
16
5
/
8
„Téléchargement du manuel“ signifie que vous devez attendre que le fichier soit complètement chargé avant de pouvoir le lire en ligne. Certains manuels sont très volumineux, et le temps de chargement dépend de la vitesse de votre connexion Internet.
Autres Manuels pour KitchenAid KVWC906KSS
Résumé
DIMENSIONS HOTTE D’EXTRACTION À MONTAGE MURAL DE STYLE COMMERCIAL DE 36 PO ET 48 PO (91,4 CM ET 121,9 CM) 5 de 12 W11548782A DIMENSIONS DU PRODUIT VUE DE FACE CL 18 po (45,7 cm) 12 po (30,5 cm) 36 po (91,4 cm) 48 po (121,9 cm) 18 po (45,9 cm) pour une hotte de 48 po (121,9 cm)12 po (30,6 cm) pour un...
DIMENSIONS HOTTE D’EXTRACTION À MONTAGE MURAL DE STYLE COMMERCIAL DE 36 PO ET 48 PO (91,4 CM ET 121,9 CM) 6 de 12 DIMENSIONS D’INSTALLATION IMPORTANTE: Valeur minimale de la distance « X » : 24 po (61 cm) à partir de la surface de cuisson électrique.Distance minimale « X » : 30 po (76,2 cm) à partir...
DIMENSIONS HOTTE D’EXTRACTION À MONTAGE MURAL DE STYLE COMMERCIAL DE 36 PO ET 48 PO (91,4 CM ET 121,9 CM) 7 de 12 Méthodes d’évacuation Installations d’évacuation typiques avec système de moteur de ventilateur interne Un circuit d’évacuation en conduit rond de 10 po (25,4 cm) est nécessaire pour l’i...