Maytag MDB7959SHZ - Manuels

Maytag MDB7959SHZ - Notice, Manuel d'utilisation en ligne au format PDF.

1 Page 1
2 Page 2
3 Page 3
4 Page 4
5 Page 5
6 Page 6
7 Page 7
8 Page 8
9 Page 9
10 Page 10
11 Page 11
12 Page 12
13 Page 13
14 Page 14
15 Page 15
16 Page 16
17 Page 17
18 Page 18
19 Page 19
20 Page 20
21 Page 21
22 Page 22
23 Page 23
24 Page 24
25 Page 25
26 Page 26

Résumé

Page 2 - TABLE DES MATIÈRES

52 TABLE DES MATIÈRES SÉCURITÉ DU LAVE-VAISSELLE ................................. 53EXIGENCES D’INSTALLATION ..................................... 54 Outils et pièces ....................................................................... 54 Exigences d’emplacement ....................................

Page 3 - SÉCURITÉ DU LAVE-VAISSELLE; Risque de basculement; AVERTISSEMENT

53 SÉCURITÉ DU LAVE-VAISSELLE Il faut : ■ Ouvrir lentement la porte du lave-vaisselle tandis qu’une autre personne saisit l’arrière de l’appareil. Enlever le matériau d’expédition et le tuyau de vidange. Fermer la porte du lave- vaisselle; elle doit s’enclencher. REMARQUE : Chaque lave-vaisselle a é...

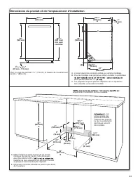
Page 4 - EXIGENCES D’INSTALLATION; OUTILS ET PIÈCES; Toutes les installations; Autres articles utiles pouvant être nécessaires :

54 EXIGENCES D’INSTALLATION OUTILS ET PIÈCES Rassembler les outils et composants nécessaires avant d’entreprendre l’installation. Lire et observer les instructions fournies avec chacun des outils de la liste ci-dessous. Toutes les installations Outils nécessaires : Pince Tournevis à lame plate Tourn...

1 Page 1
2 Page 2
3 Page 3
4 Page 4
5 Page 5
6 Page 6
7 Page 7
8 Page 8
9 Page 9
10 Page 10
11 Page 11
12 Page 12
13 Page 13
14 Page 14
15 Page 15
16 Page 16
17 Page 17
18 Page 18

Résumé

Page 1 - DISHWASHER; Sécurité du lave-vaisselle

17 MERCI d’avoir acheté ce produit de grande qualité. Enregistrez votre nouveau lave-vaisselle au www.maytag.com. Au Canada, consultez notre site Web au www.maytag.ca. Pour référence ultérieure, consignez par écrit les numéros de modèle et de série de votre produit. Vous les trouverez près de la por...

Page 2 - Risque de basculement; IMPORTANTES INSTRUCTIONS DE SÉCURITÉ; AVERTISSEMENT; CONSERVEZ CES INSTRUCTIONS

18 INSTRUCTIONS DE MISE À LA TERRE CONSERVEZ CES INSTRUCTIONS ■ Pour un lave-vaisselle relié à la terre, branché avec un cordon : Le lave-vaisselle doit être relié à la terre. En cas d'un mauvais fonctionnement ou d'une panne, la mise à terre réduira le risque d'un choc électrique en fournissant le ...

Page 3 - Quoi de neuf dans votre lave-vaisselle; Énergie; Agent de rinçage; Pièces et caractéristiques

19 Quoi de neuf dans votre lave-vaisselle Énergie Félicitations pour l’achat de votre lave-vaisselle éconergique à faible consommation d’eau! Pour nettoyer les articles, ce lave-vaisselle asperge la vaisselle d’eau, puis fait une pause pour permettre au détergent d’imprégner et de dissoudre les sale...

Maytag Manuels