Miele PDR 510 COP [EL] - Manuels

Miele PDR 510 COP [EL] - Manuel d'utilisation, Notice, Notice d'Installation, Guide rapide en ligne au format PDF.
Manuel d'utilisation Miele PDR 510 COP [EL]








































































Résumé
Table des matières 2 Votre contribution à la protection de l'environnement ................................................ 5 Consignes de sécurité et mises en garde .................................................................... 6 Utilisation conforme .............................................
Table des matières 3 Tableau du mode exploitant .............................................................................................. 30 Température batterie de chauffe ................................................................................... 36Température de l’air de séchage .......
Table des matières 4 Monnayeur ........................................................................................................................ 70 Caractéristiques techniques .......................................................................................... 71 Caractéristiques techni...
Votre contribution à la protection de l'environnement 5 Nos emballages Nos emballages protègent votre sèche-linge des dommages quipeuvent survenir pendant le transport. Nous les sélectionnons enfonction de critères écologiques qui permettent de les recycler. En participant au recyclage de vos emball...
Consignes de sécurité et mises en garde 6 Veuillez impérativement lire ce mode d'emploi. Ce sèche-linge répond aux réglementations de sécurité en vigueur. Toute utilisation nonconforme peut toutefois causer des dommages corporels et matériels. Lisez attentivement le mode d'emploi avant de mettre l...
Consignes de sécurité et mises en garde 7 Tenez les enfants de moins de huit ans éloignés de l'appareil à moins qu'ils ne soient sous étroite surveillance. Les enfants de huit ans et plus ne sont autorisés à utiliser sèche-linge sans la présence d'un adulte que s'il leur a été expliqué comment l...
Consignes de sécurité et mises en garde 8 Assurez-vous que le tambour est à l’arrêt avant de décharger votre linge. N'approchez jamais votre main d'un tambour qui tourne encore. Avertissement : n'arrêtez jamais le sèche-linge avant la fin du programme. Une excep- tion toutefois, si vous sortez l...
Consignes de sécurité et mises en garde 10 Si un conduit d'évacuation déjà utilisé est disponible, il faut le contrôler avant de l'installersur le sèche-linge. La conduite d'évacuation d'air ne doit pas être en dépression. Il existe un risque d'asphyxie et d'intoxication en refoulant des gaz brûlé...
Consignes de sécurité et mises en garde 11 Le sèche-linge ne doit pas fonctionner sans filtre à peluches ou avec un filtre à peluches endommagé. Cela pourrait entraîner des dysfonctionnements. Les peluches obstruent lesconduits d'air, le chauffage et l'évacuation ce qui peut provoquer un incendie....
Consignes de sécurité et mises en garde 12 Pour les éléments inox, le principe suivant s'applique : les surfaces en inox ne doivent pas entrer en contact avec des produits de nettoyage et dedésinfection qui contiennent du chlore ou de l'hypochlorite de sodium. Ces produitspeuvent provoquer la corr...
Description de la machine 13 PDR 510 (chauffage électrique) 1 2 3 4 6 5 7 8 9 10 a Bandeau de commande avec sélecteur rotatif b Porte c Clapet du filtre à peluches d 4 pieds à vis réglables en hauteur e Raccordement électrique f Logement pour module de communication g Ouvertures d'aspiration pour l'...
Utilisation 14 Appareils avec commande par humidité résiduelle 1 2 3 4 5 6 7 8 9 a Bandeau de commande b Touches sensitives pour paliers de séchage c Affichages d’état S’allument en cas de besoin d Touche sensitive active la cadence du ventilateur pour un séchage optimal des textiles légers...
Utilisation 15 Paliers de sé-chage - Touche sensitive = „Séch.normal +“ - Touche sensitive = „Séchage normal“ - Touche sensitive = „Séchage fer à repasser“ - Touche sensitive = „Séchage repasseuse“ - Touche sensitive : fonction « Literie » Programmes deséchage - Position = program...
Utilisation 17 Niveaux de tem-pérature (TOP) - Touche sensitive = Palier de température « élevé » - Touche sensitive = Palier de température « moyen » - Touche sensitive = Palier de température « faible » - Touche sensitive = Palier de température « froid » Minuterie - Position 5 = Progr...
Utilisation 20 Fonctionnement du bandeau de commande Les touches sensitives réagissent au contact du bout des doigts. Lasélection est possible tant que la touche sensitive correspondanteest éclairée. Une touche sensitive avec un éclairage clair signifie qu'elle est actuel-lement sélectionnée. Une to...
Première mise en service 21 Dommages corporels ou matériels dus à une mauvaise installa- tion.Une mauvaise installation du sèche-linge peut causer des dom-mages corporels ou matériels.Installez et raccordez le sèche-linge correctement avant sa pre-mière mise en service. Respectez les instructions ...
Séchage 22 1. « Conseils d'entretien de votre linge ». Laver votre lingeavant de le sécher Lavez soigneusement les textiles très sales. Utilisez suffisamment delessive et lavez à haute température. En cas de doute, lavez le lingeplusieurs fois. Si des produits chimiques industriels ont été utilisés ...
Séchage 23 Remplir le sèche-linge de linge Les textiles peuvent être endommagés.Avant de charger votre sèche-linge, lisez tout d'abord le chapitre« 1. Conseils d'entretien de votre linge ». Ouvrez la porte. Remplissez le sèche-linge de linge. Risque de dommages liés à du linge coincé.Les textile...
Séchage 25 4. Démarrer un programme Démarrer un pro-gramme Effleurez la touche sensitive Start/Stop clignotante. La touche sensitive Start/Stop s'allume. Déroulement de programme - Si vous avez paramétré un départ différé, l'appareil commence par décompter le temps restant jusqu'au départ du prog...
Tableau des programmes 26 Bloc de programmes « Label » Nom de programme Type de textile approprié Paliers de séchage sélectionnables (humidité résiduelle en %) Options activables Quantité de charge Coton Textiles en coton norma-lement humides - Séchage repasseuse (40 %) - Séchage fer à repas- se...
Tableau des programmes 27 Bloc de programmes « Standard » Nom de programme Type de textile approprié Paliers de séchage sélectionnables (humidité résiduelle en %) Options activables Quantité de charge Blanc/Couleurs Textiles en lin/ coton mo-nocouche ou multi-couches - Séchage repasseuse (40 %) - ...
Modifier le déroulement d'un programme 28 Changer le programme en cours Une nouvelle sélection de programme n'est plus possible pendant leprogramme en cours (protection contre toute modification involon-taire). Pour pouvoir choisir un nouveau programme, vous devez toutd'abord annuler celui qui est e...
Modifier le déroulement d'un programme 29 Fermez la porte. Effleurez la touche sensitive Départ/Arrêt pour que le départ différé se poursuive. Temps restant Toute modification du programme en cours peut entraîner une modifi-cation du temps affiché.
Mode exploitant (mode de programmation) 36 Température batterie de chauffe Valeur de réglage dans l'affichage Température 70 °C/158 °F 75 °C/167 °F 80 °C/176 °F 85 °C/185 °F 90 °C/194 °F 95 °C/203 °F 100 °C/212 °F 105 °C/221 °F 110 °C/230 °F 115 °C/239 °F 120 °C/248 ...
Mode exploitant (mode de programmation) 38 Valeur de réglage dans l'affichage secondes 135 s 140 s 145 s 150 s 155 s 160 s 165 s 170 s 175 s 180 s 185 s 190 s 195 s 200 s 205 s 210 s 215 s 220 s 225 s 230 s 235 s 240 s 245 s 250...
Mode exploitant (mode de programmation) 39 Terminer le mode de programmation Pour quitter le mode de programmation, tournez le sélecteur rotatif du sèche-linge sur laposition . Le sèche-linge est arrêté.
Mise en réseau 40 Instructions d'appariement Pour connecter le sèche-linge à votre réseau, procédez comme suit. Ouvrir le Mode exploitant Allumez l'appareil en tournant le commutateur rotatif de la position de l'interrupteur sur n'importe quelle autre position. Ouvrez la porte du sèche-linge....
Mise en réseau 41 Continuez ensuite avec le Device Connector dans Miele MOVE. Configurer la connexion réseau via câble LAN Pour une connexion réseau câblée, le module de communication "XKM 3200 WL PLT"disponible en option est nécessaire. Au niveau exploitant sélectionnez avec les touch...
Mise en réseau 42 Puissance du signal Wi-Fi Signification MDU * 76 - 100 % 3/3** En général, fonctionnement fiable possible 51 - 75 % 2/3 26 - 50 % 1/3 En général, fonctionnement possible 1 - 25 % 0/3 En général, fonctionnement fiable impossible 0 % Fonctionnement impossible * s'affiche sur l'ap...
Mise en réseau 43 Ethernet Ethernet Technologie de transmission standard pour des réseaux reliés par câble à différentes vi-tesses de transmission (10/100/1.000 Mbit/s). IEEE Institute of Electrical and Electronics Engineers Association professionnelle mondiale d’ingénieurs provenant principalement ...
Mise en réseau 47 Exemple pour un réseau Wi-Fi 1 Internet 2 Routeur WiFi = 192.168.1.1 3 PC = 192.168.1.2 4 Imprimante = 192.168.1.3 5 Smartphone = 192.168.1.4 6 Ordinateur portable = 192.168.1.5 7 Lave-linge = 192.168.1.6 Le routeur attribue automatiquement à chaque participant une adresse IP (DHCP...
Nettoyage et entretien 48 Nettoyer le filtre à peluches Un filtre à peluches en deux parties situé dans la zone de guidage del'air recueille les peluches qui s'accumulent. Retirez et démontez lefiltre à peluches pour le nettoyer. Contrôlez et nettoyez le filtre à peluches au plus tard lors du mes-sa...
Nettoyage et entretien 49 Démonter le filtreà peluches Flusensieb reinigen Ein zweiteiliges Flusensieb im Luftfüh-rungsbereich fängt anfallende Flusenauf. Es wird zur Reinigung entnommenund demontiert. , Kontrollieren und reinigen Sie das Flusensieb spätestens bei derPrüfmeldung: Luftwege reinigen ....
Nettoyage et entretien 50 Insérer le filtre àpeluches En cas d'encrassement important et visible, nettoyez également lazone de guidage de l'air avant de remettre en place le filtre à pe-luches nettoyé. Voir page suivante. Insérez les filtres à peluches intérieur et extérieur l'un dans l'autre. T...
Nettoyage et entretien 51 Nettoyer le tam-bour et les partiesextérieures de lacarrosserie Il existe un risque de choc électrique ! Un sèche-linge qui n'est pas complètement déconnecté de l'ali-mentation électrique ne doit pas être nettoyé ou entretenu.Avant de procéder au nettoyage ou à l'entretie...
Nettoyage et entretien 52 Luftführungsbereich reinigen Den Luftführungsbereich von Zeit zuZeit kontrollieren und reinigen, wenneine starke Verschmutzung vorliegt! Schnellreinigung ^ Flusen entfernen Sie mit dem Staub-sauger – von der Abdeckung im Einfüllbereich (oben). – aus dem Luftführungsbereich ...
Nettoyage et entretien 53 - Couvercle dans la zone de remplissage Ne retirez le couvercle de la zone de remplissage qu'en cas deforte obstruction. Retirer le couvercle Regardez dans le tambour. – Abdeckung im Einfüllbereich , Die Abdeckung im Einfüllbereich sollten Sie nur im Falle einer extremsta...
Nettoyage et entretien 54 Appuyez sur le couvercle jusqu'à ce que vous entendiez un déclicvers le côté opposé. Sécuriser le cou-vercle Regardez dans le tambour. Sous le couvercle, à gauche et à droite, vissez les vis Torx à traversles trous ronds.
En cas d'anomalie 55 En cas d'anomalie Message Cause et solution L'écran reste sombre. Le sèche-linge n'est pas alimenté. Contrôlez le connecteur, l'interrupteur principal et les fu-sibles (côté installation). Problème Cause et solution L'eau condensée s'écoulesur une zone imprévisible. L'écouleme...
En cas d'anomalie 56 Problème Cause et solution Retirez toutes les peluches. La zone de circulation d'air est par exemple obstruée pardes cheveux et des peluches. Nettoyez la zone du conduit d'air. Vous pouvez retirer la protection dans la zone d'ouver-ture pour nettoyer la zone du conduit d'a...
Installation *INSTALLATION* 59 Vue de l’arrière 1 2 3 4 5 6 a Raccordement électrique b Logement pour module de communication c Ouvertures d'aspiration pour l'air de séchage d Raccord d’évacuation d’air Ø 100 mm e Raccord pour boîtier de communication f Boîtier de communication (en option)pour la co...
Installation *INSTALLATION* 60 Risques de blessures et de dommages en cas de fixation man- quante du sèche-linge.Si le sèche-linge est installé sur un socle, il risque de glisser et detomber du socle s'il n'est pas sécurisé.En cas d'installation sur un socle par l'utilisateur, le sèche-lingedoit ê...
Installation *INSTALLATION* 61 Aufstellen Transportieren Transportieren Sie den Trockner zumAufstellungsort. , Achten Sie beim Transport des Trockners auf dessen Standsicher-heit. Ausrichten , Im Schwenkbereich der Trock- nertür darf keine abschließbare Tür,Schiebetür oder entgegengesetztangeschlage...
Installation *INSTALLATION* 62 Raccordement électrique Le branchement électrique doit être réalisé par un électricien forméet habilité. Le branchement électrique doit impérativement être effectué sur une installation électrique conforme aux règlements, aux prescrip-tions et aux directives du pays ...
Installation *INSTALLATION* 63 Si les réglementations locales et nationales en matière d'installa- tion exigent une liaison équipotentielle, une liaison équipotentielleavec une bonne liaison des contacts doit être établie. La liaison équi-potentielle doit être effectuée à un courant de fuite de &g...
Installation *INSTALLATION* 65 Tableau I Composants Longueur detuyau équivalente Flexible d’évacuation (alu-flex)* / tuyau (ré-sistance thermique min. 80 °C) – 1 m posé droit/ ou 1 m tuyau droit – Coude à 45° (rayon de courbure = 0,25 m) – Coude à 90° (rayon de courbure = 0,25 m) 1,0 m 0,6 m 0,8 m L...
Installation *INSTALLATION* 66 A Tuyau de mur, avec insert de grille = 1 x 3,8 m Longueur du tuyau de réfé-rence = 3,8 m B/D 2 coudes, 90° = 2 x 0,8 m longueur équivalente = 1,6 m C 0,5 m de tuyau = 0,5 x 1 m longueur équivalente = 0,5 m Longueur totale de tuyau = 5,9 m Résultat : La longueur totale...
Installation *INSTALLATION* 67 Conduit d’éva-cuation d’air avecdes tuyaux enfi-chés Il vous faut : - un raccord (fourni). - Tuyaux et raccords du commerce. N'utilisez que des matériaux résistants à la chaleur, avec une résis-tance à la température de 80 °C min. Abluftführung mit gestecktenRohren Sie...
Installation *INSTALLATION* 68 Conduite d’éva-cuation collective Un conduit collecteur d'évacuation d'air n'est autorisé que dansdes cas exceptionnels. La conduite d’évacuation collective doitêtre accepté par le ramoneur compétent. Il faut installer sur chaque séche-linge, un clapet anti-retour. D...
Accessoires en option 69 Des accessoires ne peuvent être rajoutés ou montés que s'ils sont expressément autori- sés par Miele. Si d’autres pièces sont rajoutées ou montées, les prétentions à la garantieet/ou fondées sur la responsabilité du fait du produit deviennent caduques. Boîtier de communica...
Accessoires en option 70 Configuration du réseau réglages d'usine Vous pouvez réinitialiser tous les paramètres du module de communication ou de votremodule Wi-Fi intégré aux réglages d'usine. Réinitialisez la configuration du réseau si vouséliminez votre appareil, le vendez ou mettez un appareil d'...
Caractéristiques techniques 71 Caractéristiques techniques PDR 510 EL Hauteur 1020 mm Largeur 700 mm Profondeur 763 mm Profondeur avec porte ouverte 1 293 mm Capacité du tambour 250 l Capacité de charge maximale (lingesec) 10 kg Tension électrique voir plaque signalétique Protection par fusibles (cô...
Notice Miele PDR 510 COP [EL]






































































































































































Notice d'Installation Miele PDR 510 COP [EL]




































































































































































































Résumé
fr - Table des matières 39 Consignes d'installation ............................................................................................................. 40 Conditions d'installation ................................................................................................................
fr - Consignes d'installation 40 Conditions d'installation Dommages corporels ou matériels dus à une mauvaise installation. Une mauvaise installation du sèche-linge peut causer des dommages corporels ou maté-riels.Seul un professionnel agréé par Miele ou le service après-vente Miele doit se charge...
fr - Consignes d'installation 41 Installez selon les directives locales, un disjoncteur différentiel (RCD) tous courants im-munisé 30 mA de type B . Après l'installation du sèche-linge, une liaison équipotentielle doit être établie. La liaison équipotentielle doit être conforme aux réglementations...
fr - Consignes d'installation 43 Tableau I Composants Longueur de tuyau équiva-lente Flexible d’évacuation (alu-flex)* / tuyau (résistance thermique min.80 °C) – 1 m posé droit/ ou 1 m tuyau droit – Coude à 45° (rayon de courbure = 0,25 m) – Coude à 90° (rayon de courbure = 0,25 m) 1,0 m 0,6 m 0,8 m...
fr - Consignes d'installation 44 A Tuyau de mur, avec insert de grille = 1 x 3,8 m Longueur du tuyau de référence = 3,8 m B/D 2 coudes, 90° = 2 x 0,8 m longueur équivalente = 1,6 m C 0,5 m de tuyau = 0,5 x 1 m longueur équivalente = 0,5 m Longueur totale de tuyau = 5,9 m Résultat : La longueur total...
fr - Consignes d'installation 45 Abluftführung mit gestecktenRohren Sie benötigen – den Anschlussstutzen (liegt bei). – Rohre und Übergangsstücke aus dem Handel. Es dürfen nur wärmebeständige Ma-terialien mit einer Temperaturbestän-digkeit von min. 80°C verwendetwerden. ^ Installieren Sie den Anschl...
fr - Consignes d'installation 46 Abluftsammelleitung , Ausnahmen bei der Auslegung der Abluftführung sind gemäß Bau-ordnung der Länder auszuführen.Fragen Sie den Bezirksschornstein-fegermeister/die Bezirksschornstein-fegermeisterin. , Sie müssen pro Trockner eine Rückstauklappe installieren! , Bei N...
fr - Consignes d'installation 47 XKM 3200 WL PLT Le module de communication Miele disponible en option peut être utilisé pour établir uneconnexion de données entre l'appareil Miele Professional et un appareil de traitement dedonnées utilisant la norme Ethernet ou Wi-Fi.Le module de communication est...
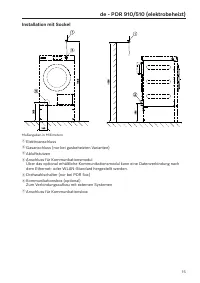
fr - PDR 910/510, (chauffage électrique) 48 Raccordements de l’appareil Dimensions en millimètres a Raccordement électrique b Raccordement au gaz (uniquement pour variantes chauffées au gaz) c Raccord d’évacuation d Raccord pour module de communicationLe module de communication disponible en option ...
fr - PDR 910/510, (chauffage électrique) 49 Raccordements de l’appareil avec socle Dimensions en millimètres a Raccordement électrique b Raccordement au gaz (uniquement pour variantes chauffées au gaz) c Raccord d’évacuation d Raccord pour module de communicationLe module de communication disponible...
fr - PDR 910/510, (chauffage électrique) 51 Installation avec socle Dimensions en millimètres a Raccordement électrique b Raccordement au gaz (uniquement pour variantes chauffées au gaz) c Raccord d’évacuation d Raccord pour module de communicationLe module de communication disponible en option peut...
fr - PDR 910/510, (chauffage électrique) 54 Fixation au sol Dimensions en millimètres B Point de fixation/ trou percé Fixation au sol pour socle Dimensions en millimètres B Point de fixation/ trou percé
fr - Caractéristiques techniques 55 Variantes de tension possibles 1. Variante de tension Raccordement standard Tension électrique 3N AC 400 V Fréquence 50/60 Hz Consommation 8,2 kW Protection électrique par fusibles (côté installation) 3 × 16 A Caractéristique de déclenchement du disjoncteur automa...
fr - Caractéristiques techniques 56 Arrêt en pic de charge (en option) Tension de raccordement des contacts de commande AC 230 V Diamètre minimum du câble d'alimentation 5×1,5 mm² Miele recommande que le raccordement soit effectué à l'aide d'un câble de raccordement flexible et d'une option de décon...
Guide rapide Miele PDR 510 COP [EL]






































































































































Résumé
fr - Table des matières 3 Consignes de sécurité et mises en garde .................................................................... 5 Documentation .................................................................................................................. 5 Utilisation conforme ..............
fr - Table des matières 4 Accessoires en option .................................................................................................... 33 Boîtier de communication ................................................................................................. 33XKM 3200 WL PLT ..........
fr - Consignes de sécurité et mises en garde 5 Veuillez impérativement lire ce mode d'emploi. Documentation Ce document contient un condensé d'informations. Vous pouvez trouver le mode d'emploicomplet et d'autres documents sur le site internet de Miele : https://www.miele.fr/professional/modes-d-e...
fr - Consignes de sécurité et mises en garde 6 Le sèche-linge doit exclusivement servir au séchage de textiles préalablement lavés et dont le fabricant a déclaré qu'ils pouvaient être séchés en machine.Toute autre utilisationpourrait s'avérer dangereuse. Miele décline toute responsabilité en cas d...
fr - Consignes de sécurité et mises en garde 7 L'air de la pièce où se trouve le sèche-linge ne doit contenir aucune vapeur de chlore, de fluor ou autres émanations de solvant. Risque d'incendie ! Pour éviter tout incendie, les textiles suivants ne doivent pas être séchés en machine : - n'ont pa...
fr - Consignes de sécurité et mises en garde 8 Seul un raccordement à une prise de terre conforme garantit un fonctionnement du sèche-linge en toute sécurité. Respectez cette consigne de sécurité élémentaire afin deprévenir tout dommage matériel ou corporel (ex. : décharge électrique). En cas de d...
fr - Consignes de sécurité et mises en garde 10 Ce sèche-linge est équipé d'une ampoule spéciale en raison d'exigences particulières (relatives entre autres à la température, à l'humidité, aux vibrations, à la résistance chi-mique et aux frottements). Cette ampoule spéciale convient uniquement à l...
fr - Consignes de sécurité et mises en garde 11 Tous les objets doivent être retirés des poches du linge à sécher (par exemple briquets, allumettes, clés). Avertissement : n'arrêtez jamais le sèche-linge avant la fin du programme. Une excep- tion toutefois, si vous sortez le linge aussitôt et qu...
fr - Description de la machine 12 PDR 510 (chauffage électrique) 1 2 3 4 6 5 7 8 9 10 a Bandeau de commande avec sélecteur rotatif b Porte c Clapet du filtre à peluches d 4 pieds à vis réglables en hauteur e Raccordement électrique f Logement pour module de communication g Ouvertures d'aspiration po...
fr - Utilisation 13 Appareils avec commande par humidité résiduelle 1 2 3 4 5 6 7 8 9 a Bandeau de commande b Touches sensitives pour paliers de séchage c Affichages d’état S’allument en cas de besoin d Touche sensitive active la cadence du ventilateur pour un séchage optimal des textiles l...
fr - Utilisation 14 Paliers de sé-chage - Touche sensitive = „Séch.normal +“ - Touche sensitive = „Séchage normal“ - Touche sensitive = „Séchage fer à repasser“ - Touche sensitive = „Séchage repasseuse“ - Touche sensitive : fonction « Literie » Programmes deséchage - Position = pr...
fr - Utilisation 16 Niveaux de tem-pérature (TOP) - Touche sensitive = Palier de température « élevé » - Touche sensitive = Palier de température « moyen » - Touche sensitive = Palier de température « faible » - Touche sensitive = Palier de température « froid » Minuterie - Position 5 = ...
fr - Utilisation 19 Fonctionnement du bandeau de commande Les touches sensitives réagissent au contact du bout des doigts. Lasélection est possible tant que la touche sensitive correspondanteest éclairée. Une touche sensitive avec un éclairage clair signifie qu'elle est actuel-lement sélectionnée. U...
fr - Séchage 20 1. « Conseils d'entretien de votre linge ». Laver votre lingeavant de le sécher Lavez soigneusement les textiles très sales. Utilisez suffisamment delessive et lavez à haute température. En cas de doute, lavez le lingeplusieurs fois. Si des produits chimiques industriels ont été util...
fr - Séchage 21 Remplir le sèche-linge de linge Les textiles peuvent être endommagés.Avant de charger votre sèche-linge, lisez tout d'abord le chapitre« 1. Conseils d'entretien de votre linge ». Ouvrez la porte. Remplissez le sèche-linge de linge. Risque de dommages liés à du linge coincé.Les te...
fr - Séchage 23 4. Démarrer un programme Démarrer un pro-gramme Effleurez la touche sensitive Start/Stop clignotante. La touche sensitive Start/Stop s'allume. Déroulement de programme - Si vous avez paramétré un départ différé, l'appareil commence par décompter le temps restant jusqu'au départ du...
fr - Tableau des programmes 24 Bloc de programmes « Label » Nom de programme Type de textile approprié Paliers de séchage sélectionnables (humidité résiduelle en %) Options activables Quantité de charge Coton Textiles en coton norma-lement humides - Séchage repasseuse (40 %) - Séchage fer à repa...
fr - Tableau des programmes 25 Bloc de programmes « Standard » Nom de programme Type de textile approprié Paliers de séchage sélectionnables (humidité résiduelle en %) Options activables Quantité de charge Blanc/Couleurs Textiles en lin/ coton mo-nocouche ou multi-couches - Séchage repasseuse (40 ...
fr - Modifier le déroulement d'un programme 26 Changer le programme en cours Une nouvelle sélection de programme n'est plus possible pendant leprogramme en cours (protection contre toute modification involon-taire). Pour pouvoir choisir un nouveau programme, vous devez toutd'abord annuler celui qui ...
fr - Modifier le déroulement d'un programme 27 Fermez la porte. Effleurez la touche sensitive Départ/Arrêt pour que le départ différé se poursuive. Temps restant Toute modification du programme en cours peut entraîner une modifi-cation du temps affiché.
fr - En cas d'anomalie 28 En cas d'anomalie Message Cause et solution L'écran reste sombre. Le sèche-linge n'est pas alimenté. Contrôlez le connecteur, l'interrupteur principal et les fu-sibles (côté installation). Problème Cause et solution L'eau condensée s'écoulesur une zone imprévisible. L'éco...
fr - En cas d'anomalie 29 Problème Cause et solution Retirez toutes les peluches. La zone de circulation d'air est par exemple obstruée pardes cheveux et des peluches. Nettoyez la zone du conduit d'air. Vous pouvez retirer la protection dans la zone d'ouver-ture pour nettoyer la zone du condui...
fr - Mise en réseau 30 Instructions d'appariement Pour connecter le sèche-linge à votre réseau, procédez comme suit. Ouvrir le Mode exploitant Allumez l'appareil en tournant le commutateur rotatif de la position de l'interrupteur sur n'importe quelle autre position. Ouvrez la porte du sèche-l...
fr - Mise en réseau 31 Continuez ensuite avec le Device Connector dans Miele MOVE. Configurer la connexion réseau via câble LAN Pour une connexion réseau câblée, le module de communication "XKM 3200 WL PLT"disponible en option est nécessaire. Au niveau exploitant sélectionnez avec les ...
fr - Accessoires en option 33 Des accessoires ne peuvent être rajoutés ou montés que s'ils sont expressément autori- sés par Miele. Si d’autres pièces sont rajoutées ou montées, les prétentions à la garantieet/ou fondées sur la responsabilité du fait du produit deviennent caduques. Boîtier de comm...
fr - Accessoires en option 34 Configuration du réseau réglages d'usine Vous pouvez réinitialiser tous les paramètres du module de communication ou de votremodule Wi-Fi intégré aux réglages d'usine. Réinitialisez la configuration du réseau si vouséliminez votre appareil, le vendez ou mettez un appare...
fr - Caractéristiques techniques 35 Caractéristiques techniques PDR 510 EL Hauteur 1020 mm Largeur 700 mm Profondeur 763 mm Profondeur avec porte ouverte 1 293 mm Capacité du tambour 250 l Capacité de charge maximale (lingesec) 10 kg Tension électrique voir plaque signalétique Protection par fusible...
Other Miele Autres Manuals
-
Miele APWM 066 Notice d'Installation
-
Miele APWM 062 Notice d'Installation
-
Miele APWM 065 Notice d'Installation
-
Miele APWM 020 Manuel d'utilisation
-
Miele APWM 020 Notice d'Installation
-
Miele SC Notice d'Installation
-
Miele PR Notice d'Installation
-
Miele FP 900 Notice d'Installation
-
Miele RP 900 Notice d'Installation
-
Miele APWM 019 Manuel d'utilisation
-
Miele APWM 019 Notice d'Installation
-
Miele A 830/1 Manuel d'utilisation
-
Miele TT 86 Manuel d'utilisation
-
Miele RP 1150 Notice d'Installation
-
Miele UG 5010 Notice d'Installation
-
Miele UO 5010 Notice d'Installation
-
Miele APCL 001 Notice d'Installation
-
Miele E 473/2 Manuel d'utilisation
-
Miele APRI 312 Notice d'Installation
-
Miele DOS K 85 flex Notice d'Installation