Page 2 - TABLE OF CONTENTS; TABLE DE MATIÈRES; Page
2 DRYER SAFETY DRYER SAFETY ■ It is recommended that the owner post, in a prominent location, instructions for the customer’s use in the event the customer smells gas. This information should be obtained from your gas supplier. ■ Post the following warning in a prominent location. TABLE OF CONTENTS ...
Page 3 - Risque possible de décès ou de blessure grave si vous ne; Votre sécurité et celle des autres est très importante.; AVERTISSEMENT; QUE FAIRE DANS LE CAS D’UNE ODEUR DE GAZ :
34 SÉCURITÉ DE LA SÉCHEUSE SÉCURITÉ DE LA SÉCHEUSE Risque possible de décès ou de blessure grave si vous ne suivez pas immédiatement les instructions. Risque possible de décès ou de blessure grave si vous ne suivez pas les instructions. Tous les messages de sécurité vous diront quel est le danger po...
Page 4 - SÉCURITÉ DE LA SÉCHEUSE
35 AVERTISSEMENT : L’odorat ne permet pas toujours la détection d’une fuite de gaz. Les distributeurs de gaz recommandent l’emploi d’un détecteur de gaz (homologation UL ou CSA).Pour d'autres informations, contacter le fournisseur de gaz local.En cas de détection d’une fuite de gaz, exécuter les ins...
Page 5 - IMPORTANTES INSTRUCTIONS DE SÉCURITÉ
36 SÉCURITÉ DE LA SÉCHEUSE SÉCURITÉ DE LA SÉCHEUSE IMPORTANT : L’installation au gaz doit être conforme aux codes locaux, ou en l’absence de codes locaux, au Code National d’alimentation au gaz, à la norme ANSI Z223.1/NFPA 54 ou au Code des installations au gaz naturel et au propane, CSA-B149.1.La s...
Page 6 - Outils et pièces
37 Outils requis : Clé à tube de 8 po ou 10 po Tournevis à lame plate Tournevis cruciforme Clé à douille de 1/4 po Pinces (qui ouvre de 1 9 / 16 po) Niveau Couteau utilitaire Tourne-écrou de 1/4 po Cale de bois de 27 po Brides de conduit Couteau à mastic Lampe de poche (facultative) Clés à fourche ...
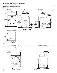
Page 7 - Dimensions/dégagements
38 EXIGENCES D’INSTALLATION EXIGENCES D’INSTALLATION Vue avant Vue de côté Vue arrière Dimensions Dégagements Vue encastrée de face Vue latérale de l’armoire Évacuation par le bas Dimensions/dégagements 0 po (0 mm) Conduit d’évacuation à gauche ou à droite ÉLECTRIQUE Gaz
Page 8 - Exigences concernant l’évacuation; Conduit métallique rigide :; Longueur du système d’évacuation
39 EXIGENCES D’INSTALLATION EXIGENCES D’INSTALLATION Exigences concernant l’évacuation AVERTISSEMENT : Pour réduire le risque d’incendie, cette sécheuse DOIT ÉVACUER L’AIR À L’EXTÉRIEUR. IMPORTANT : Observer les dispositions de tous les codes et règlements en vigueur. ■ Le conduit d’évacuation de la...
Page 9 - Évacuation pour plusieurs sécheuses; Raccordement du conduit d’évacuation; Si on ne peut pas utiliser de clapet d’évacuation
40 EXIGENCES D’INSTALLATION EXIGENCES D’INSTALLATION Pour les systèmes d’évacuation autres que ceux indiqués dans le tableau des systèmes d’évacuation, consulter le revendeur de pièces.Si la sécheuse est installée dans une zone confinée, telle qu’une chambre, une salle de bain ou une armoire, prévoi...
Page 10 - Exigences d’emplacement; EXIGENCES D’INSTALLATION; Instructions d’installation dans un encastrement ou; Exigences d’installation de la sécheuse à gaz
41 IMPORTANT : Ne pas installer ou remiser la sécheuse dans un endroit où elle sera exposée à l’eau ou aux intempéries. C’est à l’utilisateur qu’incombe la responsabilité de réaliser une installation correcte. Il faut : ■ Une prise électrique reliée à la terre située à moins de 6 pi (1,8 m) de la fi...
Page 11 - Mise à la terre de la sécheuse à gaz; Risque de choc électrique; Spécifications électriques – Sécheuse à gaz
42 Mise à la terre de la sécheuse à gaz IMPORTANT : La sécheuse doit être correctement reliée à la terre en conformité avec les codes et règlements locaux en vigueur, ou en l’absence de tels codes, avec le National Electrical Code, ANSI/NFPA 70 – dernière édition, ou le Code canadien des installatio...
Page 12 - Alimentation en gaz; Utiliser une canalisation neuve d'arrivée de gaz
43 IMPORTANT : Observer les dispositions de tous les codes et règlements en vigueur.Cette installation doit être effectuée conformément avec les codes et règlements locaux. En l’absence de code local, l’installation doit satisfaire aux prescriptions de la norme American National Standard, National F...
Page 13 - Type de gaz; Canalisation d’alimentation en gaz
44 Cette sécheuse est équipée pour une alimentation au gaz naturel. Sa conception est homologuée par CSA International pour l’alimentation au gaz propane ou butane avec conversion appropriée. Ne pas entreprendre de convertir la sécheuse pour une utilisation avec un gaz différent de celui indiqué sur...
Page 14 - Spécifications électriques – États-Unis seulement; C’est à l’utilisateur qu’incombe la responsabilité de :; Exigences d’installation de la sécheuse électrique
45 IMPORTANT : Ne pas installer ou remiser la sécheuse dans un endroit où elle sera exposée à l’eau ou aux intempéries. C’est à l’utilisateur qu’incombe la responsabilité de réaliser une installation correcte. Il faut : ■ Une prise électrique reliée à la terre située à moins de 6 pi (1,8 m) de la fi...
Page 16 - Raccordement direct; Pour le raccordement direct :; Spécifications électriques – Canada seulement
47 Risque d’incendie Utiliser du fil en cuivre de calibre 10.Utiliser un réducteur de tension homologué UL.Déconnecter la source de courant électrique avant de réaliser les connexions électriques.Connecter le conducteur neutre (blanc ou conducteur central) à la borne centrale.Le conducteur de liaiso...
Page 17 - Vissage des pieds de nivellement
48 INSTALLATION DES PIEDS DE NIVELLEMENT, DE LA GLISSIÈRE INSTALLATION DES PIEDS DE NIVELLEMENT, DE LA GLISSIÈRE À MONNAIE ET DE LA CAISSE À MONNAIE À MONNAIE ET DE LA CAISSE À MONNAIE Le mécanisme de glissière, le verrou et la clé du panneau de commande et le verrou et la clé de la boîte à monnaie ...
Page 18 - Raccordement au gaz; INSTRUCTIONS D’INSTALLATION – SÉCHEUSE À GAZ
49 Raccordement au gaz INSTRUCTIONS D’INSTALLATION – SÉCHEUSE À GAZ INSTRUCTIONS D’INSTALLATION – SÉCHEUSE À GAZ MISE À NIVEAU MISE À NIVEAU Pas d’aplomb D’APLOMB Pas d’aplomb 1. Enlever le morceau de carton placé sous la sécheuse. Placer un niveau sur les bords supérieurs de la sécheuse en vérifian...
Page 19 - Retirer le couvercle du bornier; Raccordement du cordon d’alimentation; Cordon d’alimentation; Options de raccordement
50 RACCORDEMENTS DE LA SÉCHEUSE ÉLECTRIQUE RACCORDEMENTS DE LA SÉCHEUSE ÉLECTRIQUE 2. Insérer le cordon d’alimentation dans le serre-câbles. Retirer le couvercle du bornier Raccordement du cordon d’alimentation Passer le cordon d’alimentation à travers le serre-câbles. Vérifier que la gaine d’isolem...
Page 20 - Raccordement de la connexion à 4 fils : cordon d’alimentation; Un raccordement à 4 fils est obligatoire
51 RACCORDEMENTS DE LA SÉCHEUSE ÉLECTRIQUE RACCORDEMENTS DE LA SÉCHEUSE ÉLECTRIQUE Raccordement de la connexion à 4 fils : cordon d’alimentation Raccordement de la connexion à 3 fils : cordon d’alimentation Connecteurs standard pour cordon d’alimentation Connecteur rond Raccordement du conducteur de...
Page 21 - Risque d’incendie; Méthode de raccordement direct; Raccordement de la connexion à 3 fils : Cordon d’alimentation (suite); Serre-câbles pour raccordement direct
52 RACCORDEMENTS DE LA SÉCHEUSE ÉLECTRIQUE RACCORDEMENTS DE LA SÉCHEUSE ÉLECTRIQUE F F Risque d’incendie Utiliser du fil en cuivre de calibre 10.Utiliser un réducteur de tension homologué UL.Déconnecter la source de courant électrique avant de réaliser les connexions électriques.Connecter le conduct...
Page 22 - Raccordement de la connexion à 4 fils : Câblage direct; Raccordement du conducteur de terre neutre et
53 RACCORDEMENTS DE LA SÉCHEUSE ÉLECTRIQUE RACCORDEMENTS DE LA SÉCHEUSE ÉLECTRIQUE Raccordement de la connexion à 4 fils : Câblage direct IMPORTANT : Un raccordement à 4 fils est obligatoire pour les maisons mobiles et lorsque les codes locaux n’autorisent pas l’utilisation de raccordements à 3 fils...
Page 23 - Raccordement de la connexion à 3 fils : Câblage direct; À utiliser lorsque les codes locaux autorisent la connexion; Raccordement du conducteur neutre; À utiliser pour le raccordement direct ou le cordon
54 RACCORDEMENTS DE LA SÉCHEUSE ÉLECTRIQUE RACCORDEMENTS DE LA SÉCHEUSE ÉLECTRIQUE Raccordement de la connexion à 3 fils : Câblage direct À utiliser lorsque les codes locaux autorisent la connexion du conducteur de masse de la caisse au conducteur neutre. Le câble à raccordement direct doit avoir un...
Page 24 - REMARQUE; FIN DE L’INSTALLATION
55 1. Consulter les spécifications électriques. Vérifier que la tension électrique disponible est correcte et que la prise de courant est convenablement reliée à la terre. Consulter les « Spécifications électriques ». 2. Vérifier que toutes les pièces sont maintenant installées. S’il reste une pièce...
Page 27 - Si la sécheuse ne fonctionne pas, vérifier ce qui suit :
58 INSTRUCTIONS D’ENTRETIEN INSTRUCTIONS D’ENTRETIEN Les services sous garantie doivent être effectués exclusivement par nos fournisseurs de dépannage autorisés Whirlpool. Aux É.-U. et au Canada, dirigez toutes vos demandes de service sous garantie au : Whirlpool Customer eXperience Center.Aux É.-U....
Page 28 - Informations générales d’utilisation; Procédures de configuration des commandes
59 INSTRUCTIONS DE CONFIGURATION DES COMMANDES ÉLECTRONIQUES INSTRUCTIONS DE CONFIGURATION DES COMMANDES ÉLECTRONIQUES REMARQUE : Une fois la sécheuse installée et branchée pour la première fois, l’affichage indique « 0 MINUTES ». Une fois la porte ouverte, puis fermée, l’affichage indique le prix. ...
Page 29 - Configuration pour utilisation immédiate; PRIX D’UN PROGRAMME NORMAL
60 INSTRUCTIONS DE CONFIGURATION DES COMMANDES ÉLECTRONIQUES INSTRUCTIONS DE CONFIGURATION DES COMMANDES ÉLECTRONIQUES Utilisation des boutons pour la programmation des commandes 1. Le bouton COTOTN/WHITES (coton/blanc) sert à régler les valeurs associées aux codes de configuration. En appuyant sur ...
Page 32 - INSTRUCTIONS DE CONFIGURATION DES COMMANDES ÉLECTRONIQUES; Code Explication
63 Si le compteur de programmes (9 0C) est sélectionné, le calcul du total est le suivant : 1 00 Programmes en CENTAINES 1 02 = 200 2 00 Programmes en UNITÉS 2 25 = 25 TOTAL DE PROGRAMMES = 225 AFFICHAGE SEULEMENT, ne peut être effacé. • Appuyer une fois sur le bouton PERM. PRESS (pressage permanent...
Page 33 - Mode de diagnostic de la sécheuse
64 INSTRUCTIONS DE CONFIGURATION DES COMMANDES ÉLECTRONIQUES INSTRUCTIONS DE CONFIGURATION DES COMMANDES ÉLECTRONIQUES Mode de diagnostic de la sécheuse Pour accéder à ce mode, appuyer sur la touche COLORS/ DELICATES (couleurs/articles délicats) pendant une seconde dans l’un des codes de configurati...