Page 1 - DRYER SAFETY; TABLE OF CONTENTS; TABLE DES MATIÈRES
2 DRYER SAFETY ■ It is recommended that the owner post, in a prominent location, instructions for the customer’s use in the event the customer smells gas. This information should be obtained from your gas supplier. ■ Post the following warning in a prominent location. TABLE OF CONTENTS Page DRYER SA...
Page 3 - SÉCURITÉ DE LA SÉCHEUSE; – QUE FAIRE DANS LE CAS D’UNE ODEUR DE GAZ :; AVERTISSEMENT :
35 SÉCURITÉ DE LA SÉCHEUSE ■ On recommande que le propriétaire place les instructions à l’usage du client en un lieu bien visible, au cas où le client percevrait une odeur de gaz. Ces renseignements doivent être obtenus auprès de votre fournisseur en gaz. ■ Placer l’avertissement qui suit à un endro...
Page 6 - EXIGENCES D’INSTALLATION; Outillage nécessaire :; Outils et pièces
38 † ® TORX et T20 sont les marques déposée de Acument Intellectual Properties, LLC. Pièces fournies : Patins (4) Pieds de la sécheuse (4) EXIGENCES D’INSTALLATION Outillage nécessaire : Clé à tuyau Clé à molette de 8" (200 mm) Tournevis à lame plate Tournevis Phillips de 8" (200 mm) ou 10...
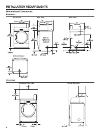
Page 7 - Dimensions/distances de dégagement
39 EXIGENCES D’INSTALLATION Vue de face Vue latérale Vue arrière Dimensions Distances de dégagement Encastrement, vue avant Placard, vue latérale Évacuation par le bas Évacuation à la gauche ou au côté droit Gaz Électrique Dimensions/distances de dégagement 0" (0 mm)
Page 8 - Exigences concernant l’évacuation
40 EXIGENCES D’INSTALLATION AVERTISSEMENT : Pour réduire le risque d’incendie, cette sécheuse doit ÉVACUER L’AIR À L’EXTÉRIEUR. IMPORTANT : Observer les dispositions de tous les codes et règlements en vigueur. Le conduit d’évacuation de la sécheuse ne doit pas être raccordé à une évacuation de gaz, ...
Page 9 - Hottes d’extraction; Longueur du système d’évacuation
41 12" min. (305 mm) Clapets d’évacuation – Diamètre de 4" (102 mm) Clapet de Clapet à persiennes Clapet incliné type boîte Hottes d’extraction EXIGENCES D’INSTALLATION Le clapet de décharge doit se trouver à au moins 12" (305 mm) au-dessus du sol ou de tout autre objet susceptible de se...
Page 11 - Exigences de l’emplacement; Exigences d’installation pour la sécheuse à gaz
43 La sécheuse peut être installée dans un sous-sol, une salle de buanderie ou un encastrement.Cette sécheuse ne peut pas être installée dans une résidence mobile.Il faut aussi prendre en compte les exigences d’emplacement des appareils voisins. IMPORTANT : Ne pas installer ou remiser la sécheuse da...
Page 12 - Spécifications électriques
44 EXIGENCES D’INSTALLATION Mise à la terre de la sécheuse à gaz IMPORTANT : La sécheuse doit être reliée à la terre conformément aux codes et règlements locaux en vigueur, ou en l’absence de tels codes, avec la dernière édition du National Electrical Code, ANSI/NFPA 70, ou du Canadian Electrical Co...
Page 13 - AVERTISSEMENT; Alimentation en gaz
45 EXIGENCES D’INSTALLATION IMPORTANT : Observer les dispositions de tous les codes et règlements en vigueur.L’installation doit satisfaire aux critères de tous les codes et règlements locaux. En l’absence de code local, l’installation doit satisfaire aux prescriptions de la norme American National ...
Page 14 - Type de gaz; Canalisation d’alimentation en gaz
46 Cette sécheuse est équipée pour une alimentation au gaz naturel. Sa conception est homologuée par CSA International pour l’alimentation au gaz de propane ou butane, avec conversion appropriée. Ne pas entreprendre de convertir la sécheuse pour une utilisation avec un gaz différent de celui Type de...
Page 15 - Exigences d’installation pour la sécheuse électrique
47 La sécheuse peut être installée dans un sous-sol, une salle de buanderie ou un encastrement.Cette sécheuse ne peut pas être installée dans une résidence mobile.Il faut aussi prendre en compte les exigences d’emplacement des appareils voisins. IMPORTANT : Ne pas installer ou remiser la sécheuse da...
Page 16 - INSTRUCTIONS DE LIAISON À LA TERRE
48 Spécifications électriques C’est à l’utilisateur qu’incombe la responsabilité de : ■ Communiquer avec un électricien qualifié. ■ S’assurer que les connexions électriques sont adéquates et conformes au Code canadien de l’électricité, C22.1 – dernière édition et à tous les codes locaux. Pour obteni...
Page 17 - INSTALLATION DES PIEDS DE NIVELLEMENT, DE LA GLISSIÈRE
49 Le mécanisme de paiement, la serrure et la clé du tableau de commande et la serrure et la clé de réceptacle des pièces ne sont pas inclus; on peut les obtenir auprès des sources usuelles de l’industrie. Pour ce modèle, on doit utiliser un dispositif spécial d’extension de glissière que l’on peut ...
Page 18 - INSTRUCTIONS D’INSTALLATION POUR LA SÉCHEUSE À GAZ; Raccordement à la canalisation de gaz
50 1. Retirer le capuchon rouge de la canalisation de gaz. 2. Raccorder la canalisation de gaz à la sécheuse. Utiliser un composé d’étanchéité compatible avec le gaz propane. Si un conduit métallique flexible est utilisé, vérifier qu’il n’est pas déformé. Si nécessaire pour une intervention d’entret...
Page 19 - NIVELLEMENT
51 1. Enlever la plaque de carton placé sous la sécheuse. Placer un niveau sur les bords supérieurs de la sécheuse en contrôlant chaque côté et l’avant. Si elle n’est pas d’aplomb, faire basculer la sécheuse et régler les pieds vers le haut ou vers le bas, et recommencer si nécessaire. NIVELLEMENT L...
Page 20 - ACHEVER L’INSTALLATION
52 1. Consulter les spécifications électriques. Vérifier que la tension électrique disponible est correcte et que la prise de courant est convenablement reliée à la terre. Voir “Spécifications électriques”. 2. Vérifier que toutes les pièces sont maintenant installées. S’il reste une pièce, passer en...
Page 21 - INVERSION DU SENS D’OUVERTURE DE LA PORTE
53 INVERSION DU SENS D’OUVERTURE DE LA PORTE DE LA SÉCHEUSE (FACULTATIF) Dépose de la porte1. Placer une serviette ou un chiffon doux sur le dessus de la sécheuse ou du plan de travail pour éviter d’érafler la surface. 2. Enlever 3 des 4 vis qui maintiennent la charnière de la porte sur le panneau a...
Page 24 - Informations générales d’utilisation
56 INSTRUCTIONS DE RÉGLAGE DU TABLEAU DE COMMANDE ÉLECTRONIQUE REMARQUE : Une fois la sécheuse est installée et branchée, l’affichage indique “0 MINUTES.” Une fois la porte est ouverte et fermée, l’affichage indique le prix d’utlisation. Informations générales d’utilisation DÉFILEMENT D’UN MESSAGE D...
Page 25 - Paramétrage en début d’exploitation; INSTRUCTIONS DE RÉGLAGE DU TABLEAU DE COMMANDE; Codes de paramétrage
57 Utilisation des boutons pour la programmation des commandes 1. Le bouton COTTON/WHITES (coton/ blanc) sert à régler les valeurs associées aux codes de paramétrage. En appuyant sur le bouton, la valeur change par paliers. Un réglage rapide possible en maintenant le bouton enfoncé. 2. Le bouton PER...