Maytag MAT15MNAWW- Manuel d'utilisation

Maytag MAT15MNAWW

Maytag MAT15MNAWW- Manuel d'utilisation, à lire gratuitement en ligne au format PDF. Nous espérons que cela vous aidera à résoudre toutes les questions que vous pourriez avoir. Si vous avez encore des questions, contactez-nous via le formulaire de contact.

1 Page 1
2 Page 2
3 Page 3
4 Page 4
5 Page 5
6 Page 6
7 Page 7
8 Page 8
9 Page 9
10 Page 10
11 Page 11
12 Page 12
13 Page 13
14 Page 14
15 Page 15
16 Page 16
Page: / 16

Table des matières:

  • Page 2 – Your safety and the safety of others are very important.; DANGER; Table of Contents
  • Page 3 – Votre sécurité et celle des autres est très importante.; AVERTISSEMENT; SÉCURITÉ DE LA LAVEUSE; IMPORTANTES INSTRUCTIONS DE SÉCURITÉ
  • Page 4 – Exigences d’emplacement; EXIGENCES D’INSTALLATION; Outillage et pièces; Outils nécessaires
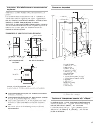
  • Page 5 – Système de vidange; Système de vidange avec tuyau de rejet à l'égout; Dégagements de séparation minimums à respecter; Dimensions du produit
  • Page 6 – Spécifications électriques; Risque de choc électrique; INSTRUCTIONS DE LIAISON À LA TERRE; Pour une laveuse reliée à la terre et connectée par; Méthode recommandée de mise à la terre
  • Page 7 – Enlever la sangle d’expédition; INSTRUCTIONS D'INSTALLATION; Risque du poids excessif; Raccordement des tuyaux; Connecter les tuyaux d'alimentation à la laveuse
  • Page 8 – Connecter le tuyau de vidange; REMARQUE; Réglage de l'aplomb de la laveuse; Installation des pieds de réglage de l’aplomb avant
  • Page 9 – Achever l'installation
  • Page 10 – Liste de contrôle pour le fonctionnement de la laveuse :
  • Page 11 – RÉGLAGE DE LA COMMANDE ÉLECTRONIQUE
  • Page 16 – GARANTIE LIMITÉE SUR LES PIÈCES
Téléchargement du manuel

COMMERCIAL WASHER

INSTALLATION INSTRUCTIONS

Write down the model and serial numbers before installing washer.

Both numbers are listed on the model/serial rating plate located
under the lid.

Model # _______________________________

Serial #

_______________________________

Date of Purchase _______________________

Prendre note des numéros de modèle et de série avant d'installer
la laveuse.

Les deux numéros sont indiqués sur la plaque signalétique sous
le couvercle.

Numéro de modèle _____________________________

Numéro de série _______________________________

Date d’achat ___________________________________

W10135311A

www.maytagcommerciallaundry.com

120-volt, 60-Hz Models

INSTRUCTIONS D’INSTALLATION DE

LA LAVEUSE COMMERCIALE

Modèles 120 V, 60 Hz

„Téléchargement du manuel“ signifie que vous devez attendre que le fichier soit complètement chargé avant de pouvoir le lire en ligne. Certains manuels sont très volumineux, et le temps de chargement dépend de la vitesse de votre connexion Internet.

Résumé

Page 2 - Your safety and the safety of others are very important.; DANGER; Table of Contents

2 You can be killed or seriously injured if you don't immediately You can be killed or seriously injured if you don't follow All safety messages will tell you what the potential hazard is, tell you how to reduce the chance of injury, and tell you what can happen if the instructions are not followed....

Page 3 - Votre sécurité et celle des autres est très importante.; AVERTISSEMENT; SÉCURITÉ DE LA LAVEUSE; IMPORTANTES INSTRUCTIONS DE SÉCURITÉ

15 Risque possible de décès ou de blessure grave si vous ne suivez pas immédiatement les instructions. Risque possible de décès ou de blessure grave si vous ne suivez pas les instructions. Tous les messages de sécurité vous diront quel est le danger potentiel et vous disent comment réduire le risque...

Page 4 - Exigences d’emplacement; EXIGENCES D’INSTALLATION; Outillage et pièces; Outils nécessaires

16 Exigences d’emplacement IMPORTANT : Ne pas installer ou remiser la laveuse dans un endroit où elle sera exposée aux intempéries. Ne pas remiser oufaire fonctionner la laveuse à des températures inférieures ouégales à 0°C (32°F). Une quantité d'eau peut demeurer dans lalaveuse et causer des dommag...

Autres modèles de Maytag