Page 2 - Table des matières
Table des matières 2 Consignes de sécurité et mises en garde ....................................................... 4 Votre contribution à la protection de l'environnement .................................. 14 Description de l'appareil ..................................................................
Page 3 - Nettoyage et entretien
Table des matières 3 Nettoyage et entretien ...................................................................................... 36 Nettoyer le bandeau de commande .................................................................... 37Nettoyer la surface de cuisson ...................................
Page 4 - Consignes de sécurité et mises en garde
Consignes de sécurité et mises en garde 4 Ce Teppan Yaki répond aux réglementations de sécurité en vi-gueur. Toute utilisation non conforme peut toutefois causer desdommages corporels et matériels. Lisez attentivement le mode d'emploi et les instructions de mon-tage avant de mettre le Teppan Yaki en...
Page 5 - Utilisation conforme; Ce Teppan Yaki est destiné à un usage domestique ou dans des
Consignes de sécurité et mises en garde 5 Utilisation conforme Ce Teppan Yaki est destiné à un usage domestique ou dans des conditions d'utilisation semblables au cadre domestique. Cet appareil ne convient pas à une utilisation en extérieur. Utilisez le Teppan Yaki exclusivement dans le cadre ...
Page 6 - Précautions à prendre avec les enfants
Consignes de sécurité et mises en garde 6 Précautions à prendre avec les enfants Tenez les enfants de moins de huit ans éloignés du Teppan Yaki à moins qu'ils ne soient sous étroite surveillance. Les enfants âgés de huit ans et plus peuvent uniquement utiliser l'appareil sans surveillance si vou...
Page 7 - Sécurité technique; Un Teppan Yaki endommagé représente un danger potentiel pour
Consignes de sécurité et mises en garde 7 Sécurité technique Des travaux d'installation, d'entretien ou de réparation non conformes peuvent entraîner de graves dangers pour l'utilisateur.Ces interventions doivent être exécutées exclusivement par des pro-fessionnels agréés par Miele. Un Teppan Ya...
Page 9 - - les fusibles correspondants sont déclenchés ou
Consignes de sécurité et mises en garde 9 Avant toute intervention d'installation, de maintenance ou de répa- ration, commencez par débrancher votre Teppan Yaki du secteurélectrique. Pour vous assurer que l'appareil est bien débranché : - les fusibles correspondants sont déclenchés ou - les fusibl...
Page 12 - Pour les personnes équipées d'un stimulateur cardiaque (pacema-
Consignes de sécurité et mises en garde 12 Pour les personnes équipées d'un stimulateur cardiaque (pacema- ker) : un champ électromagnétique est généré à proximité immédiatedu Teppan Yaki lorsque celui-ci est allumé. Il est cependant haute-ment improbable que ce champ électromagnétique entraîne un...
Page 13 - Miele offre une garantie d'approvisionnement de 10 ans minimum
Consignes de sécurité et mises en garde 13 Nettoyage et entretien N'utilisez jamais de nettoyeur vapeur pour nettoyer votre appareil : la vapeur pourrait se déposer sur les éléments conducteurs d'électri-cité et provoquer un court-circuit.N’utilisez jamais de nettoyeur vapeur pour le nettoyage. ...
Page 14 - Votre contribution à la protection de l'environnement; Nos emballages
Votre contribution à la protection de l'environnement 14 Nos emballages Nos emballages protègent votre appa-reil des dommages pouvant survenirpendant le transport. Nous les sélec-tionnons en fonction de critères écolo-giques permettant d'en faciliter le recy-clage. En participant au recyclage de vos...
Page 16 - Eléments de commande et d'affichage; Touches sensitives
Description de l'appareil 16 Eléments de commande et d'affichage Touches sensitives a Domino SmartLine activé/ désactivé b Stop&Gopour arrêter/ démarrer un processus de cuisson en cours c Protection nettoyagepour verrouiller les touches sensitives d Résistancepour connecter/déconnecter manuellem...
Page 17 - Affichages/Diodes de contrôle
Description de l'appareil 17 Affichages/Diodes de contrôle i Affectation de la résistance pour l'arrêt automatiqueL'arrêt automatique pour la résistance est activé j Chaleur résiduelle k Affichage du minuteur : à : Durée Le verrouillage de la mise en marche/ le verrouillage est activé. ...
Page 18 - Principe de fonctionnement
Principe de fonctionnement 18 La surface de cuisson est chauffée parinduction. Une bobine à induction setrouve sous la surface de cuisson.Lorsque le Teppan Yaki est allumé,cette bobine produit un champ magné-tique qui agit directement sur la surfacede cuisson et la réchauffe. Risque de brûlure à c...
Page 19 - Première mise en service
Première mise en service 19 Veuillez coller la plaque signalétiquejointe aux documents accompagnantvotre appareil à l'emplacement prévuà cet effet sous « Service après-vente ». Enlevez les éventuels autocollants etfilms de protection. Nettoyer un domino SmartLinepour la première fois Nettoyez ...
Page 20 - Utilisation; Principe de commande; que sur les autres
Utilisation 20 Principe de commande Votre domino SmartLine est équipé detouches sensitives électroniques qui ré-agissent au contact du doigt. Pour desraisons de sécurité, il faut appuyer pluslongtemps sur la touche sensitiveMarche / Arrêt que sur les autres touches, lors de la mise sous tension.L...
Page 21 - Risque d'incendie par suite de; Régler le niveau de puissance; sur la
Utilisation 21 Risque d'incendie par suite de surchauffe.Les aliments qui ne sont pas sur-veillés en cours de cuisson risquentde trop chauffer et de s'enflammer.Ne laissez pas le Teppan Yaki sanssurveillance lorsqu'il est en fonction-nement ! Tenez compte du fait que le tempsde montée en températu...
Page 22 - Interconnecter les résistances; Effleurez la touche sensitive
Utilisation 22 Réglage du niveau de puis-sance - plage de réglage éten-due En usine, 9 niveaux de puissance sontprogrammés. Si vous souhaitez unegradation plus fine, vous pouvez l'élar-gir à 17 niveaux de puissance (voirchapitre « Programmation »). Effleurez la rangée de chiffres entreles touches ...
Page 23 - Conseils de cuisson; - Préchauffez le Teppan Yaki pendant 2; Fonction maintien au chaud
Utilisation 23 Conseils de cuisson Avant chaque utilisation, essuyez leTeppan Yaki avec un chiffon humideafin d'éliminer les particules depoussière ou autres dépôts. - Préchauffez le Teppan Yaki pendant 2 à 3 minutes. Pour ce faire, réglez leniveau de puissance avec lequel voussouhaitez cuire vos al...
Page 24 - Niveaux de puissance
Niveaux de puissance 24 En usine, 9 niveaux de puissance sont programmés sur la table de cuisson. Sivous souhaitez une gradation plus fine, vous pouvez l'élargir à 17 niveaux de puis-sance (voir chapitre « Programmation »). Plage de réglage à l'usine (9 niveaux) étendue (17 niveaux) Maintenir des al...
Page 25 - Timer; Fonction Minuterie; Régler la minuterie
Timer 25 Pour pouvoir utiliser le minuteur (Ti-mer), le domino doit être allumé. Le minuteur peut être utilisé pour2 fonctions : - régler la minuterie - régler l'arrêt automatique d'une zone de cuisson/résistance/zone du tep-pan. Vous pouvez utiliser les fonctions simul-tanément. Il est possible de ...
Page 26 - Arrêt automatique; Modifier l’heure d’arrêt
Timer 26 Arrêt automatique Vous pouvez définir une durée après la-quelle une résistance/zone du teppans'arrêtera automatiquement. Cette fonc-tion peut être utilisée simultanémentpour toutes les zones de cuisson. Si la durée que vous avez sélection-née est supérieure au temps maximalde fonctionnement...
Page 27 - ou
Timer 27 Utilisation simultanée des deuxfonctions du minuteur (Timer) Si vous utilisez les deux fonctions enmême temps, le temps le plus court esttoujours affiché. La touche sensitive (Minuterie) ou le témoin lumineux de lazone de cuisson dont la durée est laplus courte clignote. Pour consulter...
Page 28 - Fonctions supplémentaires
Fonctions supplémentaires 28 Stop&Go L'activation de Stop&Go réduit à 1 le ni-veau de puissance réglé.Vous ne pouvez plus modifier ni les ni-veaux de puissance ni le réglage de laminuterie, le domino SmartLine peutuniquement être arrêté. Le décomptedes durées de minuterie et de désacti-vatio...
Page 29 - Protection nettoyage; Activer; Mode démonstration; Description du modèle
Fonctions supplémentaires 29 Protection nettoyage Vous pouvez bloquer les touches sen-sitives du domino SmartLine pendant20 secondes, pour retirer les salis-sures par exemple. La touche sensi-tive n'est pas verrouillée. Activer Effleurez la touche sensitive . Dans l'affichage de la minuterie...
Page 30 - Dispositifs de sécurité
Dispositifs de sécurité 30 Verrouillage de la mise enmarche/Verrouillage Le verrouillage est désactivé en casde panne de courant. Votre domino SmartLine est équipéd'une sécurité enfants et d'une fonctionde verrouillage destinées à empêchertoute mise en marche intempestive dudomino, ainsi que toute m...
Page 31 - Sécurité oubli; Touches sensitives recouvertes
Dispositifs de sécurité 31 Sécurité oubli Touches sensitives recouvertes Dès que quelque chose recouvre unetouche sensitive pendant plus de 10 se-condes, par exemple un doigt, un ali-ment qui déborde ou un objet posé, ledomino SmartLine s'arrête instantané-ment. Le symbole clignote brièvement sur...
Page 32 - Sécurité anti-surchauffe; Dissipateur thermique
Dispositifs de sécurité 32 Sécurité anti-surchauffe Les bobines d'induction et les ventila-teurs du système électronique sontéquipés d'une protection anti-sur-chauffe. Cette dernière applique l'unedes mesures suivantes avant que ceséléments ne soient en surchauffe : Bobines d'induction - Le niveau d...
Page 33 - Programmation; Modifier la programmation
Programmation 33 Vous pouvez adapter la programmationdu domino SmartLine à vos besoins.Vous pouvez modifier les réglages lesuns après les autres. Une fois la programmation activée, lesymbole apparaît et dans l'affi- chage de la minuterie (Timer). Au boutde quelques secondes, clignotent alter-n...
Page 36 - Risque de brûlure à cause de; Produits à ne pas utiliser; - de détachant et de produit antirouille,
Nettoyage et entretien 36 Risque de brûlure à cause de surfaces chaudes.Les surfaces restent très chaudesaprès la cuisson.Eteignez le Teppan Yaki.Laissez refroidir les surfaces avantde nettoyer le Teppan Yaki. Dommages en cas de pénétra- tion d'humidité.N'utilisez jamais de nettoyeur vapeurpour ...
Page 37 - Nettoyer la surface de cuisson
Nettoyage et entretien 37 Nettoyer le bandeau de com-mande Enlevez les résidus faciles à nettoyeravec une éponge humide et les dé-pôts incrustés avec un racloir à vitres. Nettoyez le bandeau de commandeavec le produit nettoyant spécial vi-trocéramique et inox Miele (voir cha-pitre « Accessoires ...
Page 38 - Messages dans les affichages/ à l’écran; La sécurité enfants ou le verrouillage est activé.
En cas d'anomalie 38 Vous pouvez régler la plupart des défauts ou anomalies courants par vous-même.Dans bon nombre de cas, vous économiserez ainsi du temps et de l'argent carvous n'aurez pas besoin de faire appel au service après-vente. Les tableaux suivants vous aideront à déceler la cause d'un déf...
Page 40 - Comportement inattendu; Problème
En cas d'anomalie 40 Comportement inattendu Problème Cause et solution Les touches sensitivesréagissent de façontrop sensible ou pas as-sez sensible. La sensibilité des touches sensitives est déréglée. Assurez-vous tout d'abord que le domino Smart-Line n'est pas exposé directement à la lumière (so...
Page 41 - Problèmes d'ordre général ou anomalies techniques
En cas d'anomalie 41 Problèmes d'ordre général ou anomalies techniques Problème Cause et solution Le domino SmartLinene s'allume pas. Le domino SmartLine n'est pas alimenté en électrici-té. Vérifiez si le fusible de l'installation domestique asauté. Dans ce cas, avertissez un électricien pro-fessi...
Page 42 - Accessoires en option; Chiffon microfibre
Accessoires en option 42 Miele propose une large gamme d'ac-cessoires Miele parfaitement adaptés àl'entretien et au nettoyage de vos appa-reils. Pour les commander, il vous suffit devous rendre sur la boutique en ligneMiele. Ils sont également disponibles auprèsdu service après-vente Miele (voir la ...
Page 43 - Service après vente; Contact en cas d'anomalies
Service après vente 43 Contact en cas d'anomalies Vous n'arrivez pas à résoudre l'anomalie par vous-même ? Contactez le serviceaprès-vente Miele ou votre revendeur Miele. Vous pouvez prendre rendez-vous en ligne avec le service après-vente Mielesous www.miele.com/service. Les coordonnées du service ...
Page 44 - Installation; Consignes de sécurité pour le montage; Dommages liés à un montage incorrect.; Les bois de placage du plan de travail doivent être traités avec
Installation *INSTALLATION* 44 Consignes de sécurité pour le montage Dommages liés à un montage incorrect. Le domino SmartLine peut être endommagé en raison d'un montage incorrect.Faites installer le domino SmartLine uniquement par un technicien qualifié. Risque d'électrocution en raison de la t...
Page 45 - Distances de sécurité
Installation *INSTALLATION* 45 Distances de sécurité Distance de sécurité au-dessus dudomino SmartLine La distance de sécurité prescrite par lefabricant de la hotte entre le dominoSmartLine et la hotte doit être respec-tée. Si des matériaux facilement inflam-mables (placards, par exemple) sontmontés...
Page 46 - Distance de sécurité latérale / arrière
Installation *INSTALLATION* 46 Distance de sécurité latérale / arrière Le domino SmartLine doit être installéde préférence en laissant un espace gé-néreux à droite et à gauche. À l'arrière du domino SmartLine, il fautrespecter la distance minimale indiquéeci-dessous par rapport à un meuble haut o...
Page 47 - - de l'arête supérieure du four doit être
Installation *INSTALLATION* 47 Distance minimale sous le dominoSmartLine Pour garantir une ventilation adéquatedu domino SmartLine, il est indispen-sable d'assurer une distance minimalesous la table de cuisson entre celui-ciet un four, une tablette ou un tiroir. La distance minimale entre le bord in...
Page 48 - Distance de sécurité avec la crédence
Installation *INSTALLATION* 48 Distance de sécurité avec la crédence Lorsqu'une crédence est posée, la distance minimale entre la découpe et la cré-dence doit être respectée, car les températures élevées peuvent abîmer ou dé-truire le matériau de la crédence. Pour une crédence en matériau inflammabl...
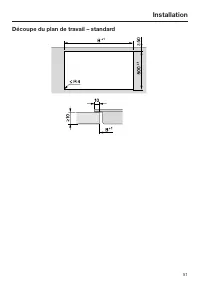
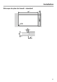
Page 49 - Plan de travail carrelé
Installation *INSTALLATION* 49 Instructions d'encastrement – standard Joint entre le domino SmartLine et leplan de travail Si vous utilisez un produit d'étan-chéité pour joint entre le plan de tra-vail et le domino SmartLine, vous ris-quez d'endommager ce dernier encas de démontage éventuel.N'utilis...
Page 50 - Combinaison avec un domino hotte
Installation *INSTALLATION* 50 Encastrement de plusieurs dominosSmartLine Les joints entre les différents dominosSmartLine sont injectés avec un produitd'étanchéité à base de silicone thermo-résistant (minimum 160 °C). En casd'encastrement à fleur de plan, il fautde plus injecter les joints entre le...
Page 52 - Encastrement avec domino hotte
Installation *INSTALLATION* 52 Encastrement avec domino hotte Exemples de combinaison Nombre x largeur [mm] Dimen- sion B [mm] Éléments de cuisson Hotte de table 1 x 378 1 x 120 481 2 x 378 1 x 120 862 1 x 3781 x 620 2 x 120 1226 3 x 378 2 x 120 1365 2 x 3781 x 620 2 x 120 1607 4 x 378 2 x 120 1746 ...
Page 54 - Barrettes de jonction – standard; Encastrement de 3 dominos et 2 barrettes de jonction
Installation *INSTALLATION* 54 Barrettes de jonction – standard Si vous installez plusieurs appareils, vous devez placer des barrettes de jonctionentre eux. Vous n'avez besoin que des supports ci-joints pour l'installation d'un CS-DA 700x FL. Encastrement de 3 dominos et 2 barrettes de jonction
Page 56 - Installation – standard; Préparation du plan de travail
Installation *INSTALLATION* 56 Installation – standard Préparation du plan de travail Réalisez la découpe du plan de tra-vail. Respectez les distances desécurité (voir chapitre « Installation »,section « Distances de sécurité »). Pour éviter tout gonflement dû à l’hu-midité, scellez les bords de...
Page 57 - Encastrement du domino SmartLine
Installation *INSTALLATION* 57 Encastrement du domino SmartLine Collez le joint d'étanchéité fournisous le bord du domino SmartLine.Ne pas coller le joint d’étanchéitésous tension. Faites passer le câble d'alimentationélectrique vers le bas par la découpedu plan de travail. Posez le domino Sma...
Page 58 - Plans de travail en pierre naturelle
Installation *INSTALLATION* 58 Instructions d'encastrement – à fleur de plan L'encastrement à fleur de plan n'estpossible que dans un plan de travailen pierre naturelle (granit, marbre), enbois massif ou carrelé. Si votre plande travail est constitué d'un autre ma-tériau, demandez au fabricant si l'...
Page 60 - Découpe du plan de travail – à fleur de plan; Plan de travail en pierre naturelle
Installation *INSTALLATION* 60 Découpe du plan de travail – à fleur de plan B 0 50 A 524 50 0 + 1 + 1 ß R 4 B A 0 2 12 0 1 0 5,5 + 0,5 * / 7 + 0,5 0 2 12 0 1 0 5,5 + 0,5 * / 7 + 0,5 + 1 + 1 + 1 + 1 B A + 1 + 1 Plan de travail en pierre naturelle Plan de travail en bois * 7 + 0,5 mm pour CS 7611 FL
Page 63 - Barrettes de jonction – à fleur de plan
Installation *INSTALLATION* 63 Barrettes de jonction – à fleur de plan Si vous installez plusieurs appareils, vous devez placer des barrettes de jonctionentre eux. Vous n'avez besoin que des supports ci-joints pour l'installation d'un CS-DA 700x FL. Encastrement de 3 dominos et 2 barrettes de joncti...
Page 64 - Cotes d'encastrement – à fleur de plan
Installation *INSTALLATION* 64 Cotes d'encastrement – à fleur de plan Toutes les dimensions sont indiquées en mm. a Avant b Câble d'alimentation électrique, L = 2 000 mm c Fraisage de gradins (voir les schémas détaillés au chapitre « Installation », sec-tion « Découpe du plan de travail pour encastr...
Page 65 - Installation – à fleur de plan
Installation *INSTALLATION* 65 Installation – à fleur de plan Préparation du plan de travail Réalisez la découpe du plan de tra-vail. Respectez les distances desécurité (voir chapitre « Installation »,section « Distances de sécurité »). Pour éviter tout gonflement dû à l’hu-midité, scellez les b...
Page 67 - Branchement électrique; Dommages liés à un raccorde-
Installation *INSTALLATION* 67 Branchement électrique Dommages liés à un raccorde- ment incorrect.Des travaux d'installation, d'entretienou de réparation non conformespeuvent entraîner de graves dangerspour l'utilisateur. Miele ne saurait être tenue respon-sable des dommages causés pardes travaux ...
Page 68 - Mise hors tension
Installation *INSTALLATION* 68 Mise hors tension Risque d'électrocution en raison de la tension réseau.Lors de travaux de réparation et/oude maintenance, un réenclenche-ment de la tension réseau peut être àl'origine d'une électrocution.Après la coupure, protégez le réseaucontre les remises sous te...
Page 71 - Miele Experience Center Nice
9 avenue Albert Einstein - Z. I. du Coudray R.C.S. Bobigny B 708 203 088 55 Boulevard Malesherbes75008 Paris 30 rue du Bac75007 Paris Secteur Cap 3000285 avenue de Verdun06700 Saint-Laurent du Var MIELE FranceSiège social 93151 - Le Blanc-Mesnil CEDEX Miele Experience CenterParis Rive Gauche Miele E...