Miele PG 8582 CD [WW AD CM] - Notice d'Installation

Miele PG 8582 CD [WW AD CM]

Miele PG 8582 CD [WW AD CM] - Notice d'Installation, à lire gratuitement en ligne au format PDF. Nous espérons que cela vous aidera à résoudre toutes les questions que vous pourriez avoir. Si vous avez encore des questions, contactez-nous via le formulaire de contact.

1 Page 1
2 Page 2
3 Page 3
4 Page 4
5 Page 5
6 Page 6
7 Page 7
8 Page 8
9 Page 9
10 Page 10
11 Page 11
Page: / 11

Table des matières:

  • Page 2 – Consignes d'installation
  • Page 3 – prise
  • Page 4 – . Une vis de branchement est
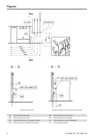
  • Page 5 – Figures
  • Page 8 – Caractéristiques techniques; Raccordement électrique
  • Page 9 – Eau déminéralisée
  • Page 10 – Emission de chaleur dans la pièce d'installation; Conditions d'installation
  • Page 11 – Contact Service Commercial
Téléchargement du manuel

Schéma d'implantation

PG 8582 CD
PG 8583 CD

Lisez

impérativement

ce mode d'emploi et la

documentation de service avant d'installer et de
mettre en service votre appareil. Vous vous pro-
tégerez et éviterez de détériorer votre matériel.

fr - FR, CH

M.-Nr. 10 399 142

„Téléchargement du manuel“ signifie que vous devez attendre que le fichier soit complètement chargé avant de pouvoir le lire en ligne. Certains manuels sont très volumineux, et le temps de chargement dépend de la vitesse de votre connexion Internet.

Autres Manuels pour Miele PG 8582 CD [WW AD CM]

Résumé

Page 2 - Consignes d'installation

Consignes d'installation 2 PG 8582 CD / PG 8583 CD Autorisationd'installation Seuls des électriciens / plombiers habilités sont autorisés à installer le laveur-désinfecteur selon les instructions d'installation. Le laveur-désinfecteur doit être installé conformément aux normes etdirectives en vigueu...

Page 3 - prise

Consignes d'installation PG 8582 CD / PG 8583 CD 3 froide.Les robinets d'eau des conduits d'eau doivent être facilement acces-sibles. Directive pourl'Allemagne et laSuisse En raison des réglementations nationales relatives à la protectionde l'eau potable, les clapets anti-retour joints doivent être ...

Page 4 - . Une vis de branchement est

Consignes d'installation 4 PG 8582 CD / PG 8583 CD Liaison équipo-tentielle et terre Pour améliorer la sécurité il est vivement conseillé d’installer un inter- rupteur de protection contre les courants de court-circuit (30 mA) en amont.Etablissez une liaison équipotentielle . Une vis de branchement ...

Autres modèles de Miele