Miele PLW 8615 [EL] - Notice d'Installation

Miele PLW 8615 [EL]

Miele PLW 8615 [EL] - Notice d'Installation, à lire gratuitement en ligne au format PDF. Nous espérons que cela vous aidera à résoudre toutes les questions que vous pourriez avoir. Si vous avez encore des questions, contactez-nous via le formulaire de contact.

1 Page 1
2 Page 2
3 Page 3
4 Page 4
5 Page 5
6 Page 6
7 Page 7
8 Page 8
9 Page 9
10 Page 10
11 Page 11
12 Page 12
13 Page 13
14 Page 14
15 Page 15
16 Page 16
17 Page 17
18 Page 18
19 Page 19
20 Page 20
21 Page 21
22 Page 22
23 Page 23
24 Page 24
Page: / 24

Table des matières:

  • Page 2 – Table des matières; Consigne pour le schéma d’installation
  • Page 5 – Vue latérale
  • Page 6 – Consignes d'installation; Installation
  • Page 8 – – Câbles vers les contacts libres de potentiel du module de raccor-
  • Page 9 – Raccordement électrique; Raccordement
  • Page 10 – Raccordement à l’air comprimé
  • Page 11 – Raccordement secteur; Description
  • Page 12 – Raccordement à l’eau; Arrivée d’eau
  • Page 13 – Vidange
  • Page 14 – Vue de face détaillée de l'habillage
  • Page 15 – Raccord d’évacuation; sation. Pendant le fonctionnement, un débit permanent de 350 m
  • Page 17 – Module de raccordement; Entrées
  • Page 18 – Sorties libres de potentiel
  • Page 19 – Caractéristiques techniques; Dimensions; Variante
  • Page 20 – Qualité; Air comprimé, technique
  • Page 21 – Eau déminéralisée
  • Page 22 – Évacuation d’air
  • Page 23 – Conditions de fonctionnement; Émission de chaleur; Conditions de transport et de stockage; Dimensions pour le transport y compris palette de transport
Téléchargement du manuel

Schéma d’installation

PLW 8615

fr - FR, BE, CH, LU

M.-Nr. 11 238 672

„Téléchargement du manuel“ signifie que vous devez attendre que le fichier soit complètement chargé avant de pouvoir le lire en ligne. Certains manuels sont très volumineux, et le temps de chargement dépend de la vitesse de votre connexion Internet.

Autres Manuels pour Miele PLW 8615 [EL]

Résumé

Page 2 - Table des matières; Consigne pour le schéma d’installation

Table des matières 2 Consigne pour le schéma d’installation ........................................................................ 3 Dimensions de l’appareil ................................................................................................ 4 Consignes d'installation ...................

Page 5 - Vue latérale

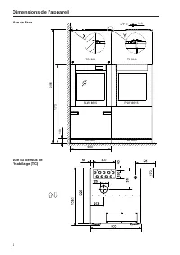
Dimensions de l’appareil 5 Vue latérale RP 900 PLW 8615 TC 900 Vue de dessus socle (FP) 1 2 380 380 298 184 896 136 47 70 25 900 990  Vidange bac collecteur Sens du chargement/ dé-chargement  Vidange

Page 6 - Consignes d'installation; Installation

Consignes d'installation 6 Installation Socle (FP) Un socle est nécessaire pour la mise en place du laveur. Le socle estéquipé de pieds réglables en hauteur et d'un bac de récupération, parexemple pour l'eau de condensation. Socle roulant (RP) Si le laveur est placé dos au mur, il doit être installé...

Autres modèles de Miele