Page 2 - Table des matières; Consigne pour le schéma d’installation
Table des matières 2 Consigne pour le schéma d’installation ........................................................................ 3 Dimensions de l’appareil ................................................................................................ 4 Consignes d'installation ...................
Page 5 - Vue latérale
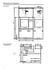
Dimensions de l’appareil 5 Vue latérale RP 1150 PLW 8617 TC 1150 Vue de dessus socle (FP) 1 2 340 330 298 184 896 136 47 70 25 1150 990 340 Vidange bac collecteur Sens du chargement/ dé-chargement Vidange
Page 6 - Consignes d'installation; Installation
Consignes d'installation 6 Installation Socle (FP) Un socle est nécessaire pour la mise en place du laveur. Le socle estéquipé de pieds réglables en hauteur et d'un bac de récupération, parexemple pour l'eau de condensation. Socle roulant (RP) Si le laveur est placé dos au mur, il doit être installé...
Page 8 - – Câbles vers les contacts libres de potentiel du module de raccor-
Consignes d'installation 8 Raccordementsde l'habillage (TC) Les câbles suivants sont acheminés en dehors de la zone d'installa-tion à travers le cache du laveur : 1 3 2 6 5 11 12 8 7 14 13 4 9 10 k Réalisation pour :– Câble d’alimentation électrique– Câble de données– Liaison équipotentielle (en opt...
Page 9 - Raccordement électrique; Raccordement
Consignes d'installation 9 Raccordement électrique Toutes les interventions concernant le raccordement électriquedoivent exclusivement être effectuées par le service après-venteMiele ou un électricien qualifié.L'installation du laveur doit être conforme à la catégorie de mesureCAT II selon CEI 61010...
Page 10 - Raccordement à l’air comprimé
Consignes d'installation 10 Raccordement vapeur (en option) Les laveurs à double chauffage avec vapeur et chauffage électrique(EL/S) doivent être raccordés à la vapeur industrielle sèche. Lestuyaux pour la vapeur et le condensat peuvent être retirés à environ300 mm de l'habillage. Du côté du client,...
Page 11 - Raccordement secteur; Description
Consignes d'installation 11 Raccordement secteur Le laveur est équipé d'une interface Ethernet. La connexion réseauRJ45 est située à l'intérieur de l'habillage, au-dessus de la cuve.Une connexion réseau au-dessus du laveur est nécessaire du côté duclient. Lorsque vous posez le câble réseau et la con...
Page 12 - Raccordement à l’eau; Arrivée d’eau
Consignes d'installation 12 Raccordement à l’eau Arrivée d’eau Ne raccordez le laveur qu'à un réseau de tuyaux complètementpurgé.Une pression brièvement plus élevée peut endommager des com-posants du laveur. La qualité de l'entrée d'eau doit correspondre aux spécifications del'eau potable du pays da...
Page 13 - Vidange
Consignes d'installation 13 Vidange Les eaux usées doivent être récupérées par un conduit collecteur ≥ DN 100 de dimensions appropriées avec une pente. Les conduites d'eaux usées doivent être résistantes à la températurejusqu'à 94 °C au moins. Montez un siphon côté client. Si plusieurs laveurs sont ...
Page 14 - Vue de face détaillée de l'habillage
Consignes d'installation 14 Pompe de vidange(DP) (en option) Le laveur peut être équipé d'une pompe de vidange. La pompe de vi-dange pompe les eaux usées vers une vidange au sol ou uneconduite d'évacuation au plafond. La hauteur maximale de refoule-ment est de 3000 m. ≥ DN 100 ≥ 155 Sens du char-gem...
Page 15 - Raccord d’évacuation; sation. Pendant le fonctionnement, un débit permanent de 350 m
Consignes d'installation 15 Raccord d’évacuation Le laveur doit être raccordé à un système de ventilation ou de climati- sation. Pendant le fonctionnement, un débit permanent de 350 m 3 /h est nécessaire par laveur pour le raccord d’évacuation d’air. En fonc-tion du volume d'air évacué, l'air d'alim...
Page 17 - Module de raccordement; Entrées
Consignes d'installation 17 Module de raccordement Le laveur est équipé d'un module de raccordement dont les entréeset sorties libres de potentiel permettent d'interroger les états de fonc-tionnement et de commander des composants externes. Le modulede raccordement contient 3 connecteurs, le connect...
Page 18 - Sorties libres de potentiel
Consignes d'installation 18 Sorties libres de potentiel Paramètres Le contact est piloté ... off – Séchage actif lorsque le dispositif de séchage est activé Programme en cours alors qu'un programme est en cours Fonctionnement alors que la machine est en marche Panne si un défaut se produit. Statut p...
Page 19 - Caractéristiques techniques; Dimensions; Variante
Caractéristiques techniques 19 Dimensions Hauteur socle inclus 1770 mm Hauteur y compris socle et habillage 2495 mm Largeur 1150 mm Profondeur 990 mm Poids Variante PLW 8617 EL Poids net y compris socle et habillage 477 kg Poids net plus EL/S, DU, SC, TH, RT 667 kg Poids max. en fonctionnement 902 k...
Page 20 - Qualité; Air comprimé, technique
Caractéristiques techniques 20 Raccordement vapeur (en option) Qualité Vapeur industrielle sèche Pression de vapeur (surpression) 250-1000 kPa Capacité d'aménagement de la conduite de vapeur et decondensat 50 kg/h Conduite de vapeur, côté client, avec robinet d'arrêt, filetageextérieur, étanchéité d...
Page 21 - Eau déminéralisée
Caractéristiques techniques 21 Arrivée d’eau Raccordements à l’eau - Eau froide - Eau chaude - Eau déminéralisée 2 1 2 Température de l’eau - Eau froide - Eau chaude - Eau déminéralisée 5–20 °C 5–65 °C 5–65 °C Raccordement, côté client, avec robinet d'arrêtfiletage extérieur, étanchéité de surface 3...
Page 22 - Évacuation d’air
Caractéristiques techniques 22 Température de l'eau max. 94 °C Débit volumétrique temporaire max. 162 l/min Hauteur de refoulement min. 200 mm Hauteur de refoulement max. 3000 mm Tuyaux de diamètre intérieur ( Ø ) 22 mm Conduite d’évacuation ≥ DN 100 Circuit de refroidissement* (en option) Capacité ...
Page 23 - Conditions de fonctionnement; Émission de chaleur; Conditions de transport et de stockage; Dimensions pour le transport y compris palette de transport
Caractéristiques techniques 23 Conditions de fonctionnement Température ambiante 5–40 °C Humidité relative de l'air :minimalemaximale pour des températures allant jusqu'à 31 °Cdiminuant linéairement pour des températures allant jusqu'à40 °C 10 %80 %50 % Altitude au-dessus du niveau de la mer jusqu'à...