Whirlpool WML55011HW - Notice d'Installation

Micro-ondes Whirlpool WML55011HW - Notice d'Installation, à lire gratuitement en ligne au format PDF. Nous espérons que cela vous aidera à résoudre toutes les questions que vous pourriez avoir. Si vous avez encore des questions, contactez-nous via le formulaire de contact.
Table des matières:
- Page 2 – INSTRUCTIONS D’UTILISATION DE L’ENSEMBLE; Table des matières; SÉCURITÉ DE L’ENSEMBLE HOTTE/FOUR À MICRO-ONDES; Risque possible de décès ou de blessure grave si vous ne; Votre sécurité et celle des autres est très importante.; AVERTISSEMENT; présentes dans ces instructions d’installation.
- Page 3 – EXIGENCES D’INSTALLATION; Outils et pièces; Outils nécessaires; Exigences d’emplacement; Exigences spéciales; Pour une installation avec décharge murale seulement :
- Page 4 – Dimensions d’installation; Dimensions du produit; Risque de choc électrique; INSTRUCTIONS DE LIAISON; Pour tout appareil ménager connecté par un cordon; L’utilisation incorrecte du
- Page 5 – INSTRUCTIONS D’INSTALLATION
- Page 6 – Installation du couvercle d’évent; (pour décharge à travers le mur et à l’extérieur); Identification de la position des montants de cloison
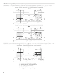
- Page 7 – Configurations possibles des montants de cloison; Aucun montant de cloison à la position des trous d’extrémité
- Page 8 – Montants de cloison à la position des trous d’extrémité; Préparation de l’armoire supérieure
- Page 9 – Tracé sur le mur arrière; Installation avec décharge murale uniquement
- Page 11 – Montant de cloison coïncident avec deux trous; Installation du four à micro-ondes; Risque du poids excessif
- Page 12 – Terminer l’installation; SPÉCIFICATIONS/CONCEPTION DU CIRCUIT D’ÉVACUATION; Recommandations pour un circuit d’évacuation optimal :
- Page 13 – Longueur recommandée du circuit d’évacuation; Conduit de 3 1⁄
- Page 14 – Pièces de rechange
14
NOTE
„Téléchargement du manuel“ signifie que vous devez attendre que le fichier soit complètement chargé avant de pouvoir le lire en ligne. Certains manuels sont très volumineux, et le temps de chargement dépend de la vitesse de votre connexion Internet.
Autres Manuels pour Whirlpool WML55011HW
Résumé
INSTRUCTIONS D’UTILISATION DE L’ENSEMBLE HOTTE/FOUR À MICRO-ONDES Table des matières SÉCURITÉ DE L’ENSEMBLE HOTTE/FOUR À MICRO-ONDES Risque possible de décès ou de blessure grave si vous ne suivez pas immédiatement les instructions. Risque possible de décès ou de blessure grave si vous ne suivez pas...
16 EXIGENCES D’INSTALLATION Outils et pièces Outils nécessaires Rassembler les outils et pièces nécessaires avant d’entreprendre l’installation. Lire et observer les instructions fournies avec chacun des outils de la liste ci-dessous. ■ Ruban à mesurer ■ Crayon ■ Ruban-cache ou punaises ■ Ciseaux ■ ...
17 Dimensions d’installation REMARQUE : La prise de courant à 3 alvéoles reliée à la terre doit être située à l’intérieur de l’armoire supérieure. Voir la section “Spécifications électriques”. *24 po (61 cm) est typique pour une hauteur d’installation de 60 po (152,4 cm). Les dimensions exactes peuv...