Whirlpool WVW53UC6HV - Notice

Hotte de cuisine Whirlpool WVW53UC6HV - Notice, à lire gratuitement en ligne au format PDF. Nous espérons que cela vous aidera à résoudre toutes les questions que vous pourriez avoir. Si vous avez encore des questions, contactez-nous via le formulaire de contact.
Table des matières:
- Page 2 – Your safety and the safety of others are very important.; DANGER
- Page 4 – SÉCURITÉ DE LA HOTTE DE CUISINIÈRE; Votre sécurité et celle des autres est très importante.; AVERTISSEMENT
- Page 5 – IMPORTANTES INSTRUCTIONS DE SÉCURITÉ; LIRE ET CONSERVER CES INSTRUCTIONS
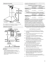
- Page 6 – EXIGENCES D’INSTALLATION; Outils et pièces; Outils nécessaires; Pièces fournies; Exigences d’emplacement; Installation dans une résidence mobile
- Page 7 – Exigences concernant l’évacuation; (seulement pour un modèle
- Page 9 – Spécifications électriques
- Page 10 – INSTRUCTIONS D’INSTALLATION; Préparation de l’emplacement; Installation des vis de montage de la hotte
- Page 11 – Achever la préparation; Installation de la hotte
- Page 12 – Raccordement électrique
- Page 13 – Installation des cache‐conduits; Achever l’installation
- Page 14 – UTILISATION DE LA HOTTE; Commandes de la hotte de cuisinière; Utilisation de l’éclairage
- Page 15 – ENTRETIEN DE LA HOTTE; Nettoyage; Surfaces externes
- Page 16 – SCHÉMA DE CÂBLAGE; Ph Neu Terre
- Page 17 – ASSISTANCE OU SERVICE; Au Canada
- Page 18 – SI VOUS AVEZ BESOIN DE SERVICE :; GARANTIE LIMITÉE DE UN AN
30" AND 36" (76.2 AND 91.4 CM)
WALL‑MOUNT CANOPY RANGE HOOD
Installation Instructions and Use and Care Guide
For questions about features, operation/performance, parts, accessories, or service, call:
1-800-253-1301
or visit our website at
www.whirlpool.com.
In Canada, call
1-800-807-6777 or visit our website at www.whirlpool.ca.
HOTTE DE CUISINIÈRE À MONTAGE MURAL
DE 30" ET 36" (76,2 ET 91,4 CM)
Instructions d’installation et Guide d’utilisation et d’entretien
Au Canada, pour assistance, installation ou service, composer le
1-800-807-6777
ou visiter notre site Web à
www.whirlpool.ca.
Table of Contents/Table des matières ..................................... 2
LIB0114550D/W11134240C
IMPORTANT: READ AND SAVE THESE INSTRUCTIONS.
FOR RESIDENTIAL USE ONLY.
IMPORTANT : LIRE ET CONSERVER CES INSTRUCTIONS.
POUR UTILISATION RÉSIDENTIELLE UNIQUEMENT.
„Téléchargement du manuel“ signifie que vous devez attendre que le fichier soit complètement chargé avant de pouvoir le lire en ligne. Certains manuels sont très volumineux, et le temps de chargement dépend de la vitesse de votre connexion Internet.
Autres Manuels pour Whirlpool WVW53UC6HV
Résumé
2 TABLE OF CONTENTS TABLE DES MATIÈRES RANGE HOOD SAFETY You can be killed or seriously injured if you don't immediately You can be killed or seriously injured if you don't follow All safety messages will tell you what the potential hazard is, tell you how to reduce the chance of injury, and tell yo...
16 SÉCURITÉ DE LA HOTTE DE CUISINIÈRE Risque possible de décès ou de blessure grave si vous ne suivez pas immédiatement les instructions. Risque possible de décès ou de blessure grave si vous ne suivez pas les instructions. Tous les messages de sécurité vous diront quel est le danger potentiel et vo...
17 IMPORTANTES INSTRUCTIONS DE SÉCURITÉ LIRE ET CONSERVER CES INSTRUCTIONS AVERTISSEMENT : POUR RÉDUIRE LE RISQUE D'INCENDIE, CHOC ÉLECTRIQUE OU DOMMAGES CORPORELS, RESPECTER LES INSTRUCTIONS SUIVANTES : ■ Utiliser cet appareil uniquement dans les applications envisagées par le fabricant. Pour toute...