Page 2 - Les propriétaires
CITY MULTI : A l’image de toutes les exigences… L'adaptabilité L’économie Le bien-être L’environnement respecté La simplicité La discrétion L’adaptabilité L’économie Le contrôle L'environnement respecté La maîtrise technologique La simplicité L’économie La simplicité Le bien-être ● Répond aux attent...
Page 3 - S O M M A I R E
1 Unités intérieures Page 34 Présentation Caractéristiques Techniques Cassette 600x600 PLFY-P VCM-E Page 35 Page 46 Cassette 4 voies PLFY-P VAM-E Page 36 Page 47 Cassette 2 voies PLFY-P VLM-D Page 38 Page 48 Cassette 1 voie PMFY-P VBM-E Page 39 Page 50 Gainable PVFY-P VML/VMH/VMM-E Page 40 Page 51 à...
Page 4 - C I T Y M U L T I; La nouvelle gamme CITY MULTI au; L a g a m m e l a p l u s c o m p l è t e d u m a rc h é; S é r i e P U M Y; L a g a m m e D R V d e M I T S U B I S H I E L E C T R I C; S é r i e P U H Y; Fr o i d o u C h a u d ( c o n d e n s a t i o n à a i r )
2 C I T Y M U L T I La nouvelle gamme CITY MULTI au R410A offre désormais une souplesse jamais atteinte grâce à la quantité de modèles proposés. “ L a g a m m e l a p l u s c o m p l è t e d u m a rc h é ” S é r i e P U M Y Fr o i d o u C h a u d ( c o n d e n s a t i o n à a i r ) L a g a m m e D R...
Page 5 - S é r i e R 2; Fr o i d e t C h a u d s i m u l t a n é ( c o n d e n s a t i o n à a i r ); S é r i e W R 2; Fr o i d e t C h a u d s i m u l t a n é ( c o n d e n s a t i o n à e a u ); S é r i e W Y; Fr o i d o u C h a u d ( c o n d e n s a t i o n à e a u ); 9 MODÈLES D’UNITÉS INTÉRIEURES
3 MITSUBISHI ELECTRIC propose la gamme de DRV la plus complète du marché avec 34 modèles d’unités extérieures ! S é r i e R 2 Fr o i d e t C h a u d s i m u l t a n é ( c o n d e n s a t i o n à a i r ) • Jusqu’à 32 unités intérieures raccordables • 10 modèles disponibles d’une puissance frigorifiqu...
Page 6 - CONCU POUR FAIRE; C I T Y M U L T I; S E R I E P U M Y; L e p l u s h a ut; Fo n c t i o n c o n t r ô l e d e l a c o n s o m m a t i o n é n e r g é t i q u e
Fonction de contrôle de la consommation énergétique 4 CONCU POUR FAIRE DES ECONOMIES D’ÉNERGIES Cette fonction assure une répartition optimale de la puissance en fonction des variations de fréquence réduire les dépenses d’énergie sur l’année. Les circuits de l’Inverter ont été moulés dans de la rési...
Page 7 - I n s t a l l a t i o n f a c i l e , m a i n t e n a n c e s i m p l i f i é e
5 L a s t r u c t u r e à a i l e t t e s p l a t e s a i n s i q u e l e n o u v e a u s y s t è m e a n t i - c o r r o s i o n p r é v i e n n e n t t o u t e n c r a s s e m e n t d e l ’ u n i t é a s s u r a n t a i n s i u n f o n c t i o n n e m e n t o p t i m a l e t é c o n o m i q u e d ...
Page 8 - P r o t e c t i o n g l o b a l e d e l ’ e n v i r o n n e m e n t; S E R I E P U H Y - P U R Y; Grâce à l’application des nouvelles; Nouvelle technologie hélicoïdale; Mitsubishi Electric a été l’un des premiers il y a près de 10 ans; Ventilateur
6 “ U n s y s t è m e D R Vu l t r a s i l e n c i e u x ” P r o t e c t i o n g l o b a l e d e l ’ e n v i r o n n e m e n t Nouveau moteur deventilation inverter Compresseur scroll inverterhaute efficacité. Le compartiment compresseur estencapsulé et séparé de la partieéchangeur, permettant encor...
Page 9 - A u g m e n t a t i o n d e l a p u i s s a n c e f r i g o r i f i q u e s e n s i b l e; ainsi le confort des occupants.; Réduction des sections de tubes; Presssion statique externe jusqu’à 60 Pa
7 A u g m e n t a t i o n d e l a p u i s s a n c e f r i g o r i f i q u e s e n s i b l e E n r é g l a n t t o u t s i m p l e m e n t u n s w i t c h s u r l e s u n i t é s i n t é r i e u r e s g a i n a b l e s e t c o n s o l e s , i l e s t p o s s i b l e d ’ o b t e n i r u n e t e m p é ...
Page 12 - S E R I E Y - R 2
Fonctionnement Fonctionnement des “Compresseurs des “Compresseurs de secours” de secours” Fonctionnement Fonctionnement des “Compresseurs des “Compresseurs de secours” de secours” Fonctionnement des “Compresseurs de secours” Fonctionnement Fonctionnement des “Compresseurs des “Compresseurs de secour...
Page 18 - C I T Y M U L T I / Y
1 6 P 2 0 0 - 2 5 0 C I T Y M U L T I / Y -20°C C H A U FF AGE GAR A N T I Modèles PUHY-P200YGM-A PUHY-P250YGM-A F R O ID Puissance nominale kW 22.40 28.00 Puissance absorbée totale nominale kW 6.14 7.72 Coeffi cient de performance EER - 3.65 3.62 Plage de fonctionnement (T°ext. sèche/sèche) °C -5 (...
Page 26 - C I T Y M U L T I / R 2
2 4 Modèles PURY-P200 YGM-A PURY-P250 YGM-A PURY-P300 YGM-A PURY-P350 YGM-A PURY-P400 YGM-A F R O ID Puissance nominale kW 22.40 28.00 33.5 40.00 45.00 Puissance absorbée totale nominale kW 6.14 7.72 9.57 11.39 13.42 Coeffi cient de performance EER - 3.65 3.63 3.50 3.51 3.35 Plage de fonctionnement ...
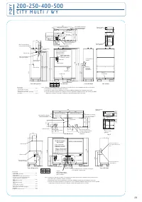
Page 30 - C I T Y M U L T I / W Y
2 8 Modèles PQHY-P200YGM-A PQHY-P250YGM-A PQHY-P400YGM-A + kit PQY-P01YGM-A PQHY-P500YGM-A + kit PQY-P01YGM-A F R O ID Puissance nominale kW 22.40 28.00 45.00 56.00 Puissance absorbée totale nominale kW 4.79 5.95 11.35 15.06 - 4.68 4.71 3.91 3.72 Plage de fonctionnement (T°ext. sèche/sèche) °C +15/+...
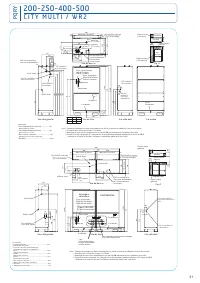
Page 32 - C I T Y M U L T I / W R 2
3 0 Modèles PQRY-P200YGM-A PQRY-P250YGM-A PQRY-P400YGM-A + kit PQY-P01YGM-A PQRY-P500YGM-A + kit PQY-P01YGM-A F R O ID Puissance nominale kW 22.40 28.00 45.00 56.00 Puissance absorbée totale nominale kW 4.79 5.95 11.35 15.06 - 4.68 4.71 3.91 3.72 Plage de fonctionnement (T°ext. sèche/sèche) °C +15/+...
Page 34 - B O I T I E R S D E R E P A R T I T I O N
3 2 Modèles CMB-P104V-G CMB-P105V-G CMB-P106V-G CMB-P108V-G CMB-P1010V-G CMB-P1013V-G CMB-P1016V-G Unités extérieures Hauteur mm 284 284 284 284 284 284 284 Largeur mm 648 648 648 648 648 1098 1098 Profondeur mm 362 + 70 362 + 70 362 + 70 362 + 70 362 + 70 362 + 70 362 + 70 Données frigorifiques Dia...
Page 39 - C A S S E T T E E N C A S T R A B L E 4 V O I E S
3 7 C I T Y M U L T I C A S S E T T E E N C A S T R A B L E 4 V O I E S Exemple d’application : les magasins d’alimentation C e s u n i t é s s o n t i d é a l e s p o u r m a i n t e n i r c o n s t a n t e l a t e m p é r a t u r e d a n s d e s e n v i r o n n e m e n t s é q u i p é s d e v i t ...
Page 45 - 9 , 5 c m d e h a u t e u r ! U n m o d è l e c o m p a c t e t é l é g a n t
4 3 8.5kg : facile à transporter et simple à installer (VAM) 29.5cm de hauteur ! Une unité qui s’installe idéalement au dessus des portes et fenêtres (VAM ) P20 Puissance P25 P32 P40 P50 P63 P100 VAM VGM VFM 3 2 1 (1) L’unité intègre un variateur devitesse du ventilateur. La ventilations’effectue da...
Page 47 - U n e g a m m e c o m p l è t e de 69 m o d è l e s
4 5 U N I T É S I N T É R I E U R E S C I T Y M U L T I Cassette encastrable(1 voie) PMFY-VBM-E Puissance Frigorifique (kW) Puissance Calorifique (kW) Cassette encastrable(2 voies) PLF Y-VLMD-E Gainable faible pression PEFY - VML moyenne pression PEFY-VMM Haute pression PEFY-VMH Plafonnier apparent ...
Page 48 - C A S S E T T E 6 0 0 X 6 0 0 P L F Y _ V C M
4 6 C A S S E T T E 6 0 0 X 6 0 0 P L F Y _ V C M C I T Y M U L T I Modèles PLFY-P20VCM-E PLFY-P25VCM-E PLFY-P32VCM-E PLFY-P40VCM-E Puissance nominale en FROID 2.20 2.80 3.60 4.50 Puissance nominale en CHAUD 2.50 3.20 4.00 5.00 Unités intérieures Débit d’air en Froid PV/MV/GV m 3 /h 480/540/600 480/...
Page 49 - C A S S E T T E P L F Y - V A M
4 7 C A S S E T T E P L F Y - V A M C I T Y M U L T I Modèles PLFY-P32VAM-E PLFY-P40VAM-E PLFY-P50VAM-E PLFY-P63VAM-E Puissance nominale en FROID 3.60 4.50 5.60 7.10 Puissance nominale en CHAUD 4.00 5.00 6.30 8.00 Unités intérieures Débit d’air en Froid PV/MV1/MV2/GV m 3 /h 660-720-780-840 720-780-8...
Page 50 - C a s s e t t e 2 v o i e s P L F Y - P _ V L M D
4 8 C a s s e t t e 2 v o i e s P L F Y - P _ V L M D C I T Y M U L T I Modèles PLFY-P20VLMD-E PLFY-P25VLMD-E PLFY-P32VLMD-E PLFY-P40VLMD-E Puissance nominale en FROID 2.20 2.80 3.60 4.50 Puissance nominale en CHAUD 2.50 3.20 4.00 5.00 Unités intérieures Débit d’air en Froid PV/MV/GV m 3 /h 390/480/...
Page 52 - C a s s e t t e 1 v o i e P M F Y - P _ V B M
Modèles PMFY-P20VBM-E PMFY-P25VBM-E PMFY-P32VBM-E PMFY-P40VBM-E Puissance nominale en FROID 2.20 2.80 3.60 4.50 Puissance nominale en CHAUD 2.50 3.20 4.00 5.00 Unités intérieures Débit d’air en Froid PV/MV/GV m 3 /h 390-432-480-522 438-480-516-558 438-480-516-558 462-522-582-642 Pression acoustique ...
Page 53 - G a i n a b l e “ H ô t e l l e r i e ” P E F Y - P _ V M L
5 1 G a i n a b l e “ H ô t e l l e r i e ” P E F Y - P _ V M L C I T Y M U L T I Modèles PEFY-P20VML-E PEFY-P25VML-E PEFY-P32VML-E Puissance nominale en FROID 2.20 2.80 3.60 Puissance nominale en CHAUD 2.50 3.20 4.00 Unités intérieures Débit d’air en Froid PV/MV/GV m 3 /h 288/348/474 288/348/474 28...
Page 56 - G a i n a b l e s t a n d a r d P E F Y - P _ V M M
5 4 G a i n a b l e s t a n d a r d P E F Y - P _ V M M C I T Y M U L T I Modèles PEFY- P20VMM-E PEFY-P 25VMM-E PEFY-P 32VMM-E PEFY-P 40VMM-E PEFY-P 50VMM-E PEFY-P 63VMM-E Puissance nominale en FROID 2.20 2.80 3.60 4.50 5.60 7.10 Puissance nominale en CHAUD 2.50 3.20 4.00 5.00 6.30 8.00 Unités intér...
Page 62 - L O S S N A Y; APPORT D’AIR NEUF ET; L’apport d’air neuf peut être une solution pour y remédier
6 0 L O S S N A Y APPORT D’AIR NEUF ET RECUPERATEUR D’ENERGIE C o m p o s i t i o n d u L o s s n a y L e L O S S N AY e s t c o n s t r u i t d e t e l l e s o r t e q u e l e p a s s a g e d e l ’ a i r r e j e t é d e p u i s l ’ i n t é r i e u r d u l o c a l v e r s l ’ e x t é r i e u r ( R A...
Page 63 - S c h é m a d e p r i n c i p e
6 1 L O S S N A Y Récupérateur d’enthalpie (température/hygrométrie) S c h é m a d e p r i n c i p e Fo r m u l e d e c a l c u l T s a = ( T r a - T o a ) x R e n d e m e n t L O S S N AY + Toa E x e m p l e : ( 2 0 ° C - 0 ° C ) x 7 7 % + 0 ° C = 1 5 , 4 ° C ( e n h i v e r ) ( 2 6 ° C - 3 3 ° C )...
Page 64 - R e s t a u r a n t s; Dans un restaurant l’air n’est jamais trop; B u r e a u x; La pureté de l’air améliore; Pourquoi choisir une unité Lossnay
6 2 L O S S N A Y R e s t a u r a n t s Dans un restaurant l’air n’est jamais trop pur ni trop frais Po u r u n r e s t a u r a n t , l e s c o n d i t i o n s d e l ’ a i r s o n t t r è s i m p o r t a n t e s p o u r l a c l i e n t è l e e t s i e l l e e s t s a t i s f a i t e e l l e r e v i ...
Page 67 - LOSSNAY; Accessoires LOSSNAY; O D È L E S; locaux modulaires
6 5 Unités intérieures LGH-40ES VL-100U-ES Débit d’air en froid (PV-GV) m 3 /h 250-400 65-105 Pression acoustique en froid à 1 m (PV-GV) dB(A) 32-41 29-39 Rendement d’échange sur la température % 66-60 77-72 Pression statique disponible Pa 0 0 Dimensions H x L x P mm 255x930x693 265x820x168 Poids ne...
Page 68 - S Y S T È M E D E C O N T R Ô L E C I T Y M U LT I; E x e m p l e d ’ i n s t a l l a t i o n
6 6 S Y S T È M E D E C O N T R Ô L E C I T Y M U LT I Commande centralisée Télécommande PARF27 Télécommande PARF27 Commande centralisé Câble bus bus Câble bus Télécommande PAC-SE 51 Télécommande PAC-YT 51 Câble Bus Commande PAR20 câble commande Commande PAR21 (1) • Affichage par symbole d’une grand...
Page 70 - T É L É C O M M A N D E D E G R O U P E; P A C - S C 3 0 G R A; TÉLÉCOMMANDE INFRAROUGE AUTO-ADRESSABLE; P A R - F L 3 2 M A; C O M M A N D E S I M P L I F I É E A U T O - A D R E S S A B L E; EXEMPLE D’INSTALLATION
6 8 T É L É C O M M A N D E D E G R O U P E P A C - S C 3 0 G R A EXEMPLE D’INSTALLATION • Une utilisation ultra simplifiée : il vous suffit de sélectionner marche/arrêt et la température de la pièceet la vitesse de ventilation souhaitées. • Un seul branchement à 2 fils est nécessaire. • Capteur de ...
Page 71 - TÉLÉCOMMANDE SYSTÈME; P A C - S F 4 4 S R A; HORLOGE PROGRAMMABLE; P A C - Y T 3 4 S T A
6 9 • C o m m a n d e d e M a r c h e / A r r ê t d e 8 g r o u p e s ( m a x i m u m d e 1 6 u n i t é s ) . • R è g l a g e s i n d i v i d u e l s p o u r c h a q u e g r o u p e . • C o m m a n d e M a r c h e / A r r ê t d e s u n i t é s p o s s i b l e s s a n s u t i l i s e r d e c o m m a ...
Page 72 - N O U V; é c o n o
7 0 Ligne téléphonique publique G-50 Routeur Ethernet City Multi M-NET Contrôle à distance via un navigateur Navigateur web G-50 City Multi M-NET Fournisseur Fournisseur Fonctionnement E x e m p l e d ' i c ô n e s ( c l i m a t i s e u r s ) Stop Anomalie Fonctionnement/ Alerte filtre En fonctionne...
Page 73 - N ° 1 s u r D; C o m p a t i b i l i t é F i d e l i o; L o g i c i e l d e r é s e r v a t i o n h ô t e l i è r e
7 1 C I T Y M U L T I Supervision des bâtimentsLa solution MITSUBISHI ELECTRIC Le DRV City Multi de Mitsubishi Electric a été conçu pour être compatible avecles protocoles de communication les pluscouramment utilisées (Bac Net, OPC Serveur,Lon, XML, Mod Bus. Les fonctions disponibles permettent deré...
Page 76 - 5, boulevard des Bouvets • 92741 Nanterre cedex • * • Fax 01 55 68 57 35; EUROPE
25, boulevard des Bouvets • 92741 Nanterre cedex • * • Fax 01 55 68 57 35 w w w . c l i m . m i t s u b i s h i e l e c t r i c . f r Ce document n'est pas contractuel. Mitsubishi Electric se réserve le droit d'opérer sans préavis toutes modifications techniques ou de catalogue. Pour tout renseignem...