Page 3 - Table des matières
Table des matières 3 Consignes de sécurité et mises en garde ....................................................... 5 Votre contribution à la protection de l'environnement .................................. 16 Description de l'appareil ..................................................................
Page 4 - Adaptation à un autre type de gaz
Table des matières 4 Instructions d'encastrement – standard.............................................................. 41Découpe du plan de travail – standard ............................................................... 43Barrettes de jonction – standard ..........................................
Page 5 - Consignes de sécurité et mises en garde
Consignes de sécurité et mises en garde 5 Ce wok est conforme aux réglementations de sécurité en vigueur.Toute utilisation non conforme peut toutefois causer des dom-mages corporels et matériels. Lisez attentivement le mode d'emploi et les instructions de mon-tage avant de mettre le wok en service. ...
Page 6 - Utilisation conforme; Ce wok est destiné à un usage domestique ou dans des condi-
Consignes de sécurité et mises en garde 6 Utilisation conforme Ce wok est destiné à un usage domestique ou dans des condi- tions d'utilisation semblables au cadre domestique. Ce wok ne convient pas à une utilisation en extérieur. Utilisez le wok exclusivement dans le cadre domestique pour la p...
Page 7 - Précautions à prendre avec les enfants
Consignes de sécurité et mises en garde 7 Précautions à prendre avec les enfants Tenez les enfants de moins de huit ans éloignés du wok à moins qu'ils ne soient sous étroite surveillance. Les enfants âgés de 8 ans et plus peuvent uniquement utiliser le wok sans surveillance si vous leur en avez ...
Page 8 - Sécurité technique; Un wok endommagé représente un danger potentiel pour votre
Consignes de sécurité et mises en garde 8 Sécurité technique Des travaux d'installation, d'entretien ou de réparation non conformes peuvent entraîner de graves dangers pour l'utilisateur.Ces interventions doivent être exécutées exclusivement par des pro-fessionnels agréés par Miele. Un wok endom...
Page 10 - - les fusibles correspondants sont déclenchés ou
Consignes de sécurité et mises en garde 10 Avant toute intervention d'installation, de maintenance ou de répa- ration, commencez par débrancher votre wok du secteur électrique.l'arrivée de gaz doit être fermée. Pour vous assurer que l'appareil estbien débranché : - les fusibles correspondants sont...
Page 14 - Si le wok à gaz n'a pas été utilisé pendant une période anormale-
Consignes de sécurité et mises en garde 14 Une utilisation intensive et longue du wok peut rendre nécessaire une aération supplémentaire comme l'ouverture d'une fenêtre ou uneaération plus efficace, par ex. le fonctionnement du dispositif d'aéra-tion mécanique existant à un niveau de puissance plu...
Page 15 - Nettoyage et entretien; N'utilisez jamais de nettoyeur vapeur pour nettoyer votre wok.
Consignes de sécurité et mises en garde 15 Nettoyage et entretien N'utilisez jamais de nettoyeur vapeur pour nettoyer votre wok. La vapeur qui s'en dégage pourrait se déposer sur les élémentsconducteurs d'électricité et provoquer un court-circuit. Miele offre une garantie d'approvisionnement de ...
Page 16 - Votre contribution à la protection de l'environnement; Nos emballages
Votre contribution à la protection de l'environnement 16 Nos emballages Nos emballages protègent votre appa-reil des dommages pouvant survenirpendant le transport. Nous les sélec-tionnons en fonction de critères écolo-giques permettant d'en faciliter le recy-clage. En participant au recyclage de vos...
Page 18 - Bouton de commande
Description de l'appareil 18 Bouton de commande a Brûleur éteint L'arrivée de gaz est fermée b Flamme la plus forte Le brûleur extérieur et intérieur brûlent à puissance maximale c Flamme forte Le brûleur extérieur brûle à puissance minimale, le brûleur intérieur à puissancemaximale d Po...
Page 19 - Brûleur; Couvercle de brûleur, extérieur
Description de l'appareil 19 Brûleur a b c e f d a Couvercle de brûleur, extérieur b Couvercle de brûleur, intérieur c Tête de brûleur d Partie inférieure du brûleur e Thermocouple f Électrode d'allumage
Page 20 - Accessoires fournis; Anneau wok
Description de l'appareil 20 Accessoires fournis Pour commander les accessoires desérie ou en option, veuillez vous repor-ter au chapitre « Accessoires en op-tion ». Anneau wok L'anneau wok fourni assure une plusgrande stabilité de l'appareil. Il est parti-culièrement approprié pour les woks àfond r...
Page 21 - Première mise en service
Première mise en service 21 Veuillez coller la plaque signalétiquejointe aux documents accompagnantvotre appareil à l'emplacement prévuà cet effet sous « Service après-vente ». Enlevez les éventuels autocollants etfilms de protection. Nettoyer un domino SmartLinepour la première fois Nettoyez ...
Page 22 - Ustensiles de cuisson; Diamètre minimal du fond du réci-
Ustensiles de cuisson 22 Diamètre minimal du fond du réci- pient de cuisson [cm] Poêles/ Casse-roles 14 Diamètre maximal haut du récipient de cuisson [cm] Poêles/ Casse-roles 30 - Respectez les dimensions indiquées dans le tableau. Utiliser des casse-roles trop grandes peut causer unétalement des fl...
Page 24 - Utilisation; Mise en marche; Risque d'incendie par suite de; FlameGuard
Utilisation 24 Mise en marche Si vous utilisez le domino de cuissonà gaz à côté d'une hotte de table, lafonction du domino de cuisson gazest impactée.Placez le FlameGuard entre le domi-no de cuisson gaz et le dominohotte. Risque d'incendie par suite de surchauffe.Les aliments qui ne sont pas sur-v...
Page 25 - Régler le feu
Utilisation 25 Régler le feu Comme la partie extérieure de laflamme du gaz est plus chaude que lecœur de flamme, les pointes deflammes doivent rester sous le fondde la casserole. Des pointes deflammes qui dépassent transmettentinutilement de la chaleur à l'air,peuvent endommager des poignées etaugme...
Page 26 - - Après avoir démarré la cuisson de
Conseils d'économie d'énergie 26 - Si possible, couvrez toujours vos ali- ments pendant la cuisson. Vous évi-terez des déperditions de chaleur in-utiles. - Choisissez de préférence des casse- roles larges et planes, plutôtqu'étroites et hautes. Elles sont plusfaciles à chauffer. - Ajoutez très peu d...
Page 27 - Dispositifs de sécurité; pour continuer à utiliser la
Dispositifs de sécurité 27 Sécurité d'allumage thermo-électrique Votre wok est équipé d'une sécuritéd'allumage thermoélectrique. Lorsquela flamme du gaz s'éteint, par exempleen cas de surchauffe des aliments ouen cas de courant d'air, l'arrivée de gazest verrouillée, ce qui empêche toutefuite de gaz...
Page 28 - Risque de brûlure à cause de; Produits à ne pas utiliser; - de produit nettoyant à base de
Nettoyage et entretien 28 Risque de brûlure à cause de surfaces chaudes.Les surfaces, les supports du wok etles brûleurs restent très chaudsaprès la cuisson.Laissez refroidir les surfaces avantde nettoyer le wok. Dommages en cas de pénétra- tion d’humidité.La vapeur d'un nettoyeur vapeurrisque d...
Page 29 - taches
Nettoyage et entretien 29 Nettoyer la surface vitrocéra-mique Dommages causés par des ob- jets pointus.La bande d'étanchéité entre le domi-no SmartLine et le plan de travailpeut être endommagée.N'utilisez pas d'objets pointus pournettoyer votre appareil. Le liquide vaisselle n'élimine pastoutes le...
Page 30 - Retirez les supports de casseroles.
Nettoyage et entretien 30 Nettoyer les boutons de com-mande Nettoyez le/ les boutons de com-mande avec un chiffon, de l'eauchaude et un peu de liquide vaisselle.Ramollissez les salissures tenaces aupréalable. Séchez le/ les boutons de commandeavec un chiffon propre. Nettoyer les supports de cas-...
Page 31 - Nettoyer le brûleur
Nettoyage et entretien 31 Nettoyer le brûleur Ne lavez jamais les pièces des brû-leurs au lave-vaisselle ! La surface du couvercle de brûleur de-viendra plus mate au fil du temps.C'est tout à fait normal, et cela ne si-gnifie pas que le matériau est endom-magé. Retirez toutes les pièces amoviblesd...
Page 32 - Monter le brûleur
Nettoyage et entretien 32 Monter le brûleur a b c e f d Posez la tête du brûleur sur la base de sorte que le thermo- couple et l'électrode d'allumage se logent dans les trous de la tête. Latête du brûleur doit s'enclencher par-faitement. Posez les couvercles du brûleur et . Vei...
Page 35 - Accessoires en option
Accessoires en option 35 Miele propose une large gamme d'ac-cessoires Miele parfaitement adaptés àl'entretien et au nettoyage de vos appa-reils. Pour les commander, il vous suffit devous rendre sur la boutique en ligneMiele. Ils sont également disponibles auprèsdu service après-vente Miele (voir la ...
Page 36 - Service après vente; Contact en cas d'anomalies
Service après vente 36 Contact en cas d'anomalies Vous n'arrivez pas à résoudre l'anomalie par vous-même ? Contactez le serviceaprès-vente Miele ou votre revendeur Miele. Vous pouvez prendre rendez-vous en ligne avec le service après-vente Mielesous www.miele.com/service. Les coordonnées du service ...
Page 37 - Installation; Consignes de sécurité pour le montage; Dommages liés à un montage incorrect.
Installation *INSTALLATION* 37 Consignes de sécurité pour le montage Dommages liés à un montage incorrect. Le domino SmartLine peut être endommagé en raison d'un montage incorrect.Faites installer le domino SmartLine uniquement par un technicien qualifié. Dommages liés à la chute d'objets. Le do...
Page 38 - Distances de sécurité
Installation *INSTALLATION* 38 Distances de sécurité Distance de sécurité au-dessus dudomino SmartLine La distance de sécurité prescrite par lefabricant de la hotte entre le dominoSmartLine et la hotte doit être respec-tée. Si des matériaux facilement inflam-mables (placards, par exemple) sontmontés...
Page 39 - Distance de sécurité latérale / arrière
Installation *INSTALLATION* 39 Distance de sécurité latérale / arrière Le domino SmartLine doit être installéde préférence en laissant un espace gé-néreux à droite et à gauche. À l'arrière du domino SmartLine, il fautrespecter la distance minimale indiquéeci-dessous par rapport à un meuble haut o...
Page 40 - Distance de sécurité avec la crédence
Installation *INSTALLATION* 40 Distance de sécurité avec la crédence Lorsqu'une crédence est posée, la distance minimale entre la découpe et la cré-dence doit être respectée, car les températures élevées peuvent abîmer ou dé-truire le matériau de la crédence. Pour une crédence en matériau inflammabl...
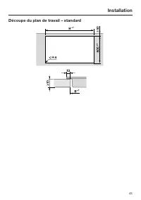
Page 41 - Plan de travail carrelé
Installation *INSTALLATION* 41 Instructions d'encastrement – standard Joint entre le domino SmartLine et leplan de travail Si vous utilisez un produit d'étan-chéité pour joint entre le plan de tra-vail et le domino SmartLine, vous ris-quez d'endommager ce dernier encas de démontage éventuel.N'utilis...
Page 42 - Combinaison avec un domino hotte
Installation *INSTALLATION* 42 Encastrement de plusieurs dominosSmartLine Les joints entre les différents dominosSmartLine sont injectés avec un produitd'étanchéité à base de silicone thermo-résistant (minimum 160 °C). En casd'encastrement à fleur de plan, il fautde plus injecter les joints entre le...
Page 44 - Encastrement avec domino hotte
Installation *INSTALLATION* 44 Encastrement avec domino hotte Exemples de combinaison Nombre x largeur [mm] Dimen- sion B [mm] Éléments de cuisson Hotte de table 1 x 378 1 x 120 481 2 x 378 1 x 120 862 1 x 3781 x 620 2 x 120 1226 3 x 378 2 x 120 1365 2 x 3781 x 620 2 x 120 1607 4 x 378 2 x 120 1746 ...
Page 46 - Barrettes de jonction – standard; Encastrement de 3 dominos et 2 barrettes de jonction
Installation *INSTALLATION* 46 Barrettes de jonction – standard Si vous installez plusieurs appareils, vous devez placer des barrettes de jonctionentre eux. Vous n'avez besoin que des supports ci-joints pour l'installation d'un CS-DA 700x FL. Encastrement de 3 dominos et 2 barrettes de jonction
Page 47 - Cotes d'encastrement – standard; Toutes les dimensions sont indiquées en mm.
Installation *INSTALLATION* 47 Cotes d'encastrement – standard Toutes les dimensions sont indiquées en mm. a Avant b Boîtier de raccordement électrique avec câble de raccordementCâble de raccordement au réseau L = 2 000 mm c Raccordement gaz R ½ " ISO 7-1 (DIN EN 10226)
Page 48 - Installation – standard; Préparation du plan de travail
Installation *INSTALLATION* 48 Installation – standard Préparation du plan de travail Réalisez la découpe du plan de tra-vail. Respectez les distances desécurité (voir chapitre « Installation »,section « Distances de sécurité »). Pour éviter tout gonflement dû à l’hu-midité, scellez les bords de...
Page 49 - Encastrement du domino SmartLine
Installation *INSTALLATION* 49 Encastrement du domino SmartLine Collez le joint d'étanchéité fournisous le bord du domino SmartLine.Ne pas coller le joint d’étanchéitésous tension. Faites passer le câble d'alimentationélectrique vers le bas par la découpedu plan de travail. Posez le domino Sma...
Page 50 - Plans de travail en pierre naturelle
Installation *INSTALLATION* 50 Instructions d'encastrement – à fleur de plan L'encastrement à fleur de plan n'estpossible que dans un plan de travailen pierre naturelle (granit, marbre), enbois massif ou carrelé. Si votre plande travail est constitué d'un autre ma-tériau, demandez au fabricant si l'...
Page 52 - Découpe du plan de travail – à fleur de plan; Plan de travail en pierre naturelle
Installation *INSTALLATION* 52 Découpe du plan de travail – à fleur de plan B 0 50 A 524 50 0 + 1 + 1 ß R 4 B A 0 2 12 0 1 0 5,5 + 0,5 * / 7 + 0,5 0 2 12 0 1 0 5,5 + 0,5 * / 7 + 0,5 + 1 + 1 + 1 + 1 B A + 1 + 1 Plan de travail en pierre naturelle Plan de travail en bois * 7 + 0,5 mm pour CS 7611 FL
Page 55 - Barrettes de jonction – à fleur de plan
Installation *INSTALLATION* 55 Barrettes de jonction – à fleur de plan Si vous installez plusieurs appareils, vous devez placer des barrettes de jonctionentre eux. Vous n'avez besoin que des supports ci-joints pour l'installation d'un CS-DA 700x FL. Encastrement de 3 dominos et 2 barrettes de joncti...
Page 56 - Cotes d'encastrement – à fleur de plan
Installation *INSTALLATION* 56 Cotes d'encastrement – à fleur de plan Toutes les dimensions sont indiquées en mm. a Avant b Boîtier de raccordement électrique avec câble de raccordementCâble de raccordement au réseau L = 2 000 mm c Fraisage de gradins (voir les schémas détaillés au chapitre « Instal...
Page 57 - Installation – à fleur de plan
Installation *INSTALLATION* 57 Installation – à fleur de plan Préparation du plan de travail Réalisez la découpe du plan de tra-vail. Respectez les distances desécurité (voir chapitre « Installation »,section « Distances de sécurité »). Pour éviter tout gonflement dû à l’hu-midité, scellez les b...
Page 59 - Vérifier le fonctionnement
Installation *INSTALLATION* 59 Vérifier le fonctionnement Après l'encastrement, vérifiez le com-portement au feu en mettant en ser-vice tous les brûleurs : - en position de réglage faible, la flamme du gaz ne doit pas s'éteindre,même lorsque le bouton de com-mande est tourné rapidement du ré-glage...
Page 60 - Raccordement au gaz; Risque d'explosion en cas de
Installation *INSTALLATION* 60 Raccordement au gaz Risque d'explosion en cas de raccordement au gaz inapproprié.Si le raccordement au gaz n'est pascorrectement effectué, cela peut en-gendrer une fuite de gaz.Le raccordement au gaz doit être ef-fectué uniquement par un installateuragréé par le dist...
Page 61 - Risque d'explosion causé par
Installation *INSTALLATION* 61 Risque d'explosion causé par des câbles d'alimentation endomma-gés.Le gaz peut s'échapper en cas decâbles d'alimentation flexible en-dommagés.Placez les raccordements flexiblesde manière à ce qu'ils ne gênent pasles dominos mobiles de la cuisine(un tiroir, par exempl...
Page 63 - Raccordement électrique
Installation *INSTALLATION* 63 Raccordement électrique Le domino SmartLine est équipé en sé-rie d'un raccordement prêt à l'emploi àune prise de sécurité. Installez le domino SmartLine de sorteque la prise soit facilement accessible.Si la prise n'est pas facilement acces-sible, vérifiez qu'un disposi...
Page 64 - Tableaux injecteurs; le ou les
Adaptation à un autre type de gaz *INSTALLATION* 64 Risque d'explosion en cas de modification inappropriée.Si le passage à un autre type de gazn'est pas correctement effectué, legaz peut s'échapper.La modification à un autre type degaz doit être effectué uniquementpar un installateur agréé par le ...
Page 65 - Remplacer les injecteurs principaux
Adaptation à un autre type de gaz *INSTALLATION* 65 Remplacer les injecteurs principaux Retirez le couvercle du brûleur et la tête du brûleur . Dévissez les injecteurs principaux à l'aide d'une clé à douilles (M7). Mettez les nouveaux injecteurs enplace (voir tableau des injecteurs) ...
Page 66 - Remontez la table de cuisson.
Adaptation à un autre type de gaz *INSTALLATION* 66 Dévissez les injecteurs de réglagefaible à l'aide d'un petit tourne- vis. Saisissez les injecteurs à l'aide d'unepince à bec fin et sortez-les. Mettez les nouveaux injecteurs enplace (voir tableau des injecteurs) etvissez pour les fixer. ...
Page 67 - Fiches de données de produits; Informations relatives aux tables de cuisson à gaz domestiques
Fiches de données de produits 67 Les fiches de données des modèles décrits dans le présent mode d'emploi et lesinstructions de montage figurent ci-après. Informations relatives aux tables de cuisson à gaz domestiques selon règlement (UE) N°66/2014 MIELE Identification du modèle CS 7101-1 Nombre de b...
Page 71 - Miele Experience Center Nice
9 avenue Albert Einstein - Z. I. du Coudray R.C.S. Bobigny B 708 203 088 55 Boulevard Malesherbes75008 Paris 30 rue du Bac75007 Paris Secteur Cap 3000285 avenue de Verdun06700 Saint-Laurent du Var MIELE FranceSiège social 93151 - Le Blanc-Mesnil CEDEX Miele Experience CenterParis Rive Gauche Miele E...