Page 2 - Table des matières; Consignes de sécurité et mises en garde
Table des matières 2 Consignes de sécurité et mises en garde ................................................................ 4 Développement durable et protection de l'environnement ................................ 13 Prise en main ......................................................................
Page 3 - Ajuster les réglages
Table des matières 3 Ajuster les réglages ...................................................................................................... 26 Intervalles Compteur d'heures de fonctionnement Filtre à graisse........................ 26 Fréquences du témoin de saturation du filtre à charbon actif...
Page 4 - Utilisation conforme; Cette hotte est destinée à un usage domestique ou à des condi-
Consignes de sécurité et mises en garde 4 Cette hotte répond aux réglementations de sécurité en vigueur.Toute utilisation non conforme peut toutefois causer des dom-mages corporels et matériels.Lisez attentivement le mode d’emploi et les instructions de mon-tage avant de mettre la hotte en service. ...
Page 5 - Précautions à prendre avec les enfants
Consignes de sécurité et mises en garde 5 Les personnes qui en raison de déficiences physiques, sensorielles ou mentales, de leur manque d'expérience ou de leur ignorance, nesont pas aptes à manipuler cette hotte en toute sécurité doivent im-pérativement être surveillées pendant qu'elles l'utilise...
Page 6 - Sécurité technique; Tout dommage sur la hotte peut mettre votre sécurité en danger.
Consignes de sécurité et mises en garde 6 Sécurité technique Des travaux d'installation, d'entretien ou de réparation non conformes peuvent entraîner de graves dangers pour l'utilisateur. Cesinterventions doivent être exécutées exclusivement par des profes-sionnels agréés par Miele. Tout dommage...
Page 8 - Utilisation simultanée de la hotte et d'un foyer; Risque d'intoxication lié aux gaz de combustion !
Consignes de sécurité et mises en garde 8 Utilisation simultanée de la hotte et d'un foyer Risque d'intoxication lié aux gaz de combustion ! En cas d'utilisation simultanée d'une hotte et d'un foyer dans lamême pièce ou le même ensemble d'aération, la prudence est derigueur.On considère comme foye...
Page 11 - Installation conforme
Consignes de sécurité et mises en garde 11 Les dépôts de graisse et de poussière dans la hotte entravent son fonctionnement. N'utilisez jamais la hotte sans le filtre à graisses afin de permettreune bonne aspiration des fumées de cuisson. Il existe un risque d'incendie, lorsque le nettoyage n'es...
Page 12 - Nettoyage et entretien
Consignes de sécurité et mises en garde 12 Ne raccordez jamais l'évacuation de la hotte à une cheminée d'évacuation de fumées ou de gaz brûlés ou à une cheminée qui sertà l'aération des pièces où sont installés des foyers. Si vous avez prévu d'évacuer l'air dans une cheminée non utilisée, respec...
Page 13 - Développement durable et protection de l'environnement; Recyclage de l’emballage
Développement durable et protection de l'environnement 13 Recyclage de l’emballage Nos emballages protègent votre appa-reil des dommages qui peuvent survenirpendant le transport. Nous les sélec-tionnons en fonction de critères écolo-giques permettant d'en faciliter le recy-clage. En participant au r...
Page 15 - Composants; Filtre à graisses
Prise en main 15 a FûtAccessoires en optionEn mode évacuation d'air unique-ment : b Filtre à charbon actifFiltre à charbon actif à usage uniqueou régénérationDisponible en option pour fonction-nement en mode recyclage c Éléments de commande d Déflecteur e Filtre à graisses f Bac collecteur g Éclaira...
Page 16 - Éclairage de la table de cuisson; Fonctions; Mode évacuation; et; Fonction d'arrêt différé
Prise en main 16 Éclairage de la table de cuisson Vous pouvez allumer, modifier ouéteindre l'éclairage indépendamment dumoteur. Si vous utilisez Miele@home, vous pou-vez adapter la température de la lumièreà l'éclairage de votre cuisine via l'appli-cation Miele (Miele DynamicWhite). Fonctions Mode é...
Page 17 - Si le symbole filtre à graisse; Con@ctivity apprenante; - Si le niveau de puissance de la hotte
Prise en main 17 Compteur d’heures de fonctionne-ment La hotte enregistre la durée de fonction-nement. Si le symbole filtre à graisse est allu- mé, vous devez nettoyer les filtres àgraisse. Si le symbole du filtre à charbon actif est allumé, vous devez remplacer ou ré-générer le filtre à charbon...
Page 18 - Mise en service; Disponibilité Miele@home
Mise en service 18 Choisir entre les modes évacua-tion et recyclage Cette hotte peut fonctionner en modeévacuation ou recyclage. La puissancedu moteur est adaptée en fonction dumode de fonctionnement. Par défaut,la hotte est configurée en usine enmode recyclage. Pour le mode d'éva-cuation de l'air, ...
Page 19 - Application Miele
Mise en service 19 Application Miele Vous pouvez télécharger gratuitementles Apps Miele depuis l'Apple App Sto-re ® ou depuis Google Play Store™. Connexion via l'application Vous pouvez créer une connexion ré-seau avec l'App Miele. Installez l'App Miele sur votre termi-nal mobile. Pour la connexio...
Page 21 - Connecter la télécommande; Déconnecter la télécommande
Mise en service 21 Amorcez la connexion Wi-Fi sur latable de cuisson. Pour ce faire,consulter le mode d’emploi de la tablede cuisson. Une fois la connexion établie, 2 et 3 sont allumés en continu. Validez le choix à l’aide de la touched’arrêt différé . Si la connexion n'est pas possible, 2 et...
Page 22 - pidement au niveau; Rôtir avec Con@ctivity
Manipulation (automatique) 22 Cuisiner avec Con@ctivity surune table de cuisson électrique Activez une zone de cuisson en sélec-tionnant le niveau de puissance devotre choix. L'éclairage de la table de cuisson s'allume. Au bout de quelques secondes, le mo-teur s'enclenche : après une courtephase à...
Page 24 - Allumer le ventilateur; Réinitialisation du niveau de booster; Sélectionner l'arrêt différé
Commande (manuelle) 24 Cuisiner sans fonctionCon@ctivity (mode manuel) La hotte peut être utilisée manuelle-ment aux conditions suivantes : - la fonction Con@ctivity ne doit pas être activée, - vous avez désactivé provisoirement la fonction Con@ctivity (voir chapitre« Utilisation (mode automatique) ...
Page 27 - Sécurité Oubli
Ajuster les réglages 27 Sélectionnez la fréquence souhaitéeen effleurant les chiffres. Validez le réglage en effleurant latouche du filtre à charbon actif . Si vous ne confirmez pas votre choixdans les quatre minutes qui suivent,les anciens réglages sont conservés. Activer/désactiver la gesti...
Page 30 - Débranchez la hotte avant toute; Nettoyer la carrosserie; Séchez ensuite avec un chiffon doux.; Filtres à graisses; vous rappelle de nettoyer les; Ouvrir le déflecteur.
Nettoyage et entretien 30 Débranchez la hotte avant toute maintenance ou tout entretien (voirchapitre « Consignes de sécurité etmises en garde »). Nettoyer la carrosserie Nettoyez toutes les surfaces et leséléments de commande exclusive-ment avec une éponge, du produitvaisselle et de l'eau chaud...
Page 31 - Retrait du filtre à graisses; - de produits de lavage anticalcaire
Nettoyage et entretien 31 Retrait du filtre à graisses La chute d'un filtre peut endom- mager le filtre et la table de cuisson.Tenez fermement le filtre lorsquevous le manipulez. Ouvrir le verrouillage du filtre à graisseavant, pousser légèrement le filtre àgraisse vers le haut et le retirer par...
Page 32 - Monter les filtres à graisse; Remontez les filtres à graisse.; Fermer le déflecteur; pendant environ; Remplacer les filtres à graisses
Nettoyage et entretien 32 Conseils pour le nettoyage au lave-vaisselle Les filtres à graisse peuvent être rendusinutilisables par des températures tropélevées, par exemple en se déformant.Choisissez un programme qui ne dé-passe pas la température recomman-dée. Suivez les instructions figurant dans l...
Page 33 - Filtres à charbon actif; s'allume pour vous rappeler de; Jeter le filtre à charbon actif
Nettoyage et entretien 33 Filtres à charbon actif Intervalle de remplacement du filtre àcharbon actif Remplacez le filtre à charbon actif lors-qu'il ne retient plus suffisamment lesodeurs.Après une durée de fonctionnement de180 heures, le symbole du filtre anti-odeur s'allume pour vous rappeler de...
Page 35 - Installation; Retirer le film de protection; raccord d’évacuation
Installation 35 Avant l'installation Avant l'installation, veuillez tenir compte de toutes les informationsmentionnées dans ce chapitre et duchapitre « Consignes de sécurité etmises en garde ». Retirer le film de protection Les pièces de l'appareil sont recou-vertes d'un film de protection qui les...
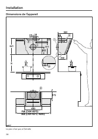
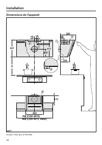
Page 37 - Distance entre la table de cuisson et la hotte (S)
Installation 37 a Sens d’évacuation d’air par le haut ou par l’arrière. b Perçage avec prise secteur sur raccordement secteur et donc sans fiche sec-teur. c Perçage pour évacuation d’air 200 mm pour mobilité du conduit mural d’éva- cuation d’air d Évacuation d’air en mode recyclage de l’air. La d...
Page 38 - Conseils de montage; - Lorsque vous choisissez la hauteur de
Installation 38 Conseils de montage - Lorsque vous choisissez la hauteur de montage, tenez compte de la tailledes utilisateurs. Vous devez pouvoirtravailler sur la table de cuisson et ac-céder aux commandes de la hottesans être gêné. - Attention ! Plus la hotte et la table de cuisson sont distantes,...
Page 39 - Cheminée d'évacuation
Installation 39 Conduit d'évacuation Risque d'intoxication en cas d'utilisation simultanée de la hotte etd'un brûleur !Consultez le chapitre « Consignes desécurité et mises en garde » avantd'utiliser votre hotte pour la premièrefois.En cas de doute, demandez à une so-ciété de ramonage de vous conf...
Page 40 - Eau de condensation
Installation 40 Clapet anti-retour Utilisez un clapet anti-retour dans lesystème d'évacuation. Le clapet anti-retour permet d'évitertout échange d'air intempestif entre lapièce et l'extérieur lorsque la hotte nefonctionne pas. Si l’air évacué est dirigé vers l’extérieur,nous recommandons l’install...
Page 41 - Réducteur de bruit
Installation 41 Réducteur de bruit Pour amortir davantage les bruits, un ré-ducteur de bruit peut être installé dansla conduite d'évacuation (accessoire enoption). En mode évacuation, le réducteur debruit insonorise aussi bien les bruits duventilateur vers l’extérieur que les bruitsextérieurs qui pa...
Page 42 - Branchement électrique; Risque d’incendie en cas de sur-
Installation 42 Branchement électrique La hotte est équipée en série d'un rac-cordement prêt à l'emploi à une prise desécurité. Si la prise n’est pas facilement acces-sible ou si un raccordement fixe est pré-vu, vérifiez qu’un dispositif de section-nement de chacun des pôles est prévusur l’installat...
Page 43 - Caractéristiques techniques; Accessoire en option pour fonctionnement en mode recyclage
Caractéristiques techniques 43 Moteur de ventilateur 220 W Éclairage de la table de cuisson 3,2 W Puissance totale de raccordement 223,2 W Tension réseau, fréquence CA 230 V, 50 Hz Fusible 10 A Longueur du câble d’alimentation électrique 1,3 m Température de lumière préréglée 3 500 K Température de ...
Page 44 - Fiche relative aux hottes domestiques
Caractéristiques techniques 44 Fiche relative aux hottes domestiques selon règlement délégué (UE) N° 65/2014 et règlement (UE) N°66/2014 MIELE Identification du modèle DAH 4870 Sienna Consommation énergétique annuelle (AEC hotte ) 28,7 kWh par an Classe d’efficacité énergétique A++ Indice d'efficaci...
Page 47 - Miele Experience Center Nice
9 avenue Albert Einstein - Z. I. du Coudray R.C.S. Bobigny B 708 203 088 55 Boulevard Malesherbes75008 Paris 30 rue du Bac75007 Paris Secteur Cap 3000285 avenue de Verdun06700 Saint-Laurent du Var MIELE FranceSiège social 93151 - Le Blanc-Mesnil CEDEX Miele Experience CenterParis Rive Gauche Miele E...